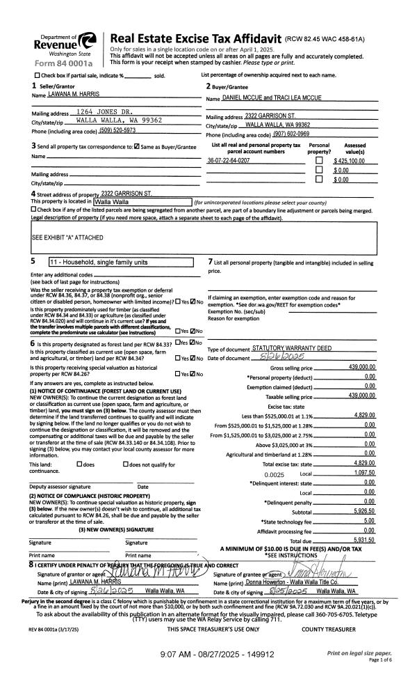
Property
Account |
| Property ID: | 44433 | Abbreviated Legal Description: | EDGEWOOD PLACE LOT 12 & E 1/2 OF LOT 11 BLK 2 |
| Parcel Number: | 360728570212 | Agent Code: | |
| Type: | Real | | |
| Tax Area: | 1 - OL-140-F | Land Use Code | 11 |
| Open Space: | N | DFL | N |
| Historic Property: | N | Remodel Property: | N |
| Multi-Family Redevelopment: | N | | |
| Township: | 7 | Section: | 28 |
| Range: | 36 |
Location |
| Address: | 811 PLEASANT ST WA 99362 | Mapsco: | |
| Neighborhood: | A Res Multi Res | Map ID: | |
| Neighborhood CD: | 613081 |
Owner |
| Name: | MARTINEZ MIGUEL | Owner ID: | 61051 |
| Mailing Address: | 811 PLEASANT ST WALLA WALLA, WA 99362 | % Ownership: | 100.0000000000% |
| | | Exemptions: | |
Taxes and Assessment Details
Values
| (+) Improvement Homesite Value: | + | $0 | |
| (+) Improvement Non-Homesite Value: | + | $235,450 | |
| (+) Land Homesite Value: | + | $0 | |
| (+) Land Non-Homesite Value: | + | $55,000 | |
| (+) Curr Use (HS): | + | $0 | $0 |
| (+) Curr Use (NHS): | + | $0 | $0 |
| | | -------------------------- | |
| (=) Market Value: | = | $290,450 | |
| (–) Productivity Loss: | – | $0 | |
| | | -------------------------- | |
| (=) Subtotal: | = | $290,450 | |
| (+) Senior Appraised Value: | + | $0 | |
| (+) Non-Senior Appraised Value: | + | $290,450 | |
| | | -------------------------- | |
| (=) Total Appraised Value: | = | $290,450 | |
| (–) Senior Exemption Loss: | – | $0 | |
| (–) Exemption Loss: | – | $0 | |
| | | -------------------------- | |
| (=) Taxable Value: | = | $290,450 | |
Taxing Jurisdiction
| Owner: | MARTINEZ MIGUEL | | |
| % Ownership: | 100.0000000000% | | |
| Total Value: | $290,450 | | |
| Tax Area: | 1 - OL-140-F |
| CERFD | CURRENT EXPENSE REFUND 010 | 0.0000000000 | $290,450 | $290,450 | $0.00 | | |
| CURREXP | CURRENT EXPENSE 010 | 1.0175366760 | $290,450 | $290,450 | $295.54 | | |
| HUMNSERV | HUMAN SERVICES 119 | 0.0250000000 | $290,450 | $290,450 | $7.26 | | |
| SLDREL | SOLDIERS RELIEF 121 | 0.0155990005 | $290,450 | $290,450 | $4.53 | | |
| EMERGSER | EMS 147 | 0.3792580840 | $290,450 | $290,450 | $110.16 | | |
| EMSRFD | EMS REFUND 147 | 0.0000000000 | $290,450 | $290,450 | $0.00 | | |
| PORTRFD | PORT REFUND 640 | 0.0000000000 | $290,450 | $290,450 | $0.00 | | |
| PORTWWGEN | PORT OF WW 640 | 0.2460186015 | $290,450 | $290,450 | $71.46 | | |
| SD140BOND | SD #140 BOND 764 | 0.8342371393 | $290,450 | $290,450 | $242.30 | | |
| SD140GEN | SD #140 GENERAL 760 | 2.0646500647 | $290,450 | $290,450 | $599.68 | | |
| ST2 | STATE SCHOOL PART 2 600 | 0.8131451643 | $290,450 | $290,450 | $236.18 | | |
| STATESCHL | STATE SCHOOL 600 | 1.5158548041 | $290,450 | $290,450 | $440.28 | | |
| STREFUND | STATE REFUND LEVY 603 | 0.0000000000 | $290,450 | $290,450 | $0.00 | | |
| CWWBOND | C OF WW BOND 643 | 0.2760494372 | $290,450 | $290,450 | $80.18 | | |
| CWWGEN | CITY OF WW 631 | 1.6100204973 | $290,450 | $290,450 | $467.63 | | |
| CWWRFD | CITY OF WALLA WALLA REFUND 631 | 0.0000000000 | $290,450 | $290,450 | $0.00 | | |
| | Total Tax Rate: | 8.7973694689 | | | | | |
| | | | | Taxes w/Current Exemptions: | $2,555.20 | | |
| | | | | Taxes w/o Exemptions: | $2,555.20 | | |
Improvement / Building
| Improvement #1: | RESIDENTIAL | State Code: | 11 | 665.0 sqft | Value: | $92,690 |
| Exterior Wall: | SIDING | Heating/Cooling: | FORCED AIR | | Number of Bathrooms: | 1 | Number of Bedrooms: | 2 | | Plumbing: | 7 | Roof Covering: | COMP SHINGLE |
|
| | Type | Description | Class CD | Sub Class CD | Year Built | Area |
| | MA | Main Area | 11 | 25 | 1917 | 665.0 |
| | SI1 | SITE IMPROVEMENT | 1 | 25 | 1917 | 1.0 |
| | BASE | BASEMENT | 1 | 25 | 1917 | 160.0 |
| | BMF | BASEMENT - MIN FINISH | 1 | 25 | 1917 | 160.0 |
| | RPS | PORCH W/STEPS,ROOF | 1 | 25 | 1917 | 42.0 |
| | RPO | OPEN PORCH W/ROOF | 1 | 25 | 1917 | 63.0 |
| | TOOL | TOOL SHED | 1 | 25 | 1917 | 140.0 |
| Improvement #2: | RESIDENTIAL | State Code: | 11 | 1350.0 sqft | Value: | $142,760 |
| Exterior Wall: | SIDING | Heating/Cooling: | WARM & COOLED AIR | | Number of Bathrooms: | 2 | Number of Bedrooms: | 3 | | Plumbing: | 9 | Roof Covering: | COMP SHINGLE |
|
| | Type | Description | Class CD | Sub Class CD | Year Built | Area |
| | MA | Main Area | 1 | 25 | 1981 | 1350.0 |
| | SI1 | SITE IMPROVEMENT | 1 | 25 | 1981 | 1.0 |
| | TOOL | TOOL SHED | 1 | 25 | 1981 | 140.0 |
Sketch
Property Image
Land
| 1 | RES 1 | Converted: Residential | 0.1722 | 7500.00 | 0.00 | 0.00 | 1.00 | $55,000 | $0 |
Roll Value History
| 2025 | N/A | N/A | N/A | N/A | N/A |
| 2024 | $235,450 | $55,000 | $0 | $290,450 | $290,450 |
| 2023 | $235,450 | $55,000 | $0 | $290,450 | $290,450 |
| 2022 | $235,450 | $55,000 | $0 | $290,450 | $290,450 |
| 2021 | $214,050 | $55,000 | $0 | $269,050 | $269,050 |
| 2020 | $164,650 | $55,000 | $0 | $219,650 | $219,650 |
| 2019 | $164,650 | $55,000 | $0 | $219,650 | $219,650 |
| 2018 | $81,300 | $45,000 | $0 | $126,300 | $126,300 |
| 2017 | $81,300 | $45,000 | $0 | $126,300 | $126,300 |
| 2016 | $81,300 | $45,000 | $0 | $126,300 | $126,300 |
Deed and Sales History
| 1 | 07/12/2024 | QCD | QUIT CLAIM DEED | MARTINEZ MIGUEL | LUGO MARTINEZ MIGUEL ANGEL & DELIA LUGO DE MARTINEZ | | | | 147861 | 2024-03787 |
| 2 | 05/25/2017 | WARRANTY D | WARRANTY DEED | | MARTINEZ MIGUEL | | | $130,000.00 | 132457 | 2017-03939 |
Payout Agreement
| No payout information available.. |