Property
Account |
| Property ID: | 44319 | Abbreviated Legal Description: | SEC 12 TWP 7 RNG 32 ALL LESS RD |
| Parcel Number: | 320712000001 | Agent Code: | |
| Type: | Real | | |
| Tax Area: | 316 - 300-6 | Land Use Code | 83 |
| Open Space: | Y | DFL | N |
| Historic Property: | N | Remodel Property: | N |
| Multi-Family Redevelopment: | N | | |
| Township: | 7 | Section: | 12 |
| Range: | 32 |
Location |
| Address: | WA 99360 | Mapsco: | |
| Neighborhood: | 0 Farm | Map ID: | |
| Neighborhood CD: | 2220 |
Owner |
| Name: | SHERRY FRED FARMS INC | Owner ID: | 1299 |
| Mailing Address: | PO BOX 1633 WALLA WALLA, WA 99362 | % Ownership: | 91.3000000000% |
| | | Exemptions: | |
Taxes and Assessment Details
Values
| (+) Improvement Homesite Value: | + | $0 | |
| (+) Improvement Non-Homesite Value: | + | $0 | |
| (+) Land Homesite Value: | + | $0 | |
| (+) Land Non-Homesite Value: | + | $0 | |
| (+) Curr Use (HS): | + | $0 | $0 |
| (+) Curr Use (NHS): | + | $367,409 | $112,783 |
| | | -------------------------- | |
| (=) Market Value: | = | $367,409 | |
| (–) Productivity Loss: | – | $254,627 | |
| | | -------------------------- | |
| (=) Subtotal: | = | $112,782 | |
| (+) Senior Appraised Value: | + | $0 | |
| (+) Non-Senior Appraised Value: | + | $112,783 | |
| | | -------------------------- | |
| (=) Total Appraised Value: | = | $112,783 | |
| (–) Senior Exemption Loss: | – | $0 | |
| (–) Exemption Loss: | – | $0 | |
| | | -------------------------- | |
| (=) Taxable Value: | = | $112,783 | |
Taxing Jurisdiction
| Owner: | SHERRY FRED FARMS INC | | |
| % Ownership: | 91.3000000000% | | |
| Total Value: | $367,409 | | |
| Tax Area: | 316 - 300-6 |
| CERFD | CURRENT EXPENSE REFUND 010 | 0.0000000000 | $112,783 | $112,783 | $0.00 | | |
| CURREXP | CURRENT EXPENSE 010 | 1.0175366760 | $112,783 | $112,783 | $114.76 | | |
| HUMNSERV | HUMAN SERVICES 119 | 0.0250000000 | $112,783 | $112,783 | $2.82 | | |
| SLDREL | SOLDIERS RELIEF 121 | 0.0155990005 | $112,783 | $112,783 | $1.76 | | |
| EMERGSER | EMS 147 | 0.3792580840 | $112,783 | $112,783 | $42.77 | | |
| EMSRFD | EMS REFUND 147 | 0.0000000000 | $112,783 | $112,783 | $0.00 | | |
| FD6EXP | FD #6 EXPENSE 693 | 0.6692985746 | $112,783 | $112,783 | $75.49 | | |
| RLBRFD | RURAL LIBRARY REFUND 623 | 0.0000000000 | $112,783 | $112,783 | $0.00 | | |
| RURALLIB | RURAL LIBRARY 623 | 0.3710609029 | $112,783 | $112,783 | $41.85 | | |
| PORTRFD | PORT REFUND 640 | 0.0000000000 | $112,783 | $112,783 | $0.00 | | |
| PORTWWGEN | PORT OF WW 640 | 0.2460186015 | $112,783 | $112,783 | $27.75 | | |
| SD300BOND | SD #300 BOND 783 | 1.8964951620 | $112,783 | $112,783 | $213.89 | | |
| SD300GEN | SD #300 GENERAL 780 | 2.1198322866 | $112,783 | $112,783 | $239.08 | | |
| ST2 | STATE SCHOOL PART 2 600 | 0.8131451643 | $112,783 | $112,783 | $91.71 | | |
| STATESCHL | STATE SCHOOL 600 | 1.5158548041 | $112,783 | $112,783 | $170.96 | | |
| STREFUND | STATE REFUND LEVY 603 | 0.0000000000 | $112,783 | $112,783 | $0.00 | | |
| COROAD | COUNTY ROAD 115 | 1.6549953990 | $112,783 | $112,783 | $186.66 | | |
| CRPRD | COUNTY ROAD REFUND 115 | 0.0000000000 | $112,783 | $112,783 | $0.00 | | |
| | Total Tax Rate: | 10.7240946555 | | | | | |
| | | | | Taxes w/Current Exemptions: | $1,209.50 | | |
| | | | | Taxes w/o Exemptions: | $1,209.50 | | |
Improvement / Building
Sketch
| No sketches available for this property. |
Property Image
Land
| 1 | 35-C2 | Class 2 35 BU | 549.0000 | 0.00 | 0.00 | 0.00 | 1.00 | $402,420 | $123,530 |
| 2 | WASTE | Waste | 82.7800 | 0.00 | 0.00 | 0.00 | 1.00 | $0 | $0 |
Roll Value History
| 2025 | N/A | N/A | N/A | N/A | N/A |
| 2024 | $0 | $376,430 | $107,771 | $107,771 | $107,771 |
| 2023 | $0 | $367,409 | $112,783 | $112,783 | $112,783 |
| 2022 | $0 | $318,290 | $108,766 | $108,766 | $108,766 |
| 2021 | $0 | $286,709 | $109,268 | $109,268 | $109,268 |
| 2020 | $0 | $265,153 | $111,779 | $111,779 | $111,779 |
| 2019 | $0 | $255,129 | $113,778 | $113,778 | $113,778 |
| 2018 | $0 | $253,622 | $130,824 | $130,824 | $130,824 |
| 2017 | $0 | $243,105 | $132,832 | $132,832 | $132,832 |
| 2016 | $0 | $243,105 | $132,832 | $132,832 | $132,832 |
Deed and Sales History
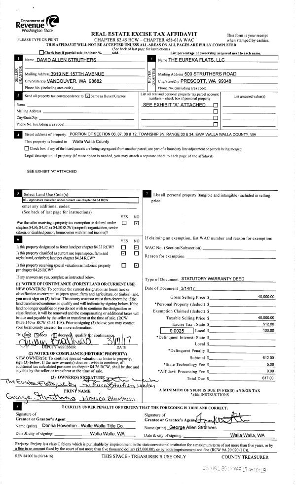
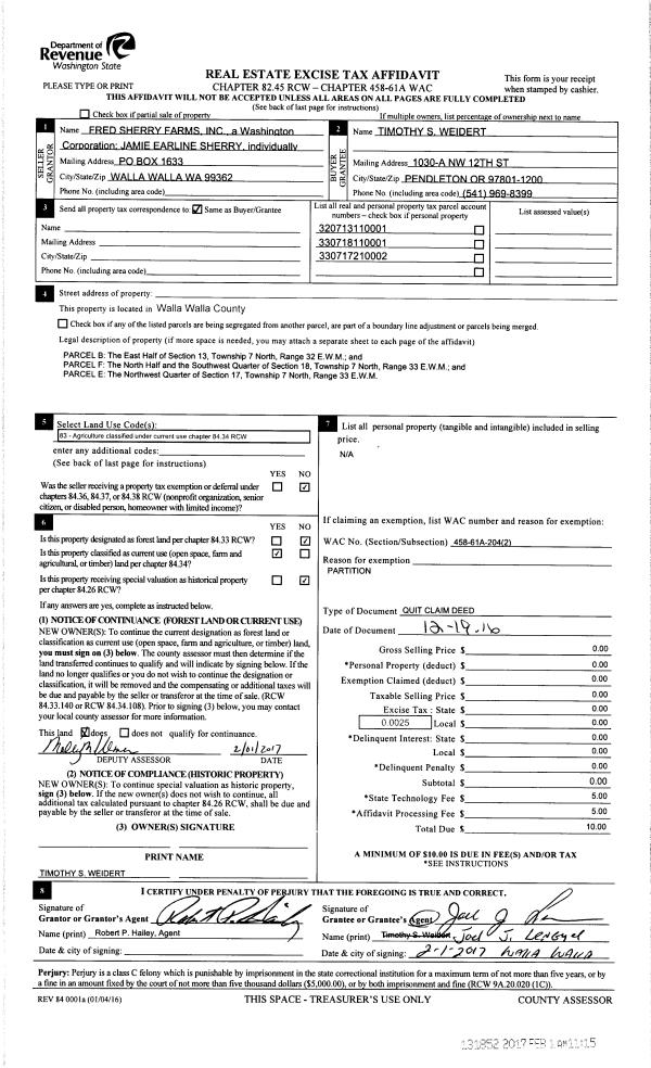
| 1 | 02/16/2017 | QCD | QUIT CLAIM DEED | | SHERRY FRED FARMS INC | | | | 131905 | 2017-01272 |
| 2 | 02/16/2017 | QCD | QUIT CLAIM DEED | | SHERRY JAMIE | | | | 131905 | 2017-01272 |
| 3 | 11/07/2012 | WARRANTY D | WARRANTY DEED | "WEIDERT, JENNIFER A" | | | | | 122954 | 2012-09884 |
| 4 | 11/07/2012 | WARRANTY D | WARRANTY DEED | TOUCHET 1074 LLC | | | | | 122953 | 2012-09883 |
| 5 | 02/07/2012 | WARRANTY D | WARRANTY DEED | "SHERRY, JAMES W" | | | | | 121367 | 2012-01103 |
| 6 | 12/28/2011 | WARRANTY D | WARRANTY DEED | "PHILLIPS, PATRICIA" | | | | | 121177 | 2011-10229 |
| 7 | 11/28/2011 | WARRANTY D | WARRANTY DEED | "SHEILA SHERRY, KATHLEEN~ANAST | | | | | 121044 | 2011-09326 |
| 8 | 11/28/2011 | WARRANTY D | WARRANTY DEED | "RAY, BEVERLY (FKA BEVERLY~SHE | | | | | 121045 | 2011-09325 |
| 9 | 02/15/1980 | WARRANTY D | WARRANTY DEED | | | | | | 53419 | 3350-506925 |
Payout Agreement
| No payout information available.. |