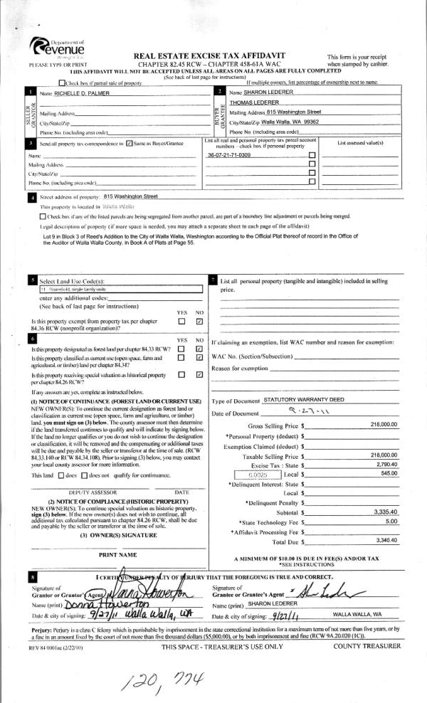
Property
Account |
| Property ID: | 4409 | Abbreviated Legal Description: | MCRAE S 60' OF LOT 24 BLK 2 |
| Parcel Number: | 350736570224 | Agent Code: | |
| Type: | Real | | |
| Tax Area: | 75 - CP 250 | Land Use Code | 11 |
| Open Space: | N | DFL | N |
| Historic Property: | N | Remodel Property: | N |
| Multi-Family Redevelopment: | N | | |
| Township: | 7 | Section: | 36 |
| Range: | 35 |
Location |
| Address: | 1114 SE DATE AVE WA 99324 | Mapsco: | |
| Neighborhood: | A SFR | Map ID: | |
| Neighborhood CD: | 113011 |
Owner |
| Name: | SHIPOWICK CLARISSA V | Owner ID: | 4539 |
| Mailing Address: | 165 CORTLAND LN BEDMINSTER, NJ 07921 | % Ownership: | 100.0000000000% |
| | | Exemptions: | |
Taxes and Assessment Details
Values
| (+) Improvement Homesite Value: | + | $0 | |
| (+) Improvement Non-Homesite Value: | + | $264,090 | |
| (+) Land Homesite Value: | + | $0 | |
| (+) Land Non-Homesite Value: | + | $40,500 | |
| (+) Curr Use (HS): | + | $0 | $0 |
| (+) Curr Use (NHS): | + | $0 | $0 |
| | | -------------------------- | |
| (=) Market Value: | = | $304,590 | |
| (–) Productivity Loss: | – | $0 | |
| | | -------------------------- | |
| (=) Subtotal: | = | $304,590 | |
| (+) Senior Appraised Value: | + | $0 | |
| (+) Non-Senior Appraised Value: | + | $304,590 | |
| | | -------------------------- | |
| (=) Total Appraised Value: | = | $304,590 | |
| (–) Senior Exemption Loss: | – | $0 | |
| (–) Exemption Loss: | – | $0 | |
| | | -------------------------- | |
| (=) Taxable Value: | = | $304,590 | |
Taxing Jurisdiction
| Owner: | SHIPOWICK CLARISSA V | | |
| % Ownership: | 100.0000000000% | | |
| Total Value: | $304,590 | | |
| Tax Area: | 75 - CP 250 |
| CERFD | CURRENT EXPENSE REFUND 010 | 0.0000000000 | $304,590 | $304,590 | $0.00 | | |
| CURREXP | CURRENT EXPENSE 010 | 1.0175366760 | $304,590 | $304,590 | $309.93 | | |
| HUMNSERV | HUMAN SERVICES 119 | 0.0250000000 | $304,590 | $304,590 | $7.61 | | |
| SLDREL | SOLDIERS RELIEF 121 | 0.0155990005 | $304,590 | $304,590 | $4.75 | | |
| COLLPLBOND | C OF CP BOND 644 | 0.4374241808 | $304,590 | $304,590 | $133.24 | | |
| COLLPLGEN | CITY OF CP 632 | 1.4453819216 | $304,590 | $304,590 | $440.25 | | |
| EMERGSER | EMS 147 | 0.3792580840 | $304,590 | $304,590 | $115.52 | | |
| EMSRFD | EMS REFUND 147 | 0.0000000000 | $304,590 | $304,590 | $0.00 | | |
| RURALLIB | RURAL LIBRARY 623 | 0.3710609029 | $304,590 | $304,590 | $113.02 | | |
| PORTRFD | PORT REFUND 640 | 0.0000000000 | $304,590 | $304,590 | $0.00 | | |
| PORTWWGEN | PORT OF WW 640 | 0.2460186015 | $304,590 | $304,590 | $74.93 | | |
| SD250BOND | SD #250 BOND 773 | 1.4560608159 | $304,590 | $304,590 | $443.50 | | |
| SD250GEN | SD #250 GENERAL 770 | 2.3880724087 | $304,590 | $304,590 | $727.38 | | |
| ST2 | STATE SCHOOL PART 2 600 | 0.8131451643 | $304,590 | $304,590 | $247.68 | | |
| STATESCHL | STATE SCHOOL 600 | 1.5158548041 | $304,590 | $304,590 | $461.71 | | |
| STREFUND | STATE REFUND LEVY 603 | 0.0000000000 | $304,590 | $304,590 | $0.00 | | |
| | Total Tax Rate: | 10.1104125603 | | | | | |
| | | | | Taxes w/Current Exemptions: | $3,079.52 | | |
| | | | | Taxes w/o Exemptions: | $3,079.52 | | |
Improvement / Building
| Improvement #1: | RESIDENTIAL | State Code: | 11 | 996.0 sqft | Value: | $264,090 |
| Exterior Wall: | PLYWOOD | Heating/Cooling: | WARM & COOLED AIR | | Number of Bathrooms: | 1 | Number of Bedrooms: | 3 | | Plumbing: | 6 | Roof Covering: | COMP SHINGLE |
|
| | Type | Description | Class CD | Sub Class CD | Year Built | Area |
| | MA | Main Area | 1 | 30 | 1972 | 996.0 |
| | SI1 | SITE IMPROVEMENT | 1 | 30 | 1972 | 1.0 |
| | BASE | BASEMENT | 1 | 30 | 1972 | 968.0 |
| | ATG | Attached Garage | 1 | 30 | 1972 | 308.0 |
| | RPO | OPEN PORCH W/ROOF | 1 | 30 | 1972 | 80.0 |
| | CPCG | CARPORT/ GABLE ROOF | 1 | 30 | 1972 | 200.0 |
Sketch
Property Image
Land
| 1 | RES 1 | Converted: Residential | 0.1377 | 6000.00 | 0.00 | 0.00 | 1.00 | $40,500 | $0 |
Roll Value History
| 2025 | N/A | N/A | N/A | N/A | N/A |
| 2024 | $264,090 | $40,500 | $0 | $304,590 | $304,590 |
| 2023 | $264,090 | $40,500 | $0 | $304,590 | $304,590 |
| 2022 | $240,080 | $40,500 | $0 | $280,580 | $280,580 |
| 2021 | $192,060 | $40,500 | $0 | $232,560 | $232,560 |
| 2020 | $167,010 | $40,500 | $0 | $207,510 | $207,510 |
| 2019 | $171,510 | $36,000 | $0 | $207,510 | $207,510 |
| 2018 | $122,510 | $36,000 | $0 | $158,510 | $158,510 |
| 2017 | $116,680 | $36,000 | $0 | $152,680 | $152,680 |
| 2016 | $97,230 | $36,000 | $0 | $133,230 | $133,230 |
| 2015 | $92,600 | $36,000 | $0 | $128,600 | $128,600 |
| 2014 | $92,600 | $36,000 | $0 | $128,600 | $128,600 |
| 2013 | $92,600 | $36,000 | $0 | $128,600 | $128,600 |
| 2012 | $92,600 | $36,000 | $0 | $0 | $0 |
| 2011 | $92,600 | $36,000 | $0 | $0 | $0 |
| 2010 | $86,500 | $36,000 | $0 | $0 | $0 |
| 2009 | $100,100 | $36,000 | $0 | $0 | $0 |
| 2008 | $73,200 | $18,000 | $0 | $0 | $0 |
| 2007 | $73,200 | $18,000 | $0 | $0 | $0 |
| 2006 | $73,200 | $18,000 | $0 | $0 | $0 |
Deed and Sales History
| 1 | 08/01/1988 | WARRANTY D | WARRANTY DEED | | | | | $39,900.00 | 0 | 1728-805835 |
Payout Agreement
| No payout information available.. |