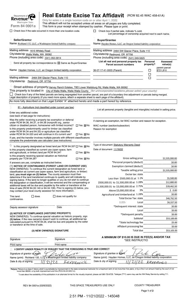
Property
Account |
| Property ID: | 4399 | Abbreviated Legal Description: | MCRAE E 201/2' OF LOT 4 BLK 1 W 591/2' OF LOT 3 BLK 1 |
| Parcel Number: | 350736570103 | Agent Code: | |
| Type: | Real | | |
| Tax Area: | 75 - CP 250 | Land Use Code | 11 |
| Open Space: | N | DFL | N |
| Historic Property: | N | Remodel Property: | N |
| Multi-Family Redevelopment: | N | | |
| Township: | 7 | Section: | 36 |
| Range: | 35 |
Location |
| Address: | 312 SE 10TH ST WA 99324 | Mapsco: | |
| Neighborhood: | A SFR | Map ID: | |
| Neighborhood CD: | 113011 |
Owner |
| Name: | GREEN PHIL B & AMIE L | Owner ID: | 16012 |
| Mailing Address: | 1120 VALLEY VISTA AVE WALLA WALLA, WA 99362 | % Ownership: | 100.0000000000% |
| | | Exemptions: | |
Taxes and Assessment Details
Values
| (+) Improvement Homesite Value: | + | $0 | |
| (+) Improvement Non-Homesite Value: | + | $269,830 | |
| (+) Land Homesite Value: | + | $0 | |
| (+) Land Non-Homesite Value: | + | $60,750 | |
| (+) Curr Use (HS): | + | $0 | $0 |
| (+) Curr Use (NHS): | + | $0 | $0 |
| | | -------------------------- | |
| (=) Market Value: | = | $330,580 | |
| (–) Productivity Loss: | – | $0 | |
| | | -------------------------- | |
| (=) Subtotal: | = | $330,580 | |
| (+) Senior Appraised Value: | + | $0 | |
| (+) Non-Senior Appraised Value: | + | $330,580 | |
| | | -------------------------- | |
| (=) Total Appraised Value: | = | $330,580 | |
| (–) Senior Exemption Loss: | – | $0 | |
| (–) Exemption Loss: | – | $0 | |
| | | -------------------------- | |
| (=) Taxable Value: | = | $330,580 | |
Taxing Jurisdiction
| Owner: | GREEN PHIL B & AMIE L | | |
| % Ownership: | 100.0000000000% | | |
| Total Value: | $330,580 | | |
| Tax Area: | 75 - CP 250 |
| CERFD | CURRENT EXPENSE REFUND 010 | 0.0000000000 | $330,580 | $330,580 | $0.00 | | |
| CURREXP | CURRENT EXPENSE 010 | 1.0175366760 | $330,580 | $330,580 | $336.38 | | |
| HUMNSERV | HUMAN SERVICES 119 | 0.0250000000 | $330,580 | $330,580 | $8.26 | | |
| SLDREL | SOLDIERS RELIEF 121 | 0.0155990005 | $330,580 | $330,580 | $5.16 | | |
| COLLPLBOND | C OF CP BOND 644 | 0.4374241808 | $330,580 | $330,580 | $144.60 | | |
| COLLPLGEN | CITY OF CP 632 | 1.4453819216 | $330,580 | $330,580 | $477.81 | | |
| EMERGSER | EMS 147 | 0.3792580840 | $330,580 | $330,580 | $125.38 | | |
| EMSRFD | EMS REFUND 147 | 0.0000000000 | $330,580 | $330,580 | $0.00 | | |
| RURALLIB | RURAL LIBRARY 623 | 0.3710609029 | $330,580 | $330,580 | $122.67 | | |
| PORTRFD | PORT REFUND 640 | 0.0000000000 | $330,580 | $330,580 | $0.00 | | |
| PORTWWGEN | PORT OF WW 640 | 0.2460186015 | $330,580 | $330,580 | $81.33 | | |
| SD250BOND | SD #250 BOND 773 | 1.4560608159 | $330,580 | $330,580 | $481.34 | | |
| SD250GEN | SD #250 GENERAL 770 | 2.3880724087 | $330,580 | $330,580 | $789.45 | | |
| ST2 | STATE SCHOOL PART 2 600 | 0.8131451643 | $330,580 | $330,580 | $268.81 | | |
| STATESCHL | STATE SCHOOL 600 | 1.5158548041 | $330,580 | $330,580 | $501.11 | | |
| STREFUND | STATE REFUND LEVY 603 | 0.0000000000 | $330,580 | $330,580 | $0.00 | | |
| | Total Tax Rate: | 10.1104125603 | | | | | |
| | | | | Taxes w/Current Exemptions: | $3,342.30 | | |
| | | | | Taxes w/o Exemptions: | $3,342.30 | | |
Improvement / Building
| Improvement #1: | RESIDENTIAL | State Code: | 11 | 1574.0 sqft | Value: | $269,830 |
| Exterior Wall: | SIDING | Foundation: | SLAB FOUNDATION | | Heating/Cooling: | BASEBOARD ELECTRIC | Number of Bathrooms: | 1 | | Number of Bedrooms: | 3 | Plumbing: | 6 | | Roof Covering: | COMP SHINGLE |   |   |
|
| | Type | Description | Class CD | Sub Class CD | Year Built | Area |
| | MA | Main Area | 1 | 30 | 1961 | 1574.0 |
| | SI1 | SITE IMPROVEMENT | 1 | 30 | 1961 | 1.5 |
| | RPO | OPEN PORCH W/ROOF | 1 | 30 | 1961 | 12.0 |
| | S1F | Single One Story Fireplace | 1 | 30 | 1961 | 1.0 |
| | CPCG | CARPORT/ GABLE ROOF | 1 | 30 | 1961 | 260.0 |
Sketch
Property Image
Land
| 1 | RES 1 | Converted: Residential | 0.2066 | 9000.00 | 0.00 | 0.00 | 1.00 | $60,750 | $0 |
Roll Value History
| 2025 | N/A | N/A | N/A | N/A | N/A |
| 2024 | $269,830 | $60,750 | $0 | $330,580 | $330,580 |
| 2023 | $269,830 | $60,750 | $0 | $330,580 | $330,580 |
| 2022 | $256,980 | $60,750 | $0 | $317,730 | $317,730 |
| 2021 | $197,680 | $60,750 | $0 | $258,430 | $258,430 |
| 2020 | $152,060 | $60,750 | $0 | $212,810 | $212,810 |
| 2019 | $166,510 | $46,300 | $0 | $212,810 | $212,810 |
| 2018 | $144,790 | $46,300 | $0 | $191,090 | $191,090 |
| 2017 | $120,660 | $46,300 | $0 | $166,960 | $166,960 |
| 2016 | $100,550 | $46,300 | $0 | $146,850 | $146,850 |
| 2015 | $95,760 | $46,300 | $0 | $142,060 | $142,060 |
| 2014 | $100,800 | $46,300 | $0 | $147,100 | $147,100 |
| 2013 | $100,800 | $46,300 | $0 | $147,100 | $147,100 |
| 2012 | $100,800 | $46,300 | $0 | $0 | $0 |
| 2011 | $100,800 | $46,300 | $0 | $0 | $0 |
| 2010 | $100,800 | $46,300 | $0 | $0 | $0 |
Deed and Sales History
| 1 | 02/14/2013 | WARRANTY D | WARRANTY DEED | BEAM JEREMY V & ANGELA R | GREEN PHIL B & AMIE L | | | $145,000.00 | 123453 | 2013-01308 |
|   | |
| 2 | 03/02/2005 | WARRANTY D | WARRANTY DEED | CLARK MILTON D & ELENA C | BEAM JEREMY V & ANGELA R | | | $141,700.00 | 106900 | 2005-02404 |
|   | |
| 3 | 04/30/2001 | WARRANTY D | WARRANTY DEED | | | | | $106,356.00 | 97064 | 3120-104289 |
|   | |
Payout Agreement
| No payout information available.. |