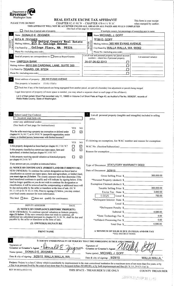
Property
Account |
| Property ID: | 4395 | Abbreviated Legal Description: | KINZERS LOT 9 BLK 2 |
| Parcel Number: | 350736560209 | Agent Code: | |
| Type: | Real | | |
| Tax Area: | 77 - CP-250-F | Land Use Code | 11 |
| Open Space: | N | DFL | N |
| Historic Property: | N | Remodel Property: | N |
| Multi-Family Redevelopment: | N | | |
| Township: | 7 | Section: | 36 |
| Range: | 35 |
Location |
| Address: | 1215 SE DEWEY DR WA 99324 | Mapsco: | |
| Neighborhood: | A Superior SFR | Map ID: | |
| Neighborhood CD: | 113211 |
Owner |
| Name: | BLAIR TIMOTHY LEE & RENA JEAN | Owner ID: | 59046 |
| Mailing Address: | 1215 SE DEWEY DR COLLEGE PLACE, WA 99324 | % Ownership: | 100.0000000000% |
| | | Exemptions: | |
Taxes and Assessment Details
Values
| (+) Improvement Homesite Value: | + | $0 | |
| (+) Improvement Non-Homesite Value: | + | $186,420 | |
| (+) Land Homesite Value: | + | $0 | |
| (+) Land Non-Homesite Value: | + | $70,000 | |
| (+) Curr Use (HS): | + | $0 | $0 |
| (+) Curr Use (NHS): | + | $0 | $0 |
| | | -------------------------- | |
| (=) Market Value: | = | $256,420 | |
| (–) Productivity Loss: | – | $0 | |
| | | -------------------------- | |
| (=) Subtotal: | = | $256,420 | |
| (+) Senior Appraised Value: | + | $0 | |
| (+) Non-Senior Appraised Value: | + | $256,420 | |
| | | -------------------------- | |
| (=) Total Appraised Value: | = | $256,420 | |
| (–) Senior Exemption Loss: | – | $0 | |
| (–) Exemption Loss: | – | $0 | |
| | | -------------------------- | |
| (=) Taxable Value: | = | $256,420 | |
Taxing Jurisdiction
| Owner: | BLAIR TIMOTHY LEE & RENA JEAN | | |
| % Ownership: | 100.0000000000% | | |
| Total Value: | $256,420 | | |
| Tax Area: | 77 - CP-250-F |
| CERFD | CURRENT EXPENSE REFUND 010 | 0.0000000000 | $256,420 | $256,420 | $0.00 | | |
| CURREXP | CURRENT EXPENSE 010 | 1.0175366760 | $256,420 | $256,420 | $260.92 | | |
| HUMNSERV | HUMAN SERVICES 119 | 0.0250000000 | $256,420 | $256,420 | $6.41 | | |
| SLDREL | SOLDIERS RELIEF 121 | 0.0155990005 | $256,420 | $256,420 | $4.00 | | |
| COLLPLBOND | C OF CP BOND 644 | 0.4374241808 | $256,420 | $256,420 | $112.16 | | |
| COLLPLGEN | CITY OF CP 632 | 1.4453819216 | $256,420 | $256,420 | $370.62 | | |
| EMERGSER | EMS 147 | 0.3792580840 | $256,420 | $256,420 | $97.25 | | |
| EMSRFD | EMS REFUND 147 | 0.0000000000 | $256,420 | $256,420 | $0.00 | | |
| RURALLIB | RURAL LIBRARY 623 | 0.3710609029 | $256,420 | $256,420 | $95.15 | | |
| PORTRFD | PORT REFUND 640 | 0.0000000000 | $256,420 | $256,420 | $0.00 | | |
| PORTWWGEN | PORT OF WW 640 | 0.2460186015 | $256,420 | $256,420 | $63.08 | | |
| SD250BOND | SD #250 BOND 773 | 1.4560608159 | $256,420 | $256,420 | $373.36 | | |
| SD250GEN | SD #250 GENERAL 770 | 2.3880724087 | $256,420 | $256,420 | $612.35 | | |
| ST2 | STATE SCHOOL PART 2 600 | 0.8131451643 | $256,420 | $256,420 | $208.51 | | |
| STATESCHL | STATE SCHOOL 600 | 1.5158548041 | $256,420 | $256,420 | $388.70 | | |
| STREFUND | STATE REFUND LEVY 603 | 0.0000000000 | $256,420 | $256,420 | $0.00 | | |
| | Total Tax Rate: | 10.1104125603 | | | | | |
| | | | | Taxes w/Current Exemptions: | $2,592.51 | | |
| | | | | Taxes w/o Exemptions: | $2,592.51 | | |
Improvement / Building
| Improvement #1: | RESIDENTIAL | State Code: | 11 | 1406.0 sqft | Value: | $186,420 |
| Exterior Wall: | SIDING | Foundation: | SLAB FOUNDATION | | Heating/Cooling: | HEAT PUMP | Number of Bathrooms: | 2 | | Number of Bedrooms: | 3 | Plumbing: | 9 | | Roof Covering: | GALVANIZED METAL |   |   |
|
| | Type | Description | Class CD | Sub Class CD | Year Built | Area |
| | MA | Main Area | 1 | 30 | 1960 | 1406.0 |
| | SI1 | SITE IMPROVEMENT | 1 | 30 | 1960 | 1.5 |
| | S1F | Single One Story Fireplace | 1 | 30 | 1960 | 1.0 |
| | CPC | COVERED CARPORT/PATIO | 1 | 30 | 1960 | 360.0 |
| | CPC | COVERED CARPORT/PATIO | 1 | 30 | 2020 | 442.0 |
Sketch
Property Image
Land
| 1 | RES 1 | Converted: Residential | 0.1946 | 8475.00 | 0.00 | 0.00 | 1.00 | $70,000 | $0 |
Roll Value History
| 2025 | N/A | N/A | N/A | N/A | N/A |
| 2024 | $186,420 | $70,000 | $0 | $256,420 | $256,420 |
| 2023 | $186,420 | $70,000 | $0 | $256,420 | $256,420 |
| 2022 | $177,540 | $70,000 | $0 | $247,540 | $247,540 |
| 2021 | $147,950 | $70,000 | $0 | $217,950 | $217,950 |
| 2020 | $95,300 | $70,000 | $0 | $165,300 | $165,300 |
| 2019 | $105,300 | $60,000 | $0 | $165,300 | $165,300 |
| 2018 | $81,000 | $60,000 | $0 | $141,000 | $141,000 |
| 2017 | $81,000 | $60,000 | $0 | $141,000 | $141,000 |
| 2016 | $81,000 | $60,000 | $0 | $141,000 | $141,000 |
| 2015 | $81,000 | $60,000 | $0 | $141,000 | $141,000 |
| 2014 | $90,000 | $60,000 | $0 | $150,000 | $150,000 |
| 2013 | $90,000 | $60,000 | $0 | $150,000 | $150,000 |
| 2012 | $90,000 | $60,000 | $0 | $0 | $0 |
| 2011 | $90,000 | $60,000 | $0 | $0 | $0 |
| 2010 | $90,000 | $60,000 | $0 | $0 | $0 |
| 2009 | $97,900 | $60,000 | $0 | $0 | $0 |
| 2008 | $85,000 | $23,400 | $0 | $0 | $0 |
| 2007 | $85,000 | $23,400 | $0 | $0 | $0 |
| 2006 | $85,000 | $23,400 | $0 | $0 | $0 |
Deed and Sales History
| 1 | 06/28/2016 | SWD | STATUTORY WARRANTY DEED | POPPLEWELL HAROLD & SHIRLEY | BLAIR TIMOTHY LEE & RENA JEAN | | | $141,000.00 | 130507 | 2016-04981 |
| 2 | 12/28/1971 | WARRANTY D | WARRANTY DEED | | | | | $18,250.00 | 0 | 1919-106227 |
Payout Agreement
| No payout information available.. |