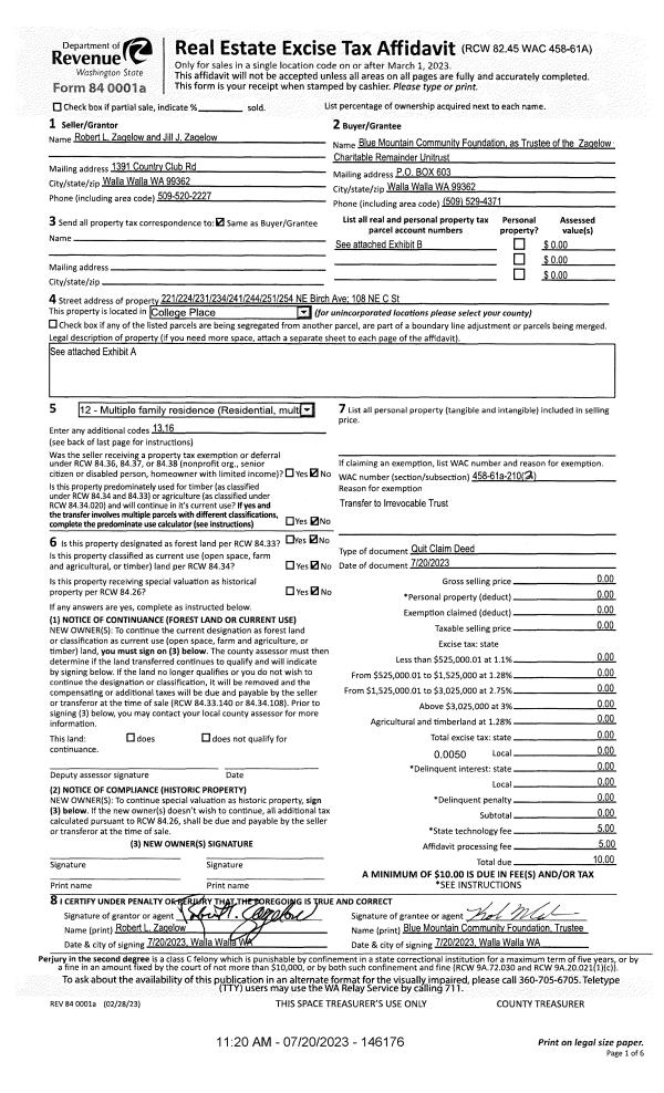
Property
Account |
| Property ID: | 4364 | Abbreviated Legal Description: | HIGHLAND PARK LOT 5 BLK 5 |
| Parcel Number: | 350736540505 | Agent Code: | |
| Type: | Real | | |
| Tax Area: | 77 - CP-250-F | Land Use Code | 11 |
| Open Space: | N | DFL | N |
| Historic Property: | N | Remodel Property: | N |
| Multi-Family Redevelopment: | N | | |
| Township: | 7 | Section: | 36 |
| Range: | 35 |
Location |
| Address: | 388 SE HIGHLAND PARK DR WA 99324 | Mapsco: | |
| Neighborhood: | A Superior SFR | Map ID: | |
| Neighborhood CD: | 113211 |
Owner |
| Name: | BRYAN WILLIAM A IV | Owner ID: | 47230 |
| Mailing Address: | NICOLE WARD BRYAN 388 SE HIGLAND PARK DR COLLEGE PLACE, WA 99324 | % Ownership: | 100.0000000000% |
| | | Exemptions: | |
Taxes and Assessment Details
Values
| (+) Improvement Homesite Value: | + | $0 | |
| (+) Improvement Non-Homesite Value: | + | $398,630 | |
| (+) Land Homesite Value: | + | $0 | |
| (+) Land Non-Homesite Value: | + | $75,000 | |
| (+) Curr Use (HS): | + | $0 | $0 |
| (+) Curr Use (NHS): | + | $0 | $0 |
| | | -------------------------- | |
| (=) Market Value: | = | $473,630 | |
| (–) Productivity Loss: | – | $0 | |
| | | -------------------------- | |
| (=) Subtotal: | = | $473,630 | |
| (+) Senior Appraised Value: | + | $0 | |
| (+) Non-Senior Appraised Value: | + | $473,630 | |
| | | -------------------------- | |
| (=) Total Appraised Value: | = | $473,630 | |
| (–) Senior Exemption Loss: | – | $0 | |
| (–) Exemption Loss: | – | $0 | |
| | | -------------------------- | |
| (=) Taxable Value: | = | $473,630 | |
Taxing Jurisdiction
| Owner: | BRYAN WILLIAM A IV | | |
| % Ownership: | 100.0000000000% | | |
| Total Value: | $473,630 | | |
| Tax Area: | 77 - CP-250-F |
| CERFD | CURRENT EXPENSE REFUND 010 | 0.0000000000 | $473,630 | $473,630 | $0.00 | | |
| CURREXP | CURRENT EXPENSE 010 | 1.0175366760 | $473,630 | $473,630 | $481.94 | | |
| HUMNSERV | HUMAN SERVICES 119 | 0.0250000000 | $473,630 | $473,630 | $11.84 | | |
| SLDREL | SOLDIERS RELIEF 121 | 0.0155990005 | $473,630 | $473,630 | $7.39 | | |
| COLLPLBOND | C OF CP BOND 644 | 0.4374241808 | $473,630 | $473,630 | $207.18 | | |
| COLLPLGEN | CITY OF CP 632 | 1.4453819216 | $473,630 | $473,630 | $684.58 | | |
| EMERGSER | EMS 147 | 0.3792580840 | $473,630 | $473,630 | $179.63 | | |
| EMSRFD | EMS REFUND 147 | 0.0000000000 | $473,630 | $473,630 | $0.00 | | |
| RURALLIB | RURAL LIBRARY 623 | 0.3710609029 | $473,630 | $473,630 | $175.75 | | |
| PORTRFD | PORT REFUND 640 | 0.0000000000 | $473,630 | $473,630 | $0.00 | | |
| PORTWWGEN | PORT OF WW 640 | 0.2460186015 | $473,630 | $473,630 | $116.52 | | |
| SD250BOND | SD #250 BOND 773 | 1.4560608159 | $473,630 | $473,630 | $689.63 | | |
| SD250GEN | SD #250 GENERAL 770 | 2.3880724087 | $473,630 | $473,630 | $1,131.06 | | |
| ST2 | STATE SCHOOL PART 2 600 | 0.8131451643 | $473,630 | $473,630 | $385.13 | | |
| STATESCHL | STATE SCHOOL 600 | 1.5158548041 | $473,630 | $473,630 | $717.95 | | |
| STREFUND | STATE REFUND LEVY 603 | 0.0000000000 | $473,630 | $473,630 | $0.00 | | |
| | Total Tax Rate: | 10.1104125603 | | | | | |
| | | | | Taxes w/Current Exemptions: | $4,788.60 | | |
| | | | | Taxes w/o Exemptions: | $4,788.60 | | |
Improvement / Building
| Improvement #1: | RESIDENTIAL | State Code: | 11 | 1938.0 sqft | Value: | $398,630 |
| Exterior Wall: | SIDING | Heating/Cooling: | WARM & COOLED AIR | | Number of Bathrooms: | 2 | Number of Bedrooms: | 3 | | Plumbing: | 9 | Roof Covering: | COMP SHINGLE |
|
| | Type | Description | Class CD | Sub Class CD | Year Built | Area |
| | MA | Main Area | 1 | 40 | 1965 | 1938.0 |
| | SI1 | SITE IMPROVEMENT | 1 | 40 | 1965 | 2.5 |
| | BASE | BASEMENT | 1 | 40 | 1965 | 1938.0 |
| | ATG | Attached Garage | 1 | 40 | 1965 | 768.0 |
| | D2F | Double 2 Story Fireplace | 1 | 40 | 1965 | 1.0 |
| | RPC | OPEN PORCH W/ROOF , CEILED | 1 | 40 | 1965 | 120.0 |
Sketch
Property Image
Land
| 1 | RES 1 | Converted: Residential | 0.3472 | 15124.03 | 0.00 | 0.00 | 1.00 | $75,000 | $0 |
Roll Value History
| 2025 | N/A | N/A | N/A | N/A | N/A |
| 2024 | $418,560 | $75,000 | $0 | $493,560 | $493,560 |
| 2023 | $398,630 | $75,000 | $0 | $473,630 | $473,630 |
| 2022 | $362,390 | $75,000 | $0 | $437,390 | $437,390 |
| 2021 | $301,990 | $75,000 | $0 | $376,990 | $376,990 |
| 2020 | $215,710 | $75,000 | $0 | $290,710 | $290,710 |
| 2019 | $230,710 | $60,000 | $0 | $290,710 | $290,710 |
| 2018 | $200,620 | $60,000 | $0 | $260,620 | $260,620 |
| 2017 | $194,780 | $60,000 | $0 | $254,780 | $254,780 |
| 2016 | $185,500 | $60,000 | $0 | $245,500 | $245,500 |
| 2015 | $185,500 | $60,000 | $0 | $245,500 | $245,500 |
| 2014 | $185,500 | $60,000 | $0 | $245,500 | $245,500 |
| 2013 | $185,500 | $60,000 | $0 | $245,500 | $245,500 |
| 2012 | $185,500 | $60,000 | $0 | $0 | $0 |
| 2011 | $185,500 | $60,000 | $0 | $0 | $0 |
| 2010 | $195,800 | $60,000 | $0 | $0 | $0 |
| 2009 | $209,300 | $60,000 | $0 | $0 | $0 |
| 2008 | $167,800 | $30,000 | $0 | $0 | $0 |
| 2007 | $167,800 | $30,000 | $0 | $0 | $0 |
| 2006 | $167,800 | $30,000 | $0 | $0 | $0 |
Deed and Sales History
| 1 | 12/30/2024 | SURVEY | SURVEY | | | 14 | 228 | | 0 | 2024-07468 |
| 2 | 08/30/2024 | QCD | QUIT CLAIM DEED | MANY WATERS LLC | BRYAN WILLIAM A IV | | | $28,000.00 | 148127 | 2024-04921 |
| 3 | 05/22/2009 | WARRANTY D | WARRANTY DEED | UPPER COLUMBIA MISSION SOC SDA | BRYAN WILLIAM A IV | | | $250,000.00 | 116778 | 2009-05143 |
|   | |
| 4 | 03/30/1990 | QCD | QUIT CLAIM DEED | | | | | $0.00 | 0 | 1819-002105 |
Payout Agreement
| No payout information available.. |