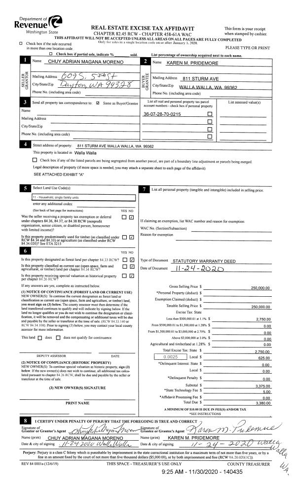
Property
Account |
| Property ID: | 4360 | Abbreviated Legal Description: | HIGHLAND PARK LOT 3 BLK 4 |
| Parcel Number: | 350736540403 | Agent Code: | |
| Type: | Real | | |
| Tax Area: | 77 - CP-250-F | Land Use Code | 11 |
| Open Space: | N | DFL | N |
| Historic Property: | N | Remodel Property: | N |
| Multi-Family Redevelopment: | N | | |
| Township: | 7 | Section: | 36 |
| Range: | 35 |
Location |
| Address: | 385 SE HIGHLAND PARK DR WA 99324 | Mapsco: | |
| Neighborhood: | A Superior SFR | Map ID: | |
| Neighborhood CD: | 113211 |
Owner |
| Name: | FIELD SUE ALLISON TRUST | Owner ID: | 68018 |
| Mailing Address: | 664 GOLDEN WEST DRIVE REDLANDS, CA 92373 | % Ownership: | 100.0000000000% |
| | | Exemptions: | |
Taxes and Assessment Details
Values
| (+) Improvement Homesite Value: | + | $0 | |
| (+) Improvement Non-Homesite Value: | + | $399,510 | |
| (+) Land Homesite Value: | + | $0 | |
| (+) Land Non-Homesite Value: | + | $75,000 | |
| (+) Curr Use (HS): | + | $0 | $0 |
| (+) Curr Use (NHS): | + | $0 | $0 |
| | | -------------------------- | |
| (=) Market Value: | = | $474,510 | |
| (–) Productivity Loss: | – | $0 | |
| | | -------------------------- | |
| (=) Subtotal: | = | $474,510 | |
| (+) Senior Appraised Value: | + | $0 | |
| (+) Non-Senior Appraised Value: | + | $474,510 | |
| | | -------------------------- | |
| (=) Total Appraised Value: | = | $474,510 | |
| (–) Senior Exemption Loss: | – | $0 | |
| (–) Exemption Loss: | – | $0 | |
| | | -------------------------- | |
| (=) Taxable Value: | = | $474,510 | |
Taxing Jurisdiction
| Owner: | FIELD SUE ALLISON TRUST | | |
| % Ownership: | 100.0000000000% | | |
| Total Value: | $474,510 | | |
| Tax Area: | 77 - CP-250-F |
| CERFD | CURRENT EXPENSE REFUND 010 | 0.0000000000 | $474,510 | $474,510 | $0.00 | | |
| CURREXP | CURRENT EXPENSE 010 | 1.0175366760 | $474,510 | $474,510 | $482.83 | | |
| HUMNSERV | HUMAN SERVICES 119 | 0.0250000000 | $474,510 | $474,510 | $11.86 | | |
| SLDREL | SOLDIERS RELIEF 121 | 0.0155990005 | $474,510 | $474,510 | $7.40 | | |
| COLLPLBOND | C OF CP BOND 644 | 0.4374241808 | $474,510 | $474,510 | $207.56 | | |
| COLLPLGEN | CITY OF CP 632 | 1.4453819216 | $474,510 | $474,510 | $685.85 | | |
| EMERGSER | EMS 147 | 0.3792580840 | $474,510 | $474,510 | $179.96 | | |
| EMSRFD | EMS REFUND 147 | 0.0000000000 | $474,510 | $474,510 | $0.00 | | |
| RURALLIB | RURAL LIBRARY 623 | 0.3710609029 | $474,510 | $474,510 | $176.07 | | |
| PORTRFD | PORT REFUND 640 | 0.0000000000 | $474,510 | $474,510 | $0.00 | | |
| PORTWWGEN | PORT OF WW 640 | 0.2460186015 | $474,510 | $474,510 | $116.74 | | |
| SD250BOND | SD #250 BOND 773 | 1.4560608159 | $474,510 | $474,510 | $690.92 | | |
| SD250GEN | SD #250 GENERAL 770 | 2.3880724087 | $474,510 | $474,510 | $1,133.16 | | |
| ST2 | STATE SCHOOL PART 2 600 | 0.8131451643 | $474,510 | $474,510 | $385.85 | | |
| STATESCHL | STATE SCHOOL 600 | 1.5158548041 | $474,510 | $474,510 | $719.29 | | |
| STREFUND | STATE REFUND LEVY 603 | 0.0000000000 | $474,510 | $474,510 | $0.00 | | |
| | Total Tax Rate: | 10.1104125603 | | | | | |
| | | | | Taxes w/Current Exemptions: | $4,797.49 | | |
| | | | | Taxes w/o Exemptions: | $4,797.49 | | |
Improvement / Building
| Improvement #1: | RESIDENTIAL | State Code: | 11 | 2618.0 sqft | Value: | $399,510 |
| Exterior Wall: | PLYWOOD | Heating/Cooling: | REV-HEAT-PUMP-W/DUCT | | Number of Bathrooms: | 3 | Number of Bedrooms: | 5 | | Plumbing: | 15 | Roof Covering: | COMP SHINGLE |
|
| | Type | Description | Class CD | Sub Class CD | Year Built | Area |
| | MA | Main Area | 2 | 40 | 1965 | 2618.0 |
| | UPFL | Upper Floor (included in main area) | 2 | 40 | 1965 | 1248.0 |
| | SI1 | SITE IMPROVEMENT | 2 | 40 | 1965 | 2.0 |
| | BASE | BASEMENT | 2 | 40 | 1965 | 1152.0 |
| | ATG | Attached Garage | 2 | 40 | 1965 | 480.0 |
| | S1F | Single One Story Fireplace | 2 | 40 | 1965 | 2.0 |
| | RPC | OPEN PORCH W/ROOF , CEILED | 2 | 40 | 1965 | 214.0 |
Sketch
Property Image
Land
| 1 | RES 1 | Converted: Residential | 0.3168 | 13800.00 | 0.00 | 0.00 | 1.00 | $75,000 | $0 |
Roll Value History
| 2025 | N/A | N/A | N/A | N/A | N/A |
| 2024 | $399,510 | $75,000 | $0 | $474,510 | $474,510 |
| 2023 | $399,510 | $75,000 | $0 | $474,510 | $474,510 |
| 2022 | $363,190 | $75,000 | $0 | $438,190 | $438,190 |
| 2021 | $302,660 | $75,000 | $0 | $377,660 | $377,660 |
| 2020 | $263,180 | $75,000 | $0 | $338,180 | $338,180 |
| 2019 | $278,180 | $60,000 | $0 | $338,180 | $338,180 |
| 2018 | $206,060 | $60,000 | $0 | $266,060 | $266,060 |
| 2017 | $206,060 | $60,000 | $0 | $266,060 | $266,060 |
| 2016 | $196,250 | $60,000 | $0 | $256,250 | $256,250 |
| 2015 | $186,900 | $60,000 | $0 | $246,900 | $246,900 |
| 2014 | $186,900 | $60,000 | $0 | $246,900 | $246,900 |
| 2013 | $186,900 | $60,000 | $0 | $246,900 | $246,900 |
| 2012 | $186,900 | $60,000 | $0 | $0 | $0 |
| 2011 | $186,900 | $60,000 | $0 | $0 | $0 |
| 2010 | $186,900 | $60,000 | $0 | $0 | $0 |
| 2009 | $199,900 | $60,000 | $0 | $0 | $0 |
| 2008 | $174,300 | $30,000 | $0 | $0 | $0 |
| 2007 | $174,300 | $30,000 | $0 | $0 | $0 |
| 2006 | $174,300 | $30,000 | $0 | $0 | $0 |
Deed and Sales History
| 1 | 10/02/2020 | QCD | QUIT CLAIM DEED | FIELD SUE ALLISON | FIELD SUE ALLISON TRUST | | | | 140024 | 2020-10139 |
| 2 | 10/15/1999 | WARRANTY D | WARRANTY DEED | | | | | $186,000.00 | 93833 | 2909-911914 |
Payout Agreement
| No payout information available.. |