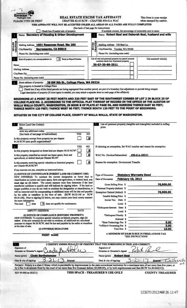
Property
Account |
| Property ID: | 4319 | Abbreviated Legal Description: | CP #1 TAX 5 BLK 21 |
| Parcel Number: | 350736512109 | Agent Code: | |
| Type: | Real | | |
| Tax Area: | 75 - CP 250 | Land Use Code | 11 |
| Open Space: | N | DFL | N |
| Historic Property: | N | Remodel Property: | N |
| Multi-Family Redevelopment: | N | | |
| Township: | 7 | Section: | 36 |
| Range: | 35 |
Location |
| Address: | 205 SE 4TH ST APT 1 WA 99324 | Mapsco: | |
| Neighborhood: | A SFR | Map ID: | |
| Neighborhood CD: | 113011 |
Owner |
| Name: | LIBBY JOEL T & CYNTHIA | Owner ID: | 55225 |
| Mailing Address: | 26 NE TREMONT DR COLLEGE PLACE, WA 99324 | % Ownership: | 100.0000000000% |
| | | Exemptions: | |
Taxes and Assessment Details
Values
| (+) Improvement Homesite Value: | + | $0 | |
| (+) Improvement Non-Homesite Value: | + | $363,530 | |
| (+) Land Homesite Value: | + | $0 | |
| (+) Land Non-Homesite Value: | + | $50,630 | |
| (+) Curr Use (HS): | + | $0 | $0 |
| (+) Curr Use (NHS): | + | $0 | $0 |
| | | -------------------------- | |
| (=) Market Value: | = | $414,160 | |
| (–) Productivity Loss: | – | $0 | |
| | | -------------------------- | |
| (=) Subtotal: | = | $414,160 | |
| (+) Senior Appraised Value: | + | $0 | |
| (+) Non-Senior Appraised Value: | + | $414,160 | |
| | | -------------------------- | |
| (=) Total Appraised Value: | = | $414,160 | |
| (–) Senior Exemption Loss: | – | $0 | |
| (–) Exemption Loss: | – | $0 | |
| | | -------------------------- | |
| (=) Taxable Value: | = | $414,160 | |
Taxing Jurisdiction
| Owner: | LIBBY JOEL T & CYNTHIA | | |
| % Ownership: | 100.0000000000% | | |
| Total Value: | $414,160 | | |
| Tax Area: | 75 - CP 250 |
| CERFD | CURRENT EXPENSE REFUND 010 | 0.0000000000 | $414,160 | $414,160 | $0.00 | | |
| CURREXP | CURRENT EXPENSE 010 | 1.0175366760 | $414,160 | $414,160 | $421.42 | | |
| HUMNSERV | HUMAN SERVICES 119 | 0.0250000000 | $414,160 | $414,160 | $10.35 | | |
| SLDREL | SOLDIERS RELIEF 121 | 0.0155990005 | $414,160 | $414,160 | $6.46 | | |
| COLLPLBOND | C OF CP BOND 644 | 0.4374241808 | $414,160 | $414,160 | $181.16 | | |
| COLLPLGEN | CITY OF CP 632 | 1.4453819216 | $414,160 | $414,160 | $598.62 | | |
| EMERGSER | EMS 147 | 0.3792580840 | $414,160 | $414,160 | $157.07 | | |
| EMSRFD | EMS REFUND 147 | 0.0000000000 | $414,160 | $414,160 | $0.00 | | |
| RURALLIB | RURAL LIBRARY 623 | 0.3710609029 | $414,160 | $414,160 | $153.68 | | |
| PORTRFD | PORT REFUND 640 | 0.0000000000 | $414,160 | $414,160 | $0.00 | | |
| PORTWWGEN | PORT OF WW 640 | 0.2460186015 | $414,160 | $414,160 | $101.89 | | |
| SD250BOND | SD #250 BOND 773 | 1.4560608159 | $414,160 | $414,160 | $603.04 | | |
| SD250GEN | SD #250 GENERAL 770 | 2.3880724087 | $414,160 | $414,160 | $989.04 | | |
| ST2 | STATE SCHOOL PART 2 600 | 0.8131451643 | $414,160 | $414,160 | $336.77 | | |
| STATESCHL | STATE SCHOOL 600 | 1.5158548041 | $414,160 | $414,160 | $627.81 | | |
| STREFUND | STATE REFUND LEVY 603 | 0.0000000000 | $414,160 | $414,160 | $0.00 | | |
| | Total Tax Rate: | 10.1104125603 | | | | | |
| | | | | Taxes w/Current Exemptions: | $4,187.31 | | |
| | | | | Taxes w/o Exemptions: | $4,187.31 | | |
Improvement / Building
| Improvement #1: | RESIDENTIAL | State Code: | 11 | 1306.0 sqft | Value: | $363,530 |
| Exterior Wall: | SIDING | Heating/Cooling: | WARM & COOLED AIR | | Number of Bathrooms: | 2 | Number of Bedrooms: | 4 | | Plumbing: | 11 | Roof Covering: | COMP SHINGLE |
|
| | Type | Description | Class CD | Sub Class CD | Year Built | Area |
| | MA | Main Area | 4 | 30 | 2019 | 1306.0 |
| | UPFL | Upper Floor (included in main area) | 4 | 30 | 2019 | 240.0 |
| | SI1 | SITE IMPROVEMENT | 4 | 30 | 2019 | 1.5 |
| | BASE | BASEMENT | 4 | 30 | 2019 | 940.0 |
| | BPF | BASEMENT -PARTITIONED FINISH | 4 | 30 | 2019 | 545.0 |
| | DTG | Detached Garage | 4 | 30 | 2019 | 240.0 |
| | S1F | Single One Story Fireplace | 4 | 30 | 2019 | 1.0 |
| | OUT | OUTSIDE BASEMENT ENTRY | 4 | 30 | 2019 | 1.0 |
| | CPC | COVERED CARPORT/PATIO | 4 | 30 | 2019 | 390.0 |
| | SOLR | SOLAR POWER PANELS | 4 | 30 | 2019 | 25.0 |
Sketch
Property Image
Land
| 1 | RES 1 | Converted: Residential | 0.1722 | 7500.00 | 0.00 | 0.00 | 1.00 | $50,630 | $0 |
Roll Value History
| 2025 | N/A | N/A | N/A | N/A | N/A |
| 2024 | $363,530 | $50,630 | $0 | $414,160 | $414,160 |
| 2023 | $363,530 | $50,630 | $0 | $414,160 | $414,160 |
| 2022 | $250,320 | $50,630 | $0 | $300,950 | $300,950 |
| 2021 | $192,560 | $50,630 | $0 | $243,190 | $243,190 |
| 2020 | $137,540 | $50,630 | $0 | $188,170 | $188,170 |
| 2019 | $121,080 | $45,000 | $0 | $166,080 | $166,080 |
| 2018 | $100,900 | $45,000 | $0 | $145,900 | $145,900 |
| 2017 | $100,900 | $45,000 | $0 | $145,900 | $145,900 |
| 2016 | $91,730 | $45,000 | $0 | $136,730 | $136,730 |
| 2015 | $91,730 | $45,000 | $0 | $136,730 | $136,730 |
| 2014 | $122,300 | $45,000 | $0 | $167,300 | $167,300 |
| 2013 | $122,300 | $45,000 | $0 | $167,300 | $167,300 |
| 2012 | $122,300 | $45,000 | $0 | $0 | $0 |
| 2011 | $122,300 | $45,000 | $0 | $0 | $0 |
| 2010 | $107,100 | $45,000 | $0 | $0 | $0 |
| 2009 | $124,000 | $45,000 | $0 | $0 | $0 |
| 2008 | $64,000 | $22,500 | $0 | $0 | $0 |
| 2007 | $64,000 | $22,500 | $0 | $0 | $0 |
| 2006 | $64,000 | $22,500 | $0 | $0 | $0 |
Deed and Sales History
| 1 | 04/28/2025 | SWD | STATUTORY WARRANTY DEED | LIBBY JOEL T & CYNTHIA | BRIGGS WILLIAM CHANDLER | | | $377,568.00 | 149303 | 2025-02252 |
| 2 | 07/25/2014 | SWD | STATUTORY WARRANTY DEED | CORBETT ARTHUR W & ARBUTUS | LIBBY JOEL T & CYNTHIA | | | $135,000.00 | 126330 | 2014-05273 |
| 3 | 05/17/2002 | WARRANTY D | WARRANTY DEED | | | | | $81,000.00 | 99526 | 2002-0005850 |
Payout Agreement
| No payout information available.. |