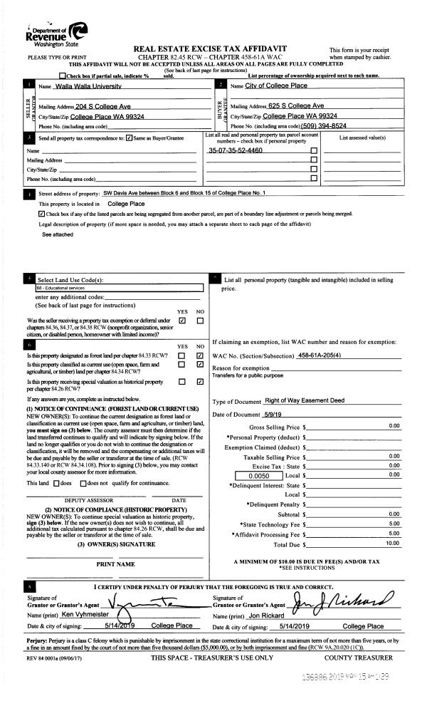
Property
Account |
| Property ID: | 4242 | Abbreviated Legal Description: | ELLIS'S ADDITION PARCEL 2 |
| Parcel Number: | 350735610002 | Agent Code: | |
| Type: | Real | | |
| Tax Area: | 75 - CP 250 | Land Use Code | 13 |
| Open Space: | N | DFL | N |
| Historic Property: | N | Remodel Property: | N |
| Multi-Family Redevelopment: | N | | |
| Township: | 7 | Section: | 35 |
| Range: | 35 |
Location |
| Address: | 1011 SW PUFF LN WA 99324 | Mapsco: | |
| Neighborhood: | A Apartment | Map ID: | |
| Neighborhood CD: | 113021 |
Owner |
| Name: | PUFF LANE LLC | Owner ID: | 59754 |
| Mailing Address: | C/O FOR THE GIRLS LLC 12909 SW 68TH PKWY, STE. 430 TIGARD, OR 97223 | % Ownership: | 100.0000000000% |
| | | Exemptions: | |
Taxes and Assessment Details
Values
| (+) Improvement Homesite Value: | + | $0 | |
| (+) Improvement Non-Homesite Value: | + | $1,332,100 | |
| (+) Land Homesite Value: | + | $0 | |
| (+) Land Non-Homesite Value: | + | $59,400 | |
| (+) Curr Use (HS): | + | $0 | $0 |
| (+) Curr Use (NHS): | + | $0 | $0 |
| | | -------------------------- | |
| (=) Market Value: | = | $1,391,500 | |
| (–) Productivity Loss: | – | $0 | |
| | | -------------------------- | |
| (=) Subtotal: | = | $1,391,500 | |
| (+) Senior Appraised Value: | + | $0 | |
| (+) Non-Senior Appraised Value: | + | $1,391,500 | |
| | | -------------------------- | |
| (=) Total Appraised Value: | = | $1,391,500 | |
| (–) Senior Exemption Loss: | – | $0 | |
| (–) Exemption Loss: | – | $0 | |
| | | -------------------------- | |
| (=) Taxable Value: | = | $1,391,500 | |
Taxing Jurisdiction
| Owner: | PUFF LANE LLC | | |
| % Ownership: | 100.0000000000% | | |
| Total Value: | $1,391,500 | | |
| Tax Area: | 75 - CP 250 |
| CERFD | CURRENT EXPENSE REFUND 010 | 0.0000000000 | $1,391,500 | $1,391,500 | $0.00 | | |
| CURREXP | CURRENT EXPENSE 010 | 1.0175366760 | $1,391,500 | $1,391,500 | $1,415.90 | | |
| HUMNSERV | HUMAN SERVICES 119 | 0.0250000000 | $1,391,500 | $1,391,500 | $34.79 | | |
| SLDREL | SOLDIERS RELIEF 121 | 0.0155990005 | $1,391,500 | $1,391,500 | $21.71 | | |
| COLLPLBOND | C OF CP BOND 644 | 0.4374241808 | $1,391,500 | $1,391,500 | $608.68 | | |
| COLLPLGEN | CITY OF CP 632 | 1.4453819216 | $1,391,500 | $1,391,500 | $2,011.25 | | |
| EMERGSER | EMS 147 | 0.3792580840 | $1,391,500 | $1,391,500 | $527.74 | | |
| EMSRFD | EMS REFUND 147 | 0.0000000000 | $1,391,500 | $1,391,500 | $0.00 | | |
| RURALLIB | RURAL LIBRARY 623 | 0.3710609029 | $1,391,500 | $1,391,500 | $516.33 | | |
| PORTRFD | PORT REFUND 640 | 0.0000000000 | $1,391,500 | $1,391,500 | $0.00 | | |
| PORTWWGEN | PORT OF WW 640 | 0.2460186015 | $1,391,500 | $1,391,500 | $342.33 | | |
| SD250BOND | SD #250 BOND 773 | 1.4560608159 | $1,391,500 | $1,391,500 | $2,026.11 | | |
| SD250GEN | SD #250 GENERAL 770 | 2.3880724087 | $1,391,500 | $1,391,500 | $3,323.00 | | |
| ST2 | STATE SCHOOL PART 2 600 | 0.8131451643 | $1,391,500 | $1,391,500 | $1,131.49 | | |
| STATESCHL | STATE SCHOOL 600 | 1.5158548041 | $1,391,500 | $1,391,500 | $2,109.31 | | |
| STREFUND | STATE REFUND LEVY 603 | 0.0000000000 | $1,391,500 | $1,391,500 | $0.00 | | |
| | Total Tax Rate: | 10.1104125603 | | | | | |
| | | | | Taxes w/Current Exemptions: | $14,068.64 | | |
| | | | | Taxes w/o Exemptions: | $14,068.64 | | |
Improvement / Building
| Improvement #1: | RESIDENTIAL | State Code: | 13 | 8360.0 sqft | Value: | $666,050 |
| Exterior Wall: | PLYWOOD | Heating/Cooling: | BASEBOARD ELECTRIC | | Number of Bathrooms: | 10 | Number of Bedrooms: | 10 | | Plumbing: | 60 | Roof Covering: | COMP SHINGLE |
|
| | Type | Description | Class CD | Sub Class CD | Year Built | Area |
| | MA | Main Area | 2 | 30 | 1981 | 8360.0 |
| | SI1 | SITE IMPROVEMENT | 2 | 30 | 1981 | 8.0 |
| | UPFL | Upper Floor (included in main area) | 2 | 30 | 1981 | 4180.0 |
| | CPCS | CARPORT/SHED OR FLAT ROOF | 2 | 30 | 1981 | 1680.0 |
| | EWS | EXT WOOD STAIRS | 2 | 30 | 1981 | 2.0 |
| | BLW | WOOD BALCONIES | 2 | 30 | 1981 | 660.0 |
| | RPO | OPEN PORCH W/ROOF | 2 | 30 | 1981 | 660.0 |
| Improvement #2: | RESIDENTIAL | State Code: | 13 | 8360.0 sqft | Value: | $666,050 |
| Exterior Wall: | PLYWOOD | Heating/Cooling: | BASEBOARD ELECTRIC | | Number of Bathrooms: | 10 | Number of Bedrooms: | 10 | | Plumbing: | 60 | Roof Covering: | COMP SHINGLE |
|
| | Type | Description | Class CD | Sub Class CD | Year Built | Area |
| | MA | Main Area | 2 | 30 | 1981 | 8360.0 |
| | SI1 | SITE IMPROVEMENT | 2 | 30 | 1981 | 8.0 |
| | UPFL | Upper Floor (included in main area) | 2 | 30 | 1981 | 4180.0 |
| | CPCS | CARPORT/SHED OR FLAT ROOF | 2 | 30 | 1981 | 1680.0 |
| | EWS | EXT WOOD STAIRS | 2 | 30 | 1981 | 2.0 |
| | BLW | WOOD BALCONIES | 2 | 30 | 1981 | 660.0 |
| | RPO | OPEN PORCH W/ROOF | 2 | 30 | 1981 | 660.0 |
Sketch
Property Image
Land
| 1 | RES 1 | Converted: Residential | 0.2583 | 11250.00 | 0.00 | 0.00 | 1.00 | $59,400 | $0 |
Roll Value History
| 2025 | N/A | N/A | N/A | N/A | N/A |
| 2024 | $1,340,200 | $59,400 | $0 | $1,399,600 | $1,399,600 |
| 2023 | $1,332,100 | $59,400 | $0 | $1,391,500 | $1,391,500 |
| 2022 | $1,332,100 | $59,400 | $0 | $1,391,500 | $1,391,500 |
| 2021 | $1,211,000 | $59,400 | $0 | $1,270,400 | $1,270,400 |
| 2020 | $966,860 | $59,400 | $0 | $1,026,260 | $1,026,260 |
| 2019 | $978,060 | $48,200 | $0 | $1,026,260 | $1,026,260 |
| 2018 | $931,490 | $48,200 | $0 | $979,690 | $979,690 |
| 2017 | $846,800 | $48,200 | $0 | $895,000 | $895,000 |
| 2016 | $846,800 | $48,200 | $0 | $895,000 | $895,000 |
| 2015 | $846,800 | $48,200 | $0 | $895,000 | $895,000 |
| 2014 | $846,800 | $48,200 | $0 | $895,000 | $895,000 |
| 2013 | $846,800 | $48,200 | $0 | $895,000 | $895,000 |
| 2012 | $846,800 | $48,200 | $0 | $0 | $0 |
| 2011 | $846,800 | $48,200 | $0 | $0 | $0 |
| 2010 | $846,800 | $48,200 | $0 | $0 | $0 |
| 2009 | $846,800 | $48,200 | $0 | $0 | $0 |
| 2008 | $525,200 | $25,800 | $0 | $0 | $0 |
| 2007 | $525,200 | $25,800 | $0 | $0 | $0 |
| 2006 | $525,200 | $25,800 | $0 | $0 | $0 |
Deed and Sales History
| 1 | 09/26/2016 | QCD | QUIT CLAIM DEED | 516 LLC A WA & OR LTD | PUFF LANE LLC | | 3-PARCELS | $991,100.00 | 130906 | 2016-07855 |
|   | |
| 2 | 02/07/1996 | WARRANTY D | WARRANTY DEED | | | | | $578,000.00 | 85574 | 2389-601195 |
|   | |
Payout Agreement
| No payout information available.. |