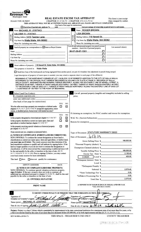
Property
Account |
| Property ID: | 4121 | Abbreviated Legal Description: | LYONS LOT 4 |
| Parcel Number: | 350735530004 | Agent Code: | |
| Type: | Real | | |
| Tax Area: | 75 - CP 250 | Land Use Code | 11 |
| Open Space: | N | DFL | N |
| Historic Property: | N | Remodel Property: | N |
| Multi-Family Redevelopment: | N | | |
| Township: | 7 | Section: | 35 |
| Range: | 35 |
Location |
| Address: | 118 SW 12TH ST WA 99324 | Mapsco: | |
| Neighborhood: | A SFR | Map ID: | |
| Neighborhood CD: | 113011 |
Owner |
| Name: | LOPEZ-MACIAS HECTOR I | Owner ID: | 53287 |
| Mailing Address: | MARIE GUADALUPE IBARRA-MEZA 118 SW 12TH ST COLLEGE PLACE, WA 99324 | % Ownership: | 100.0000000000% |
| | | Exemptions: | |
Taxes and Assessment Details
Values
| (+) Improvement Homesite Value: | + | $0 | |
| (+) Improvement Non-Homesite Value: | + | $162,180 | |
| (+) Land Homesite Value: | + | $0 | |
| (+) Land Non-Homesite Value: | + | $61,140 | |
| (+) Curr Use (HS): | + | $0 | $0 |
| (+) Curr Use (NHS): | + | $0 | $0 |
| | | -------------------------- | |
| (=) Market Value: | = | $223,320 | |
| (–) Productivity Loss: | – | $0 | |
| | | -------------------------- | |
| (=) Subtotal: | = | $223,320 | |
| (+) Senior Appraised Value: | + | $0 | |
| (+) Non-Senior Appraised Value: | + | $223,320 | |
| | | -------------------------- | |
| (=) Total Appraised Value: | = | $223,320 | |
| (–) Senior Exemption Loss: | – | $0 | |
| (–) Exemption Loss: | – | $0 | |
| | | -------------------------- | |
| (=) Taxable Value: | = | $223,320 | |
Taxing Jurisdiction
| Owner: | LOPEZ-MACIAS HECTOR I | | |
| % Ownership: | 100.0000000000% | | |
| Total Value: | $223,320 | | |
| Tax Area: | 75 - CP 250 |
| CERFD | CURRENT EXPENSE REFUND 010 | 0.0000000000 | $223,320 | $223,320 | $0.00 | | |
| CURREXP | CURRENT EXPENSE 010 | 1.0175366760 | $223,320 | $223,320 | $227.24 | | |
| HUMNSERV | HUMAN SERVICES 119 | 0.0250000000 | $223,320 | $223,320 | $5.58 | | |
| SLDREL | SOLDIERS RELIEF 121 | 0.0155990005 | $223,320 | $223,320 | $3.48 | | |
| COLLPLBOND | C OF CP BOND 644 | 0.4374241808 | $223,320 | $223,320 | $97.69 | | |
| COLLPLGEN | CITY OF CP 632 | 1.4453819216 | $223,320 | $223,320 | $322.78 | | |
| EMERGSER | EMS 147 | 0.3792580840 | $223,320 | $223,320 | $84.70 | | |
| EMSRFD | EMS REFUND 147 | 0.0000000000 | $223,320 | $223,320 | $0.00 | | |
| RURALLIB | RURAL LIBRARY 623 | 0.3710609029 | $223,320 | $223,320 | $82.87 | | |
| PORTRFD | PORT REFUND 640 | 0.0000000000 | $223,320 | $223,320 | $0.00 | | |
| PORTWWGEN | PORT OF WW 640 | 0.2460186015 | $223,320 | $223,320 | $54.94 | | |
| SD250BOND | SD #250 BOND 773 | 1.4560608159 | $223,320 | $223,320 | $325.17 | | |
| SD250GEN | SD #250 GENERAL 770 | 2.3880724087 | $223,320 | $223,320 | $533.30 | | |
| ST2 | STATE SCHOOL PART 2 600 | 0.8131451643 | $223,320 | $223,320 | $181.59 | | |
| STATESCHL | STATE SCHOOL 600 | 1.5158548041 | $223,320 | $223,320 | $338.52 | | |
| STREFUND | STATE REFUND LEVY 603 | 0.0000000000 | $223,320 | $223,320 | $0.00 | | |
| | Total Tax Rate: | 10.1104125603 | | | | | |
| | | | | Taxes w/Current Exemptions: | $2,257.86 | | |
| | | | | Taxes w/o Exemptions: | $2,257.86 | | |
Improvement / Building
| Improvement #1: | RESIDENTIAL | State Code: | 11 | 1008.0 sqft | Value: | $162,180 |
| Exterior Wall: | PLYWOOD | Heating/Cooling: | BASEBOARD ELECTRIC | | Number of Bathrooms: | 2 | Number of Bedrooms: | 4 | | Plumbing: | 6 | Roof Covering: | COMP SHINGLE |
|
| | Type | Description | Class CD | Sub Class CD | Year Built | Area |
| | MA | Main Area | 1 | 25 | 1973 | 1008.0 |
| | SI1 | SITE IMPROVEMENT | 1 | 25 | 1973 | 1.5 |
| | ATG | Attached Garage | 1 | 25 | 1973 | 288.0 |
| | OSP | Open | 1 | 25 | 1973 | 12.0 |
| | S1F | Single One Story Fireplace | 1 | 25 | 1973 | 1.0 |
| | RPO | OPEN PORCH W/ROOF | 1 | 25 | 1973 | 165.0 |
| | UTST | Utility Storage Shed | 1 | 25 | 1973 | 120.0 |
| | GIF | GARAGE INTERIOR FINISH | 1 | 25 | 1973 | 288.0 |
Sketch
Property Image
Land
| 1 | RES 1 | Converted: Residential | 0.2238 | 9750.00 | 0.00 | 0.00 | 1.00 | $61,140 | $0 |
Roll Value History
| 2025 | N/A | N/A | N/A | N/A | N/A |
| 2024 | $162,180 | $61,140 | $0 | $223,320 | $223,320 |
| 2023 | $162,180 | $61,140 | $0 | $223,320 | $223,320 |
| 2022 | $154,460 | $61,140 | $0 | $215,600 | $215,600 |
| 2021 | $147,100 | $61,140 | $0 | $208,240 | $208,240 |
| 2020 | $97,930 | $61,140 | $0 | $159,070 | $159,070 |
| 2019 | $112,170 | $46,900 | $0 | $159,070 | $159,070 |
| 2018 | $112,170 | $46,900 | $0 | $159,070 | $159,070 |
| 2017 | $112,170 | $46,900 | $0 | $159,070 | $159,070 |
| 2016 | $101,970 | $46,900 | $0 | $148,870 | $148,870 |
| 2015 | $92,700 | $46,900 | $0 | $139,600 | $139,600 |
| 2014 | $92,700 | $46,900 | $0 | $139,600 | $139,600 |
| 2013 | $92,700 | $46,900 | $0 | $139,600 | $139,600 |
| 2012 | $92,700 | $46,900 | $0 | $0 | $0 |
| 2011 | $80,000 | $46,900 | $0 | $0 | $0 |
| 2010 | $80,000 | $46,900 | $0 | $0 | $0 |
| 2009 | $94,100 | $46,900 | $0 | $0 | $0 |
| 2008 | $63,000 | $24,500 | $0 | $0 | $0 |
| 2007 | $63,000 | $24,500 | $0 | $0 | $0 |
| 2006 | $63,000 | $24,500 | $0 | $0 | $0 |
Deed and Sales History
| 1 | 10/15/2013 | WARRANTY D | WARRANTY DEED | COYLE, LES T & ESTHER M | LOPEZ-MACIAS, HECTOR I | | | $146,000.00 | 124818 | 2013-10352 |
| 2 | 08/12/2005 | WARRANTY D | WARRANTY DEED | THIESEN, ROGER WILLIAM | COYLE, LES T & ESTHER M | | | $112,000.00 | 108216 | 2005-09995 |
| 3 | 08/12/1996 | WARRANTY D | WARRANTY DEED | | | | | $67,000.00 | 86688 | 2439-608188 |
Payout Agreement
| No payout information available.. |