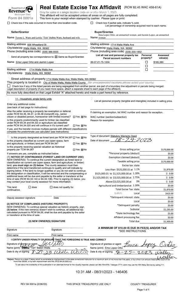
Property
Account |
| Property ID: | 4040 | Abbreviated Legal Description: | 35-7-35 TAX 41 |
| Parcel Number: | 350735420066 | Agent Code: | |
| Type: | Real | | |
| Tax Area: | 311 - 250-4 | Land Use Code | 12 |
| Open Space: | N | DFL | N |
| Historic Property: | N | Remodel Property: | N |
| Multi-Family Redevelopment: | N | | |
| Township: | 7 | Section: | 35 |
| Range: | 35 |
Location |
| Address: | 805 GRANDVIEW AVE WA 99324 | Mapsco: | |
| Neighborhood: | A SFR Multi Res Rural/City Inf | Map ID: | |
| Neighborhood CD: | 113082 |
Owner |
| Name: | BARNES JOSEPH D | Owner ID: | 68051 |
| Mailing Address: | 805 GRANDVIEW AVE COLLEGE PLACE, WA 99324 | % Ownership: | 100.0000000000% |
| | | Exemptions: | SNR/DSBL |
Taxes and Assessment Details
Values
| (+) Improvement Homesite Value: | + | $192,830 | |
| (+) Improvement Non-Homesite Value: | + | $65,390 | |
| (+) Land Homesite Value: | + | $93,950 | |
| (+) Land Non-Homesite Value: | + | $0 | |
| (+) Curr Use (HS): | + | $0 | $0 |
| (+) Curr Use (NHS): | + | $0 | $0 |
| | | -------------------------- | |
| (=) Market Value: | = | $352,170 | |
| (–) Productivity Loss: | – | $0 | |
| | | -------------------------- | |
| (=) Subtotal: | = | $352,170 | |
| (+) Senior Appraised Value: | + | $200,410 | |
| (+) Non-Senior Appraised Value: | + | $65,390 | |
| | | -------------------------- | |
| (=) Total Appraised Value: | = | $265,800 | |
| (–) Senior Exemption Loss: | – | $120,246 | |
| (–) Exemption Loss: | – | $0 | |
| | | -------------------------- | |
| (=) Taxable Value: | = | $145,554 | |
Taxing Jurisdiction
| Owner: | BARNES JOSEPH D | | |
| % Ownership: | 100.0000000000% | | |
| Total Value: | $352,170 | | |
| Tax Area: | 311 - 250-4 |
| CERFD | CURRENT EXPENSE REFUND 010 | 0.0000000000 | $352,170 | $145,554 | $0.00 | | |
| CURREXP | CURRENT EXPENSE 010 | 1.0175366760 | $352,170 | $145,554 | $148.11 | | |
| HUMNSERV | HUMAN SERVICES 119 | 0.0250000000 | $352,170 | $145,554 | $3.64 | | |
| SLDREL | SOLDIERS RELIEF 121 | 0.0155990005 | $352,170 | $145,554 | $2.27 | | |
| EMERGSER | EMS 147 | 0.3792580840 | $352,170 | $145,554 | $55.20 | | |
| EMSRFD | EMS REFUND 147 | 0.0000000000 | $352,170 | $145,554 | $0.00 | | |
| FD4EXP | FD #4 EXPENSE 686 | 0.8836993059 | $352,170 | $145,554 | $128.63 | | |
| RLBRFD | RURAL LIBRARY REFUND 623 | 0.0000000000 | $352,170 | $145,554 | $0.00 | | |
| RURALLIB | RURAL LIBRARY 623 | 0.3710609029 | $352,170 | $145,554 | $54.01 | | |
| PORTRFD | PORT REFUND 640 | 0.0000000000 | $352,170 | $145,554 | $0.00 | | |
| PORTWWGEN | PORT OF WW 640 | 0.2460186015 | $352,170 | $145,554 | $35.81 | | |
| SD250BOND | SD #250 BOND 773 | 0.0000000000 | $352,170 | $65,390 | $95.21 | | |
| SD250GEN | SD #250 GENERAL 770 | 0.0000000000 | $352,170 | $65,390 | $156.16 | | |
| ST2 | STATE SCHOOL PART 2 600 | 0.0000000000 | $352,170 | $65,390 | $53.17 | | |
| STATESCHL | STATE SCHOOL 600 | 1.5158548041 | $352,170 | $145,554 | $220.64 | | |
| STREFUND | STATE REFUND LEVY 603 | 0.0000000000 | $352,170 | $145,554 | $0.00 | | |
| COROAD | COUNTY ROAD 115 | 1.6549953990 | $352,170 | $145,554 | $240.89 | | |
| CRPRD | COUNTY ROAD REFUND 115 | 0.0000000000 | $352,170 | $145,554 | $0.00 | | |
| | Total Tax Rate: | 6.1090227739 | | | | | |
| | | | | Taxes w/Current Exemptions: | $1,193.74 | | |
| | | | | Taxes w/o Exemptions: | $3,791.57 | | |
Improvement / Building
| Improvement #1: | RESIDENTIAL | State Code: | 11 | 832.0 sqft | Value: | $65,390 |
| Exterior Wall: | SIDING | Heating/Cooling: | STOVE-NO HEAT | | Number of Bathrooms: | 2 | Number of Bedrooms: | 2 | | Plumbing: | 10 | Roof Covering: | COMP SHINGLE |
|
| | Type | Description | Class CD | Sub Class CD | Year Built | Area |
| | MA | Main Area | 1 | 20 | 1963 | 832.0 |
| | SI1 | SITE IMPROVEMENT | 1 | 20 | 1963 | 1.0 |
| | BASE | BASEMENT | 1 | 20 | 1963 | 832.0 |
| | BPF | BASEMENT -PARTITIONED FINISH | 1 | 20 | 1963 | 832.0 |
| | ATG | Attached Garage | 1 | 20 | 1963 | 364.0 |
| | BLW | WOOD BALCONIES | 1 | 20 | 1963 | 128.0 |
| Improvement #2: | RESIDENTIAL | State Code: | 12 | 1788.0 sqft | Value: | $192,830 |
| Exterior Wall: | SIDING | Heating/Cooling: | WARM & COOLED AIR | | Number of Bathrooms: | 1 | Number of Bedrooms: | 4 | | Plumbing: | 7 | Roof Covering: | COMP SHINGLE |
|
| | Type | Description | Class CD | Sub Class CD | Year Built | Area |
| | MA | Main Area | 1 | 30 | 1963 | 1788.0 |
| | SI1 | SITE IMPROVEMENT | 1 | 30 | 1963 | 1.0 |
| | ATG | Attached Garage | 1 | 30 | 1963 | 273.0 |
| | S1F | Single One Story Fireplace | 1 | 30 | 1963 | 1.0 |
Sketch
Property Image
Land
| 1 | RES 1 | Converted: Residential | 1.7900 | 0.00 | 0.00 | 0.00 | 1.00 | $93,950 | $0 |
Roll Value History
| 2025 | N/A | N/A | N/A | N/A | N/A |
| 2024 | $258,220 | $93,950 | $0 | $352,170 | $145,554 |
| 2023 | $258,220 | $93,950 | $0 | $352,170 | $145,554 |
| 2022 | $224,540 | $93,950 | $0 | $318,490 | $217,882 |
| 2021 | $213,840 | $93,950 | $0 | $307,790 | $134,314 |
| 2020 | $142,560 | $93,950 | $0 | $236,510 | $116,264 |
| 2019 | $155,210 | $81,300 | $0 | $236,510 | $236,510 |
| 2018 | $155,210 | $81,300 | $0 | $236,510 | $236,510 |
| 2017 | $155,210 | $81,300 | $0 | $236,510 | $236,510 |
| 2016 | $177,600 | $81,300 | $0 | $258,900 | $258,900 |
| 2015 | $177,600 | $81,300 | $0 | $258,900 | $258,900 |
| 2014 | $177,600 | $81,300 | $0 | $258,900 | $258,900 |
| 2013 | $177,600 | $81,300 | $0 | $258,900 | $258,900 |
| 2012 | $177,600 | $81,300 | $0 | $0 | $0 |
| 2011 | $177,600 | $81,300 | $0 | $0 | $0 |
| 2010 | $177,600 | $81,300 | $0 | $0 | $0 |
| 2009 | $177,600 | $81,300 | $0 | $0 | $0 |
| 2008 | $150,000 | $48,200 | $0 | $0 | $0 |
| 2007 | $150,000 | $48,200 | $0 | $0 | $0 |
| 2006 | $150,000 | $48,200 | $0 | $0 | $0 |
Deed and Sales History
| 1 | 10/09/2020 | DPR | DEED OF PERSONAL REPRESENTATIVE | BARNES JOSEPH N | BARNES JOSEPH D | | | | 140050 | 2020-10435 |
| 2 | 10/01/1963 | WARRANTY D | WARRANTY DEED | | | | | $18,700.00 | 0 | 3070-451797 |
Payout Agreement
| No payout information available.. |