Property
Account |
| Property ID: | 3898 | Abbreviated Legal Description: | BLALOCK ORCHARDS TAX 5 LOT 1 BLK 38 |
| Parcel Number: | 350726523817 | Agent Code: | |
| Type: | Real | | |
| Tax Area: | 75 - CP 250 | Land Use Code | 11 |
| Open Space: | N | DFL | N |
| Historic Property: | N | Remodel Property: | N |
| Multi-Family Redevelopment: | N | | |
| Township: | 7 | Section: | 26 |
| Range: | 35 |
Location |
| Address: | 215 N COLLEGE AVE WA 99324 | Mapsco: | |
| Neighborhood: | A SFR | Map ID: | |
| Neighborhood CD: | 113011 |
Owner |
| Name: | PONTI KARLENE LOUISE | Owner ID: | 66783 |
| Mailing Address: | 1216 S CAMPBELL RD WALLA WALLA, WA 99362 | % Ownership: | 100.0000000000% |
| | | Exemptions: | |
Taxes and Assessment Details
Values
| (+) Improvement Homesite Value: | + | $0 | |
| (+) Improvement Non-Homesite Value: | + | $112,740 | |
| (+) Land Homesite Value: | + | $0 | |
| (+) Land Non-Homesite Value: | + | $61,860 | |
| (+) Curr Use (HS): | + | $0 | $0 |
| (+) Curr Use (NHS): | + | $0 | $0 |
| | | -------------------------- | |
| (=) Market Value: | = | $174,600 | |
| (–) Productivity Loss: | – | $0 | |
| | | -------------------------- | |
| (=) Subtotal: | = | $174,600 | |
| (+) Senior Appraised Value: | + | $0 | |
| (+) Non-Senior Appraised Value: | + | $174,600 | |
| | | -------------------------- | |
| (=) Total Appraised Value: | = | $174,600 | |
| (–) Senior Exemption Loss: | – | $0 | |
| (–) Exemption Loss: | – | $0 | |
| | | -------------------------- | |
| (=) Taxable Value: | = | $174,600 | |
Taxing Jurisdiction
| Owner: | PONTI KARLENE LOUISE | | |
| % Ownership: | 100.0000000000% | | |
| Total Value: | $174,600 | | |
| Tax Area: | 75 - CP 250 |
| CERFD | CURRENT EXPENSE REFUND 010 | 0.0000000000 | $174,600 | $174,600 | $0.00 | | |
| CURREXP | CURRENT EXPENSE 010 | 1.0175366760 | $174,600 | $174,600 | $177.66 | | |
| HUMNSERV | HUMAN SERVICES 119 | 0.0250000000 | $174,600 | $174,600 | $4.37 | | |
| SLDREL | SOLDIERS RELIEF 121 | 0.0155990005 | $174,600 | $174,600 | $2.72 | | |
| COLLPLBOND | C OF CP BOND 644 | 0.4374241808 | $174,600 | $174,600 | $76.37 | | |
| COLLPLGEN | CITY OF CP 632 | 1.4453819216 | $174,600 | $174,600 | $252.36 | | |
| EMERGSER | EMS 147 | 0.3792580840 | $174,600 | $174,600 | $66.22 | | |
| EMSRFD | EMS REFUND 147 | 0.0000000000 | $174,600 | $174,600 | $0.00 | | |
| RURALLIB | RURAL LIBRARY 623 | 0.3710609029 | $174,600 | $174,600 | $64.79 | | |
| PORTRFD | PORT REFUND 640 | 0.0000000000 | $174,600 | $174,600 | $0.00 | | |
| PORTWWGEN | PORT OF WW 640 | 0.2460186015 | $174,600 | $174,600 | $42.95 | | |
| SD250BOND | SD #250 BOND 773 | 1.4560608159 | $174,600 | $174,600 | $254.23 | | |
| SD250GEN | SD #250 GENERAL 770 | 2.3880724087 | $174,600 | $174,600 | $416.96 | | |
| ST2 | STATE SCHOOL PART 2 600 | 0.8131451643 | $174,600 | $174,600 | $141.98 | | |
| STATESCHL | STATE SCHOOL 600 | 1.5158548041 | $174,600 | $174,600 | $264.67 | | |
| STREFUND | STATE REFUND LEVY 603 | 0.0000000000 | $174,600 | $174,600 | $0.00 | | |
| | Total Tax Rate: | 10.1104125603 | | | | | |
| | | | | Taxes w/Current Exemptions: | $1,765.28 | | |
| | | | | Taxes w/o Exemptions: | $1,765.28 | | |
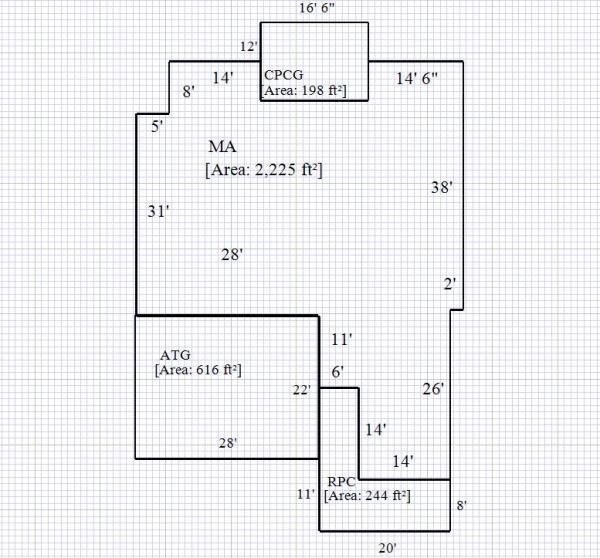
Improvement / Building
| Improvement #1: | RESIDENTIAL | State Code: | 11 | 685.0 sqft | Value: | $112,740 |
| Exterior Wall: | VINYL | Heating/Cooling: | FORCED AIR | | Number of Bathrooms: | 1 | Number of Bedrooms: | 1 | | Plumbing: | 6 | Roof Covering: | COMP SHINGLE |
|
| | Type | Description | Class CD | Sub Class CD | Year Built | Area |
| | MA | Main Area | 1 | 25 | 1920 | 685.0 |
| | SI1 | SITE IMPROVEMENT | 1 | 25 | 1920 | 1.0 |
| | BASE | BASEMENT | 1 | 25 | 1920 | 650.0 |
| | RPS | PORCH W/STEPS,ROOF | 1 | 25 | 1920 | 12.0 |
Sketch
Property Image
Land
| 1 | RES 1 | Converted: Residential | 0.2500 | 10890.00 | 0.00 | 0.00 | 1.00 | $61,860 | $0 |
Roll Value History
| 2025 | N/A | N/A | N/A | N/A | N/A |
| 2024 | $112,740 | $61,860 | $0 | $174,600 | $174,600 |
| 2023 | $112,740 | $61,860 | $0 | $174,600 | $174,600 |
| 2022 | $112,740 | $61,860 | $0 | $174,600 | $174,600 |
| 2021 | $93,950 | $61,860 | $0 | $155,810 | $155,810 |
| 2020 | $37,580 | $61,860 | $0 | $99,440 | $99,440 |
| 2019 | $51,540 | $47,900 | $0 | $99,440 | $99,440 |
| 2018 | $49,090 | $47,900 | $0 | $96,990 | $96,990 |
| 2017 | $46,750 | $47,900 | $0 | $94,650 | $94,650 |
| 2016 | $42,500 | $47,900 | $0 | $90,400 | $90,400 |
| 2015 | $42,500 | $47,900 | $0 | $90,400 | $90,400 |
| 2014 | $42,500 | $47,900 | $0 | $90,400 | $90,400 |
| 2013 | $42,500 | $47,900 | $0 | $90,400 | $90,400 |
| 2012 | $42,500 | $47,900 | $0 | $0 | $0 |
| 2011 | $42,500 | $47,900 | $0 | $0 | $0 |
| 2010 | $42,500 | $47,900 | $0 | $0 | $0 |
| 2009 | $47,300 | $47,900 | $0 | $0 | $0 |
| 2008 | $36,500 | $25,500 | $0 | $0 | $0 |
| 2007 | $36,500 | $25,500 | $0 | $0 | $0 |
| 2006 | $36,500 | $25,500 | $0 | $0 | $0 |
Deed and Sales History
| 1 | 03/06/2020 | TODD | TRANSFER ON DEATH DEED | PONTI KARLENE LOUISE | PONTI GREGORY ALLEN | | | | 0 | 2020-02130 |
| 2 | 03/05/2020 | QCD | QUIT CLAIM DEED | PONTI BETTY JEAN | PONTI KARLENE LOUISE | | | $0.00 | 138752 | 2020-02085 |
| 3 | 07/18/2012 | QCD | QUIT CLAIM DEED | PONTI ALVIN & BETTY J | PONTI BETTY JEAN | | | $0.00 | 122363 | 2012-06089 |
| 4 | 03/24/1982 | WARRANTY D | WARRANTY DEED | | | | | $25,000.00 | 0 | 1328-202182 |
Payout Agreement
| No payout information available.. |