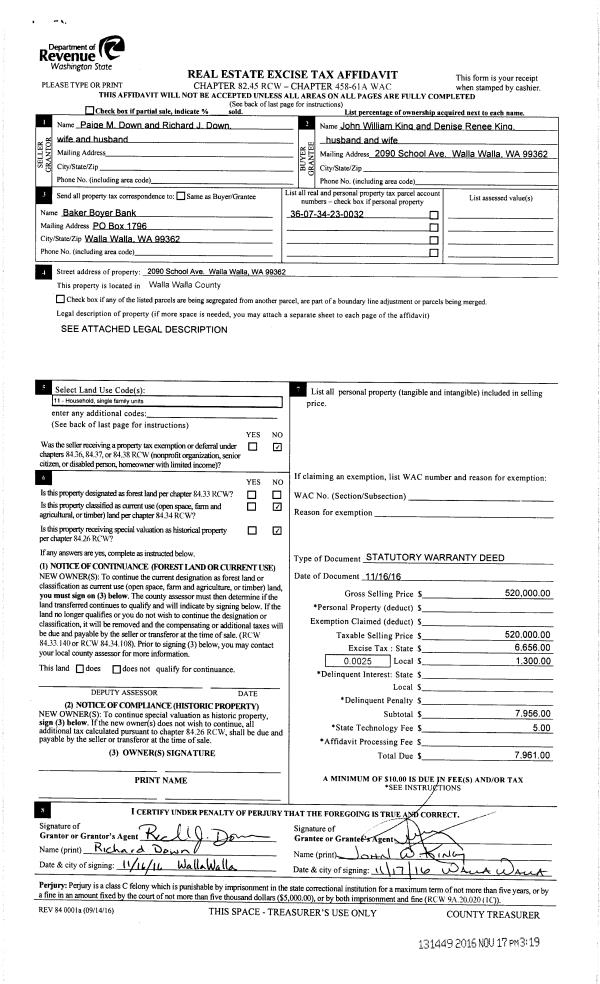
Property
Account |
| Property ID: | 3880 | Abbreviated Legal Description: | BLALOCK ORCHARDS TAX 5A BLK 31 |
| Parcel Number: | 350726523113 | Agent Code: | |
| Type: | Real | | |
| Tax Area: | 311 - 250-4 | Land Use Code | 11 |
| Open Space: | N | DFL | N |
| Historic Property: | N | Remodel Property: | N |
| Multi-Family Redevelopment: | N | | |
| Township: | 7 | Section: | 26 |
| Range: | 35 |
Location |
| Address: | 174 RUSSET RD WA 99362 | Mapsco: | |
| Neighborhood: | A SFR Rural/City Infl | Map ID: | |
| Neighborhood CD: | 313012 |
Owner |
| Name: | ANDERSON JANET | Owner ID: | 3583 |
| Mailing Address: | 176 RUSSET RD WALLA WALLA, WA 99362 | % Ownership: | 100.0000000000% |
| | | Exemptions: | SNR/DSBL |
Taxes and Assessment Details
Values
| (+) Improvement Homesite Value: | + | $215,410 | |
| (+) Improvement Non-Homesite Value: | + | $17,520 | |
| (+) Land Homesite Value: | + | $131,250 | |
| (+) Land Non-Homesite Value: | + | $0 | |
| (+) Curr Use (HS): | + | $0 | $0 |
| (+) Curr Use (NHS): | + | $0 | $0 |
| | | -------------------------- | |
| (=) Market Value: | = | $364,180 | |
| (–) Productivity Loss: | – | $0 | |
| | | -------------------------- | |
| (=) Subtotal: | = | $364,180 | |
| (+) Senior Appraised Value: | + | $184,180 | |
| (+) Non-Senior Appraised Value: | + | $17,520 | |
| | | -------------------------- | |
| (=) Total Appraised Value: | = | $201,700 | |
| (–) Senior Exemption Loss: | – | $110,508 | |
| (–) Exemption Loss: | – | $0 | |
| | | -------------------------- | |
| (=) Taxable Value: | = | $91,192 | |
Taxing Jurisdiction
| Owner: | ANDERSON JANET | | |
| % Ownership: | 100.0000000000% | | |
| Total Value: | $364,180 | | |
| Tax Area: | 311 - 250-4 |
| CERFD | CURRENT EXPENSE REFUND 010 | 0.0000000000 | $364,180 | $91,192 | $0.00 | | |
| CURREXP | CURRENT EXPENSE 010 | 1.0175366760 | $364,180 | $91,192 | $92.79 | | |
| HUMNSERV | HUMAN SERVICES 119 | 0.0250000000 | $364,180 | $91,192 | $2.28 | | |
| SLDREL | SOLDIERS RELIEF 121 | 0.0155990005 | $364,180 | $91,192 | $1.42 | | |
| EMERGSER | EMS 147 | 0.3792580840 | $364,180 | $91,192 | $34.59 | | |
| EMSRFD | EMS REFUND 147 | 0.0000000000 | $364,180 | $91,192 | $0.00 | | |
| FD4EXP | FD #4 EXPENSE 686 | 0.8836993059 | $364,180 | $91,192 | $80.59 | | |
| RLBRFD | RURAL LIBRARY REFUND 623 | 0.0000000000 | $364,180 | $91,192 | $0.00 | | |
| RURALLIB | RURAL LIBRARY 623 | 0.3710609029 | $364,180 | $91,192 | $33.84 | | |
| PORTRFD | PORT REFUND 640 | 0.0000000000 | $364,180 | $91,192 | $0.00 | | |
| PORTWWGEN | PORT OF WW 640 | 0.2460186015 | $364,180 | $91,192 | $22.43 | | |
| SD250BOND | SD #250 BOND 773 | 0.0000000000 | $364,180 | $17,520 | $25.51 | | |
| SD250GEN | SD #250 GENERAL 770 | 0.0000000000 | $364,180 | $17,520 | $41.84 | | |
| ST2 | STATE SCHOOL PART 2 600 | 0.0000000000 | $364,180 | $17,520 | $14.25 | | |
| STATESCHL | STATE SCHOOL 600 | 1.5158548041 | $364,180 | $91,192 | $138.23 | | |
| STREFUND | STATE REFUND LEVY 603 | 0.0000000000 | $364,180 | $91,192 | $0.00 | | |
| COROAD | COUNTY ROAD 115 | 1.6549953990 | $364,180 | $91,192 | $150.92 | | |
| CRPRD | COUNTY ROAD REFUND 115 | 0.0000000000 | $364,180 | $91,192 | $0.00 | | |
| | Total Tax Rate: | 6.1090227739 | | | | | |
| | | | | Taxes w/Current Exemptions: | $638.69 | | |
| | | | | Taxes w/o Exemptions: | $3,920.88 | | |
Improvement / Building
| Improvement #1: | RESIDENTIAL | State Code: | 11 | 1548.0 sqft | Value: | $215,410 |
| Exterior Wall: | SIDING | Heating/Cooling: | FORCED AIR | | Number of Bathrooms: | 3 | Number of Bedrooms: | 4 | | Plumbing: | 12 | Roof Covering: | COMP SHINGLE |
|
| | Type | Description | Class CD | Sub Class CD | Year Built | Area |
| | MA | Main Area | 1 | 30 | 1951 | 1548.0 |
| | CPC | COVERED CARPORT/PATIO | 1 | 30 | 0 | 384.0 |
| | POL1 | POLE BUILDING-GRAVEL | 1 | 30 | 0 | 1440.0 |
| | SI1 | SITE IMPROVEMENT | 1 | 30 | 0 | 1.5 |
| | BASE | BASEMENT | 1 | 30 | 1951 | 540.0 |
| | BRF | BASEMENT - REC FINISH | 1 | 30 | 1951 | 540.0 |
| | DTG | Detached Garage | 1 | 30 | 1951 | 480.0 |
| Improvement #2: | RESIDENTIAL | State Code: | 11 | 0.0 sqft | Value: | $17,520 |
Sketch
Property Image
Land
| 1 | RES 1 | Converted: Residential | 1.0500 | 0.00 | 0.00 | 0.00 | 1.00 | $131,250 | $0 |
Roll Value History
| 2025 | N/A | N/A | N/A | N/A | N/A |
| 2024 | $256,220 | $131,250 | $0 | $387,470 | $92,942 |
| 2023 | $232,930 | $131,250 | $0 | $364,180 | $91,192 |
| 2022 | $202,540 | $131,250 | $0 | $333,790 | $88,902 |
| 2021 | $184,210 | $75,400 | $0 | $259,610 | $88,902 |
| 2020 | $167,470 | $75,400 | $0 | $242,870 | $133,567 |
| 2019 | $167,470 | $75,400 | $0 | $242,870 | $87,522 |
| 2018 | $139,660 | $75,400 | $0 | $215,060 | $73,672 |
| 2017 | $139,660 | $75,400 | $0 | $215,060 | $73,672 |
| 2016 | $116,380 | $75,400 | $0 | $191,780 | $73,672 |
| 2015 | $108,780 | $75,400 | $0 | $184,180 | $73,672 |
| 2014 | $115,900 | $75,400 | $0 | $191,300 | $191,300 |
| 2013 | $115,900 | $75,400 | $0 | $191,300 | $191,300 |
| 2012 | $115,900 | $75,400 | $0 | $0 | $0 |
| 2011 | $115,900 | $75,400 | $0 | $0 | $0 |
| 2010 | $107,800 | $75,400 | $0 | $0 | $0 |
| 2009 | $158,400 | $45,200 | $0 | $0 | $0 |
| 2008 | $90,500 | $45,200 | $0 | $0 | $0 |
| 2007 | $90,500 | $45,200 | $0 | $0 | $0 |
| 2006 | $90,500 | $45,200 | $0 | $0 | $0 |
Deed and Sales History
| 1 | 07/14/2000 | WARRANTY D | WARRANTY DEED | | | | | $131,500.00 | 95432 | 3000-006739 |
Payout Agreement
| No payout information available.. |