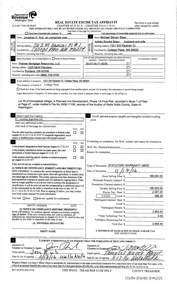
Property
Account |
| Property ID: | 3876 | Abbreviated Legal Description: | BLALOCK ORCHARDS PARCEL 19 TRACT B BLK 29 |
| Parcel Number: | 350726522919 | Agent Code: | |
| Type: | Real | | |
| Tax Area: | 311 - 250-4 | Land Use Code | 11 |
| Open Space: | N | DFL | N |
| Historic Property: | N | Remodel Property: | N |
| Multi-Family Redevelopment: | N | | |
| Township: | 7 | Section: | 26 |
| Range: | 35 |
Location |
| Address: | 790 S HUSSEY ST WA 99324 | Mapsco: | |
| Neighborhood: | A SFR Rural/City Infl | Map ID: | |
| Neighborhood CD: | 313012 |
Owner |
| Name: | CARRILLO MARIA G ESCALANTE | Owner ID: | 63910 |
| Mailing Address: | 790 S HUSSEY ST WALLA WALLA, WA 99362 | % Ownership: | 100.0000000000% |
| | | Exemptions: | |
Taxes and Assessment Details
Values
| (+) Improvement Homesite Value: | + | $0 | |
| (+) Improvement Non-Homesite Value: | + | $256,370 | |
| (+) Land Homesite Value: | + | $0 | |
| (+) Land Non-Homesite Value: | + | $71,620 | |
| (+) Curr Use (HS): | + | $0 | $0 |
| (+) Curr Use (NHS): | + | $0 | $0 |
| | | -------------------------- | |
| (=) Market Value: | = | $327,990 | |
| (–) Productivity Loss: | – | $0 | |
| | | -------------------------- | |
| (=) Subtotal: | = | $327,990 | |
| (+) Senior Appraised Value: | + | $0 | |
| (+) Non-Senior Appraised Value: | + | $327,990 | |
| | | -------------------------- | |
| (=) Total Appraised Value: | = | $327,990 | |
| (–) Senior Exemption Loss: | – | $0 | |
| (–) Exemption Loss: | – | $0 | |
| | | -------------------------- | |
| (=) Taxable Value: | = | $327,990 | |
Taxing Jurisdiction
| Owner: | CARRILLO MARIA G ESCALANTE | | |
| % Ownership: | 100.0000000000% | | |
| Total Value: | $327,990 | | |
| Tax Area: | 311 - 250-4 |
| CERFD | CURRENT EXPENSE REFUND 010 | 0.0000000000 | $327,990 | $327,990 | $0.00 | | |
| CURREXP | CURRENT EXPENSE 010 | 1.0175366760 | $327,990 | $327,990 | $333.74 | | |
| HUMNSERV | HUMAN SERVICES 119 | 0.0250000000 | $327,990 | $327,990 | $8.20 | | |
| SLDREL | SOLDIERS RELIEF 121 | 0.0155990005 | $327,990 | $327,990 | $5.12 | | |
| EMERGSER | EMS 147 | 0.3792580840 | $327,990 | $327,990 | $124.39 | | |
| EMSRFD | EMS REFUND 147 | 0.0000000000 | $327,990 | $327,990 | $0.00 | | |
| FD4EXP | FD #4 EXPENSE 686 | 0.8836993059 | $327,990 | $327,990 | $289.84 | | |
| RLBRFD | RURAL LIBRARY REFUND 623 | 0.0000000000 | $327,990 | $327,990 | $0.00 | | |
| RURALLIB | RURAL LIBRARY 623 | 0.3710609029 | $327,990 | $327,990 | $121.70 | | |
| PORTRFD | PORT REFUND 640 | 0.0000000000 | $327,990 | $327,990 | $0.00 | | |
| PORTWWGEN | PORT OF WW 640 | 0.2460186015 | $327,990 | $327,990 | $80.69 | | |
| SD250BOND | SD #250 BOND 773 | 1.4560608159 | $327,990 | $327,990 | $477.57 | | |
| SD250GEN | SD #250 GENERAL 770 | 2.3880724087 | $327,990 | $327,990 | $783.26 | | |
| ST2 | STATE SCHOOL PART 2 600 | 0.8131451643 | $327,990 | $327,990 | $266.70 | | |
| STATESCHL | STATE SCHOOL 600 | 1.5158548041 | $327,990 | $327,990 | $497.19 | | |
| STREFUND | STATE REFUND LEVY 603 | 0.0000000000 | $327,990 | $327,990 | $0.00 | | |
| COROAD | COUNTY ROAD 115 | 1.6549953990 | $327,990 | $327,990 | $542.82 | | |
| CRPRD | COUNTY ROAD REFUND 115 | 0.0000000000 | $327,990 | $327,990 | $0.00 | | |
| | Total Tax Rate: | 10.7663011628 | | | | | |
| | | | | Taxes w/Current Exemptions: | $3,531.22 | | |
| | | | | Taxes w/o Exemptions: | $3,531.22 | | |
Improvement / Building
| Improvement #1: | RESIDENTIAL | State Code: | 11 | 1929.0 sqft | Value: | $256,370 |
| Exterior Wall: | SIDING | Heating/Cooling: | WARM & COOLED AIR | | Number of Bathrooms: | 2 | Number of Bedrooms: | 3 | | Plumbing: | 10 | Roof Covering: | COMP SHINGLE |
|
| | Type | Description | Class CD | Sub Class CD | Year Built | Area |
| | MA | Main Area | 1 | 25 | 1970 | 1929.0 |
| | SI1 | SITE IMPROVEMENT | 1 | 25 | 0 | 1.0 |
| | RPO | OPEN PORCH W/ROOF | 1 | 25 | 1970 | 102.0 |
Sketch
Property Image
Land
| 1 | RES 1 | Converted: Residential | 0.2900 | 12632.00 | 0.00 | 0.00 | 1.00 | $71,620 | $0 |
Roll Value History
| 2025 | N/A | N/A | N/A | N/A | N/A |
| 2024 | $256,370 | $71,620 | $0 | $327,990 | $327,990 |
| 2023 | $256,370 | $71,620 | $0 | $327,990 | $327,990 |
| 2022 | $256,370 | $71,620 | $0 | $327,990 | $327,990 |
| 2021 | $209,150 | $49,400 | $0 | $258,550 | $258,550 |
| 2020 | $190,140 | $49,400 | $0 | $239,540 | $239,540 |
| 2019 | $166,440 | $49,400 | $0 | $215,840 | $215,840 |
| 2018 | $110,960 | $49,400 | $0 | $160,360 | $160,360 |
| 2017 | $100,870 | $49,400 | $0 | $150,270 | $150,270 |
| 2016 | $100,870 | $49,400 | $0 | $150,270 | $150,270 |
| 2015 | $99,990 | $49,400 | $0 | $149,390 | $149,390 |
| 2014 | $90,900 | $49,400 | $0 | $140,300 | $140,300 |
| 2013 | $90,900 | $49,400 | $0 | $140,300 | $140,300 |
| 2012 | $90,900 | $49,400 | $0 | $0 | $0 |
| 2011 | $90,900 | $49,400 | $0 | $0 | $0 |
| 2010 | $82,800 | $49,400 | $0 | $0 | $0 |
| 2009 | $119,800 | $27,100 | $0 | $0 | $0 |
| 2008 | $70,800 | $27,100 | $0 | $0 | $0 |
| 2007 | $70,800 | $27,100 | $0 | $0 | $0 |
| 2006 | $70,800 | $27,100 | $0 | $0 | $0 |
Deed and Sales History
| 1 | 09/12/2018 | SWD | STATUTORY WARRANTY DEED | RINGERING JEFFERY S & LORI F | CARRILLO MARIA G ESCALANTE | | | $228,000.00 | 135521 | 2018-07599 |
| 2 | 01/12/1990 | WARRANTY D | WARRANTY DEED | | | | | | 0 | 1809-000281 |
Payout Agreement
| No payout information available.. |