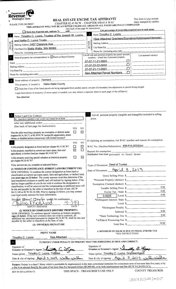
Property
Account |
| Property ID: | 3851 | Abbreviated Legal Description: | BLALOCK ORCHARDS W1/2 OF LOT 4 BLK 22 |
| Parcel Number: | 350726522214 | Agent Code: | |
| Type: | Real | | |
| Tax Area: | 311 - 250-4 | Land Use Code | 11 |
| Open Space: | N | DFL | N |
| Historic Property: | N | Remodel Property: | N |
| Multi-Family Redevelopment: | N | | |
| Township: | 7 | Section: | 26 |
| Range: | 35 |
Location |
| Address: | 788 WALLULA AVE WA 99362 | Mapsco: | |
| Neighborhood: | A SFR Rural/City Infl | Map ID: | |
| Neighborhood CD: | 313012 |
Owner |
| Name: | REYES SANTIAGO | Owner ID: | 64757 |
| Mailing Address: | 788 WALLULA AVE WALLA WALLA, WA 99362 | % Ownership: | 100.0000000000% |
| | | Exemptions: | |
Taxes and Assessment Details
Values
| (+) Improvement Homesite Value: | + | $0 | |
| (+) Improvement Non-Homesite Value: | + | $194,390 | |
| (+) Land Homesite Value: | + | $0 | |
| (+) Land Non-Homesite Value: | + | $131,890 | |
| (+) Curr Use (HS): | + | $0 | $0 |
| (+) Curr Use (NHS): | + | $0 | $0 |
| | | -------------------------- | |
| (=) Market Value: | = | $326,280 | |
| (–) Productivity Loss: | – | $0 | |
| | | -------------------------- | |
| (=) Subtotal: | = | $326,280 | |
| (+) Senior Appraised Value: | + | $0 | |
| (+) Non-Senior Appraised Value: | + | $326,280 | |
| | | -------------------------- | |
| (=) Total Appraised Value: | = | $326,280 | |
| (–) Senior Exemption Loss: | – | $0 | |
| (–) Exemption Loss: | – | $0 | |
| | | -------------------------- | |
| (=) Taxable Value: | = | $326,280 | |
Taxing Jurisdiction
| Owner: | REYES SANTIAGO | | |
| % Ownership: | 100.0000000000% | | |
| Total Value: | $326,280 | | |
| Tax Area: | 311 - 250-4 |
| CERFD | CURRENT EXPENSE REFUND 010 | 0.0000000000 | $326,280 | $326,280 | $0.00 | | |
| CURREXP | CURRENT EXPENSE 010 | 1.0175366760 | $326,280 | $326,280 | $332.00 | | |
| HUMNSERV | HUMAN SERVICES 119 | 0.0250000000 | $326,280 | $326,280 | $8.16 | | |
| SLDREL | SOLDIERS RELIEF 121 | 0.0155990005 | $326,280 | $326,280 | $5.09 | | |
| EMERGSER | EMS 147 | 0.3792580840 | $326,280 | $326,280 | $123.74 | | |
| EMSRFD | EMS REFUND 147 | 0.0000000000 | $326,280 | $326,280 | $0.00 | | |
| FD4EXP | FD #4 EXPENSE 686 | 0.8836993059 | $326,280 | $326,280 | $288.33 | | |
| RLBRFD | RURAL LIBRARY REFUND 623 | 0.0000000000 | $326,280 | $326,280 | $0.00 | | |
| RURALLIB | RURAL LIBRARY 623 | 0.3710609029 | $326,280 | $326,280 | $121.07 | | |
| PORTRFD | PORT REFUND 640 | 0.0000000000 | $326,280 | $326,280 | $0.00 | | |
| PORTWWGEN | PORT OF WW 640 | 0.2460186015 | $326,280 | $326,280 | $80.27 | | |
| SD250BOND | SD #250 BOND 773 | 1.4560608159 | $326,280 | $326,280 | $475.08 | | |
| SD250GEN | SD #250 GENERAL 770 | 2.3880724087 | $326,280 | $326,280 | $779.18 | | |
| ST2 | STATE SCHOOL PART 2 600 | 0.8131451643 | $326,280 | $326,280 | $265.31 | | |
| STATESCHL | STATE SCHOOL 600 | 1.5158548041 | $326,280 | $326,280 | $494.59 | | |
| STREFUND | STATE REFUND LEVY 603 | 0.0000000000 | $326,280 | $326,280 | $0.00 | | |
| COROAD | COUNTY ROAD 115 | 1.6549953990 | $326,280 | $326,280 | $539.99 | | |
| CRPRD | COUNTY ROAD REFUND 115 | 0.0000000000 | $326,280 | $326,280 | $0.00 | | |
| | Total Tax Rate: | 10.7663011628 | | | | | |
| | | | | Taxes w/Current Exemptions: | $3,512.81 | | |
| | | | | Taxes w/o Exemptions: | $3,512.81 | | |
Improvement / Building
| Improvement #1: | RESIDENTIAL | State Code: | 11 | 1144.0 sqft | Value: | $194,390 |
| Exterior Wall: | SIDING | Heating/Cooling: | GRAVITY FURNACE | | Number of Bathrooms: | 1 | Number of Bedrooms: | 2 | | Plumbing: | 6 | Roof Covering: | COMP SHINGLE |
|
| | Type | Description | Class CD | Sub Class CD | Year Built | Area |
| | MA | Main Area | 1 | 30 | 1910 | 1144.0 |
| | SI1 | SITE IMPROVEMENT | 1 | 30 | 0 | 1.0 |
| | S1F | Single One Story Fireplace | 1 | 30 | 1910 | 1.0 |
| | WOD | Wood Deck | 1 | 30 | 1910 | 96.0 |
| | BNV | BUILDING NO VALUE | 1 | 10 | 1910 | 2.0 |
| | RPO | OPEN PORCH W/ROOF | 1 | 30 | 1910 | 240.0 |
| | POL1 | POLE BUILDING-GRAVEL | 1 | 30 | 2023 | 1200.0 |
Sketch
Property Image
Land
| 1 | RES 1 | Converted: Residential | 1.0900 | 0.00 | 0.00 | 0.00 | 1.00 | $131,890 | $0 |
Roll Value History
| 2025 | N/A | N/A | N/A | N/A | N/A |
| 2024 | $194,390 | $131,890 | $0 | $326,280 | $326,280 |
| 2023 | $194,390 | $131,890 | $0 | $326,280 | $326,280 |
| 2022 | $139,830 | $131,890 | $0 | $271,720 | $271,720 |
| 2021 | $91,960 | $75,700 | $0 | $167,660 | $167,660 |
| 2020 | $25,400 | $75,700 | $0 | $101,100 | $101,100 |
| 2019 | $25,400 | $75,700 | $0 | $101,100 | $101,100 |
| 2018 | $25,400 | $75,700 | $0 | $101,100 | $101,100 |
| 2017 | $25,400 | $75,700 | $0 | $101,100 | $101,100 |
| 2016 | $25,400 | $75,700 | $0 | $101,100 | $101,100 |
| 2015 | $13,500 | $75,700 | $0 | $89,200 | $89,200 |
| 2014 | $13,500 | $75,700 | $0 | $89,200 | $89,200 |
| 2013 | $13,500 | $75,700 | $0 | $89,200 | $89,200 |
| 2012 | $13,500 | $75,700 | $0 | $0 | $0 |
| 2011 | $13,500 | $75,700 | $0 | $0 | $0 |
| 2010 | $19,100 | $75,700 | $0 | $0 | $0 |
| 2009 | $59,900 | $45,400 | $0 | $0 | $0 |
| 2008 | $20,400 | $45,400 | $0 | $0 | $0 |
| 2007 | $20,400 | $45,400 | $0 | $0 | $0 |
| 2006 | $20,400 | $45,400 | $0 | $0 | $0 |
Deed and Sales History
| 1 | 03/05/2019 | SWD | STATUTORY WARRANTY DEED | PIKE LESLIE THOMAS ESTATE OF | REYES SANTIAGO | | | $150,000.00 | 136471 | 2019-01436 |
| 2 | 08/13/1965 | WARRANTY D | WARRANTY DEED | | | | | $0.00 | 0 | 2805-45790 |
Payout Agreement
| No payout information available.. |