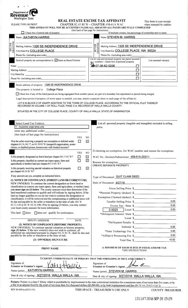
Property
Account |
| Property ID: | 3766 | Abbreviated Legal Description: | SUNSET VILLA MH PARK LESS NELY PTN LOT 6 BLK 9 |
| Parcel Number: | 350725600906 | Agent Code: | |
| Type: | Real | | |
| Tax Area: | 78 - CP-140-F | Land Use Code | 45 |
| Open Space: | N | DFL | N |
| Historic Property: | N | Remodel Property: | N |
| Multi-Family Redevelopment: | N | | |
| Township: | 7 | Section: | 25 |
| Range: | 35 |
Location |
| Address: | 205 HATCH ST WA 99324 | Mapsco: | |
| Neighborhood: | PORT AND AREA | Map ID: | |
| Neighborhood CD: | 3330 |
Owner |
| Name: | COLLEGE PLACE CITY OF | Owner ID: | 2109 |
| Mailing Address: | C/O ACCOUNTS PAYABLE 625 S COLLEGE AVE COLLEGE PLACE, WA 99324 | % Ownership: | 100.0000000000% |
| | | Exemptions: | EX |
Taxes and Assessment Details
Values
| (+) Improvement Homesite Value: | + | $0 | |
| (+) Improvement Non-Homesite Value: | + | $0 | |
| (+) Land Homesite Value: | + | $0 | |
| (+) Land Non-Homesite Value: | + | $31,400 | |
| (+) Curr Use (HS): | + | $0 | $0 |
| (+) Curr Use (NHS): | + | $0 | $0 |
| | | -------------------------- | |
| (=) Market Value: | = | $31,400 | |
| (–) Productivity Loss: | – | $0 | |
| | | -------------------------- | |
| (=) Subtotal: | = | $31,400 | |
| (+) Senior Appraised Value: | + | $0 | |
| (+) Non-Senior Appraised Value: | + | $31,400 | |
| | | -------------------------- | |
| (=) Total Appraised Value: | = | $31,400 | |
| (–) Senior Exemption Loss: | – | $0 | |
| (–) Exemption Loss: | – | $31,400 | |
| | | -------------------------- | |
| (=) Taxable Value: | = | $0 | |
Taxing Jurisdiction
| Owner: | COLLEGE PLACE CITY OF | | |
| % Ownership: | 100.0000000000% | | |
| Total Value: | $31,400 | | |
| Tax Area: | 78 - CP-140-F |
| CERFD | CURRENT EXPENSE REFUND 010 | 0.0000000000 | $31,400 | $0 | $0.00 | | |
| CURREXP | CURRENT EXPENSE 010 | 1.0175366760 | $31,400 | $0 | $0.00 | | |
| HUMNSERV | HUMAN SERVICES 119 | 0.0250000000 | $31,400 | $0 | $0.00 | | |
| SLDREL | SOLDIERS RELIEF 121 | 0.0155990005 | $31,400 | $0 | $0.00 | | |
| COLLPLBOND | C OF CP BOND 644 | 0.4374241808 | $31,400 | $0 | $0.00 | | |
| COLLPLGEN | CITY OF CP 632 | 1.4453819216 | $31,400 | $0 | $0.00 | | |
| EMERGSER | EMS 147 | 0.3792580840 | $31,400 | $0 | $0.00 | | |
| EMSRFD | EMS REFUND 147 | 0.0000000000 | $31,400 | $0 | $0.00 | | |
| RURALLIB | RURAL LIBRARY 623 | 0.3710609029 | $31,400 | $0 | $0.00 | | |
| PORTRFD | PORT REFUND 640 | 0.0000000000 | $31,400 | $0 | $0.00 | | |
| PORTWWGEN | PORT OF WW 640 | 0.2460186015 | $31,400 | $0 | $0.00 | | |
| SD140BOND | SD #140 BOND 764 | 0.8342371393 | $31,400 | $0 | $0.00 | | |
| SD140GEN | SD #140 GENERAL 760 | 2.0646500647 | $31,400 | $0 | $0.00 | | |
| ST2 | STATE SCHOOL PART 2 600 | 0.8131451643 | $31,400 | $0 | $0.00 | | |
| STATESCHL | STATE SCHOOL 600 | 1.5158548041 | $31,400 | $0 | $0.00 | | |
| STREFUND | STATE REFUND LEVY 603 | 0.0000000000 | $31,400 | $0 | $0.00 | | |
| | Total Tax Rate: | 9.1651665397 | | | | | |
| | | | | Taxes w/Current Exemptions: | $0.00 | | |
| | | | | Taxes w/o Exemptions: | $287.79 | | |
Improvement / Building
Sketch
| No sketches available for this property. |
Property Image
Land
| 1 | RES 1 | Converted: Residential | 0.3465 | 15093.54 | 0.00 | 0.00 | 1.00 | $31,400 | $0 |
Roll Value History
| 2025 | N/A | N/A | N/A | N/A | N/A |
| 2024 | $0 | $31,400 | $0 | $31,400 | $0 |
| 2023 | $0 | $31,400 | $0 | $31,400 | $0 |
| 2022 | $0 | $31,400 | $0 | $31,400 | $0 |
| 2021 | $0 | $8,300 | $0 | $8,300 | $0 |
| 2020 | $0 | $8,300 | $0 | $8,300 | $0 |
| 2019 | $0 | $8,300 | $0 | $8,300 | $0 |
| 2018 | $0 | $8,300 | $0 | $8,300 | $0 |
| 2017 | $0 | $8,300 | $0 | $8,300 | $0 |
| 2016 | $0 | $8,300 | $0 | $8,300 | $0 |
| 2015 | $0 | $15,100 | $0 | $15,100 | $0 |
| 2014 | $0 | $15,100 | $0 | $15,100 | $0 |
| 2013 | $0 | $15,100 | $0 | $15,100 | $0 |
| 2012 | $0 | $0 | $0 | $0 | $0 |
| 2011 | $0 | $0 | $0 | $0 | $0 |
| 2010 | $0 | $0 | $0 | $0 | $0 |
| 2009 | $0 | $0 | $0 | $0 | $0 |
| 2008 | $0 | $0 | $0 | $0 | $0 |
| 2007 | $0 | $0 | $0 | $0 | $0 |
| 2006 | $64,500 | $22,600 | $0 | $0 | $0 |
Deed and Sales History
| 1 | 05/04/2010 | WARRANTY D | WARRANTY DEED | WALLA WALLA COUNTY OF | COLLEGE PLACE CITY OF | | | | 118422 | 2010-03435 |
| 2 | 01/27/2006 | WARRANTY D | WARRANTY DEED | SINGER, ROBERT D & WANDA A | WALLA WALLA COUNTY OF | | | | 109552 | 2006-01062 |
| 3 | 07/11/1986 | WARRANTY D | WARRANTY DEED | | | | | $50,000.00 | 0 | 1588-605179 |
Payout Agreement
| No payout information available.. |