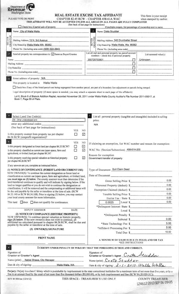
Property
Account |
| Property ID: | 3714 | Abbreviated Legal Description: | MT VISTA ADDN LOT 10 BLK 2 |
| Parcel Number: | 350725560210 | Agent Code: | |
| Type: | Real | | |
| Tax Area: | 75 - CP 250 | Land Use Code | 11 |
| Open Space: | N | DFL | N |
| Historic Property: | N | Remodel Property: | N |
| Multi-Family Redevelopment: | N | | |
| Township: | 7 | Section: | 25 |
| Range: | 35 |
Location |
| Address: | 31 NE TREMONT DR WA 99324 | Mapsco: | |
| Neighborhood: | G SFR | Map ID: | |
| Neighborhood CD: | 114011 |
Owner |
| Name: | THE BEVERLY BEEM TRUST | Owner ID: | 54755 |
| Mailing Address: | BEVERLY GRACE BEEM TRUSTEE 31 NE TREMONT DR COLLEGE PLACE, WA 99324 | % Ownership: | 100.0000000000% |
| | | Exemptions: | |
Taxes and Assessment Details
Values
| (+) Improvement Homesite Value: | + | $0 | |
| (+) Improvement Non-Homesite Value: | + | $308,720 | |
| (+) Land Homesite Value: | + | $0 | |
| (+) Land Non-Homesite Value: | + | $75,000 | |
| (+) Curr Use (HS): | + | $0 | $0 |
| (+) Curr Use (NHS): | + | $0 | $0 |
| | | -------------------------- | |
| (=) Market Value: | = | $383,720 | |
| (–) Productivity Loss: | – | $0 | |
| | | -------------------------- | |
| (=) Subtotal: | = | $383,720 | |
| (+) Senior Appraised Value: | + | $0 | |
| (+) Non-Senior Appraised Value: | + | $383,720 | |
| | | -------------------------- | |
| (=) Total Appraised Value: | = | $383,720 | |
| (–) Senior Exemption Loss: | – | $0 | |
| (–) Exemption Loss: | – | $0 | |
| | | -------------------------- | |
| (=) Taxable Value: | = | $383,720 | |
Taxing Jurisdiction
| Owner: | THE BEVERLY BEEM TRUST | | |
| % Ownership: | 100.0000000000% | | |
| Total Value: | $383,720 | | |
| Tax Area: | 75 - CP 250 |
| CERFD | CURRENT EXPENSE REFUND 010 | 0.0000000000 | $383,720 | $383,720 | $0.00 | | |
| CURREXP | CURRENT EXPENSE 010 | 1.0175366760 | $383,720 | $383,720 | $390.45 | | |
| HUMNSERV | HUMAN SERVICES 119 | 0.0250000000 | $383,720 | $383,720 | $9.59 | | |
| SLDREL | SOLDIERS RELIEF 121 | 0.0155990005 | $383,720 | $383,720 | $5.99 | | |
| COLLPLBOND | C OF CP BOND 644 | 0.4374241808 | $383,720 | $383,720 | $167.85 | | |
| COLLPLGEN | CITY OF CP 632 | 1.4453819216 | $383,720 | $383,720 | $554.62 | | |
| EMERGSER | EMS 147 | 0.3792580840 | $383,720 | $383,720 | $145.53 | | |
| EMSRFD | EMS REFUND 147 | 0.0000000000 | $383,720 | $383,720 | $0.00 | | |
| RURALLIB | RURAL LIBRARY 623 | 0.3710609029 | $383,720 | $383,720 | $142.38 | | |
| PORTRFD | PORT REFUND 640 | 0.0000000000 | $383,720 | $383,720 | $0.00 | | |
| PORTWWGEN | PORT OF WW 640 | 0.2460186015 | $383,720 | $383,720 | $94.40 | | |
| SD250BOND | SD #250 BOND 773 | 1.4560608159 | $383,720 | $383,720 | $558.72 | | |
| SD250GEN | SD #250 GENERAL 770 | 2.3880724087 | $383,720 | $383,720 | $916.35 | | |
| ST2 | STATE SCHOOL PART 2 600 | 0.8131451643 | $383,720 | $383,720 | $312.02 | | |
| STATESCHL | STATE SCHOOL 600 | 1.5158548041 | $383,720 | $383,720 | $581.66 | | |
| STREFUND | STATE REFUND LEVY 603 | 0.0000000000 | $383,720 | $383,720 | $0.00 | | |
| | Total Tax Rate: | 10.1104125603 | | | | | |
| | | | | Taxes w/Current Exemptions: | $3,879.56 | | |
| | | | | Taxes w/o Exemptions: | $3,879.56 | | |
Improvement / Building
| Improvement #1: | RESIDENTIAL | State Code: | 11 | 1243.0 sqft | Value: | $308,720 |
| Exterior Wall: | PLYWOOD | Heating/Cooling: | REV-HEAT-PUMP-W/DUCT | | Number of Bathrooms: | 4 | Number of Bedrooms: | 3 | | Plumbing: | 15 | Roof Covering: | COMP SHINGLE |
|
| | Type | Description | Class CD | Sub Class CD | Year Built | Area |
| | MA | Main Area | 1 | 35 | 1977 | 1243.0 |
| | SI1 | SITE IMPROVEMENT | 1 | 35 | 1977 | 2.0 |
| | BASE | BASEMENT | 1 | 35 | 1977 | 1243.0 |
| | BPF | BASEMENT -PARTITIONED FINISH | 1 | 35 | 1977 | 1243.0 |
| | ATG | Attached Garage | 1 | 35 | 1977 | 576.0 |
| | OUT | OUTSIDE BASEMENT ENTRY | 1 | 35 | 1977 | 1.0 |
| | WOD | Wood Deck | 1 | 35 | 1977 | 112.0 |
| | D2F | Double 2 Story Fireplace | 1 | 35 | 1977 | 1.0 |
Sketch
Property Image
Land
| 1 | RES 1 | Converted: Residential | 0.2471 | 10762.00 | 0.00 | 0.00 | 1.00 | $75,000 | $0 |
Roll Value History
| 2025 | N/A | N/A | N/A | N/A | N/A |
| 2024 | $308,720 | $75,000 | $0 | $383,720 | $383,720 |
| 2023 | $308,720 | $75,000 | $0 | $383,720 | $383,720 |
| 2022 | $308,720 | $75,000 | $0 | $383,720 | $383,720 |
| 2021 | $237,470 | $75,000 | $0 | $312,470 | $312,470 |
| 2020 | $131,930 | $75,000 | $0 | $206,930 | $206,930 |
| 2019 | $146,930 | $60,000 | $0 | $206,930 | $206,930 |
| 2018 | $127,760 | $60,000 | $0 | $187,760 | $187,760 |
| 2017 | $127,760 | $60,000 | $0 | $187,760 | $187,760 |
| 2016 | $121,680 | $60,000 | $0 | $181,680 | $181,680 |
| 2015 | $121,680 | $60,000 | $0 | $181,680 | $181,680 |
| 2014 | $152,100 | $60,000 | $0 | $212,100 | $212,100 |
| 2013 | $152,100 | $60,000 | $0 | $212,100 | $212,100 |
| 2012 | $152,100 | $60,000 | $0 | $0 | $0 |
| 2011 | $152,100 | $60,000 | $0 | $0 | $0 |
| 2010 | $152,100 | $60,000 | $0 | $0 | $0 |
| 2009 | $163,300 | $60,000 | $0 | $0 | $0 |
| 2008 | $126,500 | $30,000 | $0 | $0 | $0 |
| 2007 | $126,500 | $30,000 | $0 | $0 | $0 |
| 2006 | $126,500 | $30,000 | $0 | $0 | $0 |
Deed and Sales History
| 1 | 03/19/2014 | QCD | QUIT CLAIM DEED | BEEM BEVERLY G | THE BEVERLY BEEM TRUST | | | | 125586 | 2014-01865 |
| 2 | 10/19/1976 | WARRANTY D | WARRANTY DEED | | | | | $4,000.00 | 0 | 4905-58593 |
Payout Agreement
| No payout information available.. |