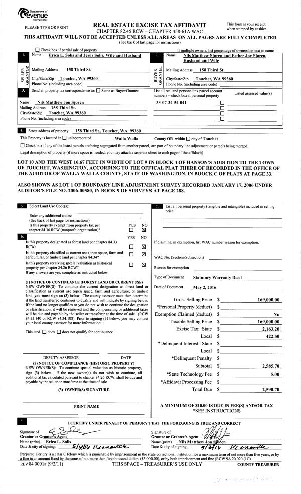
Property
Account |
| Property ID: | 3663 | Abbreviated Legal Description: | BLALOCK ORCHARDS NLY PTN OF E 105.89' OF LOT 4 BLK 26 |
| Parcel Number: | 350725522631 | Agent Code: | |
| Type: | Real | | |
| Tax Area: | 311 - 250-4 | Land Use Code | 11 |
| Open Space: | N | DFL | N |
| Historic Property: | N | Remodel Property: | N |
| Multi-Family Redevelopment: | N | | |
| Township: | 7 | Section: | 25 |
| Range: | 35 |
Location |
| Address: | 445 WALLULA AVE WA 99324 | Mapsco: | |
| Neighborhood: | A SFR Rural/City Infl | Map ID: | |
| Neighborhood CD: | 313012 |
Owner |
| Name: | BUTCHER BRET HC & JACQUELINE WOODARD | Owner ID: | 70166 |
| Mailing Address: | CRAIG R & ANNA WOODARD 445 WALLULA AVE WALLA WALLA, WA 99362 | % Ownership: | 100.0000000000% |
| | | Exemptions: | |
Taxes and Assessment Details
Values
| (+) Improvement Homesite Value: | + | $0 | |
| (+) Improvement Non-Homesite Value: | + | $292,980 | |
| (+) Land Homesite Value: | + | $0 | |
| (+) Land Non-Homesite Value: | + | $95,500 | |
| (+) Curr Use (HS): | + | $0 | $0 |
| (+) Curr Use (NHS): | + | $0 | $0 |
| | | -------------------------- | |
| (=) Market Value: | = | $388,480 | |
| (–) Productivity Loss: | – | $0 | |
| | | -------------------------- | |
| (=) Subtotal: | = | $388,480 | |
| (+) Senior Appraised Value: | + | $0 | |
| (+) Non-Senior Appraised Value: | + | $388,480 | |
| | | -------------------------- | |
| (=) Total Appraised Value: | = | $388,480 | |
| (–) Senior Exemption Loss: | – | $0 | |
| (–) Exemption Loss: | – | $0 | |
| | | -------------------------- | |
| (=) Taxable Value: | = | $388,480 | |
Taxing Jurisdiction
| Owner: | BUTCHER BRET HC & JACQUELINE WOODARD | | |
| % Ownership: | 100.0000000000% | | |
| Total Value: | $388,480 | | |
| Tax Area: | 311 - 250-4 |
| CERFD | CURRENT EXPENSE REFUND 010 | 0.0000000000 | $388,480 | $388,480 | $0.00 | | |
| CURREXP | CURRENT EXPENSE 010 | 1.0175366760 | $388,480 | $388,480 | $395.29 | | |
| HUMNSERV | HUMAN SERVICES 119 | 0.0250000000 | $388,480 | $388,480 | $9.71 | | |
| SLDREL | SOLDIERS RELIEF 121 | 0.0155990005 | $388,480 | $388,480 | $6.06 | | |
| EMERGSER | EMS 147 | 0.3792580840 | $388,480 | $388,480 | $147.33 | | |
| EMSRFD | EMS REFUND 147 | 0.0000000000 | $388,480 | $388,480 | $0.00 | | |
| FD4EXP | FD #4 EXPENSE 686 | 0.8836993059 | $388,480 | $388,480 | $343.30 | | |
| RLBRFD | RURAL LIBRARY REFUND 623 | 0.0000000000 | $388,480 | $388,480 | $0.00 | | |
| RURALLIB | RURAL LIBRARY 623 | 0.3710609029 | $388,480 | $388,480 | $144.15 | | |
| PORTRFD | PORT REFUND 640 | 0.0000000000 | $388,480 | $388,480 | $0.00 | | |
| PORTWWGEN | PORT OF WW 640 | 0.2460186015 | $388,480 | $388,480 | $95.57 | | |
| SD250BOND | SD #250 BOND 773 | 1.4560608159 | $388,480 | $388,480 | $565.65 | | |
| SD250GEN | SD #250 GENERAL 770 | 2.3880724087 | $388,480 | $388,480 | $927.72 | | |
| ST2 | STATE SCHOOL PART 2 600 | 0.8131451643 | $388,480 | $388,480 | $315.89 | | |
| STATESCHL | STATE SCHOOL 600 | 1.5158548041 | $388,480 | $388,480 | $588.88 | | |
| STREFUND | STATE REFUND LEVY 603 | 0.0000000000 | $388,480 | $388,480 | $0.00 | | |
| COROAD | COUNTY ROAD 115 | 1.6549953990 | $388,480 | $388,480 | $642.93 | | |
| CRPRD | COUNTY ROAD REFUND 115 | 0.0000000000 | $388,480 | $388,480 | $0.00 | | |
| | Total Tax Rate: | 10.7663011628 | | | | | |
| | | | | Taxes w/Current Exemptions: | $4,182.48 | | |
| | | | | Taxes w/o Exemptions: | $4,182.48 | | |
Improvement / Building
| Improvement #1: | RESIDENTIAL | State Code: | 11 | 1476.0 sqft | Value: | $292,980 |
| Exterior Wall: | SIDING | Heating/Cooling: | WARM & COOLED AIR | | Number of Bathrooms: | 1 | Number of Bedrooms: | 4 | | Plumbing: | 6 | Roof Covering: | COMP SHINGLE |
|
| | Type | Description | Class CD | Sub Class CD | Year Built | Area |
| | MA | Main Area | 4 | 30 | 1915 | 1476.0 |
| | SI1 | SITE IMPROVEMENT | 4 | 30 | 0 | 4.0 |
| | UPFL | Upper Floor (included in main area) | 4 | 30 | 1915 | 370.0 |
| | BASE | BASEMENT | 4 | 30 | 1915 | 532.0 |
| | WDR | WOOD DECK W/ROOF | 4 | 30 | 1915 | 98.0 |
| | CPC | COVERED CARPORT/PATIO | 4 | 30 | 1915 | 70.0 |
| | DTG | Detached Garage | 1 | 30 | 1915 | 912.0 |
Sketch
Property Image
Land
| 1 | RES 1 | Converted: Residential | 0.5800 | 25264.00 | 0.00 | 0.00 | 1.00 | $95,500 | $0 |
Roll Value History
| 2025 | N/A | N/A | N/A | N/A | N/A |
| 2024 | $292,980 | $95,500 | $0 | $388,480 | $388,480 |
| 2023 | $292,980 | $95,500 | $0 | $388,480 | $388,480 |
| 2022 | $292,980 | $95,500 | $0 | $388,480 | $388,480 |
| 2021 | $186,970 | $60,100 | $0 | $247,070 | $247,070 |
| 2020 | $155,810 | $60,100 | $0 | $215,910 | $215,910 |
| 2019 | $155,810 | $60,100 | $0 | $215,910 | $215,910 |
| 2018 | $145,610 | $60,100 | $0 | $205,710 | $205,710 |
| 2017 | $112,010 | $60,100 | $0 | $172,110 | $172,110 |
| 2016 | $112,010 | $60,100 | $0 | $172,110 | $172,110 |
| 2015 | $110,600 | $60,100 | $0 | $170,700 | $170,700 |
| 2014 | $110,600 | $60,100 | $0 | $170,700 | $170,700 |
| 2013 | $110,600 | $60,100 | $0 | $170,700 | $170,700 |
| 2012 | $110,600 | $60,100 | $0 | $0 | $0 |
| 2011 | $110,600 | $60,100 | $0 | $0 | $0 |
| 2010 | $116,300 | $60,100 | $0 | $0 | $0 |
| 2009 | $157,700 | $38,300 | $0 | $0 | $0 |
| 2008 | $84,200 | $38,300 | $0 | $0 | $0 |
| 2007 | $84,200 | $38,300 | $0 | $0 | $0 |
| 2006 | $84,200 | $38,300 | $0 | $0 | $0 |
Deed and Sales History
| 1 | 08/25/2021 | SWD | STATUTORY WARRANTY DEED | GRABER TYLER W | BUTCHER BRET HC & JACQUELINE WOODARD | | | $410,000.00 | 142354 | 2021-10428 |
| 2 | 05/16/2017 | SWD | STATUTORY WARRANTY DEED | MEAD ROBERT D & DAWN D | GRABER TYLER W | | | $229,500.00 | 132401 | 2017-03709 |
| 3 | 04/30/2003 | WARRANTY D | WARRANTY DEED | PARKER, RICHARD L & DANIELLE | MEAD, ROBERT D & DAWN D | | | $123,000.00 | 101969 | 2003-06216 |
| 4 | 06/01/1998 | WARRANTY D | WARRANTY DEED | | | | | $90,000.00 | 90521 | 2689-805982 |
Payout Agreement
| No payout information available.. |