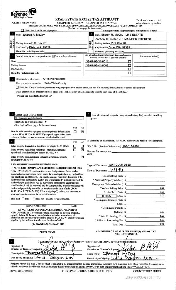
Property
Account |
| Property ID: | 35998 | Abbreviated Legal Description: | WHITMAN P.U.D. PHASE IV LOT 13 BLOCK 1 LESS ELY STRIP PLUS STRIPFROM LOT 14 |
| Parcel Number: | 350736480113 | Agent Code: | |
| Type: | Real | | |
| Tax Area: | 75 - CP 250 | Land Use Code | 11 |
| Open Space: | N | DFL | N |
| Historic Property: | N | Remodel Property: | N |
| Multi-Family Redevelopment: | N | | |
| Township: | | Section: | |
| Range: | |
Location |
| Address: | 744 SE BEDFORD LOOP WA 99324 | Mapsco: | |
| Neighborhood: | G SFR | Map ID: | |
| Neighborhood CD: | 114011 |
Owner |
| Name: | LINTERMAN PENELOPE E | Owner ID: | 62885 |
| Mailing Address: | 744 SE BEDFORD LOOP COLLEGE PLACE, WA 99324 | % Ownership: | 100.0000000000% |
| | | Exemptions: | |
Taxes and Assessment Details
Values
| (+) Improvement Homesite Value: | + | $0 | |
| (+) Improvement Non-Homesite Value: | + | $303,360 | |
| (+) Land Homesite Value: | + | $0 | |
| (+) Land Non-Homesite Value: | + | $70,000 | |
| (+) Curr Use (HS): | + | $0 | $0 |
| (+) Curr Use (NHS): | + | $0 | $0 |
| | | -------------------------- | |
| (=) Market Value: | = | $373,360 | |
| (–) Productivity Loss: | – | $0 | |
| | | -------------------------- | |
| (=) Subtotal: | = | $373,360 | |
| (+) Senior Appraised Value: | + | $0 | |
| (+) Non-Senior Appraised Value: | + | $373,360 | |
| | | -------------------------- | |
| (=) Total Appraised Value: | = | $373,360 | |
| (–) Senior Exemption Loss: | – | $0 | |
| (–) Exemption Loss: | – | $0 | |
| | | -------------------------- | |
| (=) Taxable Value: | = | $373,360 | |
Taxing Jurisdiction
| Owner: | LINTERMAN PENELOPE E | | |
| % Ownership: | 100.0000000000% | | |
| Total Value: | $373,360 | | |
| Tax Area: | 75 - CP 250 |
| CERFD | CURRENT EXPENSE REFUND 010 | 0.0000000000 | $373,360 | $373,360 | $0.00 | | |
| CURREXP | CURRENT EXPENSE 010 | 1.0175366760 | $373,360 | $373,360 | $379.91 | | |
| HUMNSERV | HUMAN SERVICES 119 | 0.0250000000 | $373,360 | $373,360 | $9.33 | | |
| SLDREL | SOLDIERS RELIEF 121 | 0.0155990005 | $373,360 | $373,360 | $5.82 | | |
| COLLPLBOND | C OF CP BOND 644 | 0.4374241808 | $373,360 | $373,360 | $163.32 | | |
| COLLPLGEN | CITY OF CP 632 | 1.4453819216 | $373,360 | $373,360 | $539.65 | | |
| EMERGSER | EMS 147 | 0.3792580840 | $373,360 | $373,360 | $141.60 | | |
| EMSRFD | EMS REFUND 147 | 0.0000000000 | $373,360 | $373,360 | $0.00 | | |
| RURALLIB | RURAL LIBRARY 623 | 0.3710609029 | $373,360 | $373,360 | $138.54 | | |
| PORTRFD | PORT REFUND 640 | 0.0000000000 | $373,360 | $373,360 | $0.00 | | |
| PORTWWGEN | PORT OF WW 640 | 0.2460186015 | $373,360 | $373,360 | $91.85 | | |
| SD250BOND | SD #250 BOND 773 | 1.4560608159 | $373,360 | $373,360 | $543.63 | | |
| SD250GEN | SD #250 GENERAL 770 | 2.3880724087 | $373,360 | $373,360 | $891.61 | | |
| ST2 | STATE SCHOOL PART 2 600 | 0.8131451643 | $373,360 | $373,360 | $303.60 | | |
| STATESCHL | STATE SCHOOL 600 | 1.5158548041 | $373,360 | $373,360 | $565.96 | | |
| STREFUND | STATE REFUND LEVY 603 | 0.0000000000 | $373,360 | $373,360 | $0.00 | | |
| | Total Tax Rate: | 10.1104125603 | | | | | |
| | | | | Taxes w/Current Exemptions: | $3,774.82 | | |
| | | | | Taxes w/o Exemptions: | $3,774.82 | | |
Improvement / Building
| Improvement #1: | RESIDENTIAL | State Code: | 11 | 1340.0 sqft | Value: | $303,360 |
| Exterior Wall: | HARDBOARD | Heating/Cooling: | HEAT PUMP | | Number of Bathrooms: | 2 | Number of Bedrooms: | 3 | | Plumbing: | 10 | Roof Covering: | COMP SHINGLE |
|
| | Type | Description | Class CD | Sub Class CD | Year Built | Area |
| | MA | Main Area | 1 | 35 | 2014 | 1340.0 |
| | ATG | Attached Garage | 1 | 35 | 2014 | 420.0 |
| | RPO | OPEN PORCH W/ROOF | 1 | 35 | 2014 | 32.0 |
| | SI1 | SITE IMPROVEMENT | 1 | 35 | 2014 | 1.5 |
| | OSP | Open | 1 | 35 | 2014 | 400.0 |
Sketch
Property Image
Land
| 1 | RES 1 | Converted: Residential | 0.1212 | 5279.00 | 0.00 | 0.00 | 1.00 | $70,000 | $0 |
Roll Value History
| 2025 | N/A | N/A | N/A | N/A | N/A |
| 2024 | $303,360 | $70,000 | $0 | $373,360 | $373,360 |
| 2023 | $303,360 | $70,000 | $0 | $373,360 | $373,360 |
| 2022 | $242,690 | $70,000 | $0 | $312,690 | $312,690 |
| 2021 | $194,150 | $70,000 | $0 | $264,150 | $264,150 |
| 2020 | $161,790 | $70,000 | $0 | $231,790 | $231,790 |
| 2019 | $196,790 | $35,000 | $0 | $231,790 | $231,790 |
| 2018 | $171,120 | $35,000 | $0 | $206,120 | $206,120 |
| 2017 | $148,800 | $35,000 | $0 | $183,800 | $183,800 |
| 2016 | $148,800 | $35,000 | $0 | $183,800 | $183,800 |
| 2015 | $148,800 | $35,000 | $0 | $183,800 | $183,800 |
| 2014 | $133,900 | $35,000 | $0 | $168,900 | $168,900 |
| 2013 | $0 | $35,000 | $0 | $35,000 | $35,000 |
| 2012 | $0 | $65,000 | $0 | $0 | $0 |
| 2011 | $0 | $65,000 | $0 | $0 | $0 |
| 2010 | $0 | $65,000 | $0 | $0 | $0 |
| 2009 | $0 | $65,000 | $0 | $0 | $0 |
| 2008 | $0 | $2,300 | $0 | $0 | $0 |
| 2007 | $0 | $2,300 | $0 | $0 | $0 |
| 2006 | $0 | $2,300 | $0 | $0 | $0 |
Deed and Sales History
| 1 | 09/19/2024 | SWD | STATUTORY WARRANTY DEED | LINTERMAN PENELOPE E | ESCALANTE JULIE | | | $420,000.00 | 148220 | 2024-05365 |
| 2 | 04/10/2018 | SWD | STATUTORY WARRANTY DEED | GODING MARTIN A | LINTERMAN PENELOPE E | | | $235,000.00 | 134474 | 2018-02735 |
| 3 | 12/22/2014 | SWD | STATUTORY WARRANTY DEED | BLUE SKY CONSTRUCTION & DEVELOPMENT LLC | GODING MARTIN A | | | $188,200.00 | 127161 | 2014-09288 |
| 4 | 10/03/2013 | WARRANTY D | WARRANTY DEED | WHITMAN DEVELOPMENT CORP | BLUE SKY CONSTRUCTION &~DEVELO | | | $33,500.00 | 124773 | 2013-10070 |
Payout Agreement
| No payout information available.. |