Property
Account |
| Property ID: | 3597 | Abbreviated Legal Description: | BLALOCK LOTS 1-2 & E1/2 OF LOT 3 BLK 3 |
| Parcel Number: | 350725510301 | Agent Code: | |
| Type: | Real | | |
| Tax Area: | 1 - OL-140-F | Land Use Code | 11 |
| Open Space: | N | DFL | N |
| Historic Property: | N | Remodel Property: | N |
| Multi-Family Redevelopment: | N | | |
| Township: | 7 | Section: | 25 |
| Range: | 35 |
Location |
| Address: | 307 ARTESIA AVE WA 99362 | Mapsco: | |
| Neighborhood: | A SFR Rural/City Infl | Map ID: | |
| Neighborhood CD: | 313012 |
Owner |
| Name: | DIAZ-SALGADO FRANCISCO C | Owner ID: | 56800 |
| Mailing Address: | 307 ARTESIA AVE WALLA WALLA, WA 99362 | % Ownership: | 100.0000000000% |
| | | Exemptions: | |
Taxes and Assessment Details
Values
| (+) Improvement Homesite Value: | + | $0 | |
| (+) Improvement Non-Homesite Value: | + | $144,670 | |
| (+) Land Homesite Value: | + | $0 | |
| (+) Land Non-Homesite Value: | + | $76,050 | |
| (+) Curr Use (HS): | + | $0 | $0 |
| (+) Curr Use (NHS): | + | $0 | $0 |
| | | -------------------------- | |
| (=) Market Value: | = | $220,720 | |
| (–) Productivity Loss: | – | $0 | |
| | | -------------------------- | |
| (=) Subtotal: | = | $220,720 | |
| (+) Senior Appraised Value: | + | $0 | |
| (+) Non-Senior Appraised Value: | + | $220,720 | |
| | | -------------------------- | |
| (=) Total Appraised Value: | = | $220,720 | |
| (–) Senior Exemption Loss: | – | $0 | |
| (–) Exemption Loss: | – | $0 | |
| | | -------------------------- | |
| (=) Taxable Value: | = | $220,720 | |
Taxing Jurisdiction
| Owner: | DIAZ-SALGADO FRANCISCO C | | |
| % Ownership: | 100.0000000000% | | |
| Total Value: | $220,720 | | |
| Tax Area: | 1 - OL-140-F |
| CERFD | CURRENT EXPENSE REFUND 010 | 0.0000000000 | $220,720 | $220,720 | $0.00 | | |
| CURREXP | CURRENT EXPENSE 010 | 1.0175366760 | $220,720 | $220,720 | $224.59 | | |
| HUMNSERV | HUMAN SERVICES 119 | 0.0250000000 | $220,720 | $220,720 | $5.52 | | |
| SLDREL | SOLDIERS RELIEF 121 | 0.0155990005 | $220,720 | $220,720 | $3.44 | | |
| EMERGSER | EMS 147 | 0.3792580840 | $220,720 | $220,720 | $83.71 | | |
| EMSRFD | EMS REFUND 147 | 0.0000000000 | $220,720 | $220,720 | $0.00 | | |
| PORTRFD | PORT REFUND 640 | 0.0000000000 | $220,720 | $220,720 | $0.00 | | |
| PORTWWGEN | PORT OF WW 640 | 0.2460186015 | $220,720 | $220,720 | $54.30 | | |
| SD140BOND | SD #140 BOND 764 | 0.8342371393 | $220,720 | $220,720 | $184.13 | | |
| SD140GEN | SD #140 GENERAL 760 | 2.0646500647 | $220,720 | $220,720 | $455.71 | | |
| ST2 | STATE SCHOOL PART 2 600 | 0.8131451643 | $220,720 | $220,720 | $179.48 | | |
| STATESCHL | STATE SCHOOL 600 | 1.5158548041 | $220,720 | $220,720 | $334.58 | | |
| STREFUND | STATE REFUND LEVY 603 | 0.0000000000 | $220,720 | $220,720 | $0.00 | | |
| CWWBOND | C OF WW BOND 643 | 0.2760494372 | $220,720 | $220,720 | $60.93 | | |
| CWWGEN | CITY OF WW 631 | 1.6100204973 | $220,720 | $220,720 | $355.36 | | |
| CWWRFD | CITY OF WALLA WALLA REFUND 631 | 0.0000000000 | $220,720 | $220,720 | $0.00 | | |
| | Total Tax Rate: | 8.7973694689 | | | | | |
| | | | | Taxes w/Current Exemptions: | $1,941.75 | | |
| | | | | Taxes w/o Exemptions: | $1,941.75 | | |
Improvement / Building
| Improvement #1: | RESIDENTIAL | State Code: | 11 | 1158.0 sqft | Value: | $144,670 |
| Exterior Wall: | PLYWOOD | Heating/Cooling: | FORCED AIR | | Number of Bathrooms: | 1 | Number of Bedrooms: | 2 | | Plumbing: | 6 | Roof Covering: | COMP SHINGLE |
|
| | Type | Description | Class CD | Sub Class CD | Year Built | Area |
| | MA | Main Area | 1 | 25 | 1914 | 1158.0 |
| | SI1 | SITE IMPROVEMENT | 1 | 25 | 0 | 1.0 |
| | DTG | Detached Garage | 1 | 25 | 1914 | 484.0 |
| | RPO | OPEN PORCH W/ROOF | 1 | 25 | 1914 | 72.0 |
| | SWP | Solid Wall Porch | 1 | 25 | 1914 | 120.0 |
| | UTST | Utility Storage Shed | 1 | 25 | 1914 | 240.0 |
Sketch
Property Image
Land
| 1 | RES 1 | Converted: Residential | 0.3444 | 15000.00 | 0.00 | 0.00 | 1.00 | $76,050 | $0 |
Roll Value History
| 2025 | N/A | N/A | N/A | N/A | N/A |
| 2024 | $144,670 | $76,050 | $0 | $220,720 | $220,720 |
| 2023 | $144,670 | $76,050 | $0 | $220,720 | $220,720 |
| 2022 | $144,670 | $76,050 | $0 | $220,720 | $220,720 |
| 2021 | $138,020 | $28,200 | $0 | $166,220 | $166,220 |
| 2020 | $131,450 | $28,200 | $0 | $159,650 | $159,650 |
| 2019 | $131,450 | $28,200 | $0 | $159,650 | $159,650 |
| 2018 | $87,630 | $28,200 | $0 | $115,830 | $115,830 |
| 2017 | $87,630 | $28,200 | $0 | $115,830 | $115,830 |
| 2016 | $87,630 | $28,200 | $0 | $115,830 | $115,830 |
| 2015 | $87,630 | $28,200 | $0 | $115,830 | $115,830 |
| 2014 | $70,100 | $28,200 | $0 | $98,300 | $98,300 |
| 2013 | $70,100 | $28,200 | $0 | $98,300 | $98,300 |
| 2012 | $70,100 | $28,200 | $0 | $0 | $0 |
| 2011 | $70,100 | $28,200 | $0 | $0 | $0 |
| 2010 | $69,700 | $28,200 | $0 | $0 | $0 |
| 2009 | $73,900 | $29,200 | $0 | $0 | $0 |
| 2008 | $50,100 | $29,200 | $0 | $0 | $0 |
| 2007 | $50,100 | $29,200 | $0 | $0 | $0 |
| 2006 | $50,100 | $29,200 | $0 | $0 | $0 |
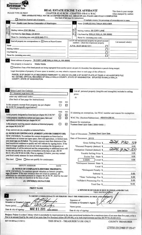
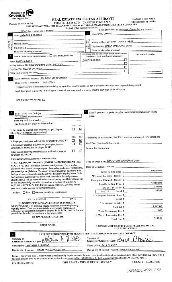
Deed and Sales History
| 1 | 06/11/2015 | QCD | QUIT CLAIM DEED | DIAZ PATRICIA | DIAZ-SALGADO FRANCISCO C | | | | 128154 | 2015-04946 |
| 2 | 06/11/2015 | SWD | STATUTORY WARRANTY DEED | SAWYER CAROL D | DIAZ-SALGADO FRANCISCO C | | | $118,000.00 | 128153 | 2015-04945 |
| 3 | 03/16/2011 | QCD | QUIT CLAIM DEED | SAWYER, GLENN | SAWYER, CAROL D | | | | 119889 | 2011-02326 |
| 4 | 03/12/2001 | WARRANTY D | WARRANTY DEED | | | | | $58,950.00 | 96746 | 3090-102351 |
Payout Agreement
| No payout information available.. |