Property
Account |
| Property ID: | 35891 | Abbreviated Legal Description: | SHAUBLE'S LOT 2 BLK 6 |
| Parcel Number: | 360720710602 | Agent Code: | |
| Type: | Real | | |
| Tax Area: | 1 - OL-140-F | Land Use Code | 11 |
| Open Space: | N | DFL | N |
| Historic Property: | N | Remodel Property: | N |
| Multi-Family Redevelopment: | N | | |
| Township: | | Section: | |
| Range: | |
Location |
| Address: | 113 W PINE ST WA 99362 | Mapsco: | |
| Neighborhood: | F SFR | Map ID: | |
| Neighborhood CD: | 512011 |
Owner |
| Name: | LAUGHERY WENDY | Owner ID: | 58200 |
| Mailing Address: | 113 W PINE ST WALLA WALLA, WA 99362 | % Ownership: | 100.0000000000% |
| | | Exemptions: | |
Taxes and Assessment Details
Values
| (+) Improvement Homesite Value: | + | $0 | |
| (+) Improvement Non-Homesite Value: | + | $246,660 | |
| (+) Land Homesite Value: | + | $0 | |
| (+) Land Non-Homesite Value: | + | $37,800 | |
| (+) Curr Use (HS): | + | $0 | $0 |
| (+) Curr Use (NHS): | + | $0 | $0 |
| | | -------------------------- | |
| (=) Market Value: | = | $284,460 | |
| (–) Productivity Loss: | – | $0 | |
| | | -------------------------- | |
| (=) Subtotal: | = | $284,460 | |
| (+) Senior Appraised Value: | + | $0 | |
| (+) Non-Senior Appraised Value: | + | $284,460 | |
| | | -------------------------- | |
| (=) Total Appraised Value: | = | $284,460 | |
| (–) Senior Exemption Loss: | – | $0 | |
| (–) Exemption Loss: | – | $0 | |
| | | -------------------------- | |
| (=) Taxable Value: | = | $284,460 | |
Taxing Jurisdiction
| Owner: | LAUGHERY WENDY | | |
| % Ownership: | 100.0000000000% | | |
| Total Value: | $284,460 | | |
| Tax Area: | 1 - OL-140-F |
| CERFD | CURRENT EXPENSE REFUND 010 | 0.0000000000 | $284,460 | $284,460 | $0.00 | | |
| CURREXP | CURRENT EXPENSE 010 | 1.0175366760 | $284,460 | $284,460 | $289.45 | | |
| HUMNSERV | HUMAN SERVICES 119 | 0.0250000000 | $284,460 | $284,460 | $7.11 | | |
| SLDREL | SOLDIERS RELIEF 121 | 0.0155990005 | $284,460 | $284,460 | $4.44 | | |
| EMERGSER | EMS 147 | 0.3792580840 | $284,460 | $284,460 | $107.88 | | |
| EMSRFD | EMS REFUND 147 | 0.0000000000 | $284,460 | $284,460 | $0.00 | | |
| PORTRFD | PORT REFUND 640 | 0.0000000000 | $284,460 | $284,460 | $0.00 | | |
| PORTWWGEN | PORT OF WW 640 | 0.2460186015 | $284,460 | $284,460 | $69.98 | | |
| SD140BOND | SD #140 BOND 764 | 0.8342371393 | $284,460 | $284,460 | $237.31 | | |
| SD140GEN | SD #140 GENERAL 760 | 2.0646500647 | $284,460 | $284,460 | $587.31 | | |
| ST2 | STATE SCHOOL PART 2 600 | 0.8131451643 | $284,460 | $284,460 | $231.31 | | |
| STATESCHL | STATE SCHOOL 600 | 1.5158548041 | $284,460 | $284,460 | $431.20 | | |
| STREFUND | STATE REFUND LEVY 603 | 0.0000000000 | $284,460 | $284,460 | $0.00 | | |
| CWWBOND | C OF WW BOND 643 | 0.2760494372 | $284,460 | $284,460 | $78.53 | | |
| CWWGEN | CITY OF WW 631 | 1.6100204973 | $284,460 | $284,460 | $457.99 | | |
| CWWRFD | CITY OF WALLA WALLA REFUND 631 | 0.0000000000 | $284,460 | $284,460 | $0.00 | | |
| | Total Tax Rate: | 8.7973694689 | | | | | |
| | | | | Taxes w/Current Exemptions: | $2,502.51 | | |
| | | | | Taxes w/o Exemptions: | $2,502.51 | | |
Improvement / Building
| Improvement #1: | RESIDENTIAL | State Code: | 11 | 1086.0 sqft | Value: | $246,660 |
| Exterior Wall: | SIDING | Heating/Cooling: | WARM & COOLED AIR | | Number of Bathrooms: | 1 | Number of Bedrooms: | 2 | | Plumbing: | 6 | Roof Covering: | COMP SHINGLE |
|
| | Type | Description | Class CD | Sub Class CD | Year Built | Area |
| | MA | Main Area | 1 | 30 | 1940 | 1086.0 |
| | SI1 | SITE IMPROVEMENT | 1 | 30 | 1940 | 1.0 |
| | DTG | Detached Garage | 1 | 30 | 1940 | 288.0 |
| | RPS | PORCH W/STEPS,ROOF | 1 | 30 | 1940 | 70.0 |
| | CPC | COVERED CARPORT/PATIO | 1 | 30 | 1940 | 408.0 |
Sketch
Property Image
Land
| 1 | RES 1 | Converted: Residential | 0.1653 | 7200.00 | 0.00 | 0.00 | 1.00 | $37,800 | $0 |
Roll Value History
| 2025 | N/A | N/A | N/A | N/A | N/A |
| 2024 | $205,200 | $64,800 | $0 | $270,000 | $270,000 |
| 2023 | $246,660 | $37,800 | $0 | $284,460 | $284,460 |
| 2022 | $170,110 | $37,800 | $0 | $207,910 | $207,910 |
| 2021 | $121,510 | $37,800 | $0 | $159,310 | $159,310 |
| 2020 | $110,460 | $37,800 | $0 | $148,260 | $148,260 |
| 2019 | $110,460 | $37,800 | $0 | $148,260 | $148,260 |
| 2018 | $105,200 | $37,800 | $0 | $143,000 | $143,000 |
| 2017 | $112,350 | $21,600 | $0 | $133,950 | $133,950 |
| 2016 | $112,350 | $21,600 | $0 | $133,950 | $133,950 |
| 2015 | $112,350 | $21,600 | $0 | $133,950 | $133,950 |
| 2014 | $107,000 | $21,600 | $0 | $128,600 | $128,600 |
| 2013 | $107,000 | $21,600 | $0 | $128,600 | $128,600 |
| 2012 | $107,000 | $21,600 | $0 | $0 | $0 |
| 2011 | $107,000 | $21,600 | $0 | $0 | $0 |
| 2010 | $61,400 | $21,600 | $0 | $0 | $0 |
| 2009 | $70,600 | $21,600 | $0 | $0 | $0 |
| 2008 | $70,600 | $21,600 | $0 | $0 | $0 |
| 2007 | $70,600 | $21,600 | $0 | $0 | $0 |
| 2006 | $59,500 | $14,400 | $0 | $0 | $0 |
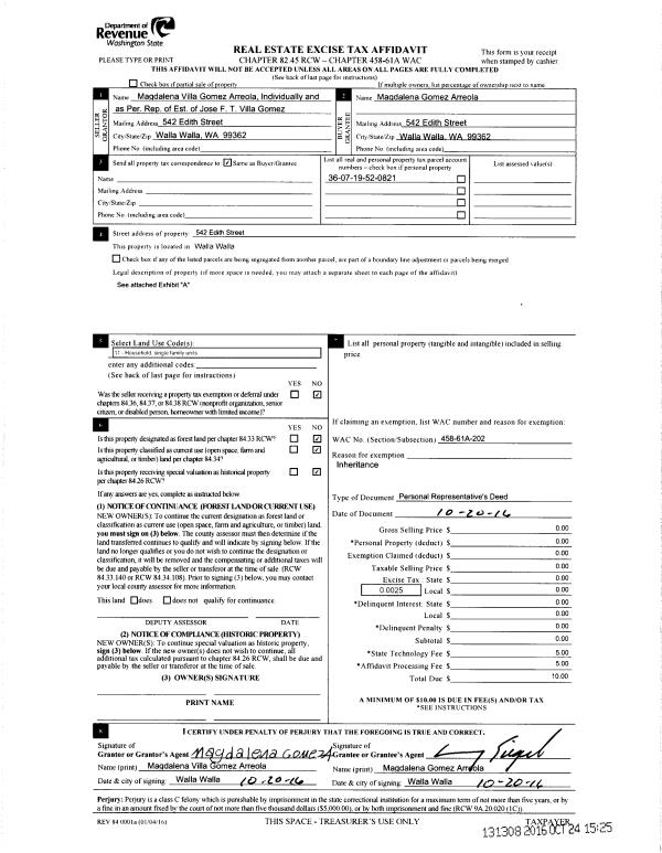
Deed and Sales History
| 1 | 01/21/2016 | QCD | QUIT CLAIM DEED | LENNOX WENDY | LAUGHERY WENDY | | | $0.00 | 129558 | 2016-00567 |
| 2 | 06/13/2011 | QCD | QUIT CLAIM DEED | ANDERSON, WENDY (AKA LENNOX) | LENNOX, WENDY | | | | 120256 | 2011-04551 |
| 3 | 01/27/2010 | WARRANTY D | WARRANTY DEED | RICHARDS, JERRIE D | ANDERSON, WENDY | | | $135,000.00 | 118016 | 2010-00834 |
| 4 | 10/16/1997 | WARRANTY D | WARRANTY DEED | | | | | $69,900.00 | 89149 | 2589-710038 |
Payout Agreement
| No payout information available.. |