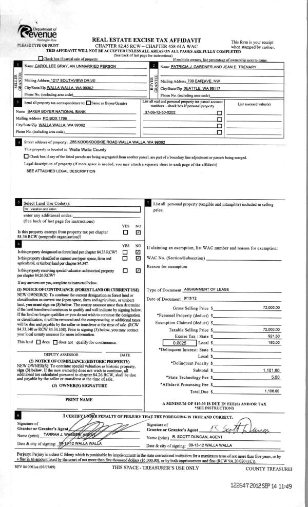
Property
Account |
| Property ID: | 35694 | Abbreviated Legal Description: | CP #2 TAX 2B LOT 2 BLK 10 |
| Parcel Number: | 350736601005 | Agent Code: | |
| Type: | Real | | |
| Tax Area: | 75 - CP 250 | Land Use Code | 11 |
| Open Space: | N | DFL | N |
| Historic Property: | N | Remodel Property: | N |
| Multi-Family Redevelopment: | N | | |
| Township: | 7 | Section: | 36 |
| Range: | 35 |
Location |
| Address: | 801 SE DATE AVE WA 99324 | Mapsco: | |
| Neighborhood: | A SFR | Map ID: | |
| Neighborhood CD: | 113011 |
Owner |
| Name: | SHARP TROY | Owner ID: | 54986 |
| Mailing Address: | 801 SE DATE AVE COLLEGE PLACE, WA 99362 | % Ownership: | 100.0000000000% |
| | | Exemptions: | |
Taxes and Assessment Details
Values
| (+) Improvement Homesite Value: | + | $0 | |
| (+) Improvement Non-Homesite Value: | + | $305,780 | |
| (+) Land Homesite Value: | + | $0 | |
| (+) Land Non-Homesite Value: | + | $60,750 | |
| (+) Curr Use (HS): | + | $0 | $0 |
| (+) Curr Use (NHS): | + | $0 | $0 |
| | | -------------------------- | |
| (=) Market Value: | = | $366,530 | |
| (–) Productivity Loss: | – | $0 | |
| | | -------------------------- | |
| (=) Subtotal: | = | $366,530 | |
| (+) Senior Appraised Value: | + | $0 | |
| (+) Non-Senior Appraised Value: | + | $366,530 | |
| | | -------------------------- | |
| (=) Total Appraised Value: | = | $366,530 | |
| (–) Senior Exemption Loss: | – | $0 | |
| (–) Exemption Loss: | – | $0 | |
| | | -------------------------- | |
| (=) Taxable Value: | = | $366,530 | |
Taxing Jurisdiction
| Owner: | SHARP TROY | | |
| % Ownership: | 100.0000000000% | | |
| Total Value: | $366,530 | | |
| Tax Area: | 75 - CP 250 |
| CERFD | CURRENT EXPENSE REFUND 010 | 0.0000000000 | $366,530 | $366,530 | $0.00 | | |
| CURREXP | CURRENT EXPENSE 010 | 1.0175366760 | $366,530 | $366,530 | $372.96 | | |
| HUMNSERV | HUMAN SERVICES 119 | 0.0250000000 | $366,530 | $366,530 | $9.16 | | |
| SLDREL | SOLDIERS RELIEF 121 | 0.0155990005 | $366,530 | $366,530 | $5.72 | | |
| COLLPLBOND | C OF CP BOND 644 | 0.4374241808 | $366,530 | $366,530 | $160.33 | | |
| COLLPLGEN | CITY OF CP 632 | 1.4453819216 | $366,530 | $366,530 | $529.78 | | |
| EMERGSER | EMS 147 | 0.3792580840 | $366,530 | $366,530 | $139.01 | | |
| EMSRFD | EMS REFUND 147 | 0.0000000000 | $366,530 | $366,530 | $0.00 | | |
| RURALLIB | RURAL LIBRARY 623 | 0.3710609029 | $366,530 | $366,530 | $136.00 | | |
| PORTRFD | PORT REFUND 640 | 0.0000000000 | $366,530 | $366,530 | $0.00 | | |
| PORTWWGEN | PORT OF WW 640 | 0.2460186015 | $366,530 | $366,530 | $90.17 | | |
| SD250BOND | SD #250 BOND 773 | 1.4560608159 | $366,530 | $366,530 | $533.69 | | |
| SD250GEN | SD #250 GENERAL 770 | 2.3880724087 | $366,530 | $366,530 | $875.30 | | |
| ST2 | STATE SCHOOL PART 2 600 | 0.8131451643 | $366,530 | $366,530 | $298.04 | | |
| STATESCHL | STATE SCHOOL 600 | 1.5158548041 | $366,530 | $366,530 | $555.61 | | |
| STREFUND | STATE REFUND LEVY 603 | 0.0000000000 | $366,530 | $366,530 | $0.00 | | |
| | Total Tax Rate: | 10.1104125603 | | | | | |
| | | | | Taxes w/Current Exemptions: | $3,705.77 | | |
| | | | | Taxes w/o Exemptions: | $3,705.77 | | |
Improvement / Building
| Improvement #1: | RESIDENTIAL | State Code: | 11 | 1892.0 sqft | Value: | $305,780 |
| Exterior Wall: | SIDING | Heating/Cooling: | FORCED AIR | | Number of Bathrooms: | 2 | Number of Bedrooms: | 4 | | Plumbing: | 9 | Roof Covering: | COMP SHINGLE |
|
| | Type | Description | Class CD | Sub Class CD | Year Built | Area |
| | MA | Main Area | 1 | 30 | 1970 | 1892.0 |
| | SI1 | SITE IMPROVEMENT | 1 | 30 | 1970 | 1.5 |
| | ATG | Attached Garage | 1 | 30 | 1970 | 550.0 |
| | S1F | Single One Story Fireplace | 1 | 30 | 1970 | 1.0 |
| | RPO | OPEN PORCH W/ROOF | 1 | 30 | 1970 | 140.0 |
| | GIF | GARAGE INTERIOR FINISH | 1 | 30 | 1970 | 360.0 |
| | FIXT | AVERAGE FIXTURE | 1 | 30 | 1970 | 4.0 |
Sketch
Property Image
Land
| 1 | RES 1 | Converted: Residential | 0.2066 | 9000.00 | 0.00 | 0.00 | 1.00 | $60,750 | $0 |
Roll Value History
| 2025 | N/A | N/A | N/A | N/A | N/A |
| 2024 | $305,780 | $60,750 | $0 | $366,530 | $366,530 |
| 2023 | $305,780 | $60,750 | $0 | $366,530 | $366,530 |
| 2022 | $305,780 | $60,750 | $0 | $366,530 | $366,530 |
| 2021 | $244,620 | $60,750 | $0 | $305,370 | $305,370 |
| 2020 | $181,200 | $60,750 | $0 | $241,950 | $241,950 |
| 2019 | $195,650 | $46,300 | $0 | $241,950 | $241,950 |
| 2018 | $177,860 | $46,300 | $0 | $224,160 | $224,160 |
| 2017 | $154,660 | $46,300 | $0 | $200,960 | $200,960 |
| 2016 | $154,660 | $46,300 | $0 | $200,960 | $200,960 |
| 2015 | $140,600 | $46,300 | $0 | $186,900 | $186,900 |
| 2014 | $140,600 | $46,300 | $0 | $186,900 | $186,900 |
| 2013 | $140,600 | $46,300 | $0 | $186,900 | $186,900 |
| 2012 | $140,600 | $46,300 | $0 | $0 | $0 |
| 2011 | $140,600 | $46,300 | $0 | $0 | $0 |
| 2010 | $131,700 | $46,300 | $0 | $0 | $0 |
| 2009 | $151,500 | $46,300 | $0 | $0 | $0 |
| 2008 | $105,200 | $23,800 | $0 | $0 | $0 |
| 2007 | $105,200 | $23,800 | $0 | $0 | $0 |
| 2006 | $105,200 | $23,800 | $0 | $0 | $0 |
Deed and Sales History
| 1 | 06/19/2014 | WARRANTY D | WARRANTY DEED | FEDERAL NATIONAL MORTGAGE ASSOCIATION | SHARP TROY | | | $148,500.00 | 126097 | 2014-04231 |
| 2 | 08/16/2013 | WARRANTY D | WARRANTY DEED | NORTHWEST TRUSTEE SERIVCES INC | FEDERAL NATIONAL MORTGAGE~ASSO | | | $156,243.00 | 124494 | 2013-08435 |
| 3 | 10/30/2006 | WARRANTY D | WARRANTY DEED | PIDOUX, CARLOS A & MARTA | HARVEY, DANIEL C & GWENDOLYN S | | | $164,500.00 | 111547 | 2006-12989 |
| 4 | 06/02/1987 | WARRANTY D | WARRANTY DEED | | | | | $51,500.00 | 0 | 1648-704240 |
Payout Agreement
| No payout information available.. |