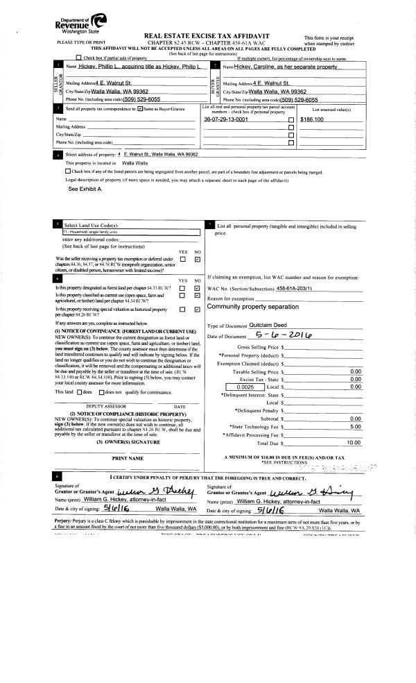
Property
Account |
| Property ID: | 35543 | Abbreviated Legal Description: | HIGHLAND LOTS 10 AND 11 BLK 1 |
| Parcel Number: | 360731510119 | Agent Code: | |
| Type: | Real | | |
| Tax Area: | 5 - OL-140 | Land Use Code | 11 |
| Open Space: | N | DFL | N |
| Historic Property: | N | Remodel Property: | N |
| Multi-Family Redevelopment: | N | | |
| Township: | 7 | Section: | 31 |
| Range: | 36 |
Location |
| Address: | 1391 COUNTRY CLUB RD WA 99362 | Mapsco: | |
| Neighborhood: | VG SFR | Map ID: | |
| Neighborhood CD: | 115011 |
Owner |
| Name: | ZAGELOW ROBERT L & JILL J | Owner ID: | 60930 |
| Mailing Address: | 1391 COUNTRY CLUB RD WALLA WALLA, WA 99362 | % Ownership: | 100.0000000000% |
| | | Exemptions: | |
Taxes and Assessment Details
Values
| (+) Improvement Homesite Value: | + | $0 | |
| (+) Improvement Non-Homesite Value: | + | $891,710 | |
| (+) Land Homesite Value: | + | $0 | |
| (+) Land Non-Homesite Value: | + | $153,960 | |
| (+) Curr Use (HS): | + | $0 | $0 |
| (+) Curr Use (NHS): | + | $0 | $0 |
| | | -------------------------- | |
| (=) Market Value: | = | $1,045,670 | |
| (–) Productivity Loss: | – | $0 | |
| | | -------------------------- | |
| (=) Subtotal: | = | $1,045,670 | |
| (+) Senior Appraised Value: | + | $0 | |
| (+) Non-Senior Appraised Value: | + | $1,045,670 | |
| | | -------------------------- | |
| (=) Total Appraised Value: | = | $1,045,670 | |
| (–) Senior Exemption Loss: | – | $0 | |
| (–) Exemption Loss: | – | $0 | |
| | | -------------------------- | |
| (=) Taxable Value: | = | $1,045,670 | |
Taxing Jurisdiction
| Owner: | ZAGELOW ROBERT L & JILL J | | |
| % Ownership: | 100.0000000000% | | |
| Total Value: | $1,045,670 | | |
| Tax Area: | 5 - OL-140 |
| CERFD | CURRENT EXPENSE REFUND 010 | 0.0000000000 | $1,045,670 | $1,045,670 | $0.00 | | |
| CURREXP | CURRENT EXPENSE 010 | 1.0175366760 | $1,045,670 | $1,045,670 | $1,064.01 | | |
| HUMNSERV | HUMAN SERVICES 119 | 0.0250000000 | $1,045,670 | $1,045,670 | $26.14 | | |
| SLDREL | SOLDIERS RELIEF 121 | 0.0155990005 | $1,045,670 | $1,045,670 | $16.31 | | |
| EMERGSER | EMS 147 | 0.3792580840 | $1,045,670 | $1,045,670 | $396.58 | | |
| EMSRFD | EMS REFUND 147 | 0.0000000000 | $1,045,670 | $1,045,670 | $0.00 | | |
| PORTRFD | PORT REFUND 640 | 0.0000000000 | $1,045,670 | $1,045,670 | $0.00 | | |
| PORTWWGEN | PORT OF WW 640 | 0.2460186015 | $1,045,670 | $1,045,670 | $257.25 | | |
| SD140BOND | SD #140 BOND 764 | 0.8342371393 | $1,045,670 | $1,045,670 | $872.34 | | |
| SD140GEN | SD #140 GENERAL 760 | 2.0646500647 | $1,045,670 | $1,045,670 | $2,158.94 | | |
| ST2 | STATE SCHOOL PART 2 600 | 0.8131451643 | $1,045,670 | $1,045,670 | $850.28 | | |
| STATESCHL | STATE SCHOOL 600 | 1.5158548041 | $1,045,670 | $1,045,670 | $1,585.08 | | |
| STREFUND | STATE REFUND LEVY 603 | 0.0000000000 | $1,045,670 | $1,045,670 | $0.00 | | |
| CWWBOND | C OF WW BOND 643 | 0.2760494372 | $1,045,670 | $1,045,670 | $288.66 | | |
| CWWGEN | CITY OF WW 631 | 1.6100204973 | $1,045,670 | $1,045,670 | $1,683.55 | | |
| CWWRFD | CITY OF WALLA WALLA REFUND 631 | 0.0000000000 | $1,045,670 | $1,045,670 | $0.00 | | |
| | Total Tax Rate: | 8.7973694689 | | | | | |
| | | | | Taxes w/Current Exemptions: | $9,199.14 | | |
| | | | | Taxes w/o Exemptions: | $9,199.14 | | |
Improvement / Building
| Improvement #1: | RESIDENTIAL | State Code: | 11 | 5679.0 sqft | Value: | $891,710 |
| Exterior Wall: | SIDING | Heating/Cooling: | WARM & COOLED AIR | | Number of Bathrooms: | 5 | Number of Bedrooms: | 4 | | Plumbing: | 22 | Roof Covering: | SLATE |
|
| | Type | Description | Class CD | Sub Class CD | Year Built | Area |
| | MA | Main Area | 1 | 50 | 1967 | 5679.0 |
| | PRC | PORCH W STEPS, ROOF,CEILED | 1 | 50 | 0 | 108.0 |
| | SI1 | SITE IMPROVEMENT | 1 | 50 | 0 | 5.5 |
| | BASE | BASEMENT | 1 | 50 | 1967 | 972.0 |
| | BPF | BASEMENT -PARTITIONED FINISH | 1 | 50 | 1967 | 972.0 |
| | WOD | Wood Deck | 1 | 50 | 1967 | 469.0 |
| | ATG | Attached Garage | 1 | 50 | 0 | 1410.0 |
| | S1F | Single One Story Fireplace | 1 | 50 | 0 | 1.0 |
| | TOOL | TOOL SHED | 1 | 50 | 0 | 144.0 |
| | OUT | OUTSIDE BASEMENT ENTRY | 1 | 50 | 0 | 1.0 |
Sketch
Property Image
Land
| 1 | RES 1 | Converted: Residential | 1.1600 | 0.00 | 0.00 | 0.00 | 1.00 | $153,960 | $0 |
Roll Value History
| 2025 | N/A | N/A | N/A | N/A | N/A |
| 2024 | $891,710 | $153,960 | $0 | $1,045,670 | $1,045,670 |
| 2023 | $891,710 | $153,960 | $0 | $1,045,670 | $1,045,670 |
| 2022 | $849,250 | $153,960 | $0 | $1,003,210 | $1,003,210 |
| 2021 | $808,810 | $153,960 | $0 | $962,770 | $962,770 |
| 2020 | $577,720 | $153,960 | $0 | $731,680 | $731,680 |
| 2019 | $641,080 | $90,600 | $0 | $731,680 | $731,680 |
| 2018 | $610,550 | $90,600 | $0 | $701,150 | $701,150 |
| 2017 | $581,480 | $90,600 | $0 | $672,080 | $672,080 |
| 2016 | $415,340 | $90,600 | $0 | $505,940 | $505,940 |
| 2015 | $415,340 | $90,600 | $0 | $505,940 | $505,940 |
| 2014 | $437,200 | $90,600 | $0 | $527,800 | $527,800 |
| 2013 | $437,200 | $90,600 | $0 | $527,800 | $527,800 |
| 2012 | $495,800 | $90,600 | $0 | $0 | $0 |
| 2011 | $465,800 | $120,600 | $0 | $0 | $0 |
| 2010 | $465,800 | $120,600 | $0 | $0 | $0 |
| 2009 | $496,700 | $120,600 | $0 | $0 | $0 |
| 2008 | $428,700 | $61,000 | $0 | $0 | $0 |
| 2007 | $428,700 | $61,000 | $0 | $0 | $0 |
| 2006 | $428,700 | $61,000 | $0 | $0 | $0 |
Deed and Sales History
| 1 | 05/17/2017 | SWD | STATUTORY WARRANTY DEED | HANSON GARY K & TERRI A | ZAGELOW ROBERT L & JILL J | | | $743,500.00 | 132413 | 2017-03744 |
| 2 | 07/12/2013 | WARRANTY D | WARRANTY DEED | LERACH, KELLY TRUST | HANSON, GARY K & TERRI A | | | $510,000.00 | 124285 | 2013-07027 |
| 3 | 08/29/1995 | WARRANTY D | WARRANTY DEED | | | | | $479,500.00 | 84646 | 2339-508279 |
Payout Agreement
| No payout information available.. |