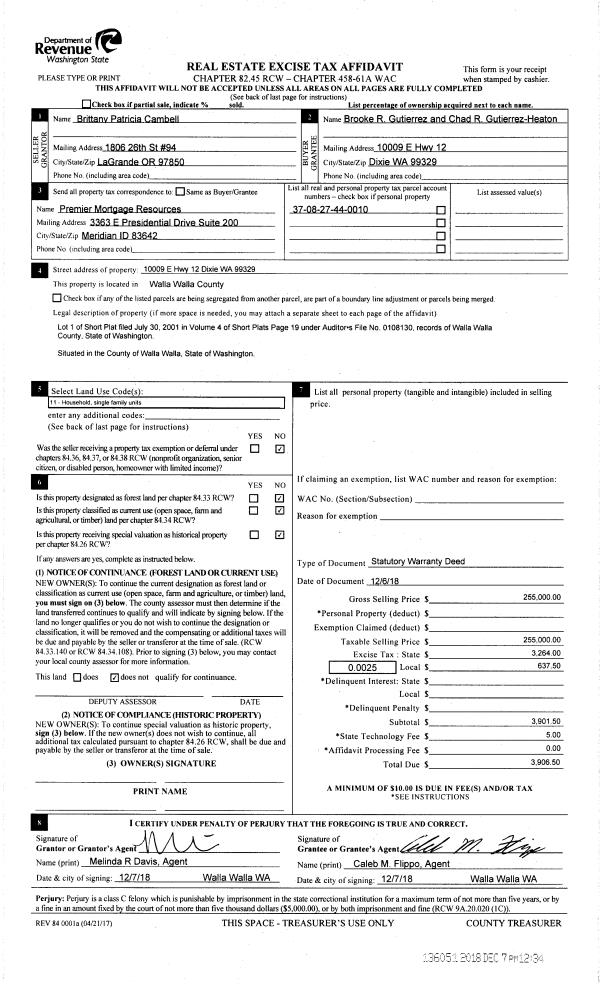
Property
Account |
| Property ID: | 35499 | Abbreviated Legal Description: | SYDNEY HEIGHTS #2 LOT 27 |
| Parcel Number: | 360605520027 | Agent Code: | |
| Type: | Real | | |
| Tax Area: | 101 - 140-4 | Land Use Code | 11 |
| Open Space: | N | DFL | N |
| Historic Property: | N | Remodel Property: | N |
| Multi-Family Redevelopment: | N | | |
| Township: | 6 | Section: | 5 |
| Range: | 36 |
Location |
| Address: | 3020 BRISBANE ST WA 99362 | Mapsco: | |
| Neighborhood: | G Res Rural/City Inf | Map ID: | |
| Neighborhood CD: | 614012 |
Owner |
| Name: | LASH MICHAEL JAMES | Owner ID: | 57139 |
| Mailing Address: | 3020 BRISBANE DR WALLA WALLA, WA 99362 | % Ownership: | 100.0000000000% |
| | | Exemptions: | |
Taxes and Assessment Details
Values
| (+) Improvement Homesite Value: | + | $0 | |
| (+) Improvement Non-Homesite Value: | + | $386,970 | |
| (+) Land Homesite Value: | + | $0 | |
| (+) Land Non-Homesite Value: | + | $148,480 | |
| (+) Curr Use (HS): | + | $0 | $0 |
| (+) Curr Use (NHS): | + | $0 | $0 |
| | | -------------------------- | |
| (=) Market Value: | = | $535,450 | |
| (–) Productivity Loss: | – | $0 | |
| | | -------------------------- | |
| (=) Subtotal: | = | $535,450 | |
| (+) Senior Appraised Value: | + | $0 | |
| (+) Non-Senior Appraised Value: | + | $535,450 | |
| | | -------------------------- | |
| (=) Total Appraised Value: | = | $535,450 | |
| (–) Senior Exemption Loss: | – | $0 | |
| (–) Exemption Loss: | – | $0 | |
| | | -------------------------- | |
| (=) Taxable Value: | = | $535,450 | |
Taxing Jurisdiction
| Owner: | LASH MICHAEL JAMES | | |
| % Ownership: | 100.0000000000% | | |
| Total Value: | $535,450 | | |
| Tax Area: | 101 - 140-4 |
| CERFD | CURRENT EXPENSE REFUND 010 | 0.0000000000 | $535,450 | $535,450 | $0.00 | | |
| CURREXP | CURRENT EXPENSE 010 | 1.0175366760 | $535,450 | $535,450 | $544.84 | | |
| HUMNSERV | HUMAN SERVICES 119 | 0.0250000000 | $535,450 | $535,450 | $13.39 | | |
| SLDREL | SOLDIERS RELIEF 121 | 0.0155990005 | $535,450 | $535,450 | $8.35 | | |
| EMERGSER | EMS 147 | 0.3792580840 | $535,450 | $535,450 | $203.07 | | |
| EMSRFD | EMS REFUND 147 | 0.0000000000 | $535,450 | $535,450 | $0.00 | | |
| FD4EXP | FD #4 EXPENSE 686 | 0.8836993059 | $535,450 | $535,450 | $473.18 | | |
| RLBRFD | RURAL LIBRARY REFUND 623 | 0.0000000000 | $535,450 | $535,450 | $0.00 | | |
| RURALLIB | RURAL LIBRARY 623 | 0.3710609029 | $535,450 | $535,450 | $198.68 | | |
| PORTRFD | PORT REFUND 640 | 0.0000000000 | $535,450 | $535,450 | $0.00 | | |
| PORTWWGEN | PORT OF WW 640 | 0.2460186015 | $535,450 | $535,450 | $131.73 | | |
| SD140BOND | SD #140 BOND 764 | 0.8342371393 | $535,450 | $535,450 | $446.69 | | |
| SD140GEN | SD #140 GENERAL 760 | 2.0646500647 | $535,450 | $535,450 | $1,105.52 | | |
| ST2 | STATE SCHOOL PART 2 600 | 0.8131451643 | $535,450 | $535,450 | $435.40 | | |
| STATESCHL | STATE SCHOOL 600 | 1.5158548041 | $535,450 | $535,450 | $811.66 | | |
| STREFUND | STATE REFUND LEVY 603 | 0.0000000000 | $535,450 | $535,450 | $0.00 | | |
| COROAD | COUNTY ROAD 115 | 1.6549953990 | $535,450 | $535,450 | $886.17 | | |
| CRPRD | COUNTY ROAD REFUND 115 | 0.0000000000 | $535,450 | $535,450 | $0.00 | | |
| | Total Tax Rate: | 9.8210551422 | | | | | |
| | | | | Taxes w/Current Exemptions: | $5,258.68 | | |
| | | | | Taxes w/o Exemptions: | $5,258.68 | | |
Improvement / Building
| Improvement #1: | RESIDENTIAL | State Code: | 11 | 2656.0 sqft | Value: | $386,970 |
| Exterior Wall: | SIDING | Heating/Cooling: | WARM & COOLED AIR | | Number of Bathrooms: | 3 | Number of Bedrooms: | 4 | | Plumbing: | 12 | Roof Covering: | COMP SHINGLE |
|
| | Type | Description | Class CD | Sub Class CD | Year Built | Area |
| | MA | Main Area | 1 | 35 | 1977 | 2656.0 |
| | SI1 | SITE IMPROVEMENT | 1 | 35 | 1977 | 3.0 |
| | ATG | Attached Garage | 1 | 35 | 1977 | 738.0 |
| | WOD | Wood Deck | 1 | 35 | 1977 | 72.0 |
| | WOD | Wood Deck | 1 | 35 | 1977 | 126.0 |
Sketch
Property Image
Land
| 1 | RES 1 | Converted: Residential | 0.9629 | 41942.00 | 0.00 | 0.00 | 1.00 | $148,480 | $0 |
Roll Value History
| 2025 | N/A | N/A | N/A | N/A | N/A |
| 2024 | $386,970 | $148,480 | $0 | $535,450 | $535,450 |
| 2023 | $386,970 | $148,480 | $0 | $535,450 | $535,450 |
| 2022 | $386,970 | $94,150 | $0 | $481,120 | $481,120 |
| 2021 | $368,540 | $94,150 | $0 | $462,690 | $462,690 |
| 2020 | $230,340 | $94,150 | $0 | $324,490 | $324,490 |
| 2019 | $230,340 | $94,150 | $0 | $324,490 | $324,490 |
| 2018 | $216,040 | $88,500 | $0 | $304,540 | $304,540 |
| 2017 | $196,400 | $88,500 | $0 | $284,900 | $284,900 |
| 2016 | $196,400 | $88,500 | $0 | $284,900 | $284,900 |
| 2015 | $196,400 | $88,500 | $0 | $284,900 | $284,900 |
| 2014 | $196,400 | $88,500 | $0 | $284,900 | $284,900 |
| 2013 | $196,400 | $88,500 | $0 | $284,900 | $284,900 |
| 2012 | $196,400 | $88,500 | $0 | $0 | $0 |
| 2011 | $166,800 | $118,100 | $0 | $0 | $0 |
| 2010 | $153,200 | $118,100 | $0 | $0 | $0 |
| 2009 | $183,300 | $118,100 | $0 | $0 | $0 |
| 2008 | $183,300 | $118,100 | $0 | $0 | $0 |
| 2007 | $193,000 | $43,900 | $0 | $0 | $0 |
| 2006 | $193,000 | $43,900 | $0 | $0 | $0 |
Deed and Sales History
| 1 | 08/03/2015 | QCD | QUIT CLAIM DEED | LASH JENNIFER | LASH MICHAEL JAMES | | | | 128527 | 2015-06664 |
| 2 | 08/03/2015 | SWD | STATUTORY WARRANTY DEED | SULLIVAN DOUGLAS & JEANNIE | LASH MICHAEL JAMES | | | $283,000.00 | 128526 | 2015-06663 |
| 3 | 06/27/2013 | WARRANTY D | WARRANTY DEED | MC CULLOCH, ANDREW J | SULLIVAN, DOUGLAS & JEANNIE | | | $140,000.00 | 124191 | 2013-06455 |
| 4 | 02/13/2006 | WARRANTY D | WARRANTY DEED | MC CULLOCH, VIOLET V ESTATE OF | MC CULLOCH, ANDREW J | | | | 109650 | 2006-01685 |
| 5 | 08/30/1984 | WARRANTY D | WARRANTY DEED | | | | | $119,900.00 | 0 | 1458-406108 |
Payout Agreement
| No payout information available.. |