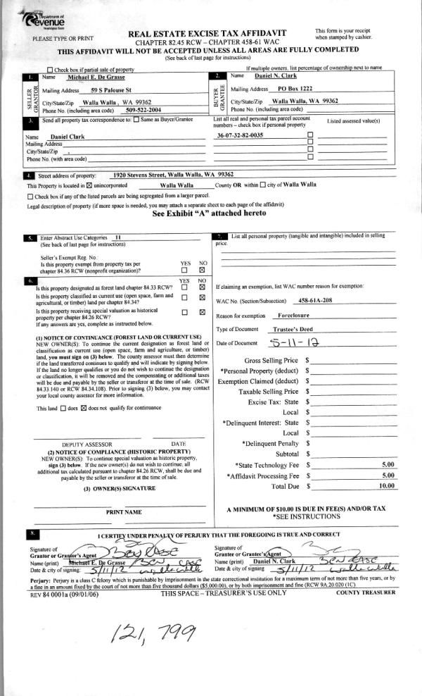
Property
Account |
| Property ID: | 35488 | Abbreviated Legal Description: | BRYANTS N 75' OF LOT 12 BLK 6 |
| Parcel Number: | 360728530612 | Agent Code: | |
| Type: | Real | | |
| Tax Area: | 1 - OL-140-F | Land Use Code | 11 |
| Open Space: | N | DFL | N |
| Historic Property: | N | Remodel Property: | N |
| Multi-Family Redevelopment: | N | | |
| Township: | 7 | Section: | 28 |
| Range: | 36 |
Location |
| Address: | 658 JUNIPER ST WA 99362 | Mapsco: | |
| Neighborhood: | A Res | Map ID: | |
| Neighborhood CD: | 613011 |
Owner |
| Name: | STEWART NATHANIEL J & ELISSA R BROWN | Owner ID: | 65348 |
| Mailing Address: | 658 JUNIPER ST WALLA WALLA, WA 99362 | % Ownership: | 100.0000000000% |
| | | Exemptions: | |
Taxes and Assessment Details
Values
| (+) Improvement Homesite Value: | + | $0 | |
| (+) Improvement Non-Homesite Value: | + | $257,150 | |
| (+) Land Homesite Value: | + | $0 | |
| (+) Land Non-Homesite Value: | + | $60,000 | |
| (+) Curr Use (HS): | + | $0 | $0 |
| (+) Curr Use (NHS): | + | $0 | $0 |
| | | -------------------------- | |
| (=) Market Value: | = | $317,150 | |
| (–) Productivity Loss: | – | $0 | |
| | | -------------------------- | |
| (=) Subtotal: | = | $317,150 | |
| (+) Senior Appraised Value: | + | $0 | |
| (+) Non-Senior Appraised Value: | + | $317,150 | |
| | | -------------------------- | |
| (=) Total Appraised Value: | = | $317,150 | |
| (–) Senior Exemption Loss: | – | $0 | |
| (–) Exemption Loss: | – | $0 | |
| | | -------------------------- | |
| (=) Taxable Value: | = | $317,150 | |
Taxing Jurisdiction
| Owner: | STEWART NATHANIEL J & ELISSA R BROWN | | |
| % Ownership: | 100.0000000000% | | |
| Total Value: | $317,150 | | |
| Tax Area: | 1 - OL-140-F |
| CERFD | CURRENT EXPENSE REFUND 010 | 0.0000000000 | $317,150 | $317,150 | $0.00 | | |
| CURREXP | CURRENT EXPENSE 010 | 1.0175366760 | $317,150 | $317,150 | $322.71 | | |
| HUMNSERV | HUMAN SERVICES 119 | 0.0250000000 | $317,150 | $317,150 | $7.93 | | |
| SLDREL | SOLDIERS RELIEF 121 | 0.0155990005 | $317,150 | $317,150 | $4.95 | | |
| EMERGSER | EMS 147 | 0.3792580840 | $317,150 | $317,150 | $120.28 | | |
| EMSRFD | EMS REFUND 147 | 0.0000000000 | $317,150 | $317,150 | $0.00 | | |
| PORTRFD | PORT REFUND 640 | 0.0000000000 | $317,150 | $317,150 | $0.00 | | |
| PORTWWGEN | PORT OF WW 640 | 0.2460186015 | $317,150 | $317,150 | $78.02 | | |
| SD140BOND | SD #140 BOND 764 | 0.8342371393 | $317,150 | $317,150 | $264.58 | | |
| SD140GEN | SD #140 GENERAL 760 | 2.0646500647 | $317,150 | $317,150 | $654.80 | | |
| ST2 | STATE SCHOOL PART 2 600 | 0.8131451643 | $317,150 | $317,150 | $257.89 | | |
| STATESCHL | STATE SCHOOL 600 | 1.5158548041 | $317,150 | $317,150 | $480.75 | | |
| STREFUND | STATE REFUND LEVY 603 | 0.0000000000 | $317,150 | $317,150 | $0.00 | | |
| CWWBOND | C OF WW BOND 643 | 0.2760494372 | $317,150 | $317,150 | $87.55 | | |
| CWWGEN | CITY OF WW 631 | 1.6100204973 | $317,150 | $317,150 | $510.62 | | |
| CWWRFD | CITY OF WALLA WALLA REFUND 631 | 0.0000000000 | $317,150 | $317,150 | $0.00 | | |
| | Total Tax Rate: | 8.7973694689 | | | | | |
| | | | | Taxes w/Current Exemptions: | $2,790.08 | | |
| | | | | Taxes w/o Exemptions: | $2,790.08 | | |
Improvement / Building
| Improvement #1: | RESIDENTIAL | State Code: | 11 | 900.0 sqft | Value: | $257,150 |
| Exterior Wall: | SIDING | Heating/Cooling: | WARM & COOLED AIR | | Number of Bathrooms: | 1 | Number of Bedrooms: | 2 | | Plumbing: | 7 | Roof Covering: | COMP SHINGLE |
|
| | Type | Description | Class CD | Sub Class CD | Year Built | Area |
| | MA | Main Area | 1 | 30 | 1940 | 900.0 |
| | SI1 | SITE IMPROVEMENT | 1 | 30 | 1940 | 1.5 |
| | BASE | BASEMENT | 1 | 30 | 1940 | 442.0 |
| | BPF | BASEMENT -PARTITIONED FINISH | 1 | 30 | 1940 | 220.0 |
| | CPCS | CARPORT/SHED OR FLAT ROOF | 1 | 30 | 1940 | 360.0 |
| | SWP | Solid Wall Porch | 1 | 30 | 1940 | 10.0 |
| | S1F | Single One Story Fireplace | 1 | 30 | 1940 | 1.0 |
Sketch
Property Image
Land
| 1 | RES 1 | Converted: Residential | 0.0861 | 3750.00 | 0.00 | 0.00 | 1.00 | $60,000 | $0 |
Roll Value History
| 2025 | N/A | N/A | N/A | N/A | N/A |
| 2024 | $257,150 | $60,000 | $0 | $317,150 | $317,150 |
| 2023 | $257,150 | $60,000 | $0 | $317,150 | $317,150 |
| 2022 | $244,910 | $45,000 | $0 | $289,910 | $289,910 |
| 2021 | $204,090 | $45,000 | $0 | $249,090 | $249,090 |
| 2020 | $136,060 | $45,000 | $0 | $181,060 | $181,060 |
| 2019 | $136,060 | $45,000 | $0 | $181,060 | $181,060 |
| 2018 | $151,770 | $22,500 | $0 | $174,270 | $174,270 |
| 2017 | $140,530 | $22,500 | $0 | $163,030 | $163,030 |
| 2016 | $108,100 | $22,500 | $0 | $130,600 | $130,600 |
| 2015 | $108,100 | $22,500 | $0 | $130,600 | $130,600 |
| 2014 | $108,100 | $22,500 | $0 | $130,600 | $130,600 |
| 2013 | $108,100 | $22,500 | $0 | $130,600 | $130,600 |
| 2012 | $108,100 | $22,500 | $0 | $0 | $0 |
| 2011 | $108,100 | $22,500 | $0 | $0 | $0 |
| 2010 | $101,900 | $22,500 | $0 | $0 | $0 |
| 2009 | $115,700 | $22,500 | $0 | $0 | $0 |
| 2008 | $115,700 | $22,500 | $0 | $0 | $0 |
| 2007 | $66,400 | $11,300 | $0 | $0 | $0 |
| 2006 | $66,400 | $11,300 | $0 | $0 | $0 |
Deed and Sales History
| 1 | 06/04/2024 | SWD | STATUTORY WARRANTY DEED | STEWART NATHANIEL J & ELISSA R BROWN | BOYLES WILL | | | $340,000.00 | 147645 | 2024-02932 |
| 2 | 06/21/2019 | SWD | STATUTORY WARRANTY DEED | STEVENS KAY LYNN | STEWART NATHANIEL J & ELISSA R BROWN | | | $235,000.00 | 137119 | 2019-04359 |
| 3 | 03/31/2016 | QCD | QUIT CLAIM DEED | NYMAN SHAWN | STEVENS KAY LYNN | | | | 129934 | 2016-02371 |
| 4 | 03/31/2016 | SWD | STATUTORY WARRANTY DEED | REYNA MANUEL V & CRYSTAL C | STEVENS KAY LYNN | | | $175,000.00 | 129933 | 2016-02370 |
| 5 | 06/21/2013 | WARRANTY D | WARRANTY DEED | REYNA, MANUEL V | REYNA, MANUEL V & CRYSTAL C | | | $0.00 | 124162 | 2013-06249 |
| 6 | 05/31/2006 | WARRANTY D | WARRANTY DEED | SWANK, TOBIAS OTTO | REYNA, MANUEL V | | | $139,000.00 | 110397 | 2006-06299 |
| 7 | 05/17/2005 | WARRANTY D | WARRANTY DEED | SEIDL, DAVID | SWANK, TOBIAS OTTO | | | $105,000.00 | 107511 | 2005-05924 |
| 8 | 03/31/2004 | WARRANTY D | WARRANTY DEED | WILLIAMS, TONYA L | SEIDL, DAVID | | | $85,000.00 | 104387 | 2004-03352 |
| 9 | 04/11/1995 | WARRANTY D | WARRANTY DEED | | | | | $72,500.00 | 83813 | 2299-503301 |
Payout Agreement
| No payout information available.. |