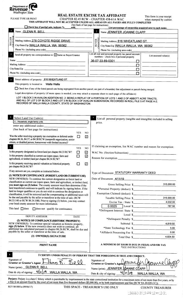
Property
Account |
| Property ID: | 35480 | Abbreviated Legal Description: | EDAIR VISTAS TAX 4 BLK 3 |
| Parcel Number: | 360715500308 | Agent Code: | |
| Type: | Real | | |
| Tax Area: | 5 - OL-140 | Land Use Code | 11 |
| Open Space: | N | DFL | N |
| Historic Property: | N | Remodel Property: | N |
| Multi-Family Redevelopment: | N | | |
| Township: | 7 | Section: | 15 |
| Range: | 36 |
Location |
| Address: | 937 FRAZIER DR WA 99362 | Mapsco: | |
| Neighborhood: | A-SFR | Map ID: | |
| Neighborhood CD: | 313011 |
Owner |
| Name: | PETERS BRIANNE | Owner ID: | 65640 |
| Mailing Address: | 937 FRAZIER DR WALLA WALLA, WA 99362 | % Ownership: | 100.0000000000% |
| | | Exemptions: | |
Taxes and Assessment Details
Values
| (+) Improvement Homesite Value: | + | $0 | |
| (+) Improvement Non-Homesite Value: | + | $254,730 | |
| (+) Land Homesite Value: | + | $0 | |
| (+) Land Non-Homesite Value: | + | $90,000 | |
| (+) Curr Use (HS): | + | $0 | $0 |
| (+) Curr Use (NHS): | + | $0 | $0 |
| | | -------------------------- | |
| (=) Market Value: | = | $344,730 | |
| (–) Productivity Loss: | – | $0 | |
| | | -------------------------- | |
| (=) Subtotal: | = | $344,730 | |
| (+) Senior Appraised Value: | + | $0 | |
| (+) Non-Senior Appraised Value: | + | $344,730 | |
| | | -------------------------- | |
| (=) Total Appraised Value: | = | $344,730 | |
| (–) Senior Exemption Loss: | – | $0 | |
| (–) Exemption Loss: | – | $0 | |
| | | -------------------------- | |
| (=) Taxable Value: | = | $344,730 | |
Taxing Jurisdiction
| Owner: | PETERS BRIANNE | | |
| % Ownership: | 100.0000000000% | | |
| Total Value: | $344,730 | | |
| Tax Area: | 5 - OL-140 |
| CERFD | CURRENT EXPENSE REFUND 010 | 0.0000000000 | $344,730 | $344,730 | $0.00 | | |
| CURREXP | CURRENT EXPENSE 010 | 1.0175366760 | $344,730 | $344,730 | $350.78 | | |
| HUMNSERV | HUMAN SERVICES 119 | 0.0250000000 | $344,730 | $344,730 | $8.62 | | |
| SLDREL | SOLDIERS RELIEF 121 | 0.0155990005 | $344,730 | $344,730 | $5.38 | | |
| EMERGSER | EMS 147 | 0.3792580840 | $344,730 | $344,730 | $130.74 | | |
| EMSRFD | EMS REFUND 147 | 0.0000000000 | $344,730 | $344,730 | $0.00 | | |
| PORTRFD | PORT REFUND 640 | 0.0000000000 | $344,730 | $344,730 | $0.00 | | |
| PORTWWGEN | PORT OF WW 640 | 0.2460186015 | $344,730 | $344,730 | $84.81 | | |
| SD140BOND | SD #140 BOND 764 | 0.8342371393 | $344,730 | $344,730 | $287.59 | | |
| SD140GEN | SD #140 GENERAL 760 | 2.0646500647 | $344,730 | $344,730 | $711.75 | | |
| ST2 | STATE SCHOOL PART 2 600 | 0.8131451643 | $344,730 | $344,730 | $280.32 | | |
| STATESCHL | STATE SCHOOL 600 | 1.5158548041 | $344,730 | $344,730 | $522.56 | | |
| STREFUND | STATE REFUND LEVY 603 | 0.0000000000 | $344,730 | $344,730 | $0.00 | | |
| CWWBOND | C OF WW BOND 643 | 0.2760494372 | $344,730 | $344,730 | $95.16 | | |
| CWWGEN | CITY OF WW 631 | 1.6100204973 | $344,730 | $344,730 | $555.02 | | |
| CWWRFD | CITY OF WALLA WALLA REFUND 631 | 0.0000000000 | $344,730 | $344,730 | $0.00 | | |
| | Total Tax Rate: | 8.7973694689 | | | | | |
| | | | | Taxes w/Current Exemptions: | $3,032.73 | | |
| | | | | Taxes w/o Exemptions: | $3,032.73 | | |
Improvement / Building
| Improvement #1: | RESIDENTIAL | State Code: | 11 | 1232.0 sqft | Value: | $254,730 |
| Exterior Wall: | SIDING | Heating/Cooling: | WARM & COOLED AIR | | Number of Bathrooms: | 2.5 | Number of Bedrooms: | 3 | | Plumbing: | 11 | Roof Covering: | COMP SHINGLE |
|
| | Type | Description | Class CD | Sub Class CD | Year Built | Area |
| | MA | Main Area | 1 | 30 | 1965 | 1232.0 |
| | SI1 | SITE IMPROVEMENT | 1 | 30 | 1965 | 1.5 |
| | BASE | BASEMENT | 1 | 30 | 1965 | 840.0 |
| | BPF | BASEMENT -PARTITIONED FINISH | 1 | 30 | 1965 | 615.0 |
| | RPC | OPEN PORCH W/ROOF , CEILED | 1 | 30 | 1965 | 84.0 |
| | ATG | Attached Garage | 1 | 30 | 2013 | 460.0 |
| | CPC | COVERED CARPORT/PATIO | 1 | 30 | 1965 | 144.0 |
| | UTST | Utility Storage Shed | 1 | 30 | 1965 | 36.0 |
Sketch
Property Image
Land
| 1 | RES 1 | Converted: Residential | 0.2755 | 12000.00 | 0.00 | 0.00 | 1.00 | $90,000 | $0 |
Roll Value History
| 2025 | N/A | N/A | N/A | N/A | N/A |
| 2024 | $254,730 | $90,000 | $0 | $344,730 | $344,730 |
| 2023 | $254,730 | $90,000 | $0 | $344,730 | $344,730 |
| 2022 | $242,600 | $90,000 | $0 | $332,600 | $332,600 |
| 2021 | $193,460 | $55,000 | $0 | $248,460 | $248,460 |
| 2020 | $161,220 | $55,000 | $0 | $216,220 | $216,220 |
| 2019 | $161,220 | $55,000 | $0 | $216,220 | $216,220 |
| 2018 | $134,350 | $55,000 | $0 | $189,350 | $189,350 |
| 2017 | $122,140 | $55,000 | $0 | $177,140 | $177,140 |
| 2016 | $116,320 | $55,000 | $0 | $171,320 | $171,320 |
| 2015 | $117,180 | $55,000 | $0 | $172,180 | $172,180 |
| 2014 | $111,600 | $55,000 | $0 | $166,600 | $166,600 |
| 2013 | $109,200 | $55,000 | $0 | $164,200 | $164,200 |
| 2012 | $117,800 | $55,000 | $0 | $0 | $0 |
| 2011 | $117,800 | $55,000 | $0 | $0 | $0 |
| 2010 | $121,600 | $40,000 | $0 | $0 | $0 |
| 2009 | $139,500 | $40,000 | $0 | $0 | $0 |
| 2008 | $103,600 | $40,000 | $0 | $0 | $0 |
| 2007 | $103,600 | $40,000 | $0 | $0 | $0 |
| 2006 | $95,100 | $25,000 | $0 | $0 | $0 |
Deed and Sales History
| 1 | 07/26/2019 | SWD | STATUTORY WARRANTY DEED | SLATER TOBIAS J & STEPHANIE R | PETERS BRIANNE | | | $263,000.00 | 137363 | 2019-05501 |
| 2 | 06/20/2013 | WARRANTY D | WARRANTY DEED | SIVLEY, WILLARD E ESTATE OF | SLATER, TOBIAS J & STEPHANIE R | | | $175,000.00 | 124155 | 2013-06197 |
| 3 | 01/18/2006 | QCD | QUIT CLAIM DEED | SIVLEY, MARIE V | SIVLEY, WILLARD E | | | | 109484 | 2006-00641 |
| 4 | 05/25/1966 | WARRANTY D | WARRANTY DEED | | | | | $19,200.00 | 0 | 3180-476958 |
Payout Agreement
| No payout information available.. |