Property
Account |
| Property ID: | 35465 | Abbreviated Legal Description: | EAST MILBROOKE PARK LOT 6 BLK 1 |
| Parcel Number: | 360721660106 | Agent Code: | |
| Type: | Real | | |
| Tax Area: | 1 - OL-140-F | Land Use Code | 11 |
| Open Space: | N | DFL | N |
| Historic Property: | N | Remodel Property: | N |
| Multi-Family Redevelopment: | N | | |
| Township: | 7 | Section: | 21 |
| Range: | 36 |
Location |
| Address: | 111 N WILBUR AVE WA 99362 | Mapsco: | |
| Neighborhood: | A-Superior SFR | Map ID: | |
| Neighborhood CD: | 513211 |
Owner |
| Name: | THOMAS DAVID L & DONNA J | Owner ID: | 61025 |
| Mailing Address: | 111 N WILBUR AVE WALLA WALLA, WA 99362 | % Ownership: | 100.0000000000% |
| | | Exemptions: | |
Taxes and Assessment Details
Values
| (+) Improvement Homesite Value: | + | $0 | |
| (+) Improvement Non-Homesite Value: | + | $267,610 | |
| (+) Land Homesite Value: | + | $0 | |
| (+) Land Non-Homesite Value: | + | $42,630 | |
| (+) Curr Use (HS): | + | $0 | $0 |
| (+) Curr Use (NHS): | + | $0 | $0 |
| | | -------------------------- | |
| (=) Market Value: | = | $310,240 | |
| (–) Productivity Loss: | – | $0 | |
| | | -------------------------- | |
| (=) Subtotal: | = | $310,240 | |
| (+) Senior Appraised Value: | + | $0 | |
| (+) Non-Senior Appraised Value: | + | $310,240 | |
| | | -------------------------- | |
| (=) Total Appraised Value: | = | $310,240 | |
| (–) Senior Exemption Loss: | – | $0 | |
| (–) Exemption Loss: | – | $0 | |
| | | -------------------------- | |
| (=) Taxable Value: | = | $310,240 | |
Taxing Jurisdiction
| Owner: | THOMAS DAVID L & DONNA J | | |
| % Ownership: | 100.0000000000% | | |
| Total Value: | $310,240 | | |
| Tax Area: | 1 - OL-140-F |
| CERFD | CURRENT EXPENSE REFUND 010 | 0.0000000000 | $310,240 | $310,240 | $0.00 | | |
| CURREXP | CURRENT EXPENSE 010 | 1.0175366760 | $310,240 | $310,240 | $315.68 | | |
| HUMNSERV | HUMAN SERVICES 119 | 0.0250000000 | $310,240 | $310,240 | $7.76 | | |
| SLDREL | SOLDIERS RELIEF 121 | 0.0155990005 | $310,240 | $310,240 | $4.84 | | |
| EMERGSER | EMS 147 | 0.3792580840 | $310,240 | $310,240 | $117.66 | | |
| EMSRFD | EMS REFUND 147 | 0.0000000000 | $310,240 | $310,240 | $0.00 | | |
| PORTRFD | PORT REFUND 640 | 0.0000000000 | $310,240 | $310,240 | $0.00 | | |
| PORTWWGEN | PORT OF WW 640 | 0.2460186015 | $310,240 | $310,240 | $76.32 | | |
| SD140BOND | SD #140 BOND 764 | 0.8342371393 | $310,240 | $310,240 | $258.81 | | |
| SD140GEN | SD #140 GENERAL 760 | 2.0646500647 | $310,240 | $310,240 | $640.54 | | |
| ST2 | STATE SCHOOL PART 2 600 | 0.8131451643 | $310,240 | $310,240 | $252.27 | | |
| STATESCHL | STATE SCHOOL 600 | 1.5158548041 | $310,240 | $310,240 | $470.28 | | |
| STREFUND | STATE REFUND LEVY 603 | 0.0000000000 | $310,240 | $310,240 | $0.00 | | |
| CWWBOND | C OF WW BOND 643 | 0.2760494372 | $310,240 | $310,240 | $85.64 | | |
| CWWGEN | CITY OF WW 631 | 1.6100204973 | $310,240 | $310,240 | $499.49 | | |
| CWWRFD | CITY OF WALLA WALLA REFUND 631 | 0.0000000000 | $310,240 | $310,240 | $0.00 | | |
| | Total Tax Rate: | 8.7973694689 | | | | | |
| | | | | Taxes w/Current Exemptions: | $2,729.29 | | |
| | | | | Taxes w/o Exemptions: | $2,729.29 | | |
Improvement / Building
| Improvement #1: | RESIDENTIAL | State Code: | 11 | 960.0 sqft | Value: | $267,610 |
| Exterior Wall: | SIDING | Heating/Cooling: | WARM & COOLED AIR | | Number of Bathrooms: | 1 | Number of Bedrooms: | 2 | | Plumbing: | 6 | Roof Covering: | COMP SHINGLE |
|
| | Type | Description | Class CD | Sub Class CD | Year Built | Area |
| | MA | Main Area | 1 | 30 | 1955 | 960.0 |
| | SI1 | SITE IMPROVEMENT | 1 | 30 | 1955 | 1.5 |
| | BASE | BASEMENT | 1 | 30 | 1955 | 960.0 |
| | BPF | BASEMENT -PARTITIONED FINISH | 1 | 30 | 1955 | 495.0 |
| | CPC | COVERED CARPORT/PATIO | 1 | 30 | 1955 | 240.0 |
| | POL3 | POLE BUILDING-CON,ELEC,INSU | 1 | 30 | 1955 | 576.0 |
| | WOD | Wood Deck | 1 | 30 | 1955 | 280.0 |
| | S1F | Single One Story Fireplace | 1 | 30 | 1955 | 1.0 |
| | WOD | Wood Deck | 1 | 30 | 1955 | 96.0 |
Sketch
Property Image
Land
| 1 | RES 1 | Converted: Residential | 0.1566 | 6820.00 | 0.00 | 0.00 | 1.00 | $42,630 | $0 |
Roll Value History
| 2025 | N/A | N/A | N/A | N/A | N/A |
| 2024 | $257,260 | $68,200 | $0 | $325,460 | $325,460 |
| 2023 | $267,610 | $42,630 | $0 | $310,240 | $310,240 |
| 2022 | $254,870 | $42,630 | $0 | $297,500 | $297,500 |
| 2021 | $203,900 | $42,630 | $0 | $246,530 | $246,530 |
| 2020 | $145,640 | $42,630 | $0 | $188,270 | $188,270 |
| 2019 | $145,640 | $42,630 | $0 | $188,270 | $188,270 |
| 2018 | $132,400 | $42,630 | $0 | $175,030 | $175,030 |
| 2017 | $143,070 | $27,300 | $0 | $170,370 | $170,370 |
| 2016 | $130,060 | $27,300 | $0 | $157,360 | $157,360 |
| 2015 | $130,060 | $27,300 | $0 | $157,360 | $157,360 |
| 2014 | $136,900 | $27,300 | $0 | $164,200 | $164,200 |
| 2013 | $136,900 | $27,300 | $0 | $164,200 | $164,200 |
| 2012 | $143,600 | $27,300 | $0 | $0 | $0 |
| 2011 | $135,500 | $27,300 | $0 | $0 | $0 |
| 2010 | $126,500 | $27,300 | $0 | $0 | $0 |
| 2009 | $143,600 | $27,300 | $0 | $0 | $0 |
| 2008 | $121,300 | $27,300 | $0 | $0 | $0 |
| 2007 | $121,300 | $27,300 | $0 | $0 | $0 |
| 2006 | $73,100 | $13,600 | $0 | $0 | $0 |
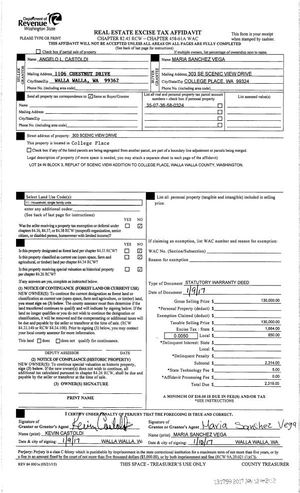
Deed and Sales History
| 1 | 06/05/2017 | QCD | QUIT CLAIM DEED | SKAAGS DONNA J | THOMAS DAVID L & DONNA J | | | $0.00 | 132533 | 2017-04260 |
| 2 | 06/13/2013 | WARRANTY D | WARRANTY DEED | SAARI, EDWIN C & MARION K | SKAAGS, DONNA J | | | $160,000.00 | 124118 | 2013-05956 |
| 3 | 09/28/1979 | WARRANTY D | WARRANTY DEED | | | | | $45,000.00 | 0 | 1127-909199 |
Payout Agreement
| No payout information available.. |