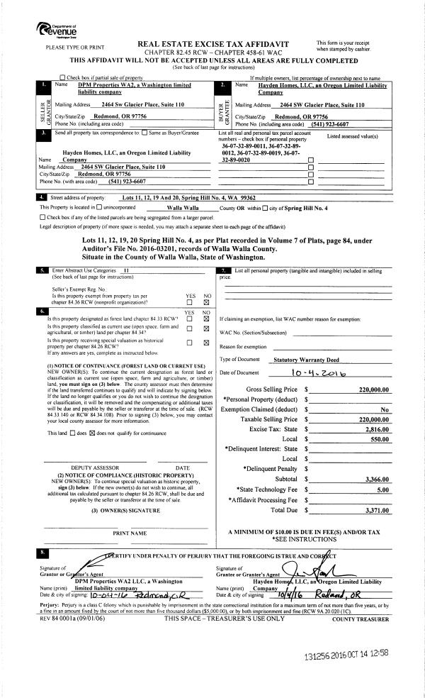
Property
Account |
| Property ID: | 35385 | Abbreviated Legal Description: | 21-7-36 TAX 29B |
| Parcel Number: | 360721310026 | Agent Code: | |
| Type: | Real | | |
| Tax Area: | 1 - OL-140-F | Land Use Code | 11 |
| Open Space: | N | DFL | N |
| Historic Property: | N | Remodel Property: | N |
| Multi-Family Redevelopment: | N | | |
| Township: | 7 | Section: | 21 |
| Range: | 36 |
Location |
| Address: | 1004 HOBSON ST WA 99362 | Mapsco: | |
| Neighborhood: | A-SFR | Map ID: | |
| Neighborhood CD: | 513011 |
Owner |
| Name: | KELTZER CHARLES M | Owner ID: | 60742 |
| Mailing Address: | MICHAEL C KELCY 1004 HOBSON ST WALLA WALLA, WA 99362-2414 | % Ownership: | 100.0000000000% |
| | | Exemptions: | |
Taxes and Assessment Details
Values
| (+) Improvement Homesite Value: | + | $258,520 | |
| (+) Improvement Non-Homesite Value: | + | $0 | |
| (+) Land Homesite Value: | + | $43,560 | |
| (+) Land Non-Homesite Value: | + | $0 | |
| (+) Curr Use (HS): | + | $0 | $0 |
| (+) Curr Use (NHS): | + | $0 | $0 |
| | | -------------------------- | |
| (=) Market Value: | = | $302,080 | |
| (–) Productivity Loss: | – | $0 | |
| | | -------------------------- | |
| (=) Subtotal: | = | $302,080 | |
| (+) Senior Appraised Value: | + | $0 | |
| (+) Non-Senior Appraised Value: | + | $302,080 | |
| | | -------------------------- | |
| (=) Total Appraised Value: | = | $302,080 | |
| (–) Senior Exemption Loss: | – | $0 | |
| (–) Exemption Loss: | – | $0 | |
| | | -------------------------- | |
| (=) Taxable Value: | = | $302,080 | |
Taxing Jurisdiction
| Owner: | KELTZER CHARLES M | | |
| % Ownership: | 100.0000000000% | | |
| Total Value: | $302,080 | | |
| Tax Area: | 1 - OL-140-F |
| CERFD | CURRENT EXPENSE REFUND 010 | 0.0000000000 | $302,080 | $302,080 | $0.00 | | |
| CURREXP | CURRENT EXPENSE 010 | 1.0175366760 | $302,080 | $302,080 | $307.38 | | |
| HUMNSERV | HUMAN SERVICES 119 | 0.0250000000 | $302,080 | $302,080 | $7.55 | | |
| SLDREL | SOLDIERS RELIEF 121 | 0.0155990005 | $302,080 | $302,080 | $4.71 | | |
| EMERGSER | EMS 147 | 0.3792580840 | $302,080 | $302,080 | $114.57 | | |
| EMSRFD | EMS REFUND 147 | 0.0000000000 | $302,080 | $302,080 | $0.00 | | |
| PORTRFD | PORT REFUND 640 | 0.0000000000 | $302,080 | $302,080 | $0.00 | | |
| PORTWWGEN | PORT OF WW 640 | 0.2460186015 | $302,080 | $302,080 | $74.32 | | |
| SD140BOND | SD #140 BOND 764 | 0.8342371393 | $302,080 | $302,080 | $252.01 | | |
| SD140GEN | SD #140 GENERAL 760 | 2.0646500647 | $302,080 | $302,080 | $623.69 | | |
| ST2 | STATE SCHOOL PART 2 600 | 0.8131451643 | $302,080 | $302,080 | $245.63 | | |
| STATESCHL | STATE SCHOOL 600 | 1.5158548041 | $302,080 | $302,080 | $457.91 | | |
| STREFUND | STATE REFUND LEVY 603 | 0.0000000000 | $302,080 | $302,080 | $0.00 | | |
| CWWBOND | C OF WW BOND 643 | 0.2760494372 | $302,080 | $302,080 | $83.39 | | |
| CWWGEN | CITY OF WW 631 | 1.6100204973 | $302,080 | $302,080 | $486.35 | | |
| CWWRFD | CITY OF WALLA WALLA REFUND 631 | 0.0000000000 | $302,080 | $302,080 | $0.00 | | |
| | Total Tax Rate: | 8.7973694689 | | | | | |
| | | | | Taxes w/Current Exemptions: | $2,657.51 | | |
| | | | | Taxes w/o Exemptions: | $2,657.51 | | |
Improvement / Building
| Improvement #1: | RESIDENTIAL | State Code: | 11 | 1182.0 sqft | Value: | $258,520 |
| Exterior Wall: | METAL/STEEL | Heating/Cooling: | WARM & COOLED AIR | | Number of Bathrooms: | 2 | Number of Bedrooms: | 3 | | Plumbing: | 8 | Roof Covering: | COMP SHINGLE |
|
| | Type | Description | Class CD | Sub Class CD | Year Built | Area |
| | MA | Main Area | 1 | 30 | 1948 | 1182.0 |
| | SI1 | SITE IMPROVEMENT | 1 | 30 | 1948 | 1.5 |
| | BASE | BASEMENT | 1 | 30 | 1948 | 842.0 |
| | OPS | OPEN PORCH W/STEPS | 1 | 30 | 1948 | 25.0 |
| | CPC | COVERED CARPORT/PATIO | 1 | 30 | 1948 | 135.0 |
| | DTG | Detached Garage | 1 | 30 | 1948 | 280.0 |
Sketch
Property Image
Land
| 1 | RES 1 | Converted: Residential | 0.1600 | 6969.00 | 0.00 | 0.00 | 1.00 | $43,560 | $0 |
Roll Value History
| 2025 | N/A | N/A | N/A | N/A | N/A |
| 2024 | $223,850 | $69,690 | $0 | $293,540 | $293,540 |
| 2023 | $258,520 | $43,560 | $0 | $302,080 | $302,080 |
| 2022 | $258,520 | $43,560 | $0 | $302,080 | $302,080 |
| 2021 | $215,440 | $43,560 | $0 | $259,000 | $259,000 |
| 2020 | $153,880 | $43,560 | $0 | $197,440 | $197,440 |
| 2019 | $153,880 | $43,560 | $0 | $197,440 | $197,440 |
| 2018 | $133,810 | $43,560 | $0 | $177,370 | $177,370 |
| 2017 | $135,830 | $27,900 | $0 | $163,730 | $163,730 |
| 2016 | $129,360 | $27,900 | $0 | $157,260 | $157,260 |
| 2015 | $129,360 | $27,900 | $0 | $157,260 | $157,260 |
| 2014 | $123,200 | $27,900 | $0 | $151,100 | $68,200 |
| 2013 | $123,200 | $27,900 | $0 | $151,100 | $68,200 |
| 2012 | $123,200 | $27,900 | $0 | $0 | $0 |
| 2011 | $123,200 | $27,900 | $0 | $0 | $0 |
| 2010 | $116,000 | $27,900 | $0 | $0 | $0 |
| 2009 | $132,000 | $27,900 | $0 | $0 | $0 |
| 2008 | $100,000 | $27,900 | $0 | $0 | $0 |
| 2007 | $100,000 | $27,900 | $0 | $0 | $0 |
| 2006 | $74,600 | $13,700 | $0 | $0 | $0 |
Deed and Sales History
| 1 | 04/20/2017 | QCD | QUIT CLAIM DEED | KELTZER MEGHAN JOANNA | KELTZER CHARLES M | | | | 132240 | 2017-02981 |
| 2 | 04/20/2017 | SWD | STATUTORY WARRANTY DEED | AMSTUTZ MARI D | KELTZER CHARLES M | | | $184,900.00 | 132239 | 2017-02980 |
| 3 | 04/20/2017 | DEATH CERT | DEATH CERTIFICATE | FREEBURG MARY | | | | | 0 | 2017-02979 |
| 4 | 12/01/2009 | QCD | QUIT CLAIM DEED | FREEBURG, ERIC MICHAEL | AMSTUTZ, MARI DENISE | | | | 117743 | 2009-11676 |
| 5 | 01/01/1954 | WARRANTY D | WARRANTY DEED | | | | | $0.00 | 0 | 2710-374312 |
Payout Agreement
| No payout information available.. |