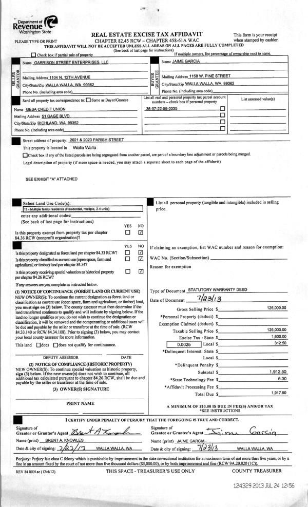
Property
Account |
| Property ID: | 35368 | Abbreviated Legal Description: | COUNTRY CLUB ESTATES LT 7 BLK 1 |
| Parcel Number: | 360731500120 | Agent Code: | |
| Type: | Real | | |
| Tax Area: | 101 - 140-4 | Land Use Code | 11 |
| Open Space: | N | DFL | N |
| Historic Property: | N | Remodel Property: | N |
| Multi-Family Redevelopment: | N | | |
| Township: | 7 | Section: | 31 |
| Range: | 36 |
Location |
| Address: | 1340 HAVSTAD DR WA 99362 | Mapsco: | |
| Neighborhood: | G SFR Rural/City Inf | Map ID: | |
| Neighborhood CD: | 114012 |
Owner |
| Name: | ZURITA JOSE MARTINEZ & WHITNEY ZAMORA | Owner ID: | 67923 |
| Mailing Address: | 1340 HAVSTAD DR WALLA WALLA, WA 99362 | % Ownership: | 100.0000000000% |
| | | Exemptions: | |
Taxes and Assessment Details
Values
| (+) Improvement Homesite Value: | + | $321,080 | |
| (+) Improvement Non-Homesite Value: | + | $0 | |
| (+) Land Homesite Value: | + | $110,510 | |
| (+) Land Non-Homesite Value: | + | $0 | |
| (+) Curr Use (HS): | + | $0 | $0 |
| (+) Curr Use (NHS): | + | $0 | $0 |
| | | -------------------------- | |
| (=) Market Value: | = | $431,590 | |
| (–) Productivity Loss: | – | $0 | |
| | | -------------------------- | |
| (=) Subtotal: | = | $431,590 | |
| (+) Senior Appraised Value: | + | $0 | |
| (+) Non-Senior Appraised Value: | + | $431,590 | |
| | | -------------------------- | |
| (=) Total Appraised Value: | = | $431,590 | |
| (–) Senior Exemption Loss: | – | $0 | |
| (–) Exemption Loss: | – | $0 | |
| | | -------------------------- | |
| (=) Taxable Value: | = | $431,590 | |
Taxing Jurisdiction
| Owner: | ZURITA JOSE MARTINEZ & WHITNEY ZAMORA | | |
| % Ownership: | 100.0000000000% | | |
| Total Value: | $431,590 | | |
| Tax Area: | 101 - 140-4 |
| CERFD | CURRENT EXPENSE REFUND 010 | 0.0000000000 | $431,590 | $431,590 | $0.00 | | |
| CURREXP | CURRENT EXPENSE 010 | 1.0175366760 | $431,590 | $431,590 | $439.16 | | |
| HUMNSERV | HUMAN SERVICES 119 | 0.0250000000 | $431,590 | $431,590 | $10.79 | | |
| SLDREL | SOLDIERS RELIEF 121 | 0.0155990005 | $431,590 | $431,590 | $6.73 | | |
| EMERGSER | EMS 147 | 0.3792580840 | $431,590 | $431,590 | $163.68 | | |
| EMSRFD | EMS REFUND 147 | 0.0000000000 | $431,590 | $431,590 | $0.00 | | |
| FD4EXP | FD #4 EXPENSE 686 | 0.8836993059 | $431,590 | $431,590 | $381.40 | | |
| RLBRFD | RURAL LIBRARY REFUND 623 | 0.0000000000 | $431,590 | $431,590 | $0.00 | | |
| RURALLIB | RURAL LIBRARY 623 | 0.3710609029 | $431,590 | $431,590 | $160.15 | | |
| PORTRFD | PORT REFUND 640 | 0.0000000000 | $431,590 | $431,590 | $0.00 | | |
| PORTWWGEN | PORT OF WW 640 | 0.2460186015 | $431,590 | $431,590 | $106.18 | | |
| SD140BOND | SD #140 BOND 764 | 0.8342371393 | $431,590 | $431,590 | $360.05 | | |
| SD140GEN | SD #140 GENERAL 760 | 2.0646500647 | $431,590 | $431,590 | $891.08 | | |
| ST2 | STATE SCHOOL PART 2 600 | 0.8131451643 | $431,590 | $431,590 | $350.95 | | |
| STATESCHL | STATE SCHOOL 600 | 1.5158548041 | $431,590 | $431,590 | $654.23 | | |
| STREFUND | STATE REFUND LEVY 603 | 0.0000000000 | $431,590 | $431,590 | $0.00 | | |
| COROAD | COUNTY ROAD 115 | 1.6549953990 | $431,590 | $431,590 | $714.28 | | |
| CRPRD | COUNTY ROAD REFUND 115 | 0.0000000000 | $431,590 | $431,590 | $0.00 | | |
| | Total Tax Rate: | 9.8210551422 | | | | | |
| | | | | Taxes w/Current Exemptions: | $4,238.68 | | |
| | | | | Taxes w/o Exemptions: | $4,238.68 | | |
Improvement / Building
| Improvement #1: | RESIDENTIAL | State Code: | 11 | 2551.0 sqft | Value: | $321,080 |
| Exterior Wall: | SIDING | Heating/Cooling: | HEAT PUMP | | Number of Bathrooms: | 3 | Number of Bedrooms: | 4 | | Plumbing: | 16 | Roof Covering: | COMP SHINGLE |
|
| | Type | Description | Class CD | Sub Class CD | Year Built | Area |
| | MA | Main Area | 1 | 30 | 1965 | 2551.0 |
| | SI1 | SITE IMPROVEMENT | 1 | 30 | 0 | 3.0 |
| | ATG | Attached Garage | 1 | 30 | 0 | 655.0 |
| | D1F | Double 1 Story Fireplace | 1 | 30 | 0 | 1.0 |
Sketch
Property Image
Land
| 1 | RES 1 | Converted: Residential | 0.6747 | 29392.00 | 0.00 | 0.00 | 1.00 | $110,510 | $0 |
Roll Value History
| 2025 | N/A | N/A | N/A | N/A | N/A |
| 2024 | $321,080 | $110,510 | $0 | $431,590 | $431,590 |
| 2023 | $321,080 | $110,510 | $0 | $431,590 | $431,590 |
| 2022 | $321,080 | $110,510 | $0 | $431,590 | $431,590 |
| 2021 | $279,200 | $110,510 | $0 | $389,710 | $389,710 |
| 2020 | $169,210 | $110,510 | $0 | $279,720 | $279,720 |
| 2019 | $214,720 | $65,000 | $0 | $279,720 | $157,300 |
| 2018 | $178,940 | $65,000 | $0 | $243,940 | $157,300 |
| 2017 | $170,420 | $65,000 | $0 | $235,420 | $90,920 |
| 2016 | $162,300 | $65,000 | $0 | $227,300 | $157,300 |
| 2015 | $162,300 | $65,000 | $0 | $227,300 | $157,300 |
| 2014 | $162,300 | $65,000 | $0 | $227,300 | $227,300 |
| 2013 | $162,300 | $65,000 | $0 | $227,300 | $227,300 |
| 2012 | $162,300 | $65,000 | $0 | $0 | $0 |
| 2011 | $162,300 | $65,000 | $0 | $0 | $0 |
| 2010 | $162,300 | $65,000 | $0 | $0 | $0 |
| 2009 | $187,600 | $65,000 | $0 | $0 | $0 |
| 2008 | $148,800 | $40,000 | $0 | $0 | $0 |
| 2007 | $148,800 | $40,000 | $0 | $0 | $0 |
| 2006 | $148,800 | $40,000 | $0 | $0 | $0 |
Deed and Sales History
| 1 | 09/10/2020 | SWD | STATUTORY WARRANTY DEED | ARTHUR D DAHL TRUST | ZURITA JOSE MARTINEZ & WHITNEY ZAMORA | | | $400,000.00 | 139880 | 2020-09208 |
| 2 | 12/02/2014 | QCD | QUIT CLAIM DEED | DAHL ARTHUR D | ARTHUR D DAHL TRUST | | | $0.00 | 127037 | 2014-08702 |
| 3 | 03/21/2012 | QCD | QUIT CLAIM DEED | NEVADA-UTAH ASSOC OF SDA,TRUST | DAHL, ARTHUR D | | | | 121563 | 2012-02308 |
| 4 | 07/09/2003 | QCD | QUIT CLAIM DEED | DAHL, ARTHUR D & ETHEL E | NEVADA-UTAH ASSOC OF SDA,TRUST | | | | 102519 | 2003-10207 |
| 5 | 07/07/2000 | WARRANTY D | WARRANTY DEED | | | | | $138,000.00 | 95405 | 3000-006530 |
Payout Agreement
| No payout information available.. |