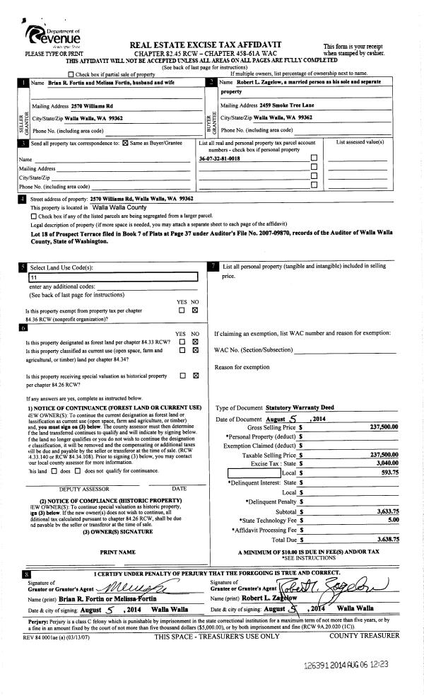
Property
Account |
| Property ID: | 35351 | Abbreviated Legal Description: | REEVES SUB OF BLA ORCH TRACT B LOT 3 BLK 21 |
| Parcel Number: | 350726552115 | Agent Code: | |
| Type: | Real | | |
| Tax Area: | 311 - 250-4 | Land Use Code | 11 |
| Open Space: | N | DFL | N |
| Historic Property: | N | Remodel Property: | N |
| Multi-Family Redevelopment: | N | | |
| Township: | 7 | Section: | 26 |
| Range: | 35 |
Location |
| Address: | 936 WALLULA AVE WA 99324 | Mapsco: | |
| Neighborhood: | A SFR Rural/City Infl | Map ID: | |
| Neighborhood CD: | 313012 |
Owner |
| Name: | RUTLEDGE BLAKE E | Owner ID: | 54419 |
| Mailing Address: | 936 WALLULA AVE WALLA WALLA, WA 99362 | % Ownership: | 100.0000000000% |
| | | Exemptions: | |
Taxes and Assessment Details
Values
| (+) Improvement Homesite Value: | + | $0 | |
| (+) Improvement Non-Homesite Value: | + | $192,640 | |
| (+) Land Homesite Value: | + | $0 | |
| (+) Land Non-Homesite Value: | + | $86,770 | |
| (+) Curr Use (HS): | + | $0 | $0 |
| (+) Curr Use (NHS): | + | $0 | $0 |
| | | -------------------------- | |
| (=) Market Value: | = | $279,410 | |
| (–) Productivity Loss: | – | $0 | |
| | | -------------------------- | |
| (=) Subtotal: | = | $279,410 | |
| (+) Senior Appraised Value: | + | $0 | |
| (+) Non-Senior Appraised Value: | + | $279,410 | |
| | | -------------------------- | |
| (=) Total Appraised Value: | = | $279,410 | |
| (–) Senior Exemption Loss: | – | $0 | |
| (–) Exemption Loss: | – | $0 | |
| | | -------------------------- | |
| (=) Taxable Value: | = | $279,410 | |
Taxing Jurisdiction
| Owner: | RUTLEDGE BLAKE E | | |
| % Ownership: | 100.0000000000% | | |
| Total Value: | $279,410 | | |
| Tax Area: | 311 - 250-4 |
| CERFD | CURRENT EXPENSE REFUND 010 | 0.0000000000 | $279,410 | $279,410 | $0.00 | | |
| CURREXP | CURRENT EXPENSE 010 | 1.0175366760 | $279,410 | $279,410 | $284.31 | | |
| HUMNSERV | HUMAN SERVICES 119 | 0.0250000000 | $279,410 | $279,410 | $6.99 | | |
| SLDREL | SOLDIERS RELIEF 121 | 0.0155990005 | $279,410 | $279,410 | $4.36 | | |
| EMERGSER | EMS 147 | 0.3792580840 | $279,410 | $279,410 | $105.97 | | |
| EMSRFD | EMS REFUND 147 | 0.0000000000 | $279,410 | $279,410 | $0.00 | | |
| FD4EXP | FD #4 EXPENSE 686 | 0.8836993059 | $279,410 | $279,410 | $246.91 | | |
| RLBRFD | RURAL LIBRARY REFUND 623 | 0.0000000000 | $279,410 | $279,410 | $0.00 | | |
| RURALLIB | RURAL LIBRARY 623 | 0.3710609029 | $279,410 | $279,410 | $103.68 | | |
| PORTRFD | PORT REFUND 640 | 0.0000000000 | $279,410 | $279,410 | $0.00 | | |
| PORTWWGEN | PORT OF WW 640 | 0.2460186015 | $279,410 | $279,410 | $68.74 | | |
| SD250BOND | SD #250 BOND 773 | 1.4560608159 | $279,410 | $279,410 | $406.84 | | |
| SD250GEN | SD #250 GENERAL 770 | 2.3880724087 | $279,410 | $279,410 | $667.25 | | |
| ST2 | STATE SCHOOL PART 2 600 | 0.8131451643 | $279,410 | $279,410 | $227.20 | | |
| STATESCHL | STATE SCHOOL 600 | 1.5158548041 | $279,410 | $279,410 | $423.54 | | |
| STREFUND | STATE REFUND LEVY 603 | 0.0000000000 | $279,410 | $279,410 | $0.00 | | |
| COROAD | COUNTY ROAD 115 | 1.6549953990 | $279,410 | $279,410 | $462.42 | | |
| CRPRD | COUNTY ROAD REFUND 115 | 0.0000000000 | $279,410 | $279,410 | $0.00 | | |
| | Total Tax Rate: | 10.7663011628 | | | | | |
| | | | | Taxes w/Current Exemptions: | $3,008.21 | | |
| | | | | Taxes w/o Exemptions: | $3,008.21 | | |
Improvement / Building
| Improvement #1: | RESIDENTIAL | State Code: | 11 | 912.0 sqft | Value: | $192,640 |
| Exterior Wall: | METAL/STEEL | Heating/Cooling: | WARM & COOLED AIR | | Number of Bathrooms: | 1 | Number of Bedrooms: | 2 | | Plumbing: | 6 | Roof Covering: | COMP SHINGLE |
|
| | Type | Description | Class CD | Sub Class CD | Year Built | Area |
| | MA | Main Area | 1 | 30 | 1935 | 912.0 |
| | CPC | COVERED CARPORT/PATIO | 1 | 30 | 0 | 96.0 |
| | SI1 | SITE IMPROVEMENT | 1 | 30 | 0 | 1.0 |
| | BASE | BASEMENT | 1 | 30 | 1935 | 552.0 |
| | UTST | Utility Storage Shed | 1 | 30 | 1935 | 801.0 |
| | RPO | OPEN PORCH W/ROOF | 1 | 30 | 1935 | 28.0 |
| | BRF | BASEMENT - REC FINISH | 1 | 30 | 1935 | 420.0 |
| | WOD | Wood Deck | 1 | 30 | 1935 | 280.0 |
| | WDR | WOOD DECK W/ROOF | 1 | 30 | 1935 | 200.0 |
| | POL2 | POLE BUILDING-CONCRETE | 1 | 30 | 0 | 2400.0 |
Sketch
Property Image
Land
| 1 | RES 1 | Converted: Residential | 0.4731 | 20610.00 | 0.00 | 0.00 | 1.00 | $86,770 | $0 |
Roll Value History
| 2025 | N/A | N/A | N/A | N/A | N/A |
| 2024 | $192,640 | $86,770 | $0 | $279,410 | $279,410 |
| 2023 | $192,640 | $86,770 | $0 | $279,410 | $279,410 |
| 2022 | $192,640 | $86,770 | $0 | $279,410 | $279,410 |
| 2021 | $161,210 | $56,100 | $0 | $217,310 | $217,310 |
| 2020 | $134,340 | $56,100 | $0 | $190,440 | $190,440 |
| 2019 | $84,540 | $56,100 | $0 | $140,640 | $140,640 |
| 2018 | $76,860 | $56,100 | $0 | $132,960 | $132,960 |
| 2017 | $73,200 | $56,100 | $0 | $129,300 | $129,300 |
| 2016 | $69,710 | $56,100 | $0 | $125,810 | $125,810 |
| 2015 | $68,400 | $56,100 | $0 | $124,500 | $124,500 |
| 2014 | $68,400 | $56,100 | $0 | $124,500 | $124,500 |
| 2013 | $68,400 | $56,100 | $0 | $124,500 | $124,500 |
| 2012 | $68,400 | $56,100 | $0 | $0 | $0 |
| 2011 | $68,400 | $56,100 | $0 | $0 | $0 |
| 2010 | $65,600 | $56,100 | $0 | $0 | $0 |
| 2009 | $101,000 | $34,200 | $0 | $0 | $0 |
| 2008 | $62,400 | $34,200 | $0 | $0 | $0 |
| 2007 | $62,400 | $34,200 | $0 | $0 | $0 |
| 2006 | $62,400 | $34,200 | $0 | $0 | $0 |
Deed and Sales History
| 1 | 02/28/2014 | BARGAIN & | BARGAIN & SALE DEED | FEDERAL HOME LOAN MORTGAGE CORP | RUTLEDGE BLAKE E | | | $119,900.00 | 125499 | 2014-01435 |
| 2 | 06/03/2013 | WARRANTY D | WARRANTY DEED | NORTHWEST TRUSTEE SERVICES INC | FEDERAL HOME LOAN MORTGAGE COR | | | $125,037.00 | 124056 | 2013-05479 |
| 3 | 10/05/1988 | WARRANTY D | WARRANTY DEED | | | | | $43,500.00 | 0 | 1728-806643 |
Payout Agreement
| No payout information available.. |