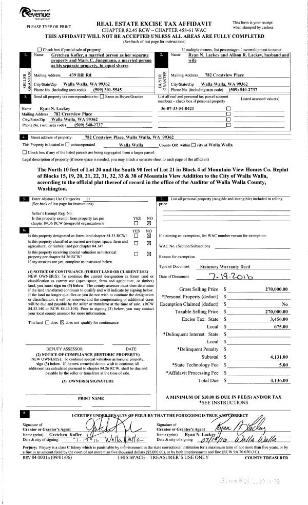
Property
Account |
| Property ID: | 35322 | Abbreviated Legal Description: | GREEN PARK TAX 10 LOT 1 BLK 12 |
| Parcel Number: | 360721511213 | Agent Code: | |
| Type: | Real | | |
| Tax Area: | 1 - OL-140-F | Land Use Code | 11 |
| Open Space: | N | DFL | N |
| Historic Property: | N | Remodel Property: | N |
| Multi-Family Redevelopment: | N | | |
| Township: | 7 | Section: | 21 |
| Range: | 36 |
Location |
| Address: | 703 N CLINTON ST WA 99362 | Mapsco: | |
| Neighborhood: | G-SFR | Map ID: | |
| Neighborhood CD: | 514011 |
Owner |
| Name: | WALLA WALLA COMMUNITY HOSPICE | Owner ID: | 8244 |
| Mailing Address: | 1067 ISAACS AVE WALLA WALLA, WA 99362 | % Ownership: | 100.0000000000% |
| | | Exemptions: | |
Taxes and Assessment Details
Values
| (+) Improvement Homesite Value: | + | $305,190 | |
| (+) Improvement Non-Homesite Value: | + | $0 | |
| (+) Land Homesite Value: | + | $39,880 | |
| (+) Land Non-Homesite Value: | + | $0 | |
| (+) Curr Use (HS): | + | $0 | $0 |
| (+) Curr Use (NHS): | + | $0 | $0 |
| | | -------------------------- | |
| (=) Market Value: | = | $345,070 | |
| (–) Productivity Loss: | – | $0 | |
| | | -------------------------- | |
| (=) Subtotal: | = | $345,070 | |
| (+) Senior Appraised Value: | + | $0 | |
| (+) Non-Senior Appraised Value: | + | $345,070 | |
| | | -------------------------- | |
| (=) Total Appraised Value: | = | $345,070 | |
| (–) Senior Exemption Loss: | – | $0 | |
| (–) Exemption Loss: | – | $0 | |
| | | -------------------------- | |
| (=) Taxable Value: | = | $345,070 | |
Taxing Jurisdiction
| Owner: | WALLA WALLA COMMUNITY HOSPICE | | |
| % Ownership: | 100.0000000000% | | |
| Total Value: | $345,070 | | |
| Tax Area: | 1 - OL-140-F |
| CERFD | CURRENT EXPENSE REFUND 010 | 0.0000000000 | $345,070 | $345,070 | $0.00 | | |
| CURREXP | CURRENT EXPENSE 010 | 1.0175366760 | $345,070 | $345,070 | $351.12 | | |
| HUMNSERV | HUMAN SERVICES 119 | 0.0250000000 | $345,070 | $345,070 | $8.63 | | |
| SLDREL | SOLDIERS RELIEF 121 | 0.0155990005 | $345,070 | $345,070 | $5.38 | | |
| EMERGSER | EMS 147 | 0.3792580840 | $345,070 | $345,070 | $130.87 | | |
| EMSRFD | EMS REFUND 147 | 0.0000000000 | $345,070 | $345,070 | $0.00 | | |
| PORTRFD | PORT REFUND 640 | 0.0000000000 | $345,070 | $345,070 | $0.00 | | |
| PORTWWGEN | PORT OF WW 640 | 0.2460186015 | $345,070 | $345,070 | $84.89 | | |
| SD140BOND | SD #140 BOND 764 | 0.8342371393 | $345,070 | $345,070 | $287.87 | | |
| SD140GEN | SD #140 GENERAL 760 | 2.0646500647 | $345,070 | $345,070 | $712.45 | | |
| ST2 | STATE SCHOOL PART 2 600 | 0.8131451643 | $345,070 | $345,070 | $280.59 | | |
| STATESCHL | STATE SCHOOL 600 | 1.5158548041 | $345,070 | $345,070 | $523.08 | | |
| STREFUND | STATE REFUND LEVY 603 | 0.0000000000 | $345,070 | $345,070 | $0.00 | | |
| CWWBOND | C OF WW BOND 643 | 0.2760494372 | $345,070 | $345,070 | $95.26 | | |
| CWWGEN | CITY OF WW 631 | 1.6100204973 | $345,070 | $345,070 | $555.57 | | |
| CWWRFD | CITY OF WALLA WALLA REFUND 631 | 0.0000000000 | $345,070 | $345,070 | $0.00 | | |
| | Total Tax Rate: | 8.7973694689 | | | | | |
| | | | | Taxes w/Current Exemptions: | $3,035.71 | | |
| | | | | Taxes w/o Exemptions: | $3,035.71 | | |
Improvement / Building
| Improvement #1: | RESIDENTIAL | State Code: | 11 | 1022.0 sqft | Value: | $305,190 |
| Exterior Wall: | VINYL | Heating/Cooling: | WARM & COOLED AIR | | Number of Bathrooms: | 2 | Number of Bedrooms: | 2 | | Plumbing: | 10 | Roof Covering: | COMP SHINGLE |
|
| | Type | Description | Class CD | Sub Class CD | Year Built | Area |
| | MA | Main Area | 1 | 30 | 1918 | 1022.0 |
| | SI1 | SITE IMPROVEMENT | 1 | 30 | 1918 | 1.0 |
| | BASE | BASEMENT | 1 | 30 | 1918 | 1022.0 |
| | BRF | BASEMENT - REC FINISH | 1 | 30 | 1918 | 477.0 |
| | RPS | PORCH W/STEPS,ROOF | 1 | 30 | 1918 | 126.0 |
| | WOD | Wood Deck | 1 | 30 | 1918 | 152.0 |
| | S1F | Single One Story Fireplace | 1 | 30 | 1918 | 1.0 |
Sketch
Property Image
Land
| 1 | RES 1 | Converted: Residential | 0.1263 | 5500.00 | 0.00 | 0.00 | 1.00 | $39,880 | $0 |
Roll Value History
| 2025 | N/A | N/A | N/A | N/A | N/A |
| 2024 | $282,800 | $60,500 | $0 | $343,300 | $343,300 |
| 2023 | $305,190 | $39,880 | $0 | $345,070 | $345,070 |
| 2022 | $277,450 | $39,880 | $0 | $317,330 | $317,330 |
| 2021 | $231,210 | $39,880 | $0 | $271,090 | $271,090 |
| 2020 | $144,500 | $39,880 | $0 | $184,380 | $184,380 |
| 2019 | $144,500 | $39,880 | $0 | $184,380 | $184,380 |
| 2018 | $120,420 | $39,880 | $0 | $160,300 | $160,300 |
| 2017 | $118,680 | $24,800 | $0 | $143,480 | $143,480 |
| 2016 | $103,200 | $24,800 | $0 | $128,000 | $51,200 |
| 2015 | $103,200 | $24,800 | $0 | $128,000 | $51,200 |
| 2014 | $103,200 | $24,800 | $0 | $128,000 | $51,200 |
| 2013 | $103,200 | $24,800 | $0 | $128,000 | $51,200 |
| 2012 | $103,200 | $24,800 | $0 | $0 | $0 |
| 2011 | $103,200 | $24,800 | $0 | $0 | $0 |
| 2010 | $103,200 | $24,800 | $0 | $0 | $0 |
| 2009 | $117,400 | $24,800 | $0 | $0 | $0 |
| 2008 | $80,500 | $24,800 | $0 | $0 | $0 |
| 2007 | $80,500 | $24,800 | $0 | $0 | $0 |
| 2006 | $80,000 | $11,000 | $0 | $0 | $0 |
Deed and Sales History
| 1 | 04/04/2017 | SURVEY | SURVEY | | | 13 | 8 | | 0 | |
| 2 | 01/04/2017 | SWD | STATUTORY WARRANTY DEED | BRANNAN DONALD E & HEIDI | WALLA WALLA COMMUNITY HOSPICE | | | $170,000.00 | 131713 | 2017-00116 |
| 3 | 11/10/1999 | WARRANTY D | WARRANTY DEED | | | | | $82,900.00 | 93996 | 2919-912892 |
Payout Agreement
| No payout information available.. |