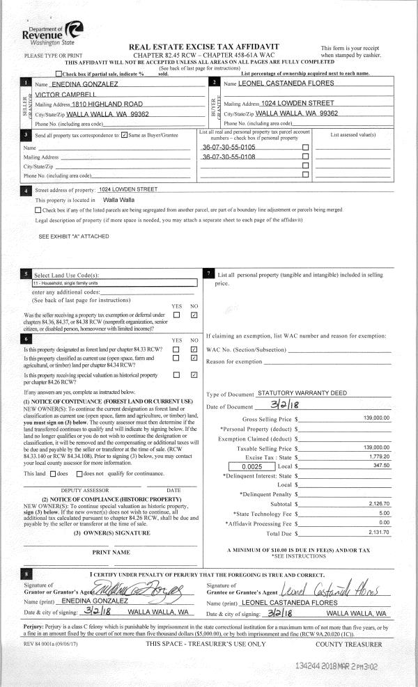
Property
Account |
| Property ID: | 35244 | Abbreviated Legal Description: | 19-7-36 TAX 43 |
| Parcel Number: | 360719310038 | Agent Code: | |
| Type: | Real | | |
| Tax Area: | 1 - OL-140-F | Land Use Code | 59 |
| Open Space: | N | DFL | N |
| Historic Property: | N | Remodel Property: | N |
| Multi-Family Redevelopment: | N | | |
| Township: | 7 | Section: | 19 |
| Range: | 36 |
Location |
| Address: | 728 IRENE ST WA 99362 | Mapsco: | |
| Neighborhood: | | Map ID: | |
| Neighborhood CD: | 3343 |
Owner |
| Name: | DIAZ JUAN GABRIEL | Owner ID: | 52560 |
| Mailing Address: | GABRIEL DIAZ 1395 SE JUSTICE AVE WALLA WALLA, WA 99362 | % Ownership: | 100.0000000000% |
| | | Exemptions: | |
Taxes and Assessment Details
Values
| (+) Improvement Homesite Value: | + | $0 | |
| (+) Improvement Non-Homesite Value: | + | $179,200 | |
| (+) Land Homesite Value: | + | $0 | |
| (+) Land Non-Homesite Value: | + | $41,400 | |
| (+) Curr Use (HS): | + | $0 | $0 |
| (+) Curr Use (NHS): | + | $0 | $0 |
| | | -------------------------- | |
| (=) Market Value: | = | $220,600 | |
| (–) Productivity Loss: | – | $0 | |
| | | -------------------------- | |
| (=) Subtotal: | = | $220,600 | |
| (+) Senior Appraised Value: | + | $0 | |
| (+) Non-Senior Appraised Value: | + | $220,600 | |
| | | -------------------------- | |
| (=) Total Appraised Value: | = | $220,600 | |
| (–) Senior Exemption Loss: | – | $0 | |
| (–) Exemption Loss: | – | $0 | |
| | | -------------------------- | |
| (=) Taxable Value: | = | $220,600 | |
Taxing Jurisdiction
| Owner: | DIAZ JUAN GABRIEL | | |
| % Ownership: | 100.0000000000% | | |
| Total Value: | $220,600 | | |
| Tax Area: | 1 - OL-140-F |
| CERFD | CURRENT EXPENSE REFUND 010 | 0.0000000000 | $220,600 | $220,600 | $0.00 | | |
| CURREXP | CURRENT EXPENSE 010 | 1.0175366760 | $220,600 | $220,600 | $224.47 | | |
| HUMNSERV | HUMAN SERVICES 119 | 0.0250000000 | $220,600 | $220,600 | $5.52 | | |
| SLDREL | SOLDIERS RELIEF 121 | 0.0155990005 | $220,600 | $220,600 | $3.44 | | |
| EMERGSER | EMS 147 | 0.3792580840 | $220,600 | $220,600 | $83.66 | | |
| EMSRFD | EMS REFUND 147 | 0.0000000000 | $220,600 | $220,600 | $0.00 | | |
| PORTRFD | PORT REFUND 640 | 0.0000000000 | $220,600 | $220,600 | $0.00 | | |
| PORTWWGEN | PORT OF WW 640 | 0.2460186015 | $220,600 | $220,600 | $54.27 | | |
| SD140BOND | SD #140 BOND 764 | 0.8342371393 | $220,600 | $220,600 | $184.03 | | |
| SD140GEN | SD #140 GENERAL 760 | 2.0646500647 | $220,600 | $220,600 | $455.46 | | |
| ST2 | STATE SCHOOL PART 2 600 | 0.8131451643 | $220,600 | $220,600 | $179.38 | | |
| STATESCHL | STATE SCHOOL 600 | 1.5158548041 | $220,600 | $220,600 | $334.40 | | |
| STREFUND | STATE REFUND LEVY 603 | 0.0000000000 | $220,600 | $220,600 | $0.00 | | |
| CWWBOND | C OF WW BOND 643 | 0.2760494372 | $220,600 | $220,600 | $60.90 | | |
| CWWGEN | CITY OF WW 631 | 1.6100204973 | $220,600 | $220,600 | $355.17 | | |
| CWWRFD | CITY OF WALLA WALLA REFUND 631 | 0.0000000000 | $220,600 | $220,600 | $0.00 | | |
| | Total Tax Rate: | 8.7973694689 | | | | | |
| | | | | Taxes w/Current Exemptions: | $1,940.70 | | |
| | | | | Taxes w/o Exemptions: | $1,940.70 | | |
Improvement / Building
| Improvement #1: | COMMERCIAL | State Code: | 59 | 2331.0 sqft | Value: | $179,200 |
| | Type | Description | Class CD | Sub Class CD | Year Built | Area |
| | MA | Main Area | D | * | 1950 | 2331.0 |
| | SI1 | SITE IMPROVEMENT | D | * | 1950 | 2.0 |
| | CPCG | CARPORT/ GABLE ROOF | D | * | 1950 | 144.0 |
| | RPS | PORCH W/STEPS,ROOF | D | * | 1950 | 66.0 |
| | PRKSTLA | PARK STALL AVERAGE | D | * | 1950 | 12.0 |
Sketch
Property Image
Land
| 1 | COM 1 | Converted: Commercial | 0.1000 | 4356.00 | 0.00 | 0.00 | 1.00 | $41,400 | $0 |
Roll Value History
| 2023 | $179,200 | $41,400 | $0 | $220,600 | $220,600 |
| 2022 | $179,200 | $41,400 | $0 | $220,600 | $220,600 |
| 2021 | $153,200 | $39,200 | $0 | $192,400 | $192,400 |
| 2020 | $153,200 | $39,200 | $0 | $192,400 | $192,400 |
| 2019 | $146,700 | $39,200 | $0 | $185,900 | $185,900 |
| 2018 | $146,700 | $39,200 | $0 | $185,900 | $185,900 |
| 2017 | $108,200 | $39,200 | $0 | $147,400 | $147,400 |
| 2016 | $108,200 | $39,200 | $0 | $147,400 | $147,400 |
| 2015 | $108,200 | $21,600 | $0 | $129,800 | $129,800 |
| 2014 | $108,200 | $21,600 | $0 | $129,800 | $129,800 |
| 2013 | $46,500 | $21,600 | $0 | $68,100 | $68,100 |
| 2012 | $46,500 | $21,600 | $0 | $0 | $0 |
| 2011 | $46,500 | $21,600 | $0 | $0 | $0 |
| 2010 | $46,500 | $21,600 | $0 | $0 | $0 |
| 2009 | $35,100 | $8,600 | $0 | $0 | $0 |
| 2008 | $35,100 | $8,600 | $0 | $0 | $0 |
| 2007 | $35,100 | $8,600 | $0 | $0 | $0 |
| 2006 | $35,100 | $8,600 | $0 | $0 | $0 |
Deed and Sales History
| 1 | 05/02/2024 | SURVEY | SURVEY | | | | | | 0 | 2024-02266 |
| 2 | 03/18/2013 | QCD | QUIT CLAIM DEED | DIAZ, MARIA | DIAZ, GABRIEL | | | $0.00 | 123617 | 2013-02526 |
| 3 | 03/18/2013 | QCD | QUIT CLAIM DEED | DIAZ, NORA RAMOS | DIAZ, JUAN GABRIEL | | | $0.00 | 123616 | 2013-02525 |
| 4 | 03/18/2013 | WARRANTY D | WARRANTY DEED | BOGLE, DIANNA M | DIAZ, JUAN GABRIEL | | | $55,000.00 | 123615 | 2013-02524 |
| 5 | 01/01/1948 | WARRANTY D | WARRANTY DEED | | | | | | 0 | 1839-003944 |
Payout Agreement
| No payout information available.. |