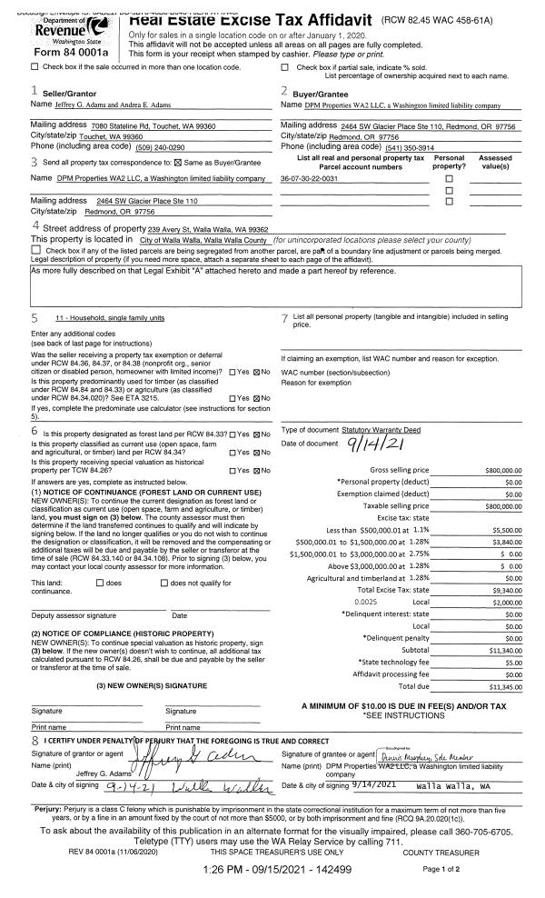
Property
Account |
| Property ID: | 3523 | Abbreviated Legal Description: | 24-7-35 TAX 18A |
| Parcel Number: | 350724330031 | Agent Code: | |
| Type: | Real | | |
| Tax Area: | 105 - 140-F-4 | Land Use Code | 11 |
| Open Space: | N | DFL | N |
| Historic Property: | N | Remodel Property: | N |
| Multi-Family Redevelopment: | N | | |
| Township: | 7 | Section: | 24 |
| Range: | 35 |
Location |
| Address: | 121 S GOSE ST WA 99362 | Mapsco: | |
| Neighborhood: | A SFR Rural/City Infl | Map ID: | |
| Neighborhood CD: | 313012 |
Owner |
| Name: | ZARO LOUIS J | Owner ID: | 58421 |
| Mailing Address: | 121 S GOSE ST WALLA WALLA, WA 99362 | % Ownership: | 100.0000000000% |
| | | Exemptions: | |
Taxes and Assessment Details
Values
| (+) Improvement Homesite Value: | + | $0 | |
| (+) Improvement Non-Homesite Value: | + | $289,370 | |
| (+) Land Homesite Value: | + | $0 | |
| (+) Land Non-Homesite Value: | + | $65,840 | |
| (+) Curr Use (HS): | + | $0 | $0 |
| (+) Curr Use (NHS): | + | $0 | $0 |
| | | -------------------------- | |
| (=) Market Value: | = | $355,210 | |
| (–) Productivity Loss: | – | $0 | |
| | | -------------------------- | |
| (=) Subtotal: | = | $355,210 | |
| (+) Senior Appraised Value: | + | $0 | |
| (+) Non-Senior Appraised Value: | + | $355,210 | |
| | | -------------------------- | |
| (=) Total Appraised Value: | = | $355,210 | |
| (–) Senior Exemption Loss: | – | $0 | |
| (–) Exemption Loss: | – | $0 | |
| | | -------------------------- | |
| (=) Taxable Value: | = | $355,210 | |
Taxing Jurisdiction
| Owner: | ZARO LOUIS J | | |
| % Ownership: | 100.0000000000% | | |
| Total Value: | $355,210 | | |
| Tax Area: | 105 - 140-F-4 |
| CERFD | CURRENT EXPENSE REFUND 010 | 0.0000000000 | $355,210 | $355,210 | $0.00 | | |
| CURREXP | CURRENT EXPENSE 010 | 1.0175366760 | $355,210 | $355,210 | $361.44 | | |
| HUMNSERV | HUMAN SERVICES 119 | 0.0250000000 | $355,210 | $355,210 | $8.88 | | |
| SLDREL | SOLDIERS RELIEF 121 | 0.0155990005 | $355,210 | $355,210 | $5.54 | | |
| EMERGSER | EMS 147 | 0.3792580840 | $355,210 | $355,210 | $134.72 | | |
| EMSRFD | EMS REFUND 147 | 0.0000000000 | $355,210 | $355,210 | $0.00 | | |
| FD4EXP | FD #4 EXPENSE 686 | 0.8836993059 | $355,210 | $355,210 | $313.90 | | |
| RLBRFD | RURAL LIBRARY REFUND 623 | 0.0000000000 | $355,210 | $355,210 | $0.00 | | |
| RURALLIB | RURAL LIBRARY 623 | 0.3710609029 | $355,210 | $355,210 | $131.80 | | |
| PORTRFD | PORT REFUND 640 | 0.0000000000 | $355,210 | $355,210 | $0.00 | | |
| PORTWWGEN | PORT OF WW 640 | 0.2460186015 | $355,210 | $355,210 | $87.39 | | |
| SD140BOND | SD #140 BOND 764 | 0.8342371393 | $355,210 | $355,210 | $296.33 | | |
| SD140GEN | SD #140 GENERAL 760 | 2.0646500647 | $355,210 | $355,210 | $733.38 | | |
| ST2 | STATE SCHOOL PART 2 600 | 0.8131451643 | $355,210 | $355,210 | $288.84 | | |
| STATESCHL | STATE SCHOOL 600 | 1.5158548041 | $355,210 | $355,210 | $538.45 | | |
| STREFUND | STATE REFUND LEVY 603 | 0.0000000000 | $355,210 | $355,210 | $0.00 | | |
| COROAD | COUNTY ROAD 115 | 1.6549953990 | $355,210 | $355,210 | $587.87 | | |
| CRPRD | COUNTY ROAD REFUND 115 | 0.0000000000 | $355,210 | $355,210 | $0.00 | | |
| | Total Tax Rate: | 9.8210551422 | | | | | |
| | | | | Taxes w/Current Exemptions: | $3,488.54 | | |
| | | | | Taxes w/o Exemptions: | $3,488.54 | | |
Improvement / Building
| Improvement #1: | RESIDENTIAL | State Code: | 11 | 1484.0 sqft | Value: | $289,370 |
| Exterior Wall: | SIDING | Heating/Cooling: | WARM & COOLED AIR | | Number of Bathrooms: | 2 | Number of Bedrooms: | 3 | | Plumbing: | 9 | Roof Covering: | COMP SHINGLE |
|
| | Type | Description | Class CD | Sub Class CD | Year Built | Area |
| | MA | Main Area | 1 | 30 | 1956 | 1484.0 |
| | SI1 | SITE IMPROVEMENT | 1 | 30 | 0 | 1.5 |
| | BASE | BASEMENT | 1 | 30 | 1956 | 1004.0 |
| | DTG | Detached Garage | 1 | 30 | 1956 | 768.0 |
| | CPCG | CARPORT/ GABLE ROOF | 1 | 30 | 1956 | 352.0 |
| | S1F | Single One Story Fireplace | 1 | 30 | 1956 | 1.0 |
Sketch
Property Image
Land
| 1 | RES 1 | Converted: Residential | 0.2200 | 9583.20 | 0.00 | 0.00 | 1.00 | $65,840 | $0 |
Roll Value History
| 2025 | N/A | N/A | N/A | N/A | N/A |
| 2024 | $289,370 | $65,840 | $0 | $355,210 | $355,210 |
| 2023 | $289,370 | $65,840 | $0 | $355,210 | $355,210 |
| 2022 | $289,370 | $65,840 | $0 | $355,210 | $355,210 |
| 2021 | $254,710 | $46,800 | $0 | $301,510 | $301,510 |
| 2020 | $212,260 | $46,800 | $0 | $259,060 | $259,060 |
| 2019 | $212,260 | $46,800 | $0 | $259,060 | $259,060 |
| 2018 | $192,960 | $46,800 | $0 | $239,760 | $239,760 |
| 2017 | $167,790 | $46,800 | $0 | $214,590 | $214,590 |
| 2016 | $129,070 | $46,800 | $0 | $175,870 | $175,870 |
| 2015 | $123,800 | $46,800 | $0 | $170,600 | $170,600 |
| 2014 | $117,900 | $46,800 | $0 | $164,700 | $164,700 |
| 2013 | $117,900 | $46,800 | $0 | $164,700 | $164,700 |
| 2012 | $125,600 | $24,100 | $0 | $0 | $0 |
| 2011 | $125,600 | $24,100 | $0 | $0 | $0 |
| 2010 | $155,800 | $30,000 | $0 | $0 | $0 |
| 2009 | $165,600 | $30,000 | $0 | $0 | $0 |
| 2008 | $100,400 | $30,000 | $0 | $0 | $0 |
| 2007 | $100,400 | $30,000 | $0 | $0 | $0 |
| 2006 | $100,400 | $30,000 | $0 | $0 | $0 |
Deed and Sales History
| 1 | 03/22/2016 | DEATH CERT | DEATH CERTIFICATE | ZARO LENORE E | ZARO LOUIS J | | | | 0 | 2016-02122 |
| 2 | 03/22/2016 | COMMUNITY | COMMUNITY PROPERTY AGREEMENT | ZARO LOUIS J & LENORE E | ZARO LOUIS J & LENORE E | | | | 0 | 2016-02123 |
| 3 | 01/01/1956 | WARRANTY D | WARRANTY DEED | | | | | $0.00 | 0 | 2760-386014 |
Payout Agreement
| No payout information available.. |