Property
Account |
| Property ID: | 35203 | Abbreviated Legal Description: | VALLEY MARKETING LOT 3 BLK B |
| Parcel Number: | 350725570203 | Agent Code: | |
| Type: | Real | | |
| Tax Area: | 75 - CP 250 | Land Use Code | 11 |
| Open Space: | N | DFL | N |
| Historic Property: | N | Remodel Property: | N |
| Multi-Family Redevelopment: | N | | |
| Township: | 7 | Section: | 25 |
| Range: | 35 |
Location |
| Address: | 112 NE ASH AVE WA 99324 | Mapsco: | |
| Neighborhood: | A SFR | Map ID: | |
| Neighborhood CD: | 113011 |
Owner |
| Name: | LALLY DON & TERRA J | Owner ID: | 34711 |
| Mailing Address: | 115 E THIRD ST WAITSBURG, WA 99361 | % Ownership: | 100.0000000000% |
| | | Exemptions: | |
Taxes and Assessment Details
Values
| (+) Improvement Homesite Value: | + | $0 | |
| (+) Improvement Non-Homesite Value: | + | $271,510 | |
| (+) Land Homesite Value: | + | $0 | |
| (+) Land Non-Homesite Value: | + | $57,510 | |
| (+) Curr Use (HS): | + | $0 | $0 |
| (+) Curr Use (NHS): | + | $0 | $0 |
| | | -------------------------- | |
| (=) Market Value: | = | $329,020 | |
| (–) Productivity Loss: | – | $0 | |
| | | -------------------------- | |
| (=) Subtotal: | = | $329,020 | |
| (+) Senior Appraised Value: | + | $0 | |
| (+) Non-Senior Appraised Value: | + | $329,020 | |
| | | -------------------------- | |
| (=) Total Appraised Value: | = | $329,020 | |
| (–) Senior Exemption Loss: | – | $0 | |
| (–) Exemption Loss: | – | $0 | |
| | | -------------------------- | |
| (=) Taxable Value: | = | $329,020 | |
Taxing Jurisdiction
| Owner: | LALLY DON & TERRA J | | |
| % Ownership: | 100.0000000000% | | |
| Total Value: | $329,020 | | |
| Tax Area: | 75 - CP 250 |
| CERFD | CURRENT EXPENSE REFUND 010 | 0.0000000000 | $329,020 | $329,020 | $0.00 | | |
| CURREXP | CURRENT EXPENSE 010 | 1.0175366760 | $329,020 | $329,020 | $334.79 | | |
| HUMNSERV | HUMAN SERVICES 119 | 0.0250000000 | $329,020 | $329,020 | $8.23 | | |
| SLDREL | SOLDIERS RELIEF 121 | 0.0155990005 | $329,020 | $329,020 | $5.13 | | |
| COLLPLBOND | C OF CP BOND 644 | 0.4374241808 | $329,020 | $329,020 | $143.92 | | |
| COLLPLGEN | CITY OF CP 632 | 1.4453819216 | $329,020 | $329,020 | $475.56 | | |
| EMERGSER | EMS 147 | 0.3792580840 | $329,020 | $329,020 | $124.78 | | |
| EMSRFD | EMS REFUND 147 | 0.0000000000 | $329,020 | $329,020 | $0.00 | | |
| RURALLIB | RURAL LIBRARY 623 | 0.3710609029 | $329,020 | $329,020 | $122.09 | | |
| PORTRFD | PORT REFUND 640 | 0.0000000000 | $329,020 | $329,020 | $0.00 | | |
| PORTWWGEN | PORT OF WW 640 | 0.2460186015 | $329,020 | $329,020 | $80.95 | | |
| SD250BOND | SD #250 BOND 773 | 1.4560608159 | $329,020 | $329,020 | $479.07 | | |
| SD250GEN | SD #250 GENERAL 770 | 2.3880724087 | $329,020 | $329,020 | $785.72 | | |
| ST2 | STATE SCHOOL PART 2 600 | 0.8131451643 | $329,020 | $329,020 | $267.54 | | |
| STATESCHL | STATE SCHOOL 600 | 1.5158548041 | $329,020 | $329,020 | $498.75 | | |
| STREFUND | STATE REFUND LEVY 603 | 0.0000000000 | $329,020 | $329,020 | $0.00 | | |
| | Total Tax Rate: | 10.1104125603 | | | | | |
| | | | | Taxes w/Current Exemptions: | $3,326.53 | | |
| | | | | Taxes w/o Exemptions: | $3,326.53 | | |
Improvement / Building
| Improvement #1: | RESIDENTIAL | State Code: | 11 | 1416.0 sqft | Value: | $271,510 |
| Exterior Wall: | VINYL | Foundation: | SLAB FOUNDATION | | Heating/Cooling: | WARM & COOLED AIR | Number of Bathrooms: | 1 | | Number of Bedrooms: | 3 | Plumbing: | 6 | | Roof Covering: | COMP SHINGLE |   |   |
|
| | Type | Description | Class CD | Sub Class CD | Year Built | Area |
| | MA | Main Area | 1 | 30 | 1948 | 1416.0 |
| | SI1 | SITE IMPROVEMENT | 1 | 30 | 1948 | 1.0 |
| | RPS | PORCH W/STEPS,ROOF | 1 | 30 | 1948 | 44.0 |
| | POL2 | POLE BUILDING-CONCRETE | 1 | 30 | 1948 | 720.0 |
| | LEAN TO | LEAN TO | 1 | 30 | 1948 | 360.0 |
| | UTST | Utility Storage Shed | 1 | 30 | 1948 | 140.0 |
Sketch
Property Image
Land
| 1 | RES 1 | Converted: Residential | 0.1956 | 8520.00 | 0.00 | 0.00 | 1.00 | $57,510 | $0 |
Roll Value History
| 2025 | N/A | N/A | N/A | N/A | N/A |
| 2024 | $271,510 | $57,510 | $0 | $329,020 | $329,020 |
| 2023 | $271,510 | $57,510 | $0 | $329,020 | $329,020 |
| 2022 | $271,510 | $57,510 | $0 | $329,020 | $329,020 |
| 2021 | $201,120 | $57,510 | $0 | $258,630 | $258,630 |
| 2020 | $138,700 | $57,510 | $0 | $196,210 | $196,210 |
| 2019 | $150,310 | $45,900 | $0 | $196,210 | $196,210 |
| 2018 | $136,650 | $45,900 | $0 | $182,550 | $182,550 |
| 2017 | $124,220 | $45,900 | $0 | $170,120 | $170,120 |
| 2016 | $108,020 | $45,900 | $0 | $153,920 | $153,920 |
| 2015 | $98,200 | $45,900 | $0 | $144,100 | $144,100 |
| 2014 | $98,200 | $45,900 | $0 | $144,100 | $144,100 |
| 2013 | $98,200 | $45,900 | $0 | $144,100 | $144,100 |
| 2012 | $98,200 | $45,900 | $0 | $0 | $0 |
| 2011 | $101,100 | $45,900 | $0 | $0 | $0 |
| 2010 | $101,100 | $45,900 | $0 | $0 | $0 |
| 2009 | $117,400 | $45,900 | $0 | $0 | $0 |
| 2008 | $91,900 | $23,400 | $0 | $0 | $0 |
| 2007 | $91,900 | $23,400 | $0 | $0 | $0 |
| 2006 | $91,900 | $23,400 | $0 | $0 | $0 |
Deed and Sales History
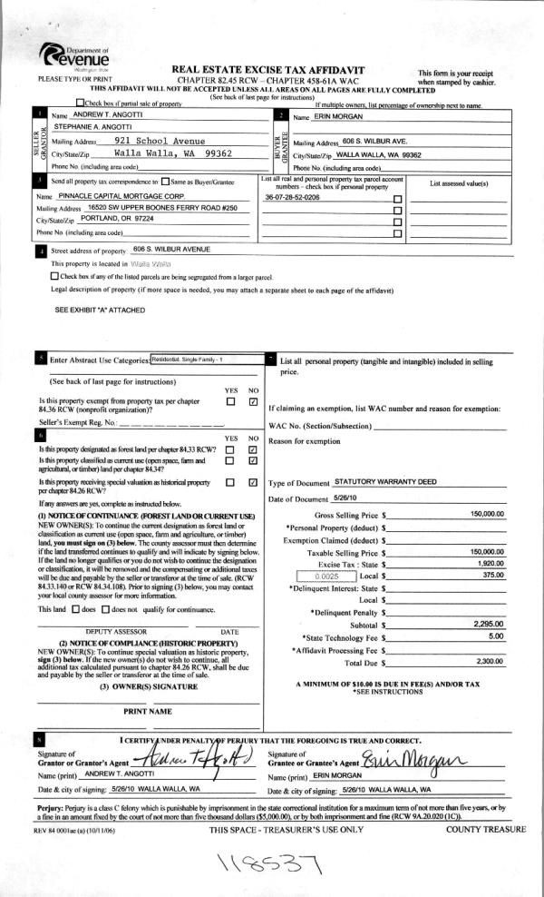
| 1 | 10/20/2023 | SWD | STATUTORY WARRANTY DEED | LALLY DON & TERRA J | BENEDICT AIDAN WOLPERT | | | $372,000.00 | 146666 | 2023-06181 |
| 2 | 04/11/2013 | WARRANTY D | WARRANTY DEED | PRESTON, DWAYNE E & CHANDY | LALLY, DON & TERRA J | | | $96,000.00 | 123762 | 2013-03494 |
| 3 | 10/27/2010 | WARRANTY D | WARRANTY DEED | JOLIN, RONALD R & LORETTA | PRESTON, DWAYNE E | | | $145,000.00 | 119255 | 2010-08733 |
| 4 | 08/15/2006 | WARRANTY D | WARRANTY DEED | BLETH, JOHN L & TERRI C | JOLIN, RONALD R & LORETTA | | | $172,500.00 | 110961 | 2006-09793 |
| 5 | 07/14/1999 | WARRANTY D | WARRANTY DEED | | | | | $104,000.00 | 93162 | 2869-908198 |
Payout Agreement
| No payout information available.. |