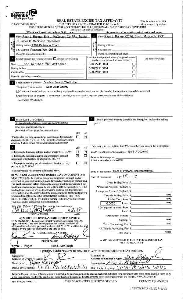
Property
Account |
| Property ID: | 35169 | Abbreviated Legal Description: | SOUTH STONES LOT 3 |
| Parcel Number: | 360732610003 | Agent Code: | |
| Type: | Real | | |
| Tax Area: | 1 - OL-140-F | Land Use Code | 11 |
| Open Space: | N | DFL | N |
| Historic Property: | N | Remodel Property: | N |
| Multi-Family Redevelopment: | N | | |
| Township: | 7 | Section: | 32 |
| Range: | 36 |
Location |
| Address: | 105 W TIETAN ST WA 99362 | Mapsco: | |
| Neighborhood: | A Res | Map ID: | |
| Neighborhood CD: | 613011 |
Owner |
| Name: | HARWELL DAREL F | Owner ID: | 58190 |
| Mailing Address: | 105 W TIETAN ST WALLA WALLA, WA 99362 | % Ownership: | 100.0000000000% |
| | | Exemptions: | |
Taxes and Assessment Details
Values
| (+) Improvement Homesite Value: | + | $0 | |
| (+) Improvement Non-Homesite Value: | + | $251,690 | |
| (+) Land Homesite Value: | + | $0 | |
| (+) Land Non-Homesite Value: | + | $84,600 | |
| (+) Curr Use (HS): | + | $0 | $0 |
| (+) Curr Use (NHS): | + | $0 | $0 |
| | | -------------------------- | |
| (=) Market Value: | = | $336,290 | |
| (–) Productivity Loss: | – | $0 | |
| | | -------------------------- | |
| (=) Subtotal: | = | $336,290 | |
| (+) Senior Appraised Value: | + | $0 | |
| (+) Non-Senior Appraised Value: | + | $336,290 | |
| | | -------------------------- | |
| (=) Total Appraised Value: | = | $336,290 | |
| (–) Senior Exemption Loss: | – | $0 | |
| (–) Exemption Loss: | – | $0 | |
| | | -------------------------- | |
| (=) Taxable Value: | = | $336,290 | |
Taxing Jurisdiction
| Owner: | HARWELL DAREL F | | |
| % Ownership: | 100.0000000000% | | |
| Total Value: | $336,290 | | |
| Tax Area: | 1 - OL-140-F |
| CERFD | CURRENT EXPENSE REFUND 010 | 0.0000000000 | $336,290 | $336,290 | $0.00 | | |
| CURREXP | CURRENT EXPENSE 010 | 1.0175366760 | $336,290 | $336,290 | $342.19 | | |
| HUMNSERV | HUMAN SERVICES 119 | 0.0250000000 | $336,290 | $336,290 | $8.41 | | |
| SLDREL | SOLDIERS RELIEF 121 | 0.0155990005 | $336,290 | $336,290 | $5.25 | | |
| EMERGSER | EMS 147 | 0.3792580840 | $336,290 | $336,290 | $127.54 | | |
| EMSRFD | EMS REFUND 147 | 0.0000000000 | $336,290 | $336,290 | $0.00 | | |
| PORTRFD | PORT REFUND 640 | 0.0000000000 | $336,290 | $336,290 | $0.00 | | |
| PORTWWGEN | PORT OF WW 640 | 0.2460186015 | $336,290 | $336,290 | $82.73 | | |
| SD140BOND | SD #140 BOND 764 | 0.8342371393 | $336,290 | $336,290 | $280.55 | | |
| SD140GEN | SD #140 GENERAL 760 | 2.0646500647 | $336,290 | $336,290 | $694.32 | | |
| ST2 | STATE SCHOOL PART 2 600 | 0.8131451643 | $336,290 | $336,290 | $273.45 | | |
| STATESCHL | STATE SCHOOL 600 | 1.5158548041 | $336,290 | $336,290 | $509.77 | | |
| STREFUND | STATE REFUND LEVY 603 | 0.0000000000 | $336,290 | $336,290 | $0.00 | | |
| CWWBOND | C OF WW BOND 643 | 0.2760494372 | $336,290 | $336,290 | $92.83 | | |
| CWWGEN | CITY OF WW 631 | 1.6100204973 | $336,290 | $336,290 | $541.43 | | |
| CWWRFD | CITY OF WALLA WALLA REFUND 631 | 0.0000000000 | $336,290 | $336,290 | $0.00 | | |
| | Total Tax Rate: | 8.7973694689 | | | | | |
| | | | | Taxes w/Current Exemptions: | $2,958.47 | | |
| | | | | Taxes w/o Exemptions: | $2,958.47 | | |
Improvement / Building
| Improvement #1: | RESIDENTIAL | State Code: | 11 | 1902.0 sqft | Value: | $251,690 |
| Exterior Wall: | CONCRETE BLOCK | Heating/Cooling: | FLOOR RADIANT | | Number of Bathrooms: | 2 | Number of Bedrooms: | 5 | | Plumbing: | 9 | Roof Covering: | BITUMEN MEMBRANE |
|
| | Type | Description | Class CD | Sub Class CD | Year Built | Area |
| | MA | Main Area | 1 | 20 | 1955 | 1902.0 |
| | SI1 | SITE IMPROVEMENT | 1 | 20 | 1955 | 2.0 |
| | BASE | BASEMENT | 1 | 20 | 1955 | 1590.0 |
| | BPF | BASEMENT -PARTITIONED FINISH | 1 | 20 | 1955 | 1191.0 |
| | ATG | Attached Garage | 1 | 20 | 1955 | 480.0 |
| | RPO | OPEN PORCH W/ROOF | 1 | 20 | 1955 | 349.0 |
| | S1F | Single One Story Fireplace | 1 | 20 | 1955 | 1.0 |
Sketch
Property Image
Land
| 1 | RES 1 | Converted: Residential | 0.2158 | 9400.00 | 0.00 | 0.00 | 1.00 | $84,600 | $0 |
Roll Value History
| 2025 | N/A | N/A | N/A | N/A | N/A |
| 2024 | $251,690 | $84,600 | $0 | $336,290 | $336,290 |
| 2023 | $251,690 | $84,600 | $0 | $336,290 | $336,290 |
| 2022 | $228,810 | $68,150 | $0 | $296,960 | $296,960 |
| 2021 | $183,050 | $68,150 | $0 | $251,200 | $251,200 |
| 2020 | $130,750 | $68,150 | $0 | $198,900 | $198,900 |
| 2019 | $130,750 | $68,150 | $0 | $198,900 | $198,900 |
| 2018 | $118,300 | $46,600 | $0 | $164,900 | $164,900 |
| 2017 | $118,300 | $46,600 | $0 | $164,900 | $164,900 |
| 2016 | $118,300 | $46,600 | $0 | $164,900 | $164,900 |
| 2015 | $118,300 | $46,600 | $0 | $164,900 | $164,900 |
| 2014 | $118,300 | $46,600 | $0 | $164,900 | $164,900 |
| 2013 | $118,300 | $46,600 | $0 | $164,900 | $164,900 |
| 2012 | $137,400 | $46,600 | $0 | $0 | $0 |
| 2011 | $137,400 | $46,600 | $0 | $0 | $0 |
| 2010 | $137,400 | $46,600 | $0 | $0 | $0 |
| 2009 | $157,800 | $46,600 | $0 | $0 | $0 |
| 2008 | $157,800 | $46,600 | $0 | $0 | $0 |
| 2007 | $97,200 | $24,100 | $0 | $0 | $0 |
| 2006 | $97,200 | $24,100 | $0 | $0 | $0 |
Deed and Sales History
| 1 | 01/29/2016 | SWD | STATUTORY WARRANTY DEED | CHEN JIAN XIANG & MUN CHING LI | HARWELL DAREL F | | | $161,500.00 | 129588 | 2016-00689 |
| 2 | 04/16/2013 | QCD | QUIT CLAIM DEED | SECRETARY OF VETERANS AFFAIRS | CHEN, JIAN XIANG & MUN CHING L | | | $122,900.00 | 123786 | 2013-03683 |
| 3 | 10/24/2012 | WARRANTY D | WARRANTY DEED | PETERSON, CARL J & SANDRA R | SECRETARY OF VETERANS AFFAIRS | | | $218,059.00 | 122869 | 2012-09382 |
| 4 | 10/19/2001 | WARRANTY D | WARRANTY DEED | | | | | $119,500.00 | 98203 | 3210-111269 |
Payout Agreement
| No payout information available.. |