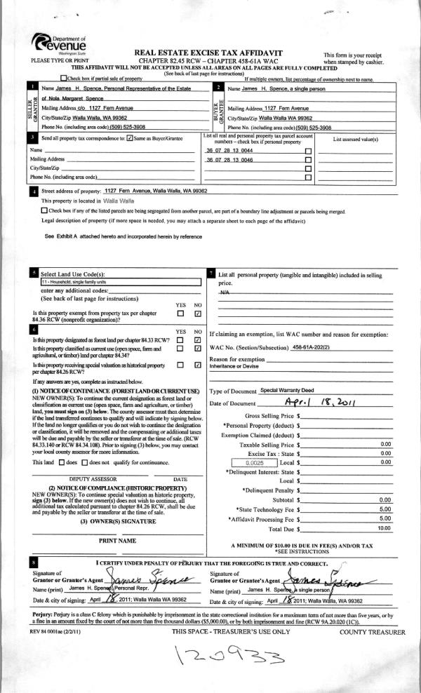
Property
Account |
| Property ID: | 35166 | Abbreviated Legal Description: | VALLEY ACRES LOT 3 |
| Parcel Number: | 350601560003 | Agent Code: | |
| Type: | Real | | |
| Tax Area: | 2 - OL-250 | Land Use Code | 11 |
| Open Space: | N | DFL | N |
| Historic Property: | N | Remodel Property: | N |
| Multi-Family Redevelopment: | N | | |
| Township: | 6 | Section: | 1 |
| Range: | 35 |
Location |
| Address: | 36 SEDGWICK CT WA 99324 | Mapsco: | |
| Neighborhood: | G SFR | Map ID: | |
| Neighborhood CD: | 114011 |
Owner |
| Name: | SWINNERTON MICHAEL J | Owner ID: | 52461 |
| Mailing Address: | PATRICIA M MOSS 36 SEDGWICK CT WALLA WALLA, WA 99362 | % Ownership: | 100.0000000000% |
| | | Exemptions: | |
Taxes and Assessment Details
Values
| (+) Improvement Homesite Value: | + | $0 | |
| (+) Improvement Non-Homesite Value: | + | $478,260 | |
| (+) Land Homesite Value: | + | $0 | |
| (+) Land Non-Homesite Value: | + | $75,000 | |
| (+) Curr Use (HS): | + | $0 | $0 |
| (+) Curr Use (NHS): | + | $0 | $0 |
| | | -------------------------- | |
| (=) Market Value: | = | $553,260 | |
| (–) Productivity Loss: | – | $0 | |
| | | -------------------------- | |
| (=) Subtotal: | = | $553,260 | |
| (+) Senior Appraised Value: | + | $0 | |
| (+) Non-Senior Appraised Value: | + | $553,260 | |
| | | -------------------------- | |
| (=) Total Appraised Value: | = | $553,260 | |
| (–) Senior Exemption Loss: | – | $0 | |
| (–) Exemption Loss: | – | $0 | |
| | | -------------------------- | |
| (=) Taxable Value: | = | $553,260 | |
Taxing Jurisdiction
| Owner: | SWINNERTON MICHAEL J | | |
| % Ownership: | 100.0000000000% | | |
| Total Value: | $553,260 | | |
| Tax Area: | 2 - OL-250 |
| CERFD | CURRENT EXPENSE REFUND 010 | 0.0000000000 | $553,260 | $553,260 | $0.00 | | |
| CURREXP | CURRENT EXPENSE 010 | 1.0175366760 | $553,260 | $553,260 | $562.96 | | |
| HUMNSERV | HUMAN SERVICES 119 | 0.0250000000 | $553,260 | $553,260 | $13.83 | | |
| SLDREL | SOLDIERS RELIEF 121 | 0.0155990005 | $553,260 | $553,260 | $8.63 | | |
| EMERGSER | EMS 147 | 0.3792580840 | $553,260 | $553,260 | $209.83 | | |
| EMSRFD | EMS REFUND 147 | 0.0000000000 | $553,260 | $553,260 | $0.00 | | |
| PORTRFD | PORT REFUND 640 | 0.0000000000 | $553,260 | $553,260 | $0.00 | | |
| PORTWWGEN | PORT OF WW 640 | 0.2460186015 | $553,260 | $553,260 | $136.11 | | |
| SD250BOND | SD #250 BOND 773 | 1.4560608159 | $553,260 | $553,260 | $805.58 | | |
| SD250GEN | SD #250 GENERAL 770 | 2.3880724087 | $553,260 | $553,260 | $1,321.22 | | |
| ST2 | STATE SCHOOL PART 2 600 | 0.8131451643 | $553,260 | $553,260 | $449.88 | | |
| STATESCHL | STATE SCHOOL 600 | 1.5158548041 | $553,260 | $553,260 | $838.66 | | |
| STREFUND | STATE REFUND LEVY 603 | 0.0000000000 | $553,260 | $553,260 | $0.00 | | |
| CWWBOND | C OF WW BOND 643 | 0.2760494372 | $553,260 | $553,260 | $152.73 | | |
| CWWGEN | CITY OF WW 631 | 1.6100204973 | $553,260 | $553,260 | $890.76 | | |
| CWWRFD | CITY OF WALLA WALLA REFUND 631 | 0.0000000000 | $553,260 | $553,260 | $0.00 | | |
| | Total Tax Rate: | 9.7426154895 | | | | | |
| | | | | Taxes w/Current Exemptions: | $5,390.19 | | |
| | | | | Taxes w/o Exemptions: | $5,390.19 | | |
Improvement / Building
| Improvement #1: | RESIDENTIAL | State Code: | 11 | 2112.0 sqft | Value: | $478,260 |
| Exterior Wall: | HARDBOARD | Heating/Cooling: | WARM & COOLED AIR | | Number of Bathrooms: | 2.5 | Number of Bedrooms: | 3 | | Plumbing: | 12 | Roof Covering: | COMP SHINGLE |
|
| | Type | Description | Class CD | Sub Class CD | Year Built | Area |
| | MA | Main Area | 1 | 35 | 2012 | 2112.0 |
| | SI1 | SITE IMPROVEMENT | 1 | 35 | 2012 | 3.0 |
| | ATG | Attached Garage | 1 | 35 | 2012 | 714.0 |
| | PRC | PORCH W STEPS, ROOF,CEILED | 1 | 35 | 2012 | 15.0 |
| | BON2 | BONUS RM ATT/REC OR APT FINISH | 1 | 35 | 2012 | 322.0 |
| | GFP | GAS FIREPLACE | 1 | 35 | 2012 | 1.0 |
| | RPC | OPEN PORCH W/ROOF , CEILED | 1 | 35 | 2012 | 420.0 |
| | TOOL | TOOL SHED | 1 | 35 | 2012 | 120.0 |
Sketch
Property Image
Land
| 1 | RES 1 | Converted: Residential | 0.2205 | 9607.00 | 0.00 | 0.00 | 1.00 | $75,000 | $0 |
Roll Value History
| 2025 | N/A | N/A | N/A | N/A | N/A |
| 2024 | $511,740 | $75,000 | $0 | $586,740 | $586,740 |
| 2023 | $478,260 | $75,000 | $0 | $553,260 | $553,260 |
| 2022 | $341,620 | $75,000 | $0 | $416,620 | $416,620 |
| 2021 | $310,560 | $75,000 | $0 | $385,560 | $385,560 |
| 2020 | $258,800 | $75,000 | $0 | $333,800 | $333,800 |
| 2019 | $268,800 | $65,000 | $0 | $333,800 | $333,800 |
| 2018 | $256,000 | $65,000 | $0 | $321,000 | $321,000 |
| 2017 | $256,000 | $65,000 | $0 | $321,000 | $321,000 |
| 2016 | $243,810 | $65,000 | $0 | $308,810 | $308,810 |
| 2015 | $232,200 | $65,000 | $0 | $297,200 | $297,200 |
| 2014 | $232,200 | $65,000 | $0 | $297,200 | $297,200 |
| 2013 | $230,400 | $65,000 | $0 | $295,400 | $295,400 |
| 2012 | $0 | $65,000 | $0 | $0 | $0 |
| 2011 | $0 | $65,000 | $0 | $0 | $0 |
| 2010 | $0 | $65,000 | $0 | $0 | $0 |
| 2009 | $0 | $65,000 | $0 | $0 | $0 |
| 2008 | $0 | $1,800 | $0 | $0 | $0 |
| 2007 | $230,400 | $65,000 | $0 | $0 | $0 |
Deed and Sales History
| 1 | 06/14/2017 | QCD | QUIT CLAIM DEED | SWINNERTON MICHAEL J | SWINNERTON MICHAEL J | | | $0.00 | 132644 | 2017-04747 |
| 2 | 04/19/2013 | WARRANTY D | WARRANTY DEED | S R HOMES LLC | SWINNERTON, MICHAEL J | | | $323,276.00 | 123800 | 2013-03762 |
Payout Agreement
| No payout information available.. |