Property
Account |
| Property ID: | 35148 | Abbreviated Legal Description: | PARKWOOD HEIGHTS LOT 6 BLK 2 |
| Parcel Number: | 360732750206 | Agent Code: | |
| Type: | Real | | |
| Tax Area: | 1 - OL-140-F | Land Use Code | 11 |
| Open Space: | N | DFL | N |
| Historic Property: | N | Remodel Property: | N |
| Multi-Family Redevelopment: | N | | |
| Township: | 7 | Section: | 32 |
| Range: | 36 |
Location |
| Address: | 43 PARKWOOD CIR WALLA WALLA, WA 99362 | Mapsco: | |
| Neighborhood: | G Res | Map ID: | |
| Neighborhood CD: | 614011 |
Owner |
| Name: | KELLY MICHAEL E & NANCY H | Owner ID: | 48983 |
| Mailing Address: | 43 PARKWOOD CIRCLE WALLA WALLA, WA 99362 | % Ownership: | 100.0000000000% |
| | | Exemptions: | |
Taxes and Assessment Details
Values
| (+) Improvement Homesite Value: | + | $0 | |
| (+) Improvement Non-Homesite Value: | + | $358,240 | |
| (+) Land Homesite Value: | + | $0 | |
| (+) Land Non-Homesite Value: | + | $100,000 | |
| (+) Curr Use (HS): | + | $0 | $0 |
| (+) Curr Use (NHS): | + | $0 | $0 |
| | | -------------------------- | |
| (=) Market Value: | = | $458,240 | |
| (–) Productivity Loss: | – | $0 | |
| | | -------------------------- | |
| (=) Subtotal: | = | $458,240 | |
| (+) Senior Appraised Value: | + | $0 | |
| (+) Non-Senior Appraised Value: | + | $458,240 | |
| | | -------------------------- | |
| (=) Total Appraised Value: | = | $458,240 | |
| (–) Senior Exemption Loss: | – | $0 | |
| (–) Exemption Loss: | – | $0 | |
| | | -------------------------- | |
| (=) Taxable Value: | = | $458,240 | |
Taxing Jurisdiction
| Owner: | KELLY MICHAEL E & NANCY H | | |
| % Ownership: | 100.0000000000% | | |
| Total Value: | $458,240 | | |
| Tax Area: | 1 - OL-140-F |
| CERFD | CURRENT EXPENSE REFUND 010 | 0.0000000000 | $458,240 | $458,240 | $0.00 | | |
| CURREXP | CURRENT EXPENSE 010 | 1.0175366760 | $458,240 | $458,240 | $466.28 | | |
| HUMNSERV | HUMAN SERVICES 119 | 0.0250000000 | $458,240 | $458,240 | $11.46 | | |
| SLDREL | SOLDIERS RELIEF 121 | 0.0155990005 | $458,240 | $458,240 | $7.15 | | |
| EMERGSER | EMS 147 | 0.3792580840 | $458,240 | $458,240 | $173.79 | | |
| EMSRFD | EMS REFUND 147 | 0.0000000000 | $458,240 | $458,240 | $0.00 | | |
| PORTRFD | PORT REFUND 640 | 0.0000000000 | $458,240 | $458,240 | $0.00 | | |
| PORTWWGEN | PORT OF WW 640 | 0.2460186015 | $458,240 | $458,240 | $112.74 | | |
| SD140BOND | SD #140 BOND 764 | 0.8342371393 | $458,240 | $458,240 | $382.28 | | |
| SD140GEN | SD #140 GENERAL 760 | 2.0646500647 | $458,240 | $458,240 | $946.11 | | |
| ST2 | STATE SCHOOL PART 2 600 | 0.8131451643 | $458,240 | $458,240 | $372.62 | | |
| STATESCHL | STATE SCHOOL 600 | 1.5158548041 | $458,240 | $458,240 | $694.63 | | |
| STREFUND | STATE REFUND LEVY 603 | 0.0000000000 | $458,240 | $458,240 | $0.00 | | |
| CWWBOND | C OF WW BOND 643 | 0.2760494372 | $458,240 | $458,240 | $126.50 | | |
| CWWGEN | CITY OF WW 631 | 1.6100204973 | $458,240 | $458,240 | $737.78 | | |
| CWWRFD | CITY OF WALLA WALLA REFUND 631 | 0.0000000000 | $458,240 | $458,240 | $0.00 | | |
| | Total Tax Rate: | 8.7973694689 | | | | | |
| | | | | Taxes w/Current Exemptions: | $4,031.34 | | |
| | | | | Taxes w/o Exemptions: | $4,031.34 | | |
Improvement / Building
| Improvement #1: | RESIDENTIAL | State Code: | 11 | 1789.0 sqft | Value: | $358,240 |
| Exterior Wall: | PLYWOOD | Heating/Cooling: | WARM & COOLED AIR | | Number of Bathrooms: | 2 | Number of Bedrooms: | 4 | | Plumbing: | 9 | Roof Covering: | COMP SHINGLE |
|
| | Type | Description | Class CD | Sub Class CD | Year Built | Area |
| | MA | Main Area | 1 | 40 | 1998 | 1789.0 |
| | SI1 | SITE IMPROVEMENT | 1 | 40 | 1998 | 2.5 |
| | ATG | Attached Garage | 1 | 40 | 1998 | 720.0 |
| | GFP | GAS FIREPLACE | 1 | 40 | 1998 | 1.0 |
| | RPO | OPEN PORCH W/ROOF | 1 | 40 | 1998 | 30.0 |
Sketch
Property Image
Land
| 1 | RES 1 | Converted: Residential | 0.1761 | 7673.00 | 0.00 | 0.00 | 1.00 | $100,000 | $0 |
Roll Value History
| 2025 | N/A | N/A | N/A | N/A | N/A |
| 2024 | $358,240 | $100,000 | $0 | $458,240 | $458,240 |
| 2023 | $358,240 | $100,000 | $0 | $458,240 | $458,240 |
| 2022 | $358,240 | $85,000 | $0 | $443,240 | $443,240 |
| 2021 | $341,190 | $85,000 | $0 | $426,190 | $426,190 |
| 2020 | $235,300 | $85,000 | $0 | $320,300 | $320,300 |
| 2019 | $235,300 | $85,000 | $0 | $320,300 | $320,300 |
| 2018 | $194,150 | $50,000 | $0 | $244,150 | $244,150 |
| 2017 | $184,900 | $50,000 | $0 | $234,900 | $234,900 |
| 2016 | $184,900 | $50,000 | $0 | $234,900 | $234,900 |
| 2015 | $184,900 | $50,000 | $0 | $234,900 | $234,900 |
| 2014 | $184,900 | $50,000 | $0 | $234,900 | $234,900 |
| 2013 | $184,900 | $50,000 | $0 | $234,900 | $234,900 |
| 2012 | $201,000 | $50,000 | $0 | $0 | $0 |
| 2011 | $168,300 | $50,000 | $0 | $0 | $0 |
| 2010 | $168,300 | $50,000 | $0 | $0 | $0 |
| 2009 | $192,500 | $50,000 | $0 | $0 | $0 |
| 2008 | $192,500 | $50,000 | $0 | $0 | $0 |
| 2007 | $148,800 | $30,000 | $0 | $0 | $0 |
| 2006 | $148,800 | $30,000 | $0 | $0 | $0 |
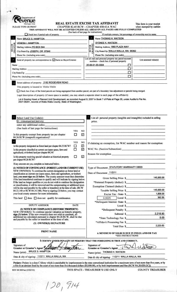
Deed and Sales History
| 1 | 02/03/2021 | SWD | STATUTORY WARRANTY DEED | BERGLIN A BERNADINE | KELLY MICHAEL E & NANCY H | | | $450,000.00 | 140867 | 2021-01371 |
| 2 | 07/10/2017 | DEED DEATH | DEED DEATH | BERGLIN A BERNADINE | CROW JAYME R ET AL | | | | 0 | 20107-05279 |
| 3 | 07/10/2017 | COMMUNITY | COMMUNITY PROPERTY AGREEMENT | BERGLIN DAVID ELMER | BERGLIN DAVID ELMER | | | | 0 | 2017-05278 |
| 4 | | DEATH CERT | DEATH CERTIFICATE | BERGLIN DAVID ELMER | | | | | 0 | |
| 5 | 05/01/2013 | WARRANTY D | WARRANTY DEED | SMOKOSKI, FRED | BERGLIN, DAVID ELMER | | | $235,000.00 | 123889 | 2013-04287 |
| 6 | 09/09/2011 | WARRANTY D | WARRANTY DEED | HEBEL, RICHARD JOHN & MARYELYN | SMOKOSKI, FRED | | | $252,000.00 | 120671 | 2011-07045 |
| 7 | 03/03/2006 | QCD | QUIT CLAIM DEED | HEBEL, RICHARD JOHN | HEBEL, RICHARD JOHN & MARYELYN | | | | 109769 | 2006-02437 |
| 8 | 11/17/2003 | WARRANTY D | WARRANTY DEED | WUEST, ERIC B & JULIE A | HEBEL, RICHARD JOHN | | | $187,700.00 | 103541 | 2003-17711 |
| 9 | 03/17/2000 | WARRANTY D | WARRANTY DEED | | | | | $169,500.00 | 94734 | 2960-002647 |
Payout Agreement
| No payout information available.. |