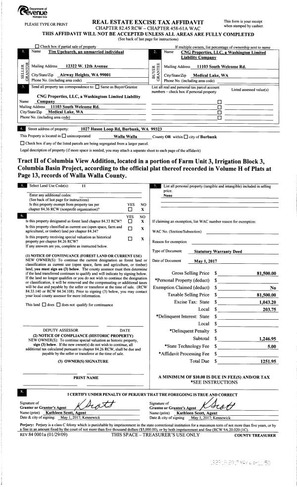
Property
Account |
| Property ID: | 35135 | Abbreviated Legal Description: | EASTLAWN LOTS 24 & 25 BLK 3 LESS S 66' LESS ST |
| Parcel Number: | 360721530324 | Agent Code: | |
| Type: | Real | | |
| Tax Area: | 1 - OL-140-F | Land Use Code | 11 |
| Open Space: | N | DFL | N |
| Historic Property: | N | Remodel Property: | N |
| Multi-Family Redevelopment: | N | | |
| Township: | 7 | Section: | 21 |
| Range: | 36 |
Location |
| Address: | 170 S WILBUR AVE WA 99362 | Mapsco: | |
| Neighborhood: | A-SFR | Map ID: | |
| Neighborhood CD: | 513011 |
Owner |
| Name: | DONNELLY PATRICH L | Owner ID: | 61246 |
| Mailing Address: | 10736 STONE AVE N APT B SEATTLE, WA 98133 | % Ownership: | 100.0000000000% |
| | | Exemptions: | |
Taxes and Assessment Details
Values
| (+) Improvement Homesite Value: | + | $168,310 | |
| (+) Improvement Non-Homesite Value: | + | $0 | |
| (+) Land Homesite Value: | + | $32,250 | |
| (+) Land Non-Homesite Value: | + | $0 | |
| (+) Curr Use (HS): | + | $0 | $0 |
| (+) Curr Use (NHS): | + | $0 | $0 |
| | | -------------------------- | |
| (=) Market Value: | = | $200,560 | |
| (–) Productivity Loss: | – | $0 | |
| | | -------------------------- | |
| (=) Subtotal: | = | $200,560 | |
| (+) Senior Appraised Value: | + | $0 | |
| (+) Non-Senior Appraised Value: | + | $200,560 | |
| | | -------------------------- | |
| (=) Total Appraised Value: | = | $200,560 | |
| (–) Senior Exemption Loss: | – | $0 | |
| (–) Exemption Loss: | – | $0 | |
| | | -------------------------- | |
| (=) Taxable Value: | = | $200,560 | |
Taxing Jurisdiction
| Owner: | DONNELLY PATRICH L | | |
| % Ownership: | 100.0000000000% | | |
| Total Value: | $200,560 | | |
| Tax Area: | 1 - OL-140-F |
| CERFD | CURRENT EXPENSE REFUND 010 | 0.0000000000 | $200,560 | $200,560 | $0.00 | | |
| CURREXP | CURRENT EXPENSE 010 | 1.0175366760 | $200,560 | $200,560 | $204.08 | | |
| HUMNSERV | HUMAN SERVICES 119 | 0.0250000000 | $200,560 | $200,560 | $5.01 | | |
| SLDREL | SOLDIERS RELIEF 121 | 0.0155990005 | $200,560 | $200,560 | $3.13 | | |
| EMERGSER | EMS 147 | 0.3792580840 | $200,560 | $200,560 | $76.06 | | |
| EMSRFD | EMS REFUND 147 | 0.0000000000 | $200,560 | $200,560 | $0.00 | | |
| PORTRFD | PORT REFUND 640 | 0.0000000000 | $200,560 | $200,560 | $0.00 | | |
| PORTWWGEN | PORT OF WW 640 | 0.2460186015 | $200,560 | $200,560 | $49.34 | | |
| SD140BOND | SD #140 BOND 764 | 0.8342371393 | $200,560 | $200,560 | $167.31 | | |
| SD140GEN | SD #140 GENERAL 760 | 2.0646500647 | $200,560 | $200,560 | $414.09 | | |
| ST2 | STATE SCHOOL PART 2 600 | 0.8131451643 | $200,560 | $200,560 | $163.08 | | |
| STATESCHL | STATE SCHOOL 600 | 1.5158548041 | $200,560 | $200,560 | $304.02 | | |
| STREFUND | STATE REFUND LEVY 603 | 0.0000000000 | $200,560 | $200,560 | $0.00 | | |
| CWWBOND | C OF WW BOND 643 | 0.2760494372 | $200,560 | $200,560 | $55.36 | | |
| CWWGEN | CITY OF WW 631 | 1.6100204973 | $200,560 | $200,560 | $322.91 | | |
| CWWRFD | CITY OF WALLA WALLA REFUND 631 | 0.0000000000 | $200,560 | $200,560 | $0.00 | | |
| | Total Tax Rate: | 8.7973694689 | | | | | |
| | | | | Taxes w/Current Exemptions: | $1,764.39 | | |
| | | | | Taxes w/o Exemptions: | $1,764.39 | | |
Improvement / Building
| Improvement #1: | RESIDENTIAL | State Code: | 11 | 952.0 sqft | Value: | $168,310 |
| Exterior Wall: | PLYWOOD | Heating/Cooling: | BASEBOARD ELECTRIC | | Number of Bathrooms: | 1 | Number of Bedrooms: | 2 | | Plumbing: | 6 | Roof Covering: | COMP SHINGLE |
|
| | Type | Description | Class CD | Sub Class CD | Year Built | Area |
| | MA | Main Area | 1 | 20 | 1946 | 952.0 |
| | SI1 | SITE IMPROVEMENT | 1 | 20 | 1946 | 1.0 |
| | CPC | COVERED CARPORT/PATIO | 1 | 20 | 1946 | 288.0 |
Sketch
Property Image
Land
| 1 | RES 1 | Converted: Residential | 0.1185 | 5160.00 | 0.00 | 0.00 | 1.00 | $32,250 | $0 |
Roll Value History
| 2025 | N/A | N/A | N/A | N/A | N/A |
| 2024 | $150,330 | $51,600 | $0 | $201,930 | $201,930 |
| 2023 | $168,310 | $32,250 | $0 | $200,560 | $200,560 |
| 2022 | $168,310 | $32,250 | $0 | $200,560 | $200,560 |
| 2021 | $120,220 | $32,250 | $0 | $152,470 | $152,470 |
| 2020 | $80,150 | $32,250 | $0 | $112,400 | $112,400 |
| 2019 | $80,150 | $32,250 | $0 | $112,400 | $112,400 |
| 2018 | $76,330 | $32,250 | $0 | $108,580 | $108,580 |
| 2017 | $92,290 | $20,600 | $0 | $112,890 | $112,890 |
| 2016 | $87,900 | $20,600 | $0 | $108,500 | $108,500 |
| 2015 | $83,710 | $20,600 | $0 | $104,310 | $104,310 |
| 2014 | $76,100 | $20,600 | $0 | $96,700 | $36,700 |
| 2013 | $76,100 | $20,600 | $0 | $96,700 | $36,700 |
| 2012 | $74,200 | $20,600 | $0 | $0 | $0 |
| 2011 | $74,200 | $20,600 | $0 | $0 | $0 |
| 2010 | $74,200 | $20,600 | $0 | $0 | $0 |
| 2009 | $84,700 | $20,600 | $0 | $0 | $0 |
| 2008 | $54,600 | $20,600 | $0 | $0 | $0 |
| 2007 | $54,600 | $20,600 | $0 | $0 | $0 |
| 2006 | $41,800 | $10,300 | $0 | $0 | $0 |
Deed and Sales History
| 1 | 07/11/2017 | QCD | QUIT CLAIM DEED | DONNELLY PATRICK D | DONNELLY PATRICH L | | | $0.00 | 132756 | 2017-05300 |
| 2 | 04/29/2013 | WARRANTY D | WARRANTY DEED | BARRAZA, GABRIELA E | DONNELLY, PATRICK D | | | $100,000.00 | 123861 | 2013-04171 |
| 3 | 09/16/1993 | WARRANTY D | WARRANTY DEED | | | | | $44,000.00 | 79992 | 2109-309564 |
Payout Agreement
| No payout information available.. |