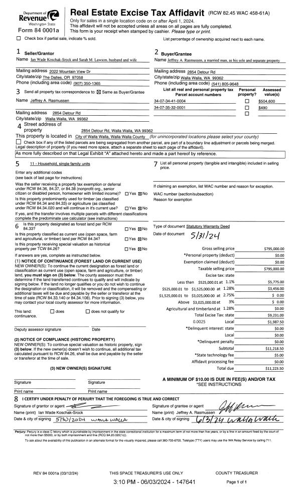
Property
Account |
| Property ID: | 34848 | Abbreviated Legal Description: | 11-6-35 LOT 3B OF S/P (TRACT 3, LESS SLY 120' OF ELY 726' WITHINNW1/4SW1/4)(LESS HWY) |
| Parcel Number: | 350611320076 | Agent Code: | |
| Type: | Real | | |
| Tax Area: | 311 - 250-4 | Land Use Code | 81 |
| Open Space: | N | DFL | N |
| Historic Property: | N | Remodel Property: | N |
| Multi-Family Redevelopment: | N | | |
| Township: | 6 | Section: | 11 |
| Range: | 35 |
Location |
| Address: | 3556 OLD MILTON HWY WA 99324 | Mapsco: | |
| Neighborhood: | LAND ONLY RURAL | Map ID: | |
| Neighborhood CD: | 215093 |
Owner |
| Name: | BECK CHARMAINE R | Owner ID: | 2569 |
| Mailing Address: | PO BOX 733 ATHENA, OR 97813 | % Ownership: | 100.0000000000% |
| | | Exemptions: | |
Taxes and Assessment Details
Values
| (+) Improvement Homesite Value: | + | $0 | |
| (+) Improvement Non-Homesite Value: | + | $1,400 | |
| (+) Land Homesite Value: | + | $0 | |
| (+) Land Non-Homesite Value: | + | $199,400 | |
| (+) Curr Use (HS): | + | $0 | $0 |
| (+) Curr Use (NHS): | + | $0 | $0 |
| | | -------------------------- | |
| (=) Market Value: | = | $200,800 | |
| (–) Productivity Loss: | – | $0 | |
| | | -------------------------- | |
| (=) Subtotal: | = | $200,800 | |
| (+) Senior Appraised Value: | + | $0 | |
| (+) Non-Senior Appraised Value: | + | $200,800 | |
| | | -------------------------- | |
| (=) Total Appraised Value: | = | $200,800 | |
| (–) Senior Exemption Loss: | – | $0 | |
| (–) Exemption Loss: | – | $0 | |
| | | -------------------------- | |
| (=) Taxable Value: | = | $200,800 | |
Taxing Jurisdiction
| Owner: | BECK CHARMAINE R | | |
| % Ownership: | 100.0000000000% | | |
| Total Value: | $200,800 | | |
| Tax Area: | 311 - 250-4 |
| CERFD | CURRENT EXPENSE REFUND 010 | 0.0000000000 | $200,800 | $200,800 | $0.00 | | |
| CURREXP | CURRENT EXPENSE 010 | 1.0175366760 | $200,800 | $200,800 | $204.32 | | |
| HUMNSERV | HUMAN SERVICES 119 | 0.0250000000 | $200,800 | $200,800 | $5.02 | | |
| SLDREL | SOLDIERS RELIEF 121 | 0.0155990005 | $200,800 | $200,800 | $3.13 | | |
| EMERGSER | EMS 147 | 0.3792580840 | $200,800 | $200,800 | $76.16 | | |
| EMSRFD | EMS REFUND 147 | 0.0000000000 | $200,800 | $200,800 | $0.00 | | |
| FD4EXP | FD #4 EXPENSE 686 | 0.8836993059 | $200,800 | $200,800 | $177.45 | | |
| RLBRFD | RURAL LIBRARY REFUND 623 | 0.0000000000 | $200,800 | $200,800 | $0.00 | | |
| RURALLIB | RURAL LIBRARY 623 | 0.3710609029 | $200,800 | $200,800 | $74.51 | | |
| PORTRFD | PORT REFUND 640 | 0.0000000000 | $200,800 | $200,800 | $0.00 | | |
| PORTWWGEN | PORT OF WW 640 | 0.2460186015 | $200,800 | $200,800 | $49.40 | | |
| SD250BOND | SD #250 BOND 773 | 1.4560608159 | $200,800 | $200,800 | $292.38 | | |
| SD250GEN | SD #250 GENERAL 770 | 2.3880724087 | $200,800 | $200,800 | $479.52 | | |
| ST2 | STATE SCHOOL PART 2 600 | 0.8131451643 | $200,800 | $200,800 | $163.28 | | |
| STATESCHL | STATE SCHOOL 600 | 1.5158548041 | $200,800 | $200,800 | $304.38 | | |
| STREFUND | STATE REFUND LEVY 603 | 0.0000000000 | $200,800 | $200,800 | $0.00 | | |
| COROAD | COUNTY ROAD 115 | 1.6549953990 | $200,800 | $200,800 | $332.32 | | |
| CRPRD | COUNTY ROAD REFUND 115 | 0.0000000000 | $200,800 | $200,800 | $0.00 | | |
| | Total Tax Rate: | 10.7663011628 | | | | | |
| | | | | Taxes w/Current Exemptions: | $2,161.87 | | |
| | | | | Taxes w/o Exemptions: | $2,161.87 | | |
Improvement / Building
| Improvement #1: | RESIDENTIAL | State Code: | 81 | 0.0 sqft | Value: | $1,400 |
Sketch
| No sketches available for this property. |
Property Image
Land
| 1 | RES 1 | Converted: Residential | 7.1700 | 312325.20 | 0.00 | 0.00 | 1.00 | $199,400 | $0 |
Roll Value History
| 2025 | N/A | N/A | N/A | N/A | N/A |
| 2024 | $1,400 | $199,400 | $0 | $200,800 | $200,800 |
| 2023 | $1,400 | $199,400 | $0 | $200,800 | $200,800 |
| 2022 | $1,400 | $199,400 | $0 | $200,800 | $200,800 |
| 2021 | $1,400 | $199,400 | $0 | $200,800 | $200,800 |
| 2020 | $1,400 | $35,800 | $0 | $37,200 | $37,200 |
| 2019 | $1,400 | $35,800 | $0 | $37,200 | $37,200 |
| 2018 | $1,400 | $35,800 | $0 | $37,200 | $37,200 |
| 2017 | $1,400 | $35,800 | $0 | $37,200 | $37,200 |
| 2016 | $1,400 | $35,800 | $0 | $37,200 | $37,200 |
| 2015 | $1,400 | $35,800 | $0 | $37,200 | $37,200 |
| 2014 | $1,400 | $35,800 | $0 | $37,200 | $37,200 |
| 2013 | $1,400 | $35,800 | $0 | $37,200 | $37,200 |
| 2012 | $1,400 | $35,800 | $0 | $0 | $0 |
| 2011 | $1,400 | $35,800 | $0 | $0 | $0 |
| 2010 | $1,400 | $35,800 | $0 | $0 | $0 |
| 2009 | $1,700 | $28,700 | $0 | $0 | $0 |
| 2008 | $1,800 | $28,700 | $0 | $0 | $0 |
| 2007 | $1,800 | $28,700 | $0 | $0 | $0 |
| 2006 | $1,800 | $28,700 | $0 | $0 | $0 |
Deed and Sales History
| 1 | 05/03/2024 | SWD | STATUTORY WARRANTY DEED | BECK CHARMAINE R ESTATE OF | GRAYBILL BUCKLEY & LAURIE | | | $430,000.00 | 147510 | 2024-02329 |
| 2 | 06/18/2024 | LOPA | LACK OF PROBATE AFFIDAVIT | BECK CHARMAINE R | BECK CHARMAINE R ESTATE OF | | | | 147509 | 2024-02328 |
| 3 | 01/20/2004 | WARRANTY D | WARRANTY DEED | LINDEMANN, EWALD A | BECK, KLOVA G | | | $90,000.00 | 103943 | 2004-00600 |
Payout Agreement
| No payout information available.. |