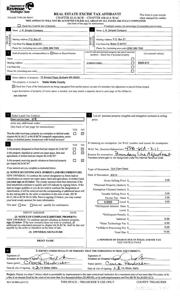
Property
Account |
| Property ID: | 34846 | Abbreviated Legal Description: | MILBROOKE PARK LOT 11 BLK 5 |
| Parcel Number: | 360721650511 | Agent Code: | |
| Type: | Real | | |
| Tax Area: | 1 - OL-140-F | Land Use Code | 11 |
| Open Space: | N | DFL | N |
| Historic Property: | N | Remodel Property: | N |
| Multi-Family Redevelopment: | N | | |
| Township: | 7 | Section: | 21 |
| Range: | 36 |
Location |
| Address: | 14 BOYER DR WA 99362 | Mapsco: | |
| Neighborhood: | A-Superior SFR | Map ID: | |
| Neighborhood CD: | 513211 |
Owner |
| Name: | LA RUE KENNITH R | Owner ID: | 65502 |
| Mailing Address: | 14 BOYER DR WALLA WALLA, WA 99362 | % Ownership: | 100.0000000000% |
| | | Exemptions: | |
Taxes and Assessment Details
Values
| (+) Improvement Homesite Value: | + | $0 | |
| (+) Improvement Non-Homesite Value: | + | $191,130 | |
| (+) Land Homesite Value: | + | $0 | |
| (+) Land Non-Homesite Value: | + | $50,790 | |
| (+) Curr Use (HS): | + | $0 | $0 |
| (+) Curr Use (NHS): | + | $0 | $0 |
| | | -------------------------- | |
| (=) Market Value: | = | $241,920 | |
| (–) Productivity Loss: | – | $0 | |
| | | -------------------------- | |
| (=) Subtotal: | = | $241,920 | |
| (+) Senior Appraised Value: | + | $0 | |
| (+) Non-Senior Appraised Value: | + | $241,920 | |
| | | -------------------------- | |
| (=) Total Appraised Value: | = | $241,920 | |
| (–) Senior Exemption Loss: | – | $0 | |
| (–) Exemption Loss: | – | $0 | |
| | | -------------------------- | |
| (=) Taxable Value: | = | $241,920 | |
Taxing Jurisdiction
| Owner: | LA RUE KENNITH R | | |
| % Ownership: | 100.0000000000% | | |
| Total Value: | $241,920 | | |
| Tax Area: | 1 - OL-140-F |
| CERFD | CURRENT EXPENSE REFUND 010 | 0.0000000000 | $241,920 | $241,920 | $0.00 | | |
| CURREXP | CURRENT EXPENSE 010 | 1.0175366760 | $241,920 | $241,920 | $246.16 | | |
| HUMNSERV | HUMAN SERVICES 119 | 0.0250000000 | $241,920 | $241,920 | $6.05 | | |
| SLDREL | SOLDIERS RELIEF 121 | 0.0155990005 | $241,920 | $241,920 | $3.77 | | |
| EMERGSER | EMS 147 | 0.3792580840 | $241,920 | $241,920 | $91.75 | | |
| EMSRFD | EMS REFUND 147 | 0.0000000000 | $241,920 | $241,920 | $0.00 | | |
| PORTRFD | PORT REFUND 640 | 0.0000000000 | $241,920 | $241,920 | $0.00 | | |
| PORTWWGEN | PORT OF WW 640 | 0.2460186015 | $241,920 | $241,920 | $59.52 | | |
| SD140BOND | SD #140 BOND 764 | 0.8342371393 | $241,920 | $241,920 | $201.82 | | |
| SD140GEN | SD #140 GENERAL 760 | 2.0646500647 | $241,920 | $241,920 | $499.48 | | |
| ST2 | STATE SCHOOL PART 2 600 | 0.8131451643 | $241,920 | $241,920 | $196.72 | | |
| STATESCHL | STATE SCHOOL 600 | 1.5158548041 | $241,920 | $241,920 | $366.72 | | |
| STREFUND | STATE REFUND LEVY 603 | 0.0000000000 | $241,920 | $241,920 | $0.00 | | |
| CWWBOND | C OF WW BOND 643 | 0.2760494372 | $241,920 | $241,920 | $66.78 | | |
| CWWGEN | CITY OF WW 631 | 1.6100204973 | $241,920 | $241,920 | $389.50 | | |
| CWWRFD | CITY OF WALLA WALLA REFUND 631 | 0.0000000000 | $241,920 | $241,920 | $0.00 | | |
| | Total Tax Rate: | 8.7973694689 | | | | | |
| | | | | Taxes w/Current Exemptions: | $2,128.27 | | |
| | | | | Taxes w/o Exemptions: | $2,128.27 | | |
Improvement / Building
| Improvement #1: | RESIDENTIAL | State Code: | 11 | 825.0 sqft | Value: | $191,130 |
| Exterior Wall: | STUCCO | Heating/Cooling: | FORCED AIR | | Number of Bathrooms: | 1 | Number of Bedrooms: | 2 | | Plumbing: | 6 | Roof Covering: | COMP SHINGLE |
|
| | Type | Description | Class CD | Sub Class CD | Year Built | Area |
| | MA | Main Area | 1 | 30 | 1950 | 825.0 |
| | SI1 | SITE IMPROVEMENT | 1 | 30 | 1950 | 1.0 |
| | DTG | Detached Garage | 1 | 30 | 1950 | 308.0 |
| | WOD | Wood Deck | 1 | 30 | 1950 | 190.0 |
| | RPS | PORCH W/STEPS,ROOF | 1 | 30 | 1950 | 35.0 |
Sketch
Property Image
Land
| 1 | RES 1 | Converted: Residential | 0.1866 | 8127.00 | 0.00 | 0.00 | 1.00 | $50,790 | $0 |
Roll Value History
| 2025 | N/A | N/A | N/A | N/A | N/A |
| 2024 | $157,580 | $81,270 | $0 | $238,850 | $238,850 |
| 2023 | $191,130 | $50,790 | $0 | $241,920 | $241,920 |
| 2022 | $191,130 | $50,790 | $0 | $241,920 | $241,920 |
| 2021 | $106,180 | $50,790 | $0 | $156,970 | $156,970 |
| 2020 | $84,950 | $50,790 | $0 | $135,740 | $135,740 |
| 2019 | $84,950 | $50,790 | $0 | $135,740 | $135,740 |
| 2018 | $80,900 | $50,790 | $0 | $131,690 | $131,690 |
| 2017 | $98,400 | $32,500 | $0 | $130,900 | $130,900 |
| 2016 | $82,000 | $32,500 | $0 | $114,500 | $114,500 |
| 2015 | $82,000 | $32,500 | $0 | $114,500 | $114,500 |
| 2014 | $82,000 | $32,500 | $0 | $114,500 | $114,500 |
| 2013 | $82,000 | $32,500 | $0 | $114,500 | $114,500 |
| 2012 | $82,000 | $32,500 | $0 | $0 | $0 |
| 2011 | $82,000 | $32,500 | $0 | $0 | $0 |
| 2010 | $71,600 | $32,500 | $0 | $0 | $0 |
| 2009 | $83,200 | $32,500 | $0 | $0 | $0 |
| 2008 | $55,800 | $32,500 | $0 | $0 | $0 |
| 2007 | $55,800 | $32,500 | $0 | $0 | $0 |
| 2006 | $44,500 | $16,300 | $0 | $0 | $0 |
Deed and Sales History
| 1 | 08/05/2019 | QCD | QUIT CLAIM DEED | LA RUE KENNITH R & CHARLOTTE | LA RUE KENNITH R | | | $0.00 | 137425 | 2019-05796 |
| 2 | 06/27/2019 | QCD | QUIT CLAIM DEED | LA RUE KENNITH R & CHARLOTTE | LA RUE KENNITH R | | | $0.00 | 137236 | 2019-04926 |
| 3 | 08/30/2012 | WARRANTY D | WARRANTY DEED | LA RUE, RICHARD A | LA RUE, KENNITH R & CHARLOTTE | | | $85,000.00 | 122562 | 2012-07621 |
| 4 | 04/29/1998 | WARRANTY D | WARRANTY DEED | | | | | $46,880.00 | 90314 | 2669-804663 |
Payout Agreement
| No payout information available.. |