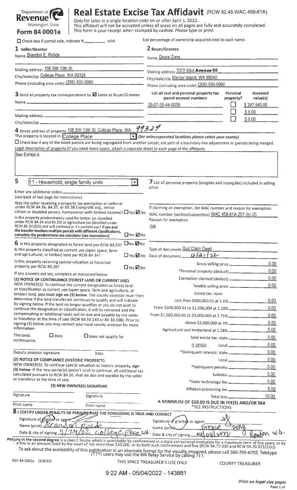
Property
Account |
| Property ID: | 34817 | Abbreviated Legal Description: | MILBROOKE PARK LOT 16 BLK 3 |
| Parcel Number: | 360721650316 | Agent Code: | |
| Type: | Real | | |
| Tax Area: | 1 - OL-140-F | Land Use Code | 11 |
| Open Space: | N | DFL | N |
| Historic Property: | N | Remodel Property: | N |
| Multi-Family Redevelopment: | N | | |
| Township: | 7 | Section: | 21 |
| Range: | 36 |
Location |
| Address: | 63 BOYER DR WA 99362 | Mapsco: | |
| Neighborhood: | A-Superior SFR | Map ID: | |
| Neighborhood CD: | 513211 |
Owner |
| Name: | DARROW DALTON & ALYSE | Owner ID: | 71553 |
| Mailing Address: | 63 BOYER DR WALLA WALLA, WA 99362 | % Ownership: | 100.0000000000% |
| | | Exemptions: | |
Taxes and Assessment Details
Values
| (+) Improvement Homesite Value: | + | $264,300 | |
| (+) Improvement Non-Homesite Value: | + | $0 | |
| (+) Land Homesite Value: | + | $42,380 | |
| (+) Land Non-Homesite Value: | + | $0 | |
| (+) Curr Use (HS): | + | $0 | $0 |
| (+) Curr Use (NHS): | + | $0 | $0 |
| | | -------------------------- | |
| (=) Market Value: | = | $306,680 | |
| (–) Productivity Loss: | – | $0 | |
| | | -------------------------- | |
| (=) Subtotal: | = | $306,680 | |
| (+) Senior Appraised Value: | + | $0 | |
| (+) Non-Senior Appraised Value: | + | $306,680 | |
| | | -------------------------- | |
| (=) Total Appraised Value: | = | $306,680 | |
| (–) Senior Exemption Loss: | – | $0 | |
| (–) Exemption Loss: | – | $0 | |
| | | -------------------------- | |
| (=) Taxable Value: | = | $306,680 | |
Taxing Jurisdiction
| Owner: | DARROW DALTON & ALYSE | | |
| % Ownership: | 100.0000000000% | | |
| Total Value: | $306,680 | | |
| Tax Area: | 1 - OL-140-F |
| CERFD | CURRENT EXPENSE REFUND 010 | 0.0000000000 | $306,680 | $306,680 | $0.00 | | |
| CURREXP | CURRENT EXPENSE 010 | 1.0175366760 | $306,680 | $306,680 | $312.06 | | |
| HUMNSERV | HUMAN SERVICES 119 | 0.0250000000 | $306,680 | $306,680 | $7.67 | | |
| SLDREL | SOLDIERS RELIEF 121 | 0.0155990005 | $306,680 | $306,680 | $4.78 | | |
| EMERGSER | EMS 147 | 0.3792580840 | $306,680 | $306,680 | $116.31 | | |
| EMSRFD | EMS REFUND 147 | 0.0000000000 | $306,680 | $306,680 | $0.00 | | |
| PORTRFD | PORT REFUND 640 | 0.0000000000 | $306,680 | $306,680 | $0.00 | | |
| PORTWWGEN | PORT OF WW 640 | 0.2460186015 | $306,680 | $306,680 | $75.45 | | |
| SD140BOND | SD #140 BOND 764 | 0.8342371393 | $306,680 | $306,680 | $255.84 | | |
| SD140GEN | SD #140 GENERAL 760 | 2.0646500647 | $306,680 | $306,680 | $633.19 | | |
| ST2 | STATE SCHOOL PART 2 600 | 0.8131451643 | $306,680 | $306,680 | $249.38 | | |
| STATESCHL | STATE SCHOOL 600 | 1.5158548041 | $306,680 | $306,680 | $464.88 | | |
| STREFUND | STATE REFUND LEVY 603 | 0.0000000000 | $306,680 | $306,680 | $0.00 | | |
| CWWBOND | C OF WW BOND 643 | 0.2760494372 | $306,680 | $306,680 | $84.66 | | |
| CWWGEN | CITY OF WW 631 | 1.6100204973 | $306,680 | $306,680 | $493.76 | | |
| CWWRFD | CITY OF WALLA WALLA REFUND 631 | 0.0000000000 | $306,680 | $306,680 | $0.00 | | |
| | Total Tax Rate: | 8.7973694689 | | | | | |
| | | | | Taxes w/Current Exemptions: | $2,697.98 | | |
| | | | | Taxes w/o Exemptions: | $2,697.98 | | |
Improvement / Building
| Improvement #1: | RESIDENTIAL | State Code: | 11 | 960.0 sqft | Value: | $264,300 |
| Exterior Wall: | SIDING | Heating/Cooling: | WARM & COOLED AIR | | Number of Bathrooms: | 1 | Number of Bedrooms: | 3 | | Plumbing: | 6 | Roof Covering: | COMP SHINGLE |
|
| | Type | Description | Class CD | Sub Class CD | Year Built | Area |
| | MA | Main Area | 1 | 30 | 1951 | 960.0 |
| | SI1 | SITE IMPROVEMENT | 1 | 30 | 1951 | 1.5 |
| | BASE | BASEMENT | 1 | 30 | 1951 | 960.0 |
| | BPF | BASEMENT -PARTITIONED FINISH | 1 | 30 | 1951 | 440.0 |
| | CPC | COVERED CARPORT/PATIO | 1 | 30 | 1951 | 300.0 |
| | CPC | COVERED CARPORT/PATIO | 1 | 30 | 1951 | 324.0 |
| | WOD | Wood Deck | 1 | 30 | 1951 | 120.0 |
| | EQUIPSHED | EQUIPMENT SHED | 1 | 30 | 1951 | 144.0 |
Sketch
Property Image
Land
| 1 | RES 1 | Converted: Residential | 0.1556 | 6780.00 | 0.00 | 0.00 | 1.00 | $42,380 | $0 |
Roll Value History
| 2025 | N/A | N/A | N/A | N/A | N/A |
| 2024 | $233,240 | $67,800 | $0 | $301,040 | $301,040 |
| 2023 | $264,300 | $42,380 | $0 | $306,680 | $306,680 |
| 2022 | $264,300 | $42,380 | $0 | $306,680 | $306,680 |
| 2021 | $211,440 | $42,380 | $0 | $253,820 | $94,770 |
| 2020 | $151,030 | $42,380 | $0 | $193,410 | $94,770 |
| 2019 | $151,030 | $42,380 | $0 | $193,410 | $145,800 |
| 2018 | $137,300 | $42,380 | $0 | $179,680 | $145,800 |
| 2017 | $150,160 | $27,100 | $0 | $177,260 | $145,800 |
| 2016 | $130,570 | $27,100 | $0 | $157,670 | $145,800 |
| 2015 | $130,570 | $27,100 | $0 | $157,670 | $145,800 |
| 2014 | $118,700 | $27,100 | $0 | $145,800 | $145,800 |
| 2013 | $118,700 | $27,100 | $0 | $145,800 | $145,800 |
| 2012 | $125,800 | $27,100 | $0 | $0 | $0 |
| 2011 | $125,800 | $27,100 | $0 | $0 | $0 |
| 2010 | $118,500 | $27,100 | $0 | $0 | $0 |
| 2009 | $134,700 | $27,100 | $0 | $0 | $0 |
| 2008 | $107,700 | $27,100 | $0 | $0 | $0 |
| 2007 | $107,700 | $27,100 | $0 | $0 | $0 |
| 2006 | $66,000 | $13,600 | $0 | $0 | $0 |
Deed and Sales History
| 1 | 04/29/2022 | SWD | STATUTORY WARRANTY DEED | OSTERT DWAYNE R | DARROW DALTON & ALYSE | | | $310,000.00 | 143859 | 2022-03665 |
| 2 | 11/03/1971 | WARRANTY D | WARRANTY DEED | | | | | $16,000.00 | 0 | 3430-518167 |
Payout Agreement
| No payout information available.. |