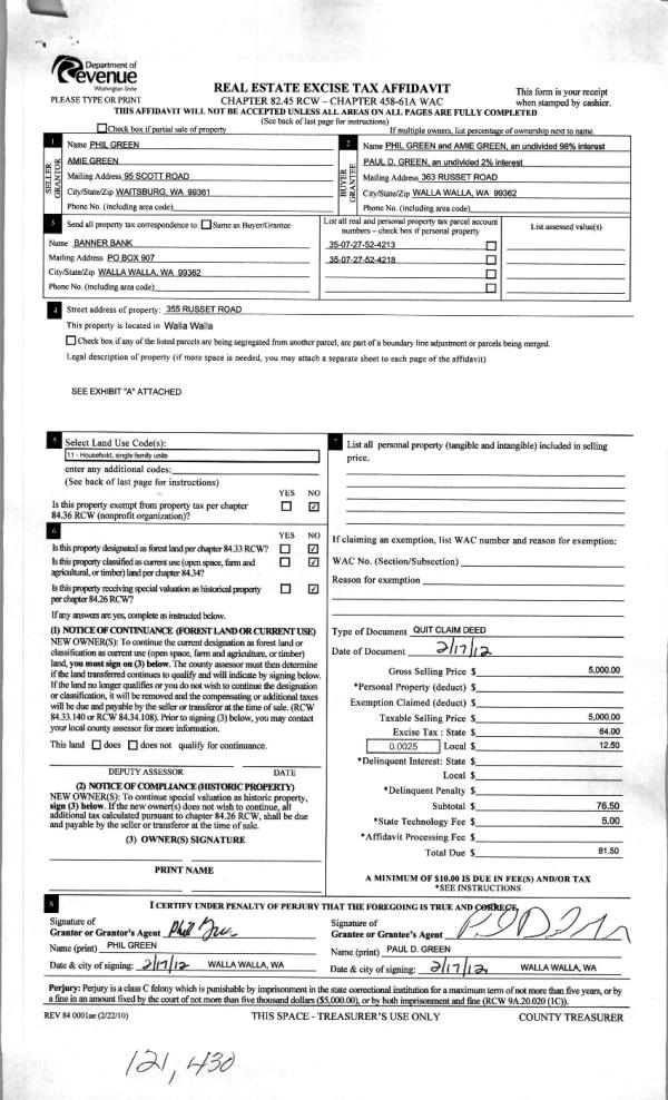
Property
Account |
| Property ID: | 34810 | Abbreviated Legal Description: | TABLEROCK SUBDIVISION II LOT 25 |
| Parcel Number: | 360604590025 | Agent Code: | |
| Type: | Real | | |
| Tax Area: | 5 - OL-140 | Land Use Code | 11 |
| Open Space: | N | DFL | N |
| Historic Property: | N | Remodel Property: | N |
| Multi-Family Redevelopment: | N | | |
| Township: | 6 | Section: | 4 |
| Range: | 36 |
Location |
| Address: | 159 COYOTE RIDGE DR WA 99362 | Mapsco: | |
| Neighborhood: | VG Res Rural/City Inf | Map ID: | |
| Neighborhood CD: | 615012 |
Owner |
| Name: | TRESCOT MATTHEW JOSHUA & JENNIFER EMILY BAILEY | Owner ID: | 72154 |
| Mailing Address: | 159 COYOTE RIDGE DR WALLA WALLA, WA 99362 | % Ownership: | 100.0000000000% |
| | | Exemptions: | |
Taxes and Assessment Details
Values
| (+) Improvement Homesite Value: | + | $0 | |
| (+) Improvement Non-Homesite Value: | + | $644,980 | |
| (+) Land Homesite Value: | + | $0 | |
| (+) Land Non-Homesite Value: | + | $135,000 | |
| (+) Curr Use (HS): | + | $0 | $0 |
| (+) Curr Use (NHS): | + | $0 | $0 |
| | | -------------------------- | |
| (=) Market Value: | = | $779,980 | |
| (–) Productivity Loss: | – | $0 | |
| | | -------------------------- | |
| (=) Subtotal: | = | $779,980 | |
| (+) Senior Appraised Value: | + | $0 | |
| (+) Non-Senior Appraised Value: | + | $779,980 | |
| | | -------------------------- | |
| (=) Total Appraised Value: | = | $779,980 | |
| (–) Senior Exemption Loss: | – | $0 | |
| (–) Exemption Loss: | – | $0 | |
| | | -------------------------- | |
| (=) Taxable Value: | = | $779,980 | |
Taxing Jurisdiction
| Owner: | TRESCOT MATTHEW JOSHUA & JENNIFER EMILY BAILEY | | |
| % Ownership: | 100.0000000000% | | |
| Total Value: | $779,980 | | |
| Tax Area: | 5 - OL-140 |
| CERFD | CURRENT EXPENSE REFUND 010 | 0.0000000000 | $779,980 | $779,980 | $0.00 | | |
| CURREXP | CURRENT EXPENSE 010 | 1.0175366760 | $779,980 | $779,980 | $793.66 | | |
| HUMNSERV | HUMAN SERVICES 119 | 0.0250000000 | $779,980 | $779,980 | $19.50 | | |
| SLDREL | SOLDIERS RELIEF 121 | 0.0155990005 | $779,980 | $779,980 | $12.17 | | |
| EMERGSER | EMS 147 | 0.3792580840 | $779,980 | $779,980 | $295.81 | | |
| EMSRFD | EMS REFUND 147 | 0.0000000000 | $779,980 | $779,980 | $0.00 | | |
| PORTRFD | PORT REFUND 640 | 0.0000000000 | $779,980 | $779,980 | $0.00 | | |
| PORTWWGEN | PORT OF WW 640 | 0.2460186015 | $779,980 | $779,980 | $191.89 | | |
| SD140BOND | SD #140 BOND 764 | 0.8342371393 | $779,980 | $779,980 | $650.69 | | |
| SD140GEN | SD #140 GENERAL 760 | 2.0646500647 | $779,980 | $779,980 | $1,610.39 | | |
| ST2 | STATE SCHOOL PART 2 600 | 0.8131451643 | $779,980 | $779,980 | $634.24 | | |
| STATESCHL | STATE SCHOOL 600 | 1.5158548041 | $779,980 | $779,980 | $1,182.34 | | |
| STREFUND | STATE REFUND LEVY 603 | 0.0000000000 | $779,980 | $779,980 | $0.00 | | |
| CWWBOND | C OF WW BOND 643 | 0.2760494372 | $779,980 | $779,980 | $215.31 | | |
| CWWGEN | CITY OF WW 631 | 1.6100204973 | $779,980 | $779,980 | $1,255.78 | | |
| CWWRFD | CITY OF WALLA WALLA REFUND 631 | 0.0000000000 | $779,980 | $779,980 | $0.00 | | |
| | Total Tax Rate: | 8.7973694689 | | | | | |
| | | | | Taxes w/Current Exemptions: | $6,861.78 | | |
| | | | | Taxes w/o Exemptions: | $6,861.78 | | |
Improvement / Building
| Improvement #1: | RESIDENTIAL | State Code: | 11 | 1799.0 sqft | Value: | $644,980 |
| Exterior Wall: | STUCCO | Heating/Cooling: | WARM & COOLED AIR | | Number of Bathrooms: | 2 | Number of Bedrooms: | 3 | | Plumbing: | 12 | Roof Covering: | BUILT-UP ROCK |
|
| | Type | Description | Class CD | Sub Class CD | Year Built | Area |
| | MA | Main Area | 1 | 50 | 2006 | 1799.0 |
| | GFP | GAS FIREPLACE | 1 | 50 | 0 | 2.0 |
| | RPC | OPEN PORCH W/ROOF , CEILED | 1 | 50 | 0 | 60.0 |
| | SI1 | SITE IMPROVEMENT | 1 | 50 | 0 | 5.5 |
| | BASE | BASEMENT | 1 | 50 | 2006 | 1781.0 |
| | BPF | BASEMENT -PARTITIONED FINISH | 1 | 50 | 2006 | 1781.0 |
| | ATG | Attached Garage | 1 | 50 | 2006 | 1004.0 |
| | RPC | OPEN PORCH W/ROOF , CEILED | 1 | 50 | 2006 | 396.0 |
Sketch
Property Image
Land
| 1 | RES 1 | Converted: Residential | 0.4250 | 18513.00 | 0.00 | 0.00 | 1.00 | $135,000 | $0 |
Roll Value History
| 2025 | N/A | N/A | N/A | N/A | N/A |
| 2024 | $644,980 | $135,000 | $0 | $779,980 | $779,980 |
| 2023 | $644,980 | $135,000 | $0 | $779,980 | $779,980 |
| 2022 | $614,270 | $115,000 | $0 | $729,270 | $729,270 |
| 2021 | $472,510 | $115,000 | $0 | $587,510 | $587,510 |
| 2020 | $393,760 | $115,000 | $0 | $508,760 | $508,760 |
| 2019 | $393,760 | $115,000 | $0 | $508,760 | $508,760 |
| 2018 | $370,870 | $94,000 | $0 | $464,870 | $464,870 |
| 2017 | $353,210 | $94,000 | $0 | $447,210 | $447,210 |
| 2016 | $321,100 | $94,000 | $0 | $415,100 | $415,100 |
| 2015 | $321,100 | $94,000 | $0 | $415,100 | $415,100 |
| 2014 | $321,100 | $94,000 | $0 | $415,100 | $415,100 |
| 2013 | $321,100 | $94,000 | $0 | $415,100 | $415,100 |
| 2012 | $349,900 | $94,000 | $0 | $0 | $0 |
| 2011 | $349,900 | $94,000 | $0 | $0 | $0 |
| 2010 | $349,900 | $94,000 | $0 | $0 | $0 |
| 2009 | $400,500 | $94,000 | $0 | $0 | $0 |
| 2008 | $400,500 | $94,000 | $0 | $0 | $0 |
| 2007 | $400,500 | $75,000 | $0 | $0 | $0 |
| 2006 | $0 | $600 | $0 | $0 | $0 |
Deed and Sales History
| 1 | 08/29/2022 | SWD | STATUTORY WARRANTY DEED | COX THEODORE L & JOYCE K | TRESCOT MATTHEW JOSHUA & JENNIFER EMILY BAILEY | | | $800,000.00 | 144573 | 2022-07200 |
| 2 | 01/02/2013 | WARRANTY D | WARRANTY DEED | GATEWOOD, W PAUL & CAROL | COX, THEODORE L & JOYCE K | | | $419,000.00 | 123273 | 2013-00049 |
Payout Agreement
| No payout information available.. |