Property
Account |
| Property ID: | 34700 | Abbreviated Legal Description: | WATERTOWN LOT 3 BLK 5 |
| Parcel Number: | 360721730503 | Agent Code: | |
| Type: | Real | | |
| Tax Area: | 1 - OL-140-F | Land Use Code | 11 |
| Open Space: | N | DFL | N |
| Historic Property: | N | Remodel Property: | N |
| Multi-Family Redevelopment: | N | | |
| Township: | 7 | Section: | 21 |
| Range: | 36 |
Location |
| Address: | 1148 E ALDER ST WA 99362 | Mapsco: | |
| Neighborhood: | A-SFR | Map ID: | |
| Neighborhood CD: | 513011 |
Owner |
| Name: | MASCAK CHRISTINA | Owner ID: | 56637 |
| Mailing Address: | 1148 E ALDER ST WALLA WALLA, WA 99362 | % Ownership: | 100.0000000000% |
| | | Exemptions: | |
Taxes and Assessment Details
Values
| (+) Improvement Homesite Value: | + | $0 | |
| (+) Improvement Non-Homesite Value: | + | $262,560 | |
| (+) Land Homesite Value: | + | $0 | |
| (+) Land Non-Homesite Value: | + | $46,880 | |
| (+) Curr Use (HS): | + | $0 | $0 |
| (+) Curr Use (NHS): | + | $0 | $0 |
| | | -------------------------- | |
| (=) Market Value: | = | $309,440 | |
| (–) Productivity Loss: | – | $0 | |
| | | -------------------------- | |
| (=) Subtotal: | = | $309,440 | |
| (+) Senior Appraised Value: | + | $0 | |
| (+) Non-Senior Appraised Value: | + | $309,440 | |
| | | -------------------------- | |
| (=) Total Appraised Value: | = | $309,440 | |
| (–) Senior Exemption Loss: | – | $0 | |
| (–) Exemption Loss: | – | $0 | |
| | | -------------------------- | |
| (=) Taxable Value: | = | $309,440 | |
Taxing Jurisdiction
| Owner: | MASCAK CHRISTINA | | |
| % Ownership: | 100.0000000000% | | |
| Total Value: | $309,440 | | |
| Tax Area: | 1 - OL-140-F |
| CERFD | CURRENT EXPENSE REFUND 010 | 0.0000000000 | $309,440 | $309,440 | $0.00 | | |
| CURREXP | CURRENT EXPENSE 010 | 1.0175366760 | $309,440 | $309,440 | $314.87 | | |
| HUMNSERV | HUMAN SERVICES 119 | 0.0250000000 | $309,440 | $309,440 | $7.74 | | |
| SLDREL | SOLDIERS RELIEF 121 | 0.0155990005 | $309,440 | $309,440 | $4.83 | | |
| EMERGSER | EMS 147 | 0.3792580840 | $309,440 | $309,440 | $117.36 | | |
| EMSRFD | EMS REFUND 147 | 0.0000000000 | $309,440 | $309,440 | $0.00 | | |
| PORTRFD | PORT REFUND 640 | 0.0000000000 | $309,440 | $309,440 | $0.00 | | |
| PORTWWGEN | PORT OF WW 640 | 0.2460186015 | $309,440 | $309,440 | $76.13 | | |
| SD140BOND | SD #140 BOND 764 | 0.8342371393 | $309,440 | $309,440 | $258.15 | | |
| SD140GEN | SD #140 GENERAL 760 | 2.0646500647 | $309,440 | $309,440 | $638.89 | | |
| ST2 | STATE SCHOOL PART 2 600 | 0.8131451643 | $309,440 | $309,440 | $251.62 | | |
| STATESCHL | STATE SCHOOL 600 | 1.5158548041 | $309,440 | $309,440 | $469.07 | | |
| STREFUND | STATE REFUND LEVY 603 | 0.0000000000 | $309,440 | $309,440 | $0.00 | | |
| CWWBOND | C OF WW BOND 643 | 0.2760494372 | $309,440 | $309,440 | $85.42 | | |
| CWWGEN | CITY OF WW 631 | 1.6100204973 | $309,440 | $309,440 | $498.20 | | |
| CWWRFD | CITY OF WALLA WALLA REFUND 631 | 0.0000000000 | $309,440 | $309,440 | $0.00 | | |
| | Total Tax Rate: | 8.7973694689 | | | | | |
| | | | | Taxes w/Current Exemptions: | $2,722.28 | | |
| | | | | Taxes w/o Exemptions: | $2,722.28 | | |
Improvement / Building
| Improvement #1: | RESIDENTIAL | State Code: | 11 | 1040.0 sqft | Value: | $262,560 |
| Exterior Wall: | HARDBOARD | Heating/Cooling: | WARM & COOLED AIR | | Number of Bathrooms: | 2 | Number of Bedrooms: | 2 | | Plumbing: | 9 | Roof Covering: | COMP SHINGLE |
|
| | Type | Description | Class CD | Sub Class CD | Year Built | Area |
| | MA | Main Area | 1 | 30 | 1948 | 1040.0 |
| | SI1 | SITE IMPROVEMENT | 1 | 30 | 1948 | 1.5 |
| | BASE | BASEMENT | 1 | 30 | 1948 | 1040.0 |
| | BPF | BASEMENT -PARTITIONED FINISH | 1 | 30 | 1948 | 1040.0 |
| | RPS | PORCH W/STEPS,ROOF | 1 | 30 | 1948 | 63.0 |
| | CPC | COVERED CARPORT/PATIO | 1 | 30 | 1948 | 312.0 |
| | DTG | Detached Garage | 1 | 30 | 1948 | 216.0 |
Sketch
Property Image
Land
| 1 | RES 1 | Converted: Residential | 0.1722 | 7500.00 | 0.00 | 0.00 | 1.00 | $46,880 | $0 |
Roll Value History
| 2025 | N/A | N/A | N/A | N/A | N/A |
| 2024 | $240,110 | $75,000 | $0 | $315,110 | $315,110 |
| 2023 | $262,560 | $46,880 | $0 | $309,440 | $309,440 |
| 2022 | $262,560 | $46,880 | $0 | $309,440 | $309,440 |
| 2021 | $201,970 | $46,880 | $0 | $248,850 | $248,850 |
| 2020 | $149,600 | $46,880 | $0 | $196,480 | $196,480 |
| 2019 | $149,600 | $46,880 | $0 | $196,480 | $196,480 |
| 2018 | $130,090 | $46,880 | $0 | $176,970 | $176,970 |
| 2017 | $143,830 | $30,000 | $0 | $173,830 | $173,830 |
| 2016 | $130,760 | $30,000 | $0 | $160,760 | $160,760 |
| 2015 | $130,760 | $30,000 | $0 | $160,760 | $160,760 |
| 2014 | $113,700 | $30,000 | $0 | $143,700 | $143,700 |
| 2013 | $113,700 | $30,000 | $0 | $143,700 | $143,700 |
| 2012 | $128,000 | $30,000 | $0 | $0 | $0 |
| 2011 | $128,000 | $30,000 | $0 | $0 | $0 |
| 2010 | $120,500 | $30,000 | $0 | $0 | $0 |
| 2009 | $137,200 | $30,000 | $0 | $0 | $0 |
| 2008 | $98,600 | $30,000 | $0 | $0 | $0 |
| 2007 | $98,600 | $30,000 | $0 | $0 | $0 |
| 2006 | $70,300 | $15,000 | $0 | $0 | $0 |
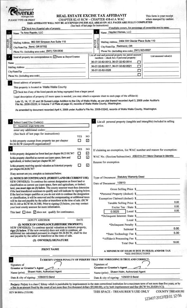
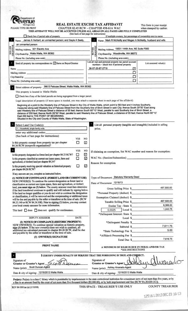
Deed and Sales History
| 1 | 05/14/2015 | SWD | STATUTORY WARRANTY DEED | FONTANA JAYNE RENE | MASCAK CHRISTINA | | | $162,000.00 | 127971 | 2015-04074 |
| 2 | 02/28/2013 | WARRANTY D | WARRANTY DEED | SECRETARY OF HOUSING & URBAN D | FONTANA, JAYNE RENE | | | $125,750.00 | 123522 | 2013-01844 |
| 3 | 12/10/2012 | WARRANTY D | WARRANTY DEED | WELLS FARGO BANK NA | SECRETARY OF HOUSING & URBAN D | | | $216,477.00 | 123128 | 2012-11022 |
| 4 | 10/26/2012 | WARRANTY D | WARRANTY DEED | QUALITY LOAN SERVICE CORPORATI | WELLS FARGO BANK NA | | | $216,477.00 | 122885 | 2012-09444 |
| 5 | 05/13/2008 | WARRANTY D | WARRANTY DEED | LOCKLIN, LORRAINE K | CLARKE, BRANDON & LIZETTE | | | $182,500.00 | 115004 | 2008-04847 |
| 6 | 10/27/2000 | WARRANTY D | WARRANTY DEED | | | | | $86,900.00 | 96087 | 3040-010324 |
Payout Agreement
| No payout information available.. |