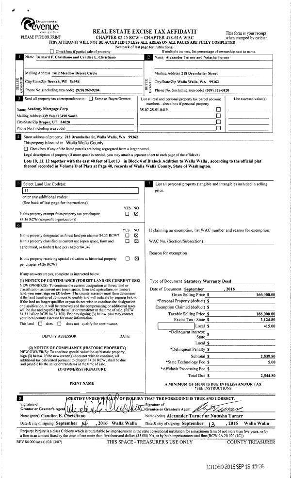
Property
Account |
| Property ID: | 3465 | Abbreviated Legal Description: | 15-7-35 NW1/4 |
| Parcel Number: | 350715210002 | Agent Code: | |
| Type: | Real | | |
| Tax Area: | 100 - 140-8 | Land Use Code | 83 |
| Open Space: | Y | DFL | N |
| Historic Property: | N | Remodel Property: | N |
| Multi-Family Redevelopment: | N | | |
| Township: | 7 | Section: | 15 |
| Range: | 35 |
Location |
| Address: | WA 99362 | Mapsco: | |
| Neighborhood: | 0 Farm | Map ID: | |
| Neighborhood CD: | 3230 |
Owner |
| Name: | LYNCH PATRICK A ESTATE OF | Owner ID: | 67574 |
| Mailing Address: | PATRICK A LYNCH RESIDUARY TRUST 4426 SUDBURY RD WALLA WALLA, WA 99362 | % Ownership: | 100.0000000000% |
| | | Exemptions: | |
Taxes and Assessment Details
Values
| (+) Improvement Homesite Value: | + | $0 | |
| (+) Improvement Non-Homesite Value: | + | $0 | |
| (+) Land Homesite Value: | + | $0 | |
| (+) Land Non-Homesite Value: | + | $0 | |
| (+) Curr Use (HS): | + | $0 | $0 |
| (+) Curr Use (NHS): | + | $186,180 | $63,420 |
| | | -------------------------- | |
| (=) Market Value: | = | $186,180 | |
| (–) Productivity Loss: | – | $122,760 | |
| | | -------------------------- | |
| (=) Subtotal: | = | $63,420 | |
| (+) Senior Appraised Value: | + | $0 | |
| (+) Non-Senior Appraised Value: | + | $63,420 | |
| | | -------------------------- | |
| (=) Total Appraised Value: | = | $63,420 | |
| (–) Senior Exemption Loss: | – | $0 | |
| (–) Exemption Loss: | – | $0 | |
| | | -------------------------- | |
| (=) Taxable Value: | = | $63,420 | |
Taxing Jurisdiction
| Owner: | LYNCH PATRICK A ESTATE OF | | |
| % Ownership: | 100.0000000000% | | |
| Total Value: | $186,180 | | |
| Tax Area: | 100 - 140-8 |
| CERFD | CURRENT EXPENSE REFUND 010 | 0.0000000000 | $63,420 | $63,420 | $0.00 | | |
| CURREXP | CURRENT EXPENSE 010 | 1.0175366760 | $63,420 | $63,420 | $64.53 | | |
| HUMNSERV | HUMAN SERVICES 119 | 0.0250000000 | $63,420 | $63,420 | $1.59 | | |
| SLDREL | SOLDIERS RELIEF 121 | 0.0155990005 | $63,420 | $63,420 | $0.99 | | |
| EMERGSER | EMS 147 | 0.3792580840 | $63,420 | $63,420 | $24.05 | | |
| EMSRFD | EMS REFUND 147 | 0.0000000000 | $63,420 | $63,420 | $0.00 | | |
| FD8EXP | FD #8 EXPENSE 697 | 0.6647992540 | $63,420 | $63,420 | $42.16 | | |
| RLBRFD | RURAL LIBRARY REFUND 623 | 0.0000000000 | $63,420 | $63,420 | $0.00 | | |
| RURALLIB | RURAL LIBRARY 623 | 0.3710609029 | $63,420 | $63,420 | $23.53 | | |
| PORTRFD | PORT REFUND 640 | 0.0000000000 | $63,420 | $63,420 | $0.00 | | |
| PORTWWGEN | PORT OF WW 640 | 0.2460186015 | $63,420 | $63,420 | $15.60 | | |
| SD140BOND | SD #140 BOND 764 | 0.8342371393 | $63,420 | $63,420 | $52.91 | | |
| SD140GEN | SD #140 GENERAL 760 | 2.0646500647 | $63,420 | $63,420 | $130.94 | | |
| ST2 | STATE SCHOOL PART 2 600 | 0.8131451643 | $63,420 | $63,420 | $51.57 | | |
| STATESCHL | STATE SCHOOL 600 | 1.5158548041 | $63,420 | $63,420 | $96.14 | | |
| STREFUND | STATE REFUND LEVY 603 | 0.0000000000 | $63,420 | $63,420 | $0.00 | | |
| COROAD | COUNTY ROAD 115 | 1.6549953990 | $63,420 | $63,420 | $104.96 | | |
| CRPRD | COUNTY ROAD REFUND 115 | 0.0000000000 | $63,420 | $63,420 | $0.00 | | |
| | Total Tax Rate: | 9.6021550903 | | | | | |
| | | | | Taxes w/Current Exemptions: | $608.97 | | |
| | | | | Taxes w/o Exemptions: | $608.97 | | |
Improvement / Building
Sketch
| No sketches available for this property. |
Property Image
Land
| 1 | WASTE | Waste | 9.0000 | 0.00 | 0.00 | 0.00 | 1.00 | $0 | $0 |
| 2 | 55-C2 | Class 2 55 BU | 151.0000 | 0.00 | 0.00 | 0.00 | 1.00 | $186,180 | $63,420 |
Roll Value History
| 2025 | N/A | N/A | N/A | N/A | N/A |
| 2024 | $0 | $190,710 | $61,000 | $61,000 | $61,000 |
| 2023 | $0 | $186,180 | $63,420 | $63,420 | $63,420 |
| 2022 | $0 | $168,520 | $60,850 | $60,850 | $60,850 |
| 2021 | $0 | $153,570 | $60,850 | $60,850 | $60,850 |
| 2020 | $0 | $142,390 | $62,510 | $62,510 | $62,510 |
| 2019 | $0 | $136,660 | $63,870 | $63,870 | $63,870 |
| 2018 | $0 | $135,900 | $72,780 | $72,780 | $72,780 |
| 2017 | $0 | $130,010 | $73,840 | $73,840 | $73,840 |
| 2016 | $0 | $130,010 | $73,990 | $73,990 | $73,990 |
| 2015 | $0 | $128,950 | $65,530 | $65,530 | $65,530 |
| 2014 | $0 | $128,950 | $66,140 | $66,140 | $66,140 |
| 2013 | $0 | $121,400 | $53,600 | $53,600 | $53,600 |
| 2012 | $0 | $36,800 | $0 | $0 | $0 |
| 2011 | $0 | $39,000 | $0 | $0 | $0 |
| 2010 | $0 | $36,100 | $0 | $0 | $0 |
| 2009 | $0 | $35,900 | $0 | $0 | $0 |
| 2008 | $0 | $30,700 | $0 | $0 | $0 |
| 2007 | $0 | $33,400 | $0 | $0 | $0 |
| 2006 | $0 | $33,400 | $0 | $0 | $0 |
Deed and Sales History
| 1 | 03/28/2024 | WARRANTY D | WARRANTY DEED | LYNCH FRANCES LOUISE | LSB FARMS LLC | | | | 147297 | 2024-01510 |
| 2 | 12/13/2023 | DPR | DEED OF PERSONAL REPRESENTATIVE | LYNCH PATRICK A ESTATE OF | LYNCH FRANCES LOUISE | | | | 146919 | 2023-07234 |
| 3 | 07/20/2020 | DPR | DEED OF PERSONAL REPRESENTATIVE | LYNCH PATRICK A | LYNCH PATRICK A ESTATE OF | | | | 139529 | 2020-06989 |
| 4 | 01/17/1985 | QCD | QUIT CLAIM DEED | | LYNCH PATRICK A ESTATE OF | | | $0.00 | 0 | 1478-500420 |
| 5 | 01/17/1985 | QCD | QUIT CLAIM DEED | | LYNCH PATRICK A RESIDUARY TRUST | | | $0.00 | 0 | 1478-500420 |
Payout Agreement
| No payout information available.. |