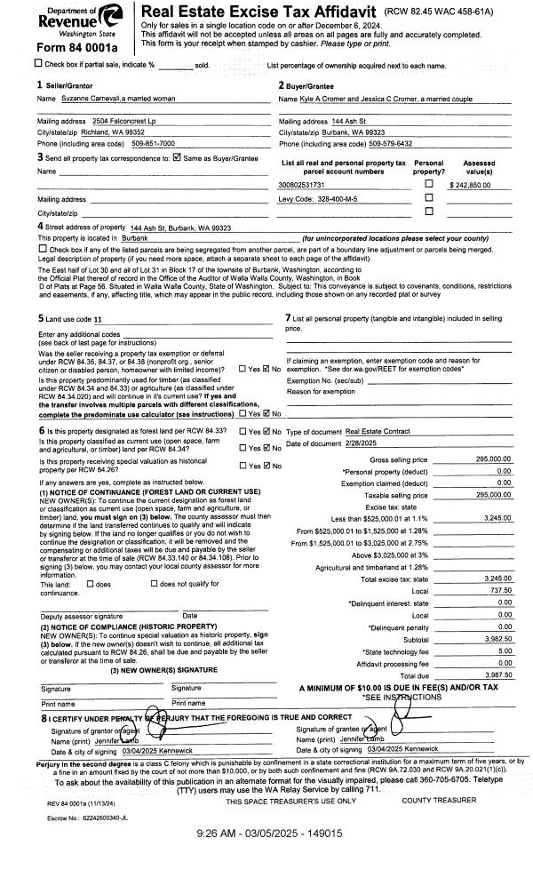
Property
Account |
| Property ID: | 34324 | Abbreviated Legal Description: | EAST WALLA WALLA 1ST LOTS 8 & 9 BLK 3 LESS W 3' OF LOT 9 BLK 3TRACT C |
| Parcel Number: | 360727540329 | Agent Code: | |
| Type: | Real | | |
| Tax Area: | 1 - OL-140-F | Land Use Code | 12 |
| Open Space: | N | DFL | N |
| Historic Property: | N | Remodel Property: | N |
| Multi-Family Redevelopment: | N | | |
| Township: | 7 | Section: | 27 |
| Range: | 36 |
Location |
| Address: | 1818 AMELIA ST WA 99362 | Mapsco: | |
| Neighborhood: | A- Res Duplex | Map ID: | |
| Neighborhood CD: | 413131 |
Owner |
| Name: | MARKER ROBERT A & BETH I | Owner ID: | 56474 |
| Mailing Address: | 24281 S 216TH PL QUEEN CREEK, AZ 85142 | % Ownership: | 100.0000000000% |
| | | Exemptions: | |
Taxes and Assessment Details
Values
| (+) Improvement Homesite Value: | + | $0 | |
| (+) Improvement Non-Homesite Value: | + | $227,210 | |
| (+) Land Homesite Value: | + | $0 | |
| (+) Land Non-Homesite Value: | + | $81,010 | |
| (+) Curr Use (HS): | + | $0 | $0 |
| (+) Curr Use (NHS): | + | $0 | $0 |
| | | -------------------------- | |
| (=) Market Value: | = | $308,220 | |
| (–) Productivity Loss: | – | $0 | |
| | | -------------------------- | |
| (=) Subtotal: | = | $308,220 | |
| (+) Senior Appraised Value: | + | $0 | |
| (+) Non-Senior Appraised Value: | + | $308,220 | |
| | | -------------------------- | |
| (=) Total Appraised Value: | = | $308,220 | |
| (–) Senior Exemption Loss: | – | $0 | |
| (–) Exemption Loss: | – | $0 | |
| | | -------------------------- | |
| (=) Taxable Value: | = | $308,220 | |
Taxing Jurisdiction
| Owner: | MARKER ROBERT A & BETH I | | |
| % Ownership: | 100.0000000000% | | |
| Total Value: | $308,220 | | |
| Tax Area: | 1 - OL-140-F |
| CERFD | CURRENT EXPENSE REFUND 010 | 0.0000000000 | $308,220 | $308,220 | $0.00 | | |
| CURREXP | CURRENT EXPENSE 010 | 1.0175366760 | $308,220 | $308,220 | $313.63 | | |
| HUMNSERV | HUMAN SERVICES 119 | 0.0250000000 | $308,220 | $308,220 | $7.71 | | |
| SLDREL | SOLDIERS RELIEF 121 | 0.0155990005 | $308,220 | $308,220 | $4.81 | | |
| EMERGSER | EMS 147 | 0.3792580840 | $308,220 | $308,220 | $116.89 | | |
| EMSRFD | EMS REFUND 147 | 0.0000000000 | $308,220 | $308,220 | $0.00 | | |
| PORTRFD | PORT REFUND 640 | 0.0000000000 | $308,220 | $308,220 | $0.00 | | |
| PORTWWGEN | PORT OF WW 640 | 0.2460186015 | $308,220 | $308,220 | $75.83 | | |
| SD140BOND | SD #140 BOND 764 | 0.8342371393 | $308,220 | $308,220 | $257.13 | | |
| SD140GEN | SD #140 GENERAL 760 | 2.0646500647 | $308,220 | $308,220 | $636.37 | | |
| ST2 | STATE SCHOOL PART 2 600 | 0.8131451643 | $308,220 | $308,220 | $250.63 | | |
| STATESCHL | STATE SCHOOL 600 | 1.5158548041 | $308,220 | $308,220 | $467.22 | | |
| STREFUND | STATE REFUND LEVY 603 | 0.0000000000 | $308,220 | $308,220 | $0.00 | | |
| CWWBOND | C OF WW BOND 643 | 0.2760494372 | $308,220 | $308,220 | $85.08 | | |
| CWWGEN | CITY OF WW 631 | 1.6100204973 | $308,220 | $308,220 | $496.24 | | |
| CWWRFD | CITY OF WALLA WALLA REFUND 631 | 0.0000000000 | $308,220 | $308,220 | $0.00 | | |
| | Total Tax Rate: | 8.7973694689 | | | | | |
| | | | | Taxes w/Current Exemptions: | $2,711.54 | | |
| | | | | Taxes w/o Exemptions: | $2,711.54 | | |
Improvement / Building
| Improvement #1: | RESIDENTIAL | State Code: | 12 | 1704.0 sqft | Value: | $227,210 |
| Exterior Wall: | HARDBOARD | Heating/Cooling: | FORCED AIR | | Number of Bathrooms: | 2 | Number of Bedrooms: | 4 | | Plumbing: | 12 | Roof Covering: | COMP SHINGLE |
|
| | Type | Description | Class CD | Sub Class CD | Year Built | Area |
| | MA | Main Area | 1 | 30 | 1962 | 1704.0 |
| | SI1 | SITE IMPROVEMENT | 1 | 30 | 0 | 1.5 |
| | ATG | Attached Garage | 1 | 30 | 0 | 240.0 |
| | ATG | Attached Garage | 1 | 30 | 0 | 240.0 |
| | RPO | OPEN PORCH W/ROOF | 1 | 30 | 0 | 48.0 |
| | RPO | OPEN PORCH W/ROOF | 1 | 30 | 0 | 48.0 |
Sketch
Property Image
Land
| 1 | RES 1 | Converted: Residential | 0.2672 | 11640.00 | 0.00 | 0.00 | 1.00 | $81,010 | $0 |
Roll Value History
| 2025 | N/A | N/A | N/A | N/A | N/A |
| 2024 | $230,900 | $81,100 | $0 | $312,000 | $312,000 |
| 2023 | $227,210 | $81,010 | $0 | $308,220 | $308,220 |
| 2022 | $228,510 | $53,890 | $0 | $282,400 | $282,400 |
| 2021 | $152,340 | $53,890 | $0 | $206,230 | $206,230 |
| 2020 | $138,490 | $53,890 | $0 | $192,380 | $192,380 |
| 2019 | $138,490 | $53,890 | $0 | $192,380 | $192,380 |
| 2018 | $120,430 | $53,890 | $0 | $174,320 | $174,320 |
| 2017 | $109,480 | $53,890 | $0 | $163,370 | $163,370 |
| 2016 | $114,870 | $48,500 | $0 | $163,370 | $163,370 |
| 2015 | $114,870 | $48,500 | $0 | $163,370 | $163,370 |
| 2014 | $109,400 | $48,500 | $0 | $157,900 | $157,900 |
| 2013 | $109,400 | $48,500 | $0 | $157,900 | $157,900 |
| 2012 | $109,400 | $48,500 | $0 | $0 | $0 |
| 2011 | $113,500 | $48,500 | $0 | $0 | $0 |
| 2010 | $113,500 | $48,500 | $0 | $0 | $0 |
| 2009 | $113,500 | $48,500 | $0 | $0 | $0 |
| 2008 | $113,500 | $48,500 | $0 | $0 | $0 |
| 2007 | $71,300 | $26,000 | $0 | $0 | $0 |
| 2006 | $71,300 | $26,000 | $0 | $0 | $0 |
Deed and Sales History
| 1 | 04/15/2025 | QCD | QUIT CLAIM DEED | MARKER ROBERT A & BETH I | MARKER FAMILY TRUST | | | | 149229 | 2025-01980 |
| 2 | 04/22/2015 | DEED | DEED | INGSTAD BETH ANNE | MARKER ROBERT A & BETH I | | | | 127900 | 2015-03756 |
Payout Agreement
| No payout information available.. |