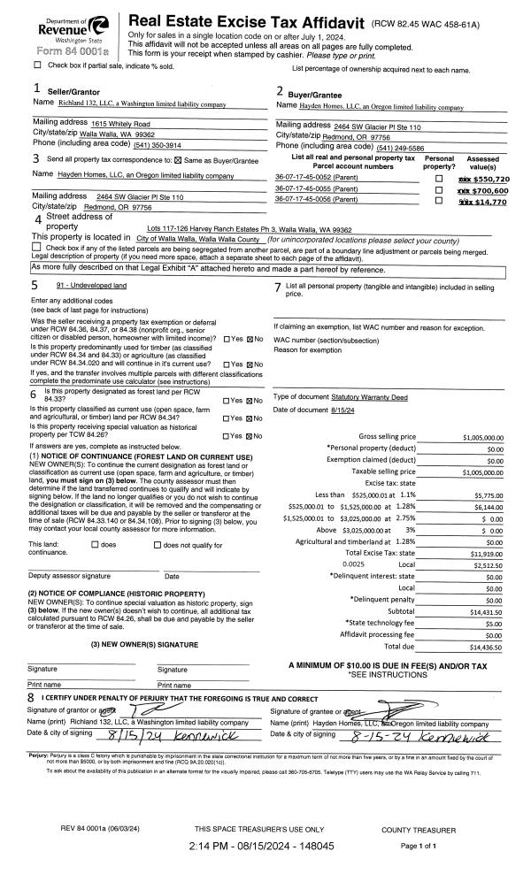
Property
Account |
| Property ID: | 34229 | Abbreviated Legal Description: | GREENS ANNEX TAX 11 LESS S 20' & N 10' BLK 2 |
| Parcel Number: | 360721750225 | Agent Code: | |
| Type: | Real | | |
| Tax Area: | 1 - OL-140-F | Land Use Code | 12 |
| Open Space: | N | DFL | N |
| Historic Property: | N | Remodel Property: | N |
| Multi-Family Redevelopment: | N | | |
| Township: | 7 | Section: | 21 |
| Range: | 36 |
Location |
| Address: | 1836 MELROSE ST WA 99362 | Mapsco: | |
| Neighborhood: | A-Duplex | Map ID: | |
| Neighborhood CD: | 513031 |
Owner |
| Name: | BELCHER DAVID J & KELLY L | Owner ID: | 70700 |
| Mailing Address: | 1341 BONSELLA ST WALLA WALLA, WA 99362 | % Ownership: | 100.0000000000% |
| | | Exemptions: | |
Taxes and Assessment Details
Values
| (+) Improvement Homesite Value: | + | $0 | |
| (+) Improvement Non-Homesite Value: | + | $295,570 | |
| (+) Land Homesite Value: | + | $0 | |
| (+) Land Non-Homesite Value: | + | $46,840 | |
| (+) Curr Use (HS): | + | $0 | $0 |
| (+) Curr Use (NHS): | + | $0 | $0 |
| | | -------------------------- | |
| (=) Market Value: | = | $342,410 | |
| (–) Productivity Loss: | – | $0 | |
| | | -------------------------- | |
| (=) Subtotal: | = | $342,410 | |
| (+) Senior Appraised Value: | + | $0 | |
| (+) Non-Senior Appraised Value: | + | $342,410 | |
| | | -------------------------- | |
| (=) Total Appraised Value: | = | $342,410 | |
| (–) Senior Exemption Loss: | – | $0 | |
| (–) Exemption Loss: | – | $0 | |
| | | -------------------------- | |
| (=) Taxable Value: | = | $342,410 | |
Taxing Jurisdiction
| Owner: | BELCHER DAVID J & KELLY L | | |
| % Ownership: | 100.0000000000% | | |
| Total Value: | $342,410 | | |
| Tax Area: | 1 - OL-140-F |
| CERFD | CURRENT EXPENSE REFUND 010 | 0.0000000000 | $342,410 | $342,410 | $0.00 | | |
| CURREXP | CURRENT EXPENSE 010 | 1.0175366760 | $342,410 | $342,410 | $348.41 | | |
| HUMNSERV | HUMAN SERVICES 119 | 0.0250000000 | $342,410 | $342,410 | $8.56 | | |
| SLDREL | SOLDIERS RELIEF 121 | 0.0155990005 | $342,410 | $342,410 | $5.34 | | |
| EMERGSER | EMS 147 | 0.3792580840 | $342,410 | $342,410 | $129.86 | | |
| EMSRFD | EMS REFUND 147 | 0.0000000000 | $342,410 | $342,410 | $0.00 | | |
| PORTRFD | PORT REFUND 640 | 0.0000000000 | $342,410 | $342,410 | $0.00 | | |
| PORTWWGEN | PORT OF WW 640 | 0.2460186015 | $342,410 | $342,410 | $84.24 | | |
| SD140BOND | SD #140 BOND 764 | 0.8342371393 | $342,410 | $342,410 | $285.65 | | |
| SD140GEN | SD #140 GENERAL 760 | 2.0646500647 | $342,410 | $342,410 | $706.96 | | |
| ST2 | STATE SCHOOL PART 2 600 | 0.8131451643 | $342,410 | $342,410 | $278.43 | | |
| STATESCHL | STATE SCHOOL 600 | 1.5158548041 | $342,410 | $342,410 | $519.04 | | |
| STREFUND | STATE REFUND LEVY 603 | 0.0000000000 | $342,410 | $342,410 | $0.00 | | |
| CWWBOND | C OF WW BOND 643 | 0.2760494372 | $342,410 | $342,410 | $94.52 | | |
| CWWGEN | CITY OF WW 631 | 1.6100204973 | $342,410 | $342,410 | $551.29 | | |
| CWWRFD | CITY OF WALLA WALLA REFUND 631 | 0.0000000000 | $342,410 | $342,410 | $0.00 | | |
| | Total Tax Rate: | 8.7973694689 | | | | | |
| | | | | Taxes w/Current Exemptions: | $3,012.30 | | |
| | | | | Taxes w/o Exemptions: | $3,012.30 | | |
Improvement / Building
| Improvement #1: | RESIDENTIAL | State Code: | 12 | 1600.0 sqft | Value: | $295,570 |
| Exterior Wall: | SIDING | Heating/Cooling: | BASEBOARD ELECTRIC | | Number of Bathrooms: | 2 | Number of Bedrooms: | 4 | | Plumbing: | 12 | Roof Covering: | COMP SHINGLE |
|
| | Type | Description | Class CD | Sub Class CD | Year Built | Area |
| | MA | Main Area | 1 | 30 | 1981 | 1600.0 |
| | SI1 | SITE IMPROVEMENT | 1 | 30 | 1981 | 1.0 |
| | ATG | Attached Garage | 1 | 30 | 1981 | 576.0 |
| | RPO | OPEN PORCH W/ROOF | 1 | 30 | 1981 | 16.0 |
| | S1F | Single One Story Fireplace | 1 | 30 | 1981 | 2.0 |
| | RPO | OPEN PORCH W/ROOF | 1 | 30 | 1981 | 16.0 |
Sketch
Property Image
Land
| 1 | RES 1 | Converted: Residential | 0.1721 | 7495.00 | 0.00 | 0.00 | 1.00 | $46,840 | $0 |
Roll Value History
| 2025 | N/A | N/A | N/A | N/A | N/A |
| 2024 | $297,700 | $67,500 | $0 | $365,200 | $365,200 |
| 2023 | $295,570 | $46,840 | $0 | $342,410 | $342,410 |
| 2022 | $295,570 | $46,840 | $0 | $342,410 | $342,410 |
| 2021 | $164,210 | $46,840 | $0 | $211,050 | $211,050 |
| 2020 | $136,840 | $46,840 | $0 | $183,680 | $183,680 |
| 2019 | $136,840 | $46,840 | $0 | $183,680 | $183,680 |
| 2018 | $124,400 | $46,840 | $0 | $171,240 | $171,240 |
| 2017 | $128,260 | $30,000 | $0 | $158,260 | $158,260 |
| 2016 | $128,260 | $30,000 | $0 | $158,260 | $158,260 |
| 2015 | $128,260 | $30,000 | $0 | $158,260 | $158,260 |
| 2014 | $116,600 | $30,000 | $0 | $146,600 | $146,600 |
| 2013 | $116,600 | $30,000 | $0 | $146,600 | $146,600 |
| 2012 | $104,800 | $30,000 | $0 | $0 | $0 |
| 2011 | $104,800 | $30,000 | $0 | $0 | $0 |
| 2010 | $104,800 | $30,000 | $0 | $0 | $0 |
| 2009 | $104,800 | $30,000 | $0 | $0 | $0 |
| 2008 | $104,800 | $30,000 | $0 | $0 | $0 |
| 2007 | $104,800 | $30,000 | $0 | $0 | $0 |
| 2006 | $81,500 | $15,000 | $0 | $0 | $0 |
Deed and Sales History
| 1 | 11/27/2024 | QCD | QUIT CLAIM DEED | BELCHER DAVID J & KELLY L | 1838 MELROSE PLACE LLC | | | | 148571 | 2024-06886 |
| 2 | 11/23/2021 | SWD | STATUTORY WARRANTY DEED | DUDENKOV ALEXANDER VYACHESLA | BELCHER DAVID J & KELLY L | | | $375,000.00 | 142934 | 2021-13950 |
| 3 | 12/29/2011 | WARRANTY D | WARRANTY DEED | RAU, LAURA D | DUDENKOV, ALEXANDER VYACHESLA | | | $151,000.00 | 121190 | 2011-10299 |
| 4 | 03/15/2005 | WARRANTY D | WARRANTY DEED | SMITH, LARRY R | RAU, LAURA D | | | $135,000.00 | 106994 | 2005-02934 |
Payout Agreement
| No payout information available.. |