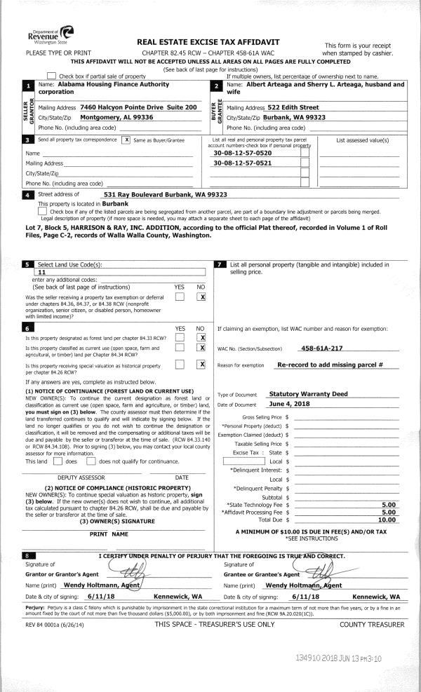
Property
Account |
| Property ID: | 34113 | Abbreviated Legal Description: | ENNIS ANNEX E 8.71' OF S 1/2 OF LOT 3 BLK 8 W 50' OF LOT 4 BLK 8 |
| Parcel Number: | 360721550809 | Agent Code: | |
| Type: | Real | | |
| Tax Area: | 1 - OL-140-F | Land Use Code | 11 |
| Open Space: | N | DFL | N |
| Historic Property: | N | Remodel Property: | N |
| Multi-Family Redevelopment: | N | | |
| Township: | 7 | Section: | 21 |
| Range: | 36 |
Location |
| Address: | 1123 BOYER AVE WA 99362 | Mapsco: | |
| Neighborhood: | A-SFR | Map ID: | |
| Neighborhood CD: | 513011 |
Owner |
| Name: | HUXEL LIVING TRUST | Owner ID: | 67001 |
| Mailing Address: | 1123 BOYER AVE WALLA WALLA, WA 99362 | % Ownership: | 100.0000000000% |
| | | Exemptions: | SNR/DSBL |
Taxes and Assessment Details
Values
| (+) Improvement Homesite Value: | + | $156,110 | |
| (+) Improvement Non-Homesite Value: | + | $0 | |
| (+) Land Homesite Value: | + | $63,120 | |
| (+) Land Non-Homesite Value: | + | $0 | |
| (+) Curr Use (HS): | + | $0 | $0 |
| (+) Curr Use (NHS): | + | $0 | $0 |
| | | -------------------------- | |
| (=) Market Value: | = | $219,230 | |
| (–) Productivity Loss: | – | $0 | |
| | | -------------------------- | |
| (=) Subtotal: | = | $219,230 | |
| (+) Senior Appraised Value: | + | $117,460 | |
| (+) Non-Senior Appraised Value: | + | $0 | |
| | | -------------------------- | |
| (=) Total Appraised Value: | = | $117,460 | |
| (–) Senior Exemption Loss: | – | $70,476 | |
| (–) Exemption Loss: | – | $0 | |
| | | -------------------------- | |
| (=) Taxable Value: | = | $46,984 | |
Taxing Jurisdiction
| Owner: | HUXEL LIVING TRUST | | |
| % Ownership: | 100.0000000000% | | |
| Total Value: | $219,230 | | |
| Tax Area: | 1 - OL-140-F |
| CERFD | CURRENT EXPENSE REFUND 010 | 0.0000000000 | $219,230 | $46,984 | $0.00 | | |
| CURREXP | CURRENT EXPENSE 010 | 1.0175366760 | $219,230 | $46,984 | $47.81 | | |
| HUMNSERV | HUMAN SERVICES 119 | 0.0250000000 | $219,230 | $46,984 | $1.17 | | |
| SLDREL | SOLDIERS RELIEF 121 | 0.0155990005 | $219,230 | $46,984 | $0.73 | | |
| EMERGSER | EMS 147 | 0.3792580840 | $219,230 | $46,984 | $17.82 | | |
| EMSRFD | EMS REFUND 147 | 0.0000000000 | $219,230 | $46,984 | $0.00 | | |
| PORTRFD | PORT REFUND 640 | 0.0000000000 | $219,230 | $46,984 | $0.00 | | |
| PORTWWGEN | PORT OF WW 640 | 0.2460186015 | $219,230 | $46,984 | $11.56 | | |
| SD140BOND | SD #140 BOND 764 | 0.0000000000 | $219,230 | $0 | $0.00 | | |
| SD140GEN | SD #140 GENERAL 760 | 0.0000000000 | $219,230 | $0 | $0.00 | | |
| ST2 | STATE SCHOOL PART 2 600 | 0.0000000000 | $219,230 | $0 | $0.00 | | |
| STATESCHL | STATE SCHOOL 600 | 1.5158548041 | $219,230 | $46,984 | $71.22 | | |
| STREFUND | STATE REFUND LEVY 603 | 0.0000000000 | $219,230 | $46,984 | $0.00 | | |
| CWWBOND | C OF WW BOND 643 | 0.0000000000 | $219,230 | $0 | $0.00 | | |
| CWWGEN | CITY OF WW 631 | 1.6100204973 | $219,230 | $46,984 | $75.65 | | |
| CWWRFD | CITY OF WALLA WALLA REFUND 631 | 0.0000000000 | $219,230 | $46,984 | $0.00 | | |
| | Total Tax Rate: | 4.8092876634 | | | | | |
| | | | | Taxes w/Current Exemptions: | $225.96 | | |
| | | | | Taxes w/o Exemptions: | $1,928.63 | | |
Improvement / Building
| Improvement #1: | RESIDENTIAL | State Code: | 11 | 1158.0 sqft | Value: | $156,110 |
| Exterior Wall: | SIDING | Heating/Cooling: | FORCED AIR | | Number of Bathrooms: | 1 | Number of Bedrooms: | 2 | | Plumbing: | 6 | Roof Covering: | COMP SHINGLE |
|
| | Type | Description | Class CD | Sub Class CD | Year Built | Area |
| | MA | Main Area | 1 | 20 | 1905 | 1158.0 |
| | SI1 | SITE IMPROVEMENT | 1 | 20 | 1905 | 1.0 |
| | OPS | OPEN PORCH W/STEPS | 1 | 20 | 1905 | 25.0 |
Sketch
Property Image
Land
| 1 | RES 1 | Converted: Residential | 0.2579 | 11232.00 | 0.00 | 0.00 | 1.00 | $63,120 | $0 |
Roll Value History
| 2025 | N/A | N/A | N/A | N/A | N/A |
| 2024 | $127,480 | $100,980 | $0 | $228,460 | $46,984 |
| 2023 | $156,110 | $63,120 | $0 | $219,230 | $46,984 |
| 2022 | $156,110 | $63,120 | $0 | $219,230 | $46,984 |
| 2021 | $111,510 | $63,120 | $0 | $174,630 | $46,984 |
| 2020 | $74,340 | $63,120 | $0 | $137,460 | $46,984 |
| 2019 | $74,340 | $63,120 | $0 | $137,460 | $46,984 |
| 2018 | $70,800 | $63,120 | $0 | $133,920 | $46,984 |
| 2017 | $84,410 | $40,900 | $0 | $125,310 | $46,984 |
| 2016 | $80,390 | $40,900 | $0 | $121,290 | $67,460 |
| 2015 | $76,560 | $40,900 | $0 | $117,460 | $67,460 |
| 2014 | $69,600 | $40,900 | $0 | $110,500 | $110,500 |
| 2013 | $69,600 | $40,900 | $0 | $110,500 | $110,500 |
| 2012 | $69,600 | $40,900 | $0 | $0 | $0 |
| 2011 | $69,600 | $40,900 | $0 | $0 | $0 |
| 2010 | $64,300 | $40,900 | $0 | $0 | $0 |
| 2009 | $76,000 | $40,900 | $0 | $0 | $0 |
| 2008 | $49,000 | $40,900 | $0 | $0 | $0 |
| 2007 | $49,000 | $40,900 | $0 | $0 | $0 |
| 2006 | $45,200 | $20,400 | $0 | $0 | $0 |
Deed and Sales History
| 1 | 05/04/2020 | AFFIDAVIT | AFFIDAVIT | HUXEL DARLENE A | HUXEL LIVING TRUST | | | $0.00 | 139082 | 2020-04063 |
| 2 | 01/28/2020 | WARRANTY D | WARRANTY DEED | HUXEL DARLENE A | HUXEL LIVING TRUST | | | $0.00 | 138922 | 2020-03171 |
| 3 | 10/05/2012 | WARRANTY D | WARRANTY DEED | OLSON, ROBERT J | HUXEL, DARLENE A | | | $120,000.00 | 122768 | 2012-08816 |
| 4 | 10/10/1979 | WARRANTY D | WARRANTY DEED | | | | | $33,250.00 | 0 | 1127-909605 |
Payout Agreement
| No payout information available.. |