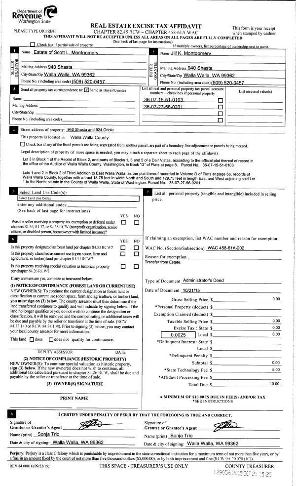
Property
Account |
| Property ID: | 34051 | Abbreviated Legal Description: | 37 08 24 S2 ETC |
| Parcel Number: | 370824420012 | Agent Code: | |
| Type: | Real | | |
| Tax Area: | 310 - 101-8 | Land Use Code | 83 |
| Open Space: | Y | DFL | N |
| Historic Property: | N | Remodel Property: | N |
| Multi-Family Redevelopment: | N | | |
| Township: | 8 | Section: | 24 |
| Range: | 37 |
Location |
| Address: | E HIGHWAY 12 WA 99329 | Mapsco: | |
| Neighborhood: | 0 Farm | Map ID: | |
| Neighborhood CD: | 4240 |
Owner |
| Name: | DON & KAREN FARMS LLC | Owner ID: | 61959 |
| Mailing Address: | 3274 MUD CREEK RD WAITSBURG, WA 99361 | % Ownership: | 100.0000000000% |
| | | Exemptions: | |
Taxes and Assessment Details
Values
| (+) Improvement Homesite Value: | + | $0 | |
| (+) Improvement Non-Homesite Value: | + | $0 | |
| (+) Land Homesite Value: | + | $0 | |
| (+) Land Non-Homesite Value: | + | $0 | |
| (+) Curr Use (HS): | + | $0 | $0 |
| (+) Curr Use (NHS): | + | $64,190 | $18,550 |
| | | -------------------------- | |
| (=) Market Value: | = | $64,190 | |
| (–) Productivity Loss: | – | $45,640 | |
| | | -------------------------- | |
| (=) Subtotal: | = | $18,550 | |
| (+) Senior Appraised Value: | + | $0 | |
| (+) Non-Senior Appraised Value: | + | $18,550 | |
| | | -------------------------- | |
| (=) Total Appraised Value: | = | $18,550 | |
| (–) Senior Exemption Loss: | – | $0 | |
| (–) Exemption Loss: | – | $0 | |
| | | -------------------------- | |
| (=) Taxable Value: | = | $18,550 | |
Taxing Jurisdiction
| Owner: | DON & KAREN FARMS LLC | | |
| % Ownership: | 100.0000000000% | | |
| Total Value: | $64,190 | | |
| Tax Area: | 310 - 101-8 |
| CERFD | CURRENT EXPENSE REFUND 010 | 0.0000000000 | $18,550 | $18,550 | $0.00 | | |
| CURREXP | CURRENT EXPENSE 010 | 1.0175366760 | $18,550 | $18,550 | $18.88 | | |
| HUMNSERV | HUMAN SERVICES 119 | 0.0250000000 | $18,550 | $18,550 | $0.46 | | |
| SLDREL | SOLDIERS RELIEF 121 | 0.0155990005 | $18,550 | $18,550 | $0.29 | | |
| EMERGSER | EMS 147 | 0.3792580840 | $18,550 | $18,550 | $7.04 | | |
| EMSRFD | EMS REFUND 147 | 0.0000000000 | $18,550 | $18,550 | $0.00 | | |
| FD8EXP | FD #8 EXPENSE 697 | 0.6647992540 | $18,550 | $18,550 | $12.33 | | |
| RLBRFD | RURAL LIBRARY REFUND 623 | 0.0000000000 | $18,550 | $18,550 | $0.00 | | |
| RURALLIB | RURAL LIBRARY 623 | 0.3710609029 | $18,550 | $18,550 | $6.88 | | |
| PORTRFD | PORT REFUND 640 | 0.0000000000 | $18,550 | $18,550 | $0.00 | | |
| PORTWWGEN | PORT OF WW 640 | 0.2460186015 | $18,550 | $18,550 | $4.56 | | |
| SD101CAP | SD #101 CAP 752 | 0.5894423472 | $18,550 | $18,550 | $10.93 | | |
| SD101GEN | SD #101 GENERAL 750 | 0.7455117868 | $18,550 | $18,550 | $13.83 | | |
| ST2 | STATE SCHOOL PART 2 600 | 0.8131451643 | $18,550 | $18,550 | $15.08 | | |
| STATESCHL | STATE SCHOOL 600 | 1.5158548041 | $18,550 | $18,550 | $28.12 | | |
| STREFUND | STATE REFUND LEVY 603 | 0.0000000000 | $18,550 | $18,550 | $0.00 | | |
| COROAD | COUNTY ROAD 115 | 1.6549953990 | $18,550 | $18,550 | $30.70 | | |
| CRPRD | COUNTY ROAD REFUND 115 | 0.0000000000 | $18,550 | $18,550 | $0.00 | | |
| | Total Tax Rate: | 8.0382220203 | | | | | |
| | | | | Taxes w/Current Exemptions: | $149.10 | | |
| | | | | Taxes w/o Exemptions: | $149.10 | | |
Improvement / Building
Sketch
| No sketches available for this property. |
Property Image
Land
| 1 | 85-C2AN | Class 2 85 BU Annual | 16.9000 | 0.00 | 0.00 | 0.00 | 1.00 | $50,190 | $17,880 |
| 2 | 1-MTN | Mountain | 28.0000 | 0.00 | 0.00 | 0.00 | 1.00 | $14,000 | $670 |
| 3 | WASTE | Waste | 6.0000 | 0.00 | 0.00 | 0.00 | 1.00 | $0 | $0 |
Roll Value History
| 2025 | N/A | N/A | N/A | N/A | N/A |
| 2024 | $0 | $65,480 | $17,890 | $17,890 | $17,890 |
| 2023 | $0 | $64,190 | $18,550 | $18,550 | $18,550 |
| 2022 | $0 | $62,100 | $17,740 | $17,740 | $17,740 |
| 2021 | $0 | $59,510 | $17,640 | $17,640 | $17,640 |
| 2020 | $0 | $56,930 | $18,120 | $18,120 | $18,120 |
| 2019 | $0 | $55,560 | $18,440 | $18,440 | $18,440 |
| 2018 | $0 | $55,440 | $20,900 | $20,900 | $20,900 |
| 2017 | $0 | $55,050 | $21,270 | $21,270 | $21,270 |
| 2016 | $0 | $55,050 | $21,280 | $21,280 | $21,280 |
| 2015 | $0 | $55,050 | $18,860 | $18,860 | $18,860 |
| 2014 | $0 | $55,050 | $19,050 | $19,050 | $19,050 |
| 2013 | $0 | $53,100 | $15,400 | $15,400 | $15,400 |
| 2012 | $0 | $10,000 | $0 | $0 | $0 |
| 2011 | $0 | $9,400 | $0 | $0 | $0 |
| 2010 | $0 | $8,500 | $0 | $0 | $0 |
| 2009 | $0 | $8,700 | $0 | $0 | $0 |
| 2008 | $0 | $12,800 | $0 | $0 | $0 |
| 2007 | $0 | $12,800 | $0 | $0 | $0 |
| 2006 | $0 | $12,800 | $0 | $0 | $0 |
Deed and Sales History
| 1 | 10/13/2017 | SWD | STATUTORY WARRANTY DEED | ANDERSON DONALD R & KAREN M | DON & KAREN FARMS LLC | | | $0.00 | 133488 | 2017-08559 |
| 2 | 09/25/2012 | WARRANTY D | WARRANTY DEED | KATSEL, ARVILLA M ETAL | ANDERSON DONALD R & KAREN M | | | $60,000.00 | 122702 | 2012-08370 |
|   | |
| 3 | 01/01/1945 | QCD | QUIT CLAIM DEED | | | | | $0.00 | 0 | 2170-282382 |
Payout Agreement
| No payout information available.. |