Property
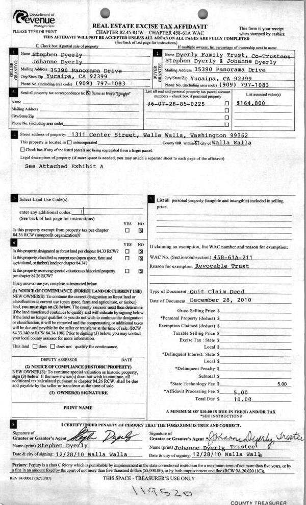
Account |
| Property ID: | 34012 | Abbreviated Legal Description: | STUBBLEFIELD SUB DVN LOT 10 BLK 4 |
| Parcel Number: | 360728740410 | Agent Code: | |
| Type: | Real | | |
| Tax Area: | 1 - OL-140-F | Land Use Code | 11 |
| Open Space: | N | DFL | N |
| Historic Property: | N | Remodel Property: | N |
| Multi-Family Redevelopment: | N | | |
| Township: | 7 | Section: | 28 |
| Range: | 36 |
Location |
| Address: | 1877 HOME AVE WA 99362 | Mapsco: | |
| Neighborhood: | G Res | Map ID: | |
| Neighborhood CD: | 614011 |
Owner |
| Name: | RIKER SHAWN L & LAUREN M | Owner ID: | 56635 |
| Mailing Address: | 1877 HOME AVE WALLA WALLA, WA 99362 | % Ownership: | 100.0000000000% |
| | | Exemptions: | |
Taxes and Assessment Details
Values
| (+) Improvement Homesite Value: | + | $0 | |
| (+) Improvement Non-Homesite Value: | + | $578,760 | |
| (+) Land Homesite Value: | + | $0 | |
| (+) Land Non-Homesite Value: | + | $120,000 | |
| (+) Curr Use (HS): | + | $0 | $0 |
| (+) Curr Use (NHS): | + | $0 | $0 |
| | | -------------------------- | |
| (=) Market Value: | = | $698,760 | |
| (–) Productivity Loss: | – | $0 | |
| | | -------------------------- | |
| (=) Subtotal: | = | $698,760 | |
| (+) Senior Appraised Value: | + | $0 | |
| (+) Non-Senior Appraised Value: | + | $698,760 | |
| | | -------------------------- | |
| (=) Total Appraised Value: | = | $698,760 | |
| (–) Senior Exemption Loss: | – | $0 | |
| (–) Exemption Loss: | – | $0 | |
| | | -------------------------- | |
| (=) Taxable Value: | = | $698,760 | |
Taxing Jurisdiction
| Owner: | RIKER SHAWN L & LAUREN M | | |
| % Ownership: | 100.0000000000% | | |
| Total Value: | $698,760 | | |
| Tax Area: | 1 - OL-140-F |
| CERFD | CURRENT EXPENSE REFUND 010 | 0.0000000000 | $698,760 | $698,760 | $0.00 | | |
| CURREXP | CURRENT EXPENSE 010 | 1.0175366760 | $698,760 | $698,760 | $711.01 | | |
| HUMNSERV | HUMAN SERVICES 119 | 0.0250000000 | $698,760 | $698,760 | $17.47 | | |
| SLDREL | SOLDIERS RELIEF 121 | 0.0155990005 | $698,760 | $698,760 | $10.90 | | |
| EMERGSER | EMS 147 | 0.3792580840 | $698,760 | $698,760 | $265.01 | | |
| EMSRFD | EMS REFUND 147 | 0.0000000000 | $698,760 | $698,760 | $0.00 | | |
| PORTRFD | PORT REFUND 640 | 0.0000000000 | $698,760 | $698,760 | $0.00 | | |
| PORTWWGEN | PORT OF WW 640 | 0.2460186015 | $698,760 | $698,760 | $171.91 | | |
| SD140BOND | SD #140 BOND 764 | 0.8342371393 | $698,760 | $698,760 | $582.93 | | |
| SD140GEN | SD #140 GENERAL 760 | 2.0646500647 | $698,760 | $698,760 | $1,442.69 | | |
| ST2 | STATE SCHOOL PART 2 600 | 0.8131451643 | $698,760 | $698,760 | $568.19 | | |
| STATESCHL | STATE SCHOOL 600 | 1.5158548041 | $698,760 | $698,760 | $1,059.22 | | |
| STREFUND | STATE REFUND LEVY 603 | 0.0000000000 | $698,760 | $698,760 | $0.00 | | |
| CWWBOND | C OF WW BOND 643 | 0.2760494372 | $698,760 | $698,760 | $192.89 | | |
| CWWGEN | CITY OF WW 631 | 1.6100204973 | $698,760 | $698,760 | $1,125.02 | | |
| CWWRFD | CITY OF WALLA WALLA REFUND 631 | 0.0000000000 | $698,760 | $698,760 | $0.00 | | |
| | Total Tax Rate: | 8.7973694689 | | | | | |
| | | | | Taxes w/Current Exemptions: | $6,147.24 | | |
| | | | | Taxes w/o Exemptions: | $6,147.24 | | |
Improvement / Building
| Improvement #1: | RESIDENTIAL | State Code: | 11 | 2010.0 sqft | Value: | $578,760 |
| Exterior Wall: | PLYWOOD | Heating/Cooling: | WARM & COOLED AIR | | Number of Bathrooms: | 3 | Number of Bedrooms: | 4 | | Plumbing: | 13 | Roof Covering: | COMP SHINGLE |
|
| | Type | Description | Class CD | Sub Class CD | Year Built | Area |
| | MA | Main Area | 1 | 40 | 1974 | 2010.0 |
| | SI1 | SITE IMPROVEMENT | 1 | 40 | 1974 | 4.0 |
| | BASE | BASEMENT | 1 | 40 | 1974 | 1196.0 |
| | BPF | BASEMENT -PARTITIONED FINISH | 1 | 40 | 1974 | 1196.0 |
| | ATG | Attached Garage | 1 | 40 | 1974 | 520.0 |
| | D2F | Double 2 Story Fireplace | 1 | 40 | 1974 | 1.0 |
| | WOD | Wood Deck | 1 | 40 | 1974 | 211.0 |
| | PRC | PORCH W STEPS, ROOF,CEILED | 1 | 40 | 1974 | 28.0 |
| | OUT | OUTSIDE BASEMENT ENTRY | 1 | 40 | 1974 | 1.0 |
| | SMP | SWIMMING POOL | 1 | 35 | 1974 | 1.0 |
Sketch
Property Image
Land
| 1 | RES 1 | Converted: Residential | 0.2755 | 12000.00 | 0.00 | 0.00 | 1.00 | $120,000 | $0 |
Roll Value History
| 2025 | N/A | N/A | N/A | N/A | N/A |
| 2024 | $607,700 | $120,000 | $0 | $727,700 | $727,700 |
| 2023 | $578,760 | $120,000 | $0 | $698,760 | $698,760 |
| 2022 | $578,760 | $85,000 | $0 | $663,760 | $663,760 |
| 2021 | $385,840 | $85,000 | $0 | $470,840 | $470,840 |
| 2020 | $308,670 | $85,000 | $0 | $393,670 | $393,670 |
| 2019 | $308,670 | $85,000 | $0 | $393,670 | $393,670 |
| 2018 | $272,280 | $50,000 | $0 | $322,280 | $322,280 |
| 2017 | $272,280 | $50,000 | $0 | $322,280 | $322,280 |
| 2016 | $272,280 | $50,000 | $0 | $322,280 | $322,280 |
| 2015 | $272,280 | $50,000 | $0 | $322,280 | $322,280 |
| 2014 | $226,900 | $50,000 | $0 | $276,900 | $276,900 |
| 2013 | $226,900 | $50,000 | $0 | $276,900 | $276,900 |
| 2012 | $247,300 | $50,000 | $0 | $0 | $0 |
| 2011 | $253,400 | $50,000 | $0 | $0 | $0 |
| 2010 | $253,400 | $50,000 | $0 | $0 | $0 |
| 2009 | $253,400 | $50,000 | $0 | $0 | $0 |
| 2008 | $253,400 | $50,000 | $0 | $0 | $0 |
| 2007 | $156,400 | $30,000 | $0 | $0 | $0 |
| 2006 | $156,400 | $30,000 | $0 | $0 | $0 |
Deed and Sales History
| 1 | 05/15/2015 | SWD | STATUTORY WARRANTY DEED | SMITH DENNIS ALAN & ANN ELIZABETH | RIKER SHAWN L & LAUREN M | | | $320,000.00 | 127984 | 2015-04139 |
| 2 | 08/30/2012 | WARRANTY D | WARRANTY DEED | TIBBLING, RICHARD & NATALIE | SMITH, DENNIS ALAN & ANN ELIZA | | | $285,000.00 | 122558 | 2012-07598 |
| 3 | 07/12/2002 | WARRANTY D | WARRANTY DEED | | | | | $185,000.00 | 99933 | 2002-0007921 |
Payout Agreement
| No payout information available.. |