Property
Account |
| Property ID: | 33988 | Abbreviated Legal Description: | PARKSIDE ADDITON LOT 8 SHORT PLAT 4/240 2006-15113 (22-7-36 PORTION SW 1/4 SW 1/4) |
| Parcel Number: | 360722500538 | Agent Code: | |
| Type: | Real | | |
| Tax Area: | 1 - OL-140-F | Land Use Code | 11 |
| Open Space: | N | DFL | N |
| Historic Property: | N | Remodel Property: | N |
| Multi-Family Redevelopment: | N | | |
| Township: | 7 | Section: | 22 |
| Range: | 36 |
Location |
| Address: | 1676 RUTH ST WA 99362 | Mapsco: | |
| Neighborhood: | A SFR | Map ID: | |
| Neighborhood CD: | 413011 |
Owner |
| Name: | GILBERT TROY A | Owner ID: | 61107 |
| Mailing Address: | 1676 RUTH ST WALLA WALLA, WA 99362 | % Ownership: | 100.0000000000% |
| | | Exemptions: | |
Taxes and Assessment Details
Values
| (+) Improvement Homesite Value: | + | $0 | |
| (+) Improvement Non-Homesite Value: | + | $337,000 | |
| (+) Land Homesite Value: | + | $0 | |
| (+) Land Non-Homesite Value: | + | $102,920 | |
| (+) Curr Use (HS): | + | $0 | $0 |
| (+) Curr Use (NHS): | + | $0 | $0 |
| | | -------------------------- | |
| (=) Market Value: | = | $439,920 | |
| (–) Productivity Loss: | – | $0 | |
| | | -------------------------- | |
| (=) Subtotal: | = | $439,920 | |
| (+) Senior Appraised Value: | + | $0 | |
| (+) Non-Senior Appraised Value: | + | $439,920 | |
| | | -------------------------- | |
| (=) Total Appraised Value: | = | $439,920 | |
| (–) Senior Exemption Loss: | – | $0 | |
| (–) Exemption Loss: | – | $0 | |
| | | -------------------------- | |
| (=) Taxable Value: | = | $439,920 | |
Taxing Jurisdiction
| Owner: | GILBERT TROY A | | |
| % Ownership: | 100.0000000000% | | |
| Total Value: | $439,920 | | |
| Tax Area: | 1 - OL-140-F |
| CERFD | CURRENT EXPENSE REFUND 010 | 0.0000000000 | $439,920 | $439,920 | $0.00 | | |
| CURREXP | CURRENT EXPENSE 010 | 1.0175366760 | $439,920 | $439,920 | $447.63 | | |
| HUMNSERV | HUMAN SERVICES 119 | 0.0250000000 | $439,920 | $439,920 | $11.00 | | |
| SLDREL | SOLDIERS RELIEF 121 | 0.0155990005 | $439,920 | $439,920 | $6.86 | | |
| EMERGSER | EMS 147 | 0.3792580840 | $439,920 | $439,920 | $166.84 | | |
| EMSRFD | EMS REFUND 147 | 0.0000000000 | $439,920 | $439,920 | $0.00 | | |
| PORTRFD | PORT REFUND 640 | 0.0000000000 | $439,920 | $439,920 | $0.00 | | |
| PORTWWGEN | PORT OF WW 640 | 0.2460186015 | $439,920 | $439,920 | $108.23 | | |
| SD140BOND | SD #140 BOND 764 | 0.8342371393 | $439,920 | $439,920 | $367.00 | | |
| SD140GEN | SD #140 GENERAL 760 | 2.0646500647 | $439,920 | $439,920 | $908.28 | | |
| ST2 | STATE SCHOOL PART 2 600 | 0.8131451643 | $439,920 | $439,920 | $357.72 | | |
| STATESCHL | STATE SCHOOL 600 | 1.5158548041 | $439,920 | $439,920 | $666.85 | | |
| STREFUND | STATE REFUND LEVY 603 | 0.0000000000 | $439,920 | $439,920 | $0.00 | | |
| CWWBOND | C OF WW BOND 643 | 0.2760494372 | $439,920 | $439,920 | $121.44 | | |
| CWWGEN | CITY OF WW 631 | 1.6100204973 | $439,920 | $439,920 | $708.28 | | |
| CWWRFD | CITY OF WALLA WALLA REFUND 631 | 0.0000000000 | $439,920 | $439,920 | $0.00 | | |
| | Total Tax Rate: | 8.7973694689 | | | | | |
| | | | | Taxes w/Current Exemptions: | $3,870.13 | | |
| | | | | Taxes w/o Exemptions: | $3,870.13 | | |
Improvement / Building
| Improvement #1: | RESIDENTIAL | State Code: | 11 | 1756.0 sqft | Value: | $337,000 |
| Exterior Wall: | SIDING | Heating/Cooling: | WARM & COOLED AIR | | Number of Bathrooms: | 2.5 | Number of Bedrooms: | 4 | | Plumbing: | 12 | Roof Covering: | COMP SHINGLE |
|
| | Type | Description | Class CD | Sub Class CD | Year Built | Area |
| | MA | Main Area | 4 | 35 | 2012 | 1756.0 |
| | SI1 | SITE IMPROVEMENT | 4 | 35 | 0 | 3.5 |
| | WDR | WOOD DECK W/ROOF | 4 | 35 | 0 | 160.0 |
| | ATG | Attached Garage | 4 | 35 | 2012 | 612.0 |
| | UPFL | Upper Floor (included in main area) | 4 | 35 | 2012 | 736.0 |
Sketch
Property Image
Land
| 1 | RES 1 | Converted: Residential | 1.2700 | 55332.00 | 0.00 | 0.00 | 1.00 | $102,920 | $0 |
Roll Value History
| 2025 | N/A | N/A | N/A | N/A | N/A |
| 2024 | $337,000 | $102,920 | $0 | $439,920 | $439,920 |
| 2023 | $337,000 | $102,920 | $0 | $439,920 | $439,920 |
| 2022 | $352,550 | $83,640 | $0 | $436,190 | $436,190 |
| 2021 | $220,350 | $83,640 | $0 | $303,990 | $303,990 |
| 2020 | $191,600 | $83,640 | $0 | $275,240 | $275,240 |
| 2019 | $191,600 | $83,640 | $0 | $275,240 | $275,240 |
| 2018 | $174,190 | $83,640 | $0 | $257,830 | $257,830 |
| 2017 | $158,350 | $83,640 | $0 | $241,990 | $241,990 |
| 2016 | $149,730 | $66,600 | $0 | $216,330 | $216,330 |
| 2015 | $149,730 | $66,600 | $0 | $216,330 | $216,330 |
| 2014 | $130,200 | $66,600 | $0 | $196,800 | $196,800 |
| 2013 | $130,200 | $66,600 | $0 | $196,800 | $196,800 |
| 2012 | $0 | $66,600 | $0 | $0 | $0 |
| 2011 | $0 | $66,600 | $0 | $0 | $0 |
| 2010 | $0 | $66,600 | $0 | $0 | $0 |
| 2009 | $0 | $66,600 | $0 | $0 | $0 |
| 2008 | $0 | $66,600 | $0 | $0 | $0 |
| 2007 | $0 | $66,600 | $0 | $0 | $0 |
Deed and Sales History
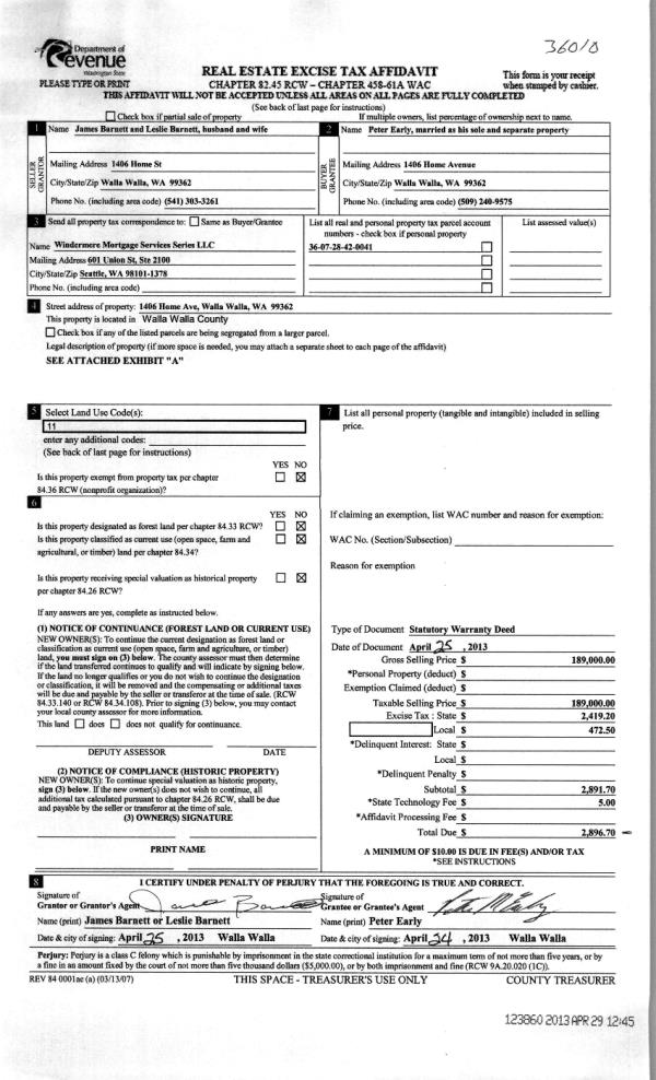
| 1 | 06/19/2017 | SWD | STATUTORY WARRANTY DEED | MOORE ROBERT L & KATHY A | GILBERT TROY A | | | $282,000.00 | 132627 | 2017-04671 |
| 2 | 03/06/2015 | SWD | STATUTORY WARRANTY DEED | FLEEGER TIMOTHY M & AMANDA J | MOORE ROBERT L & KATHY A | | | $220,000.00 | 127533 | 2015-01908 |
| 3 | 09/20/2012 | WARRANTY D | WARRANTY DEED | VOTH, RICK | FLEEGER, TIMOTHY M & AMANDA J | | | $196,000.00 | 122671 | 2012-08222 |
| 4 | 02/23/2007 | QCD | QUIT CLAIM DEED | TITUS CREEK DEVELOPMENT LLC | VOTH RICK | | | | 112289 | 2007-02107 |
Payout Agreement
| No payout information available.. |